Лекция18 (1174066)
Текст из файла
Лекция №18
ПРОЕКТИРОВАНИЕ ЦЕХОВ
Цех кузнечно-штамповочный
Определение площади цеха
Площадь цеха определяется по укрупненным показателям и по планировке цеха. Укрупненные показатели применяются для предварительных расчетов, чтобы получить общее представление о цехе. Окончательные размеры можно получить только при планировке цеха с размещением всего оборудования. При определении площади цеха нужно учитывать перспективы его развития.
В качестве укрупненных показателей используются показатели выпуска поковок с 1 м2 площади цеха или удельные площади, приходящиеся на единицу технологического оборудования.
Ориентировочная разбивка площадей при этих расчетах производится по процентному соотношению между различными площадями цеха, в составе общей площади цеха (табл.32 [1]).
Таблица 32
Распределение общей площади кузнечно-штамповочных цехов
| Вид площади | Цех горячей объемной штамповки | Цех ковки | |
| Универсальный | специализированный и автоматизированный | ||
| 1 | 2 | 3 | 4 |
| Производственная | 45 | 35 | 50 |
| Вспомогательная, в том числе: | 55 | 65 | 50 |
| Склады и кладовые | 28 | 35 | 22 |
| Ремонтные службы | 7 | 10 | 8 |
| Установки вентиляции (приточно-вытяжной) | 8 | 6 | 10 |
| Генераторные станции повышенной частоты | 7 | 7 | 2 |
| Трансформаторные подстанции | 2 | 3 | 2 |
| Насосно-аккумуляторная станция | 1 | 1 | 2 |
| Прочие | 2 | 3 | 4 |
Примечание. 1. Проезды и проходы входят в состав перечисленных площадей. 2. Эстакады, в которых хранится металл, в состав площади цехов не входят и поэтому в таблицу не включены. 3. Заготовительное отделение (участок) включено в состав цеха, его производственная площадь отнесена к производственной площади, а вспомогательная – к вспомогательной площади
В табл.33 дан годовой выпуск стальных поковок с 1 м2 общей площади цеха горячей штамповки массового и крупносерийного производства (без складов металла и готовой продукции) при двухсменной работе. Показатели таблицы относятся к полному технологическому циклу. При неполном технологическом цикле (без учета термообработки и очистки поковок от окалины) выпуск поковок выше, и, чтобы его определить, показатели таблицы надо умножить на 1,3 (увеличить на 30%).
При среднесерийном и мелкосерийном производствах выпуск поковок с единицы площади цеха меньше, чем при массовом и крупносерийном производствах и составляет 0,92 т при среднесерийном и 0,80,85 т при мелкосерийном производствах. При разработке дипломных проектов считаем производство крупносерийным или среднесерийным.
Основные вопросы, непосредственно связанные с проектированием цеха
Выбор масштаба для чертежа компоновки площадей и планировки оборудования [2]. Наиболее распространенным масштабом, в котором выполняется значительная часть планировок цеха, является масштаб 1:100. Поперечные разрезы при этом принято выполнять в масштабе 1:50. В случае чрезмерно больших размеров чертежей планировок крупных цехов целесообразно применять масштаб 1:200 и соответственно для поперечных разрезов масштаб 1:100. При планировке мелких цехов можно применять масштаб 1:50.
Таблица 33
Выпуск стальных поковок с общей площади горячештамповочного цеха массового и крупно-серийного производства при двухсменной работе (без складов металла и готовой продукции)
| Средняя масса поковки, кг | Выпуск поковок в тоннах с 1 м2 площади при общем годовом выпуске поковок, тыс. т | |||
| 20 | 50 | 70 | 90 | |
| 1,0 | 1,4 | 1,6 | 1,8 | 2,0 |
| 1,3 | 1,5 | 1,7 | 1,9 | 2,1 |
| 1,6 | 1,6 | 1,8 | 2,0 | 2,2 |
| 2,0 | 1,7 | 1,9 | 2,1 | 2,3 |
| 2,5 | 1,8 | 2,0 | 2.2 | 2,4 |
| 3,0 | 1,9 | 2,1 | 2,3 | 2,5 |
| 3,5 | 2,0 | 2,2 | 2,4 | 2,6 |
| 4,0 | 2,1 | 2,3 | 2,5 | 2,7 |
| 5,0 | - | 2,4 | 2,6 | 2,8 |
| 6,0 | - | 2,5 | 2,9 | 3,0 |
| 8,0 | - | - | 3,1 | 3,2 |
| 10,0 | - | - | 4,2 | 3,4 |
| 16,0 | - | - | - | 3,6 |
| 25,0 | - | - | - | 3,9 |
| 40,0 | - | - | - | 4,2 |
Уточнение конфигурации и габаритов оборудования, предлагаемого к установке, а также основных очертаний фундамента для него.
Обычно эти габариты вычерчиваются в масштабе, принятом для планирования, и вырезаются из достаточно плотной бумаги. Такие вырезанные габариты оборудования значительно облегчают и ускоряют работу по выполнению планировки цехов. Можно выполнить несколько вариантов и, выбрав наиболее рациональный, подробно и тщательно его разработать.
В настоящее время эту работу быстрее и качественнее можно выполнить на компьютере, задав предварительно габариты рассчитанного оборудования (габариты оборудования см. в приложении 2).
Предварительная наметка схем проведения по цеху энергоносителей (пар, воздух, электроэнергия и т.п.). эта работа позволяет принять такие решения, при которых проводки энергоносителей по цеху получаются наиболее прямолинейными и короткими. В дипломном проекте допускается эту работу не выполнять.
Уточнение последовательности операций технологических процессов изготовления отдельных, главным образом, основных, ведущих, а при массовом производстве всех деталей. При крупносерийном и массовом производстве необходимо создавать поточные и механизированные линии. Задачей компоновки и планировки является уточнение количества предполагаемых в цехе поточных линий, их типов и установленного в них оборудования.
Ясное представление о последовательности операций технологических процессов даст возможность создать такое расположение отделений цеха и оборудования в нем, которое будет максимально отвечать требованиям поточности производства.
Конфигурация здания для проектируемого цеха, высота и ширина его пролетов [1]. Конфигурация здания должна быть увязана с генеральным планом завода. Ширину пролетов здания определяют, исходя из габаритных размеров предполагаемого к установке оборудования. Рекомендуемая ширина пролетов – 24, 30 и 36 м, причем 36 м рекомендуется применять только в крупных цехах (например, КАМАЗ) с устанавливаемым в них мощным уникальным оборудованием, требующим индивидуальных расчетов.
Длина пролетов, как правило, принимается кратной 24 м, а в отдельных случаях 12 м (для дипломного проектирования – 12 м). Расстояние между колоннами (шаг) для внешней стены – 6 м, для средних колонн (внутри цеха) – 12 м. Расстояние между колоннами внутри цеха, равное 18 м, назначается только для зданий, где размещаются крупные гидравлические ковочные прессы и ковочные молоты с массой падающих частей более 2 т. Рекомендуемые высоты пролетов 6, 7, 8, 10, 12, 15 м до затяжки ферм. Высота может быть увеличена при установке мощного универсального оборудования. В отдельных случаях делают углубление фундамента, когда пресс в цехе в единственном числе, чтобы не увеличивать высоту всего цеха.
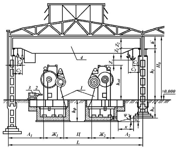
Все пролеты здания в цехах рекомендуется выполнять одной высоты, которая назначается по высоте, требуемой для установки наиболее высокого оборудования. При дипломном проектировании необходимо показать разрез цеха в месте установки самого высокого оборудования (рис.3) [1].
Рис.3. Схема взаимного расположения фундаментов колонн и оборудования в кузнечно-штамповочном цехе: 1 – кривошипный горячештамповочный пресс; 2 – заготовка; 3 – манипулятор; 4 – мостовой кран.
На рис.4 показан план и поперечный разрез одноэтажного производственного здания. Железобетонный каркас здания образован: системой колонн 1 и 2; балок, связей, стропильных 4 и подстропильных ферм 5. Подстропильные фермы необходимы при неодинаковом шаге крайних и средних колонн (рис.4, а), а при одинаковом шаге колонн, если для покрытия используются плиты, длина которых равна шагу колонн, подстропильные фермы не нужны (рис.4, б).
Рис.4. Одноэтажное производственное здание из сборного железобетона [1]: а – с подстропильными фермами при неодинаковом шаге средних и крайних колонн (шаг средних колонн 12 м, крайних 6 м); б – без подстропильных ферм (шаг крайних и средних колонн одинаковый).
Обозначения: 1 – крайние колонны, 2 – средние колонны, 3 – колонны вехверковые, 4 – ферма, 5 –подстропильная ферма, 6 – кран, 7 – подкрановые пути, 8 – фундамент колонны, 9 – стена, 10 - светоаэрационные фонари.
Основные понятия и обозначения, принятые на рис.3, 4 и табл.34:
Характеристики
Тип файла документ
Документы такого типа открываются такими программами, как Microsoft Office Word на компьютерах Windows, Apple Pages на компьютерах Mac, Open Office - бесплатная альтернатива на различных платформах, в том числе Linux. Наиболее простым и современным решением будут Google документы, так как открываются онлайн без скачивания прямо в браузере на любой платформе. Существуют российские качественные аналоги, например от Яндекса.
Будьте внимательны на мобильных устройствах, так как там используются упрощённый функционал даже в официальном приложении от Microsoft, поэтому для просмотра скачивайте PDF-версию. А если нужно редактировать файл, то используйте оригинальный файл.
Файлы такого типа обычно разбиты на страницы, а текст может быть форматированным (жирный, курсив, выбор шрифта, таблицы и т.п.), а также в него можно добавлять изображения. Формат идеально подходит для рефератов, докладов и РПЗ курсовых проектов, которые необходимо распечатать. Кстати перед печатью также сохраняйте файл в PDF, так как принтер может начудить со шрифтами.
















