text (955261), страница 21
Текст из файла (страница 21)
64
1-е деталирование
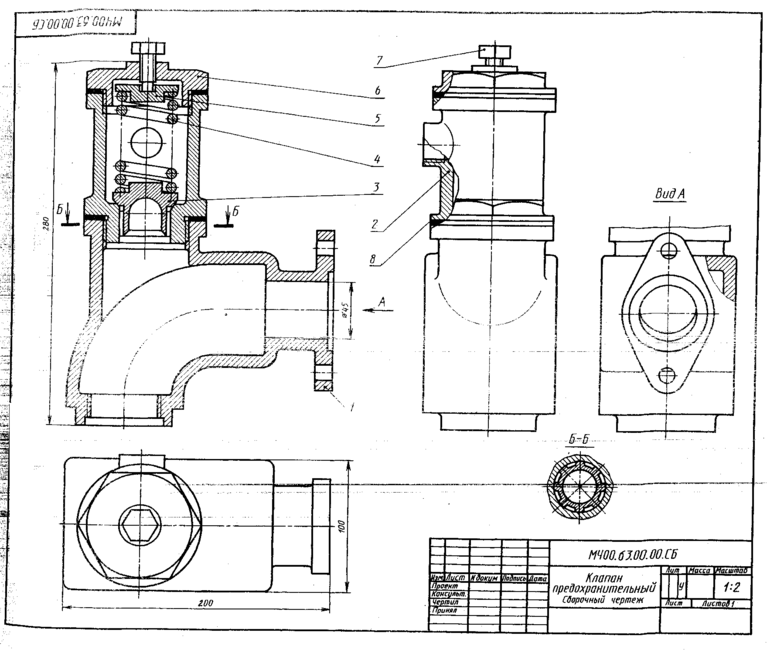
63. КЛАПАН ПРЕДОХРАНИТЕЛЬНЫЙ
| Формат | Зона | Поз. | Обозначение | Наименование | Кол. | Приме- |
| Документация | ||||||
| А2 | МЧ00.63.00.00.СБ | Сборочный чертеж | ||||
| Детали | ||||||
| A3 | 1 | МЧ00.63.00.01 | Корпус | 1 | ||
| A3 | 2 | МЧ00.63.00.02 | Стакан | 1 | ||
| А4 | 3 | МЧ00. 63.00.03 | Клапан | 1 | ||
| А4 | 4 | МЧ00.63.00.04 | Пружина | 1 | ||
| А4 | 5 | МЧ00. 63.00.05 | Тарелка | 1 | ||
| А4 | 6 | МЧ00. 63.00.06 | Крышка | 1 | ||
| Стандартные изделия | ||||||
| 7 | Винт М10Х 20.58 | 1 | ||||
| Материалы | ||||||
| 8 | Картон А 1,5 | 1 |
Предохранительный клапан служит для ограничения
давления в водяной магистрали- Если давление в ма-
гистрали повышается, то клапан поз. 3, сжимая пружину
поз. 4, открывает отверстие стакана поз. 2 В зазор
образовавшийся между клапаном и седлом стакана, будет
поступать вода до тех пор пока давление в магистрали не упадет до нормального. Излишек воды уходит через отверстие, находящееся в задней стенке стакана. При нормальном давлении пружина поз. 4 возвращает клапан в прежнее положение.
Задание
Выполнить чертежи деталей поз. 1 ... 6.
Материал деталей поз. 1, 2, 5, 6 — Сталь 20
ГОСТ 1050—74, детали поз. 3 — Сталь 35
ГОСТ 1050—74, детали поз. 4 — Сталь 651
ГОСТ 1050—74.
Ответьте на вопросы:
-
Сколько деталей изображено на разрезах А—А
и Б—Б?
-
Какое назначение имеет винт поз. 7?
3. Покажите отверстие, через которое при повышенном
давлении уходит вода.
65
2-е деталирование
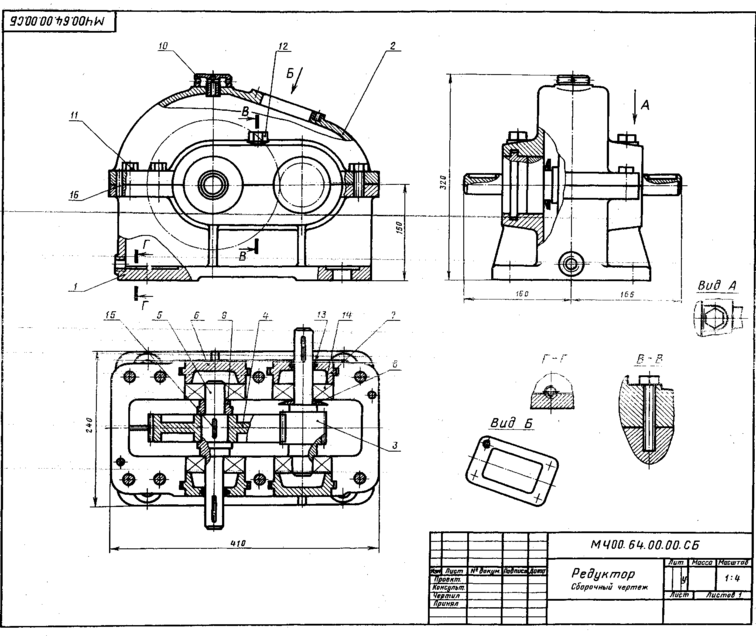
64. РЕДУКТОР
| Формат | Поа. | Обозначение | Наименование | |||
| Документация | ||||||
| А2 | МЧ00.64.00.00.СБ | Сборочный чертеж | ||||
| Детали | ||||||
| A3 | 1 | МЧ00.64.00.01 | Корпус | 1 | ||
| A3 | 2 | МЧ00.64.00.02 | Крышка | 1 | ||
| A3 | 3 | МЧ00.64.00.03 | Вал шестерни z = 20; | 1 | ||
| A3 | 4 | МЧ00.64.00.04 | Зубчатое колесо z = = 60; m = 4 | 1 | ||
| A3 | 5 | МЧ00. 64.00.05 | Вал | 1 | ||
| А4 | 6 | МЧ00.64.00.06 | Крышка | 2 | ||
| А4 | 7 | МЧ00. 64.00.07 | Крышка | 2 | ||
| А4 | 8 | МЧ00.64.00.08 | Диск | 1 | ||
| А4 | 9 | МЧ00.64.00.09 | Втулка | 1 | ||
| А4 | 10 | МЧ00.64.00.10 | Отдушина | 1 | ||
| Стандартные изделия | ||||||
| 11 | Болт М16Х 50.58 ГОСТ 7798—70 | 6 | ||||
| 12 | Болт М16Х 125.58 ГОСТ 7798—70 | 2 | ||||
| 13 | Кольцо СГ 44-31-5 ГОСТ 6418—81 | 2 | ||||
| 14 | Шарикоподшипник 207 ГОСТ 8338—76 | 4 | ||||
| 15 | Шпонка 14X9X45 ГОСТ 23360—78 | 1 | ||||
| 16 | Штифт 8h8Х40 ГОСТ 3128—70 | 2 |
Редуктор устанавливают в приводах машин и механизмов для изменения угловых скоростей и моментов
вращения.
Данный редуктор имеет пару цилиндрических зубча-
тых колес, расположенных в корпусе поз. 1 с крышкой
поз. 2. Малое зубчатое колесо поз. 3 выполнено за одно
целое с валом (вал-шестерня). Большое зубчатое колесо
поз. 4 насажено на вал поз. 5. Валы установлены в ша-
рикоподшипниках поз. 14. В крышках поз. 7 имеются
уплотнения, предохраняющие подшипники от попада-
ния в них пыли и влаги.
Для заправки редуктора маслом предусмотрено отвер-
стие в крышке поз. 2. Слив масла производят через нижнее
отверстие корпуса. В крышке редуктора имеется отду-
шина поз. 10 для сообщения с атмосферой.
Задание
Выполнить чертежи деталей поз. 1 ... 7, 10. Деталь
поз. 1 или поз. 2 изобразить в аксонометрической про-
екции.
Материал деталей поз. 1, 2, 6, 7, 10 — СЧ 15
ГОСТ 1412—79, деталей поз. 3, 4 — Сталь 15
ГОСТ 1050—74, деталей поз. 5, 8, 9 — Сталь 45
ГОСТ 1050—74.
Ответьте на вопросы:
-
Покажите контур детали поз. 4.
-
Какое назначение имеет штифт поз. 16?
-
Что изображают на чертеже прямоугольники с двумя
диагоналями?
66
1-е деталиравание
65. КЛАПАН ПРЕДОХРАНИТЕЛЬНЫЙ
| Формат | Зона | Поз. | Обозначение | Наименование | Кол. | Приме- |
| Документация | ||||||
| А2 | МЧ00.65.00.00.СБ | Сборочный чертеж | ||||
| Детали | ||||||
| A3 | 1 | МЧ00.65.00.01 | Корпус | 1 | ||
| А4 | 2 | МЧ00.65.00.02 | Штуцер | 1 | ||
| А4 | 3 | МЧ00.65.00.03 | Клапан | 1 | ||
| А4 | 4 | МЧ00.65.00.04 | Клапан | 1 | ||
| А4 | 5 | МЧ00. 65.00.05 | Пружина | 1 | ||
| А4 | 6 | МЧ00.65.00.06 | Пробка | 1 | ||
| Материалы | ||||||
| 7 | Кожа 3 | 1 | ||||
| 8 | Кожа 3 ГОСТ 20836—75 | 1 |
Клапан предохранительный двусторонний пред-
назначен для регулирования давления жидкости или пара
в трубопроводах. В данном случае клапан связан только
с правой рабочей магистралью трубопровода.
При повышении давления больше нормы жидкость или пар давят на клапан поз. 4,который, сжимая пру-
жину поз. 5, перемещается влево. При этом жидкость
или пар выходят через четыре отверстия клапана поз. 4
и верхнее отверстие корпуса поз. 1. При понижении
давления пружина поз. 5 перемещает клапан поз. 4
в исходное положение.
Задание
Выполнить чертежи деталей поз. 1. . 4, 6.
Материал летали поз. 1 — СЧ 15 ГОСТ 1412-79,
деталей поз. 2, 3, 4 — БрО3Ц12С5 ГОСт 613—79, детали
поз. 5 - Сталь 65Г ГОСТ 1050-74.
Ответьте на вопросы:
-
Покажите деталь поз. 2 на виде слева.
-
Можно ли назвать изображение А—А сечением?
-
Сколько сквозных отверстий s детали поз. 4?
67
2-е деталирование
66. ПРИСПОСОБЛЕНИЕ ДЛЯ ФРЕЗЕРОВАНИЯ
| Формат | Зона | Поз. | Обозначение | Наименование | Кол. | Приме- |
| Документация | ||||||
| А2 | МЧ00.66.00.00.СБ | Сборочный чертеж | ||||
| Детали | ||||||
| A3 | 1 | МЧ00.66.00.01 | Корпус | 1 | ||
| A3 | 2 | МЧ00.66.00.02 | Опора | 1 | ||
| A3 | 3 | МЧ00.66.00.03 | Прихват | 1 | ||
| А4 | 4 | МЧ00.66.00.04 | Прижим | 2 | ||
| А4 | 5 | МЧ00.66.00.05 | Винт М12 | 1 | ||
| А4 | 6 | МЧ00.66.00.06 | Пружина | 1 | ||
| А4 | 7 | МЧ00.66.00.07 | Пластинка | 2 | ||
| А4 | 8 | МЧ00. 66.00.08 | Втулка | 1 | ||
| А4 | 9 | МЧ00.66.00.09 | Ось | 2 | ||
| А4 | 10 | МЧ00.66.00.10 | Гайка М12 | 1 | ||
| Стандартные изделия | ||||||
| 11 | Винт А.М4Х 20.58 | 4 | ||||
| 12 | Винт А.М5Х 20.58ГОСТ 1491—80 | 6 |
Приспособление применяется для фрезерования















