text (955261), страница 20
Текст из файла (страница 20)
Задание
Выполнить чертежи деталей поз. 1 ... 8.
Материал деталей поз. 1, 2, 5, 6, 9 — Сталь 20
ГОСТ 1050—74, деталей поз. 3, 4, 7, 8 -- Сталь 35
ГОСТ 1050—74.
Ответьте на вопросы:
1. Почему не обозначен профильный разрез?
-
С какой целью дан разрез А—А?
-
Покажите контур детали поз. 2.
61
2-е деталирование
60. ВЕНТИЛЬ
| Формат | Зона | Поз. | Обозначение | Наименование | Кол. | Приме- |
| Документация | ||||||
| А2 | МЧ00.60.00.00.СБ | Сборочный чертеж | ||||
| Детали | ||||||
| A3 | 1 | МЧ00 60.00.01 | Корпус | 1 | ||
| А4 | 2 | МЧ00.60.00.02 | Гайка | 1 | ||
| А4 | 3 | МЧ00.60.00.03 | Втулка | 1 | ||
| А4 | 4 | МЧ00.60.00.04 | Гайка | 1 | ||
| А4 | 5 | МЧ00.60.00.05 | Рукоятка | 1 | ||
| А4 | 6 | МЧ00.6000.06 | Клапан | 1 | ||
| А4 | 7 | МЧ00.60.00.07 | Гайка клапана | 1 | ||
| А4 | 8 | МЧ00.60.00.08 | Шайба | 1 | ||
| А4 | 9 | МЧ00.60.00.09 | Кольцо | 1 | ||
| А4 | 10 | МЧ00.60.00.10 | Кольцо | 1 | ||
| Стандартные изделия | ||||||
| 11 | Гайка М20.5 ГОСТ 5915-70 | 1 | ||||
| Материалы | ||||||
| 12 | Шнур асбестовый ШАОН 151 ГОСТ 1779—83 |
Вентиль данной конструкции применяется для ре-
гулирования давления выпуска газа из баллона.
Скорость и давление газа зависят от величины зазора
между коническим концом клапана поз. 6 и отверстием
в корпусе поз. 1. Зазор можно изменять вращением гайки
клапана поз. 7, которая перемещает клапан вдоль оси.
Вращательному движению клапана препятствуют два
выступа на цилиндрической части, входящие в соответ-
ствующие пазы внутри корпуса. Корпус верхним резьбо-
вым выступом крепится в горловине баллона. Втулка
поз. 3 и гайка поз. 2 предназначены для соединения
вентиля с трубопроводов, по которому газ поступает
к химическому аппарату.
Для устранения утечки газа в вентиль вмонтировано
уплотнение, состоящее из асбестового шнура поз. 12
и уплотнительных колеи поз. 9 и поз. 10, которые под-
жимаются специальной гайкой поз. 4.
Задание
Выполнить чертежи деталей поз. 1 ... 9. Деталь поз. 1
изобразить в аксонометрической проекции.
Материал деталей поз. 1, 2, 6, 7 — Сталь 15
ГОСТ 1050—74, деталей поз. 3 ... 5, 8, 9— Сталь 20
ГОСТ 1050—74.
Ответьте на вопросы:
-
В каких местах корпус поз. 1 имеет резьбу?
-
Покажите контур детали поз. 6.
-
Что означают диагонали на детали поз. 7?
62
1-е деталирование
61. ПРИСПОСОБЛЕНИЕ ЗАЖИМНОЕ
| Формат | Зона | Поз. | Обозначение | Наименование | Кол. | Приме- |
| Документация | ||||||
| А2 | МЧ00.61.00.00.СБ | Сборочный чертеж | ||||
| Детали | ||||||
| A3 | 1 | МЧ00.61.00.01 | Плита | 1 | ||
| A3 | 2 | МЧ00 61.00.02 | Стоика | 1 | ||
| A3 | 3 | МЧ00.61.00.03 | Крышка | 1 | ||
| A3 | 4 | МЧ00.61.00.04 | Опора | 1 | ||
| А4 | 5 | МЧ00.61.00.05 | Болт М14 | 2 | ||
| Стандартные изделия | ||||||
| 6 | Винт M12X25.58 | 1 | ||||
| 7 | Гайка Ml2.5 | 4 | ||||
| 8 | Гайка Ml4.5 | 2 | ||||
| 9 | Шпилька М12Х 40.58 | 4 |
Данное зажимное приспособление используется при
резании длинных труб и прутков разных диаметров.
Стойку поз. 2 устанавливают на плите поз. 1. Плиту
крепят двумя болтами к раме (рама на чертеже не пока-
зана). Высоту положения трубы или прутка относительно
плиты регулируют опорой поз. 4, которую фиксируют
винтом поз. 6. Разрезаемый пруток или трубу устанавливают между опорным элементом детали поз. 4 и крышкой поз. 3 и закрепляют шпильками поз. 9 и гайками поз. 7.
Задание
Выполнить чертежи деталей поз. 1 ... 5.
Материал деталей поз. 1 ... 4 СЧ 20 ГОСТ 1412— 79,
детали поз. 5 — Сталь 20 ГОСТ 1050— 74.
Ответьте на вопросы:
-
Покажите контур детали поз. 2 на всех изображе-
ниях. -
Назовите все детали, изображенные на разрезе
А— А. -
Сколько шлицевых канавок на детали поз. 4?
63
2-е деталирование
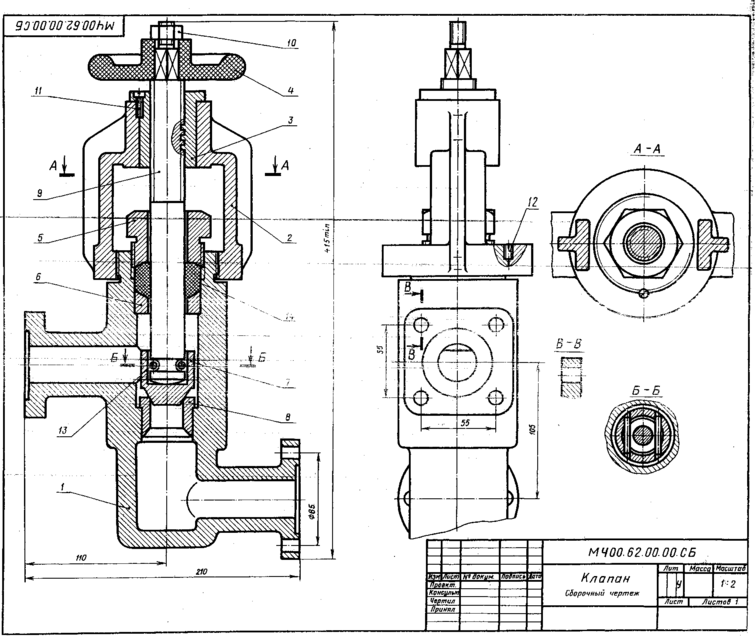
62. КЛАПАН
| Формат | Зона | Поз. | Обозначение | Наименование | Кол. | Приме- |
| Документация | ||||||
| А2 | МЧ00.62.00.00.СБ | Сборочный чертеж | ||||
| Детали | ||||||
| A3 | 1 | MЧ00.62.00.0l | Корпус | 1 | ||
| A3 | 2 | МЧ00.62.00.02 | Стойка | 1 | ||
| А4 | 3 | МЧ00.62.00.03 | Втулка | 1 | ||
| А4 | 4 | МЧ00.62.00.04 | Маховичок | 1 | ||
| А4 | 5 | МЧ00.62.00.05 | Гайка | 1 | ||
| А4 | 6 | МЧ00.62.00.06 | Шайба | 1 | ||
| А4 | 7 | МЧ00.62.00.07 | Клапан | 1 | ||
| А4 | 8 | МЧ00.62.00.08 | Седло | 1 | ||
| А4 | 9 | МЧ00.62.00.09 | Винт | 1 | ||
| Стандартные изделия | ||||||
| 10 | Гайка М16.5 | 1 | ||||
| 11 | Винт А.М6Х20.58 | 1 | ||||
| 12 | Винт М8Х 16.58 | 1 | ||||
| 13 | Штифт 5h8Х40 ГОСТ 3128-70 | 2 | ||||
| Материалы | ||||||
| 14 | Шнур асбестовый ШАОН 121 ГОСТ 1779—83 |
Клапан используют для изменения давления и скорости движения жидкости по трубопроводу.
При вращении маховичка поз. 4 винт поз. 9 с клапаном поз. 7
поднимается вверх, пропуская нужное количество жидкости. Внутри корпуса поз. 1 запрессовано седло поз. 8 клапана поз. 7. Конический конец клапана плотно притерт к конической поверхности седла. На чертеже клапан изображен закрымым, жидкость через клапан не проходит. Втулка поз. 3 фиксируется в стойке поз. 2
винтом поз. 11. Клапан соединен с винтом поз. 9 двумя
штифтами поз. 13. Для предупреждения утечки жидкости
через зазоры между корпусом и деталями поз. 5, 6, 9
предусмотрено уплотнение. Оно состоит из шайбы поз. 6
и асбестового шнура поз. 14, которые поджимаются
прижимной гайкой поз. 5.
Задание
Выполнить чертежи деталей поз. 1 ... 9. Деталь поз. 1
или поз. 2 изобразить в аксонометрической проекции.
Материал деталей поз. /, 2 — СЧ 15 ГОСТ 1412—79,
деталей поз. 3, 5 ... 9—Сталь 45 ГОСТ 1050—74, детали
поз. 4 — Листы винипласта ВН 1500 х 800
ГОСТ 9639—71.
Ответьте на вопросы:
-
Покажите контур детали поз. 1.
-
Какое назначение имеет винт поз. 12?
3. Что нужно сделать, чтобы отделить винт поз. 9
от клапана поз. 7?















