варианты к лабораторной (955269), страница 8
Текст из файла (страница 8)
56. ВЕНТИЛЬ
| Поз. | Обозначение | Наименование | Кол. |
| Документация | |||
| МЧ00.56.00.00.СБ | Сборочный чертеж | ||
| Детали | |||
| 1 | МЧ00. 56.00.01 | Корпус. | 1 |
| 2 | МЧ00.56.00.02 | Крышка | 1 |
| 3 | МЧ00.56.00.03 | Фланец | 1 |
| 4 | МЧ00.56.00.04 | Маховичок | 1 |
| 5 | МЧ00. 56.00.05 | Клапан | 1 |
| 6 | МЧ00.56.00.06 | Втулка | 1 |
| 7 | МЧ00.56.00.07 | Винт | 1 |
| 8 | МЧ00.56.00.08 | Колпак | 1 |
| 9 | МЧ00.56.00.09 | Тройник | 1 |
| 10 | МЧ00.56.00.10 | Пружина | 1 |
| 11 | МЧ00.56.00.11 | Клапан | 1 |
| 12 | МЧ00. 56.00.12 | Седло | 1 |
| 13 | МЧ00. 56.00.13 | Пробка | 1 |
| 14 | МЧ00.56.00.14 | Прокладка | 1 |
| 15 | МЧ00. 56.00.15 | Прокладка | 1 |
| 16 | МЧ00.56.00.16 | Прокладка | 1 |
| 20 | Кольцо | ||
| Стандартные изделия | |||
| 17 | Болт М8Х 35.58 ГОСТ 7798—70 | 4 | |
| 18 | Ганка М8.5 ГОСТ 5915 70 | 4 | |
| 19 | Гайка М145 ГОСТ 5915—70 | 1 |
Описание работы изделия
Вентиль предназначен для изменения расхода жидкости или пара, проходящих по трубопроводу. При вращении маховичка поз. 4 влево винт поз. 7 будет подниматься и клапан поз. 5 откроет отверстие седла поз. 12. При этом жидкость или пар начнет переходить из нижней горизонтальной трубы в верхнюю. Для предотвращения утечки между крышкой поз. 2 и винтом предусмотрено сальниковое уплотнение поз. 20, которое поджимается фланцем поз. 3. Для сохранения герметичности предусмотрены прокладки поз. 14, 15, 16.
На тройнике поз. 9 установлен предохранительный клапан, который служит для выпуска жидкости или пара при избыточном давлении. При повышении давления клапан поз. 11 поднимается, сжимая пружину поз. 10.
При этом избыток жидкости или пара выходит через образовавшуюся щель в боковое отверстие колпака поз. 8.
Материал деталей поз. /, 2, 8, 9 — СЧ 15 ГОСТ 1412—79, деталей поз. 3, 5 ... 7, 11 ... 13 — Ст 5 ГОСТ 380—71, детали поз. 4—Листы винипласта ВН 1500 X 800 ГОСТ .9639—71, детали поз. 10 — Сталь 65Г ГОСТ 1050—74;поз. 14,16-Картон; поз. 15-Кала;поз.20 -Войлок ПС 10 ГОСТ 6308—71.
57. ЭЖЕКТОР
| Поз. | Обозначение | Наименование | Кол. | ||
| Документация | |||||
| МЧ00.57.00.00.СБ | Сборочный чертеж | ||||
| Детали | |||||
| 1 | МЧ00.57.00.01 | Корпус | 1 | ||
| 2 | МЧ00.57.00.02 | Диффузор | 1 | ||
| 3 | МЧ00. 57.00.03 | Патрубок впуска | 1 | ||
| 4 | МЧ00.57.00.04 | Сопло | 1 | ||
| 5 | МЧ00.57.00.05 | Патрубок выпуска | 1 | ||
| 6 | МЧ00.57.00.06 | Пробка М40 | 1 | ||
| Стандартные изделия | |||||
| 7 | Гайка М12.5 ГОСТ 5915—70 | 8 | |||
| 8 | Шайба 12.01.016 ГОСТ 6958-78 | 8 | |||
| 9 | Шпилька М 10X30.58 ГОСТ 22034-76 | 8 | |||
| Материалы | |||||
| 10 | Картон Б 2 ГОСТ 9347—74 | 2 | |||
| 11 | Картон А 1 ГОСТ 9347—74 | 1 | |||
Описание работы изделия
Эжектор представляет собой насос для откачивания воздуха или воды. Принцип его работы основан на использовании всасывающего действия струн пара. Пар из парового котла поступает в патрубок 3 и сопло 4. При выходе из сопла 4 с большой скоростью пар попадает в камеру смешения корпуса 1 и создает в ней разрежение, чем вызывается поступление в камеру, по верхнему патрубку корпуса 1, перемещаемой жидкости. Пар, увлекая перемещаемую жидкость, устремляется вместе с ней в диффузор 2, где смесь уменьшает смою скорость и повышает давление, обеспечивая подачу жидкости по назначению и поддержание разрежения в камере смешения.
Материал деталей поз. 1 ... 5 — СЧ 15 ГОСТ 1412—79, детали поз. 6— Ст 6 ГОСТ 380—71.
58. РОЛИКИ НАПРАВЛЯЮЩИЕ
| Поз. | Обозначение | Наименование | Кол. |
| Документация | |||
| МЧ00.58.00.00.СБ | Сборочный чертеж | ||
| Детали | |||
| 1 | МЧ00.58.00.01 | Опора | 1 |
| 2 | МЧ00.58.00.02 | Корпус | 1 |
| 3 | МЧ00.59.00.03 | Винт | 1 |
| 4 | МЧ00.58.00.04 | Ролик | 2 |
| 5 | МЧ00.58.00.05 | Ось | 2 |
| 6 | МЧ00.58.00.06 | Клин | 1 |
| 7 | МЧ00.58.00.07 | Клин | 1 |
| Стандартные изделия | |||
| 8 | Болт М16Х 105.58 ГОСТ 7798—70 | 2 | |
| 9 | Винт М10Х 16.58 ГОСТ 8878-84 | 2 | |
| 10 | Гайка М16.5 ГОСТ 5915—70 | 3 |
Описание работы изделия
Направляющие ролики применяются в различных транспортных устройствах для перемещения листового материала и изделий из него. Опора поз. 1 с роликами поз. 4 может подниматься или опускаться при помощи клиньев поз. 6 и поз.1.Клинья соединены винтом поз. 3 с правой и левой прямоугольными резьбами . При вращении винта клинья сближаются, поднимая опору с роликами вверх. При вращении винта в обратном направлении опора будет опускаться. После установки роликов на необходимом уровне опору закрепляют болтами поз. 8 и гайками поз. 10. Оси поз.5 фиксируются винтами поз. 9.
К трущимся поверхностям роликов через масленки, которые ввинчивают в резьбовые отверстия осей поз.5, по специальным каналам подается смазка.
Материал деталей поз. 1, 2 — СЧ 15 ГОСТ 1412—79, деталей поз. 3 ... 7 — Сталь 45 ГОСТ 1050—74.
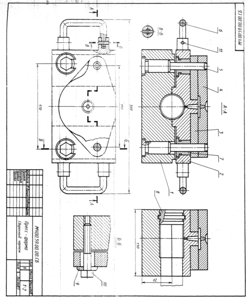
59. ПРЕСС-ФОРМА
| Поз. | Обозначение | Наименование | Кол. |
| Документация | |||
| МЧ00.59.00.00.СБ | Сборочный чертеж | ||
| Детали | |||
| 1 | МЧ00.59.00.01 | Корпус | 1 |
| 2 | МЧ00.59.00.02 | Зажим | 1 |
| 3 | МЧ00.59.00.03 | Плита отрывающая | 1 |
| 4 | МЧ00.59 00.04 | Плита литниковая | 1 |
| 5 | МЧ00.59.00.05 | Штырь | 2 |
| 6 | МЧ00.59.00.06 | Ручка | 2 |
| 7 | МЧ00.59.00.07 | Втулка | 2 |
| 8 | МЧ00.59.00.08 | Вкладыш | 1 |
| 9 | МЧ00.59.00.09 | Шайба | 2 |
| Стандартные изделия | |||
| 10 | Болт М10х55.58 ГОСТ 7798-70 | 2 | |
| 11 | Штифт 5h8X 12 ГОСТ 3128-70 | 4 |
Описание работы изделия
Пресс-форма, изображенная па чертеже, используется в операции нанесения капронового покрытия на поверхность вала для увеличения его срока службы и защиты от коррозии вал (на чертеже показан тонкой линией) устанавливают между корпусом поз. 1 и зажимом поз.2.Зажим регулируется болтами 10. Жидкий капрон под давлением через отверстия деталей noз. 2 и поз. 4 заполняет зазоры между валом и зажимом и покрывает поверхность вала.
Вкладыш поз. 8 служит заглушкой и опорой вала.
Материал деталей поз. 1,2,5,6,9 — Сталь 20 ГОСТ 1050—74, деталей поз. 3, 4, 7, 8 - Сталь 35 ГОСТ 1050—74.















