варианты к лабораторной (955269), страница 10
Текст из файла (страница 10)
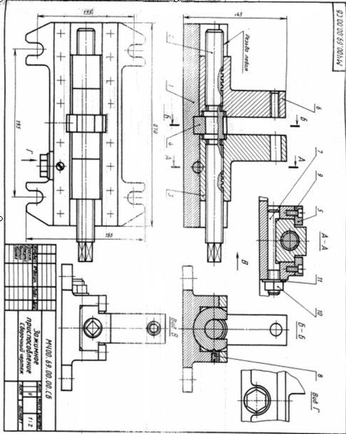
Приспособление применяется для фрезерования плоскостей разъема одновременно двух вкладышей подшипника (на разрезе А—А вкладыши изображены тонкими линиями).
Вкладыши устанавливают на опору поз. 2 по обеим сторонам винта поз. 5. Опору крепят к корпусу поз. 1 двумя пластинками поз. 7 и шестью винтами поз. 12. Обрабатываемые вкладыши закрепляются прихватом поз. 3 и прижимами поз. 4. Головка винта поз. 5 фиксируется винтами поз. 11. Усилие зажима регулируется специальной гайкой поз. 10.
Материал деталей поз. 1, 2, 5, 7 — Сталь 20 ГОСТ 1050—74, деталей поз. 3, 4 — Сталь 35 ГОСТ 1050—74, детали поз. 6 — Сталь 35 ГОСТ 1050—74.
| Поз. | Обозначение | Наименование | Кол. |
| Документация | |||
| МЧ00.68.00.00.СБ | Сборочный чертеж | ||
| Детали | |||
| 1 | МЧ00.68.00.01 | Станина | 1 |
| 2 | МЧ00.68.00.02 | Корпус | 1 |
| 3 | МЧ00.68.00.03 | Крышка | 1 |
| 4 | МЧ00.68.00.04 | Корпус | 1 |
| 5 | МЧ00.68.00.05 | Крышка | 1 |
| 6 | МЧ00.68.00.06 | Вкладыш верхний | 2 |
| 7 | МЧ00. 68.00.07 | Вкладыш нижний | 2 |
| 8 | МЧ00.68.00.08 | Пружина | 1 |
| 9 | МЧ00.68.00.09 | Ползун | 1 |
| 10 | МЧ00.68.00.10 | Болт М24 | 1 |
| 11 | МЧ00. 68.00. 11 | Болт М20 | 1 |
| 12 | МЧ00.68.00.12 | Болт М22 | 1 |
| Стандартные изделия | |||
| 13 | Гайка М16.5 ГОСТ 5915-70 | 8 | |
| 14 | Гайка М24.5 ГОСТ 5915—70 | 4 | |
| 16 | Гайка М20.5 ГОСТ 5915—70 | 2 | |
| 16 | Гайка 16.01.05 ГОСТ 11371-78 | 8 | |
| 17 | Шайба 20.01.05 ГОСТ'11371—78 | 4 | |
| 18 | Шпилька. Ml 6X80.58 ГОСТ' 22034—76 | 4 | |
| 19 | Шпилька М16Х 100.5S ГОСТ 22034—76 | 4 |
Описание работы изделия
Валковая дробилка применяется в литейное производстве для размельчения комьев отработанной формовочной земли.
Валы валковой дробилки опираются на подшипники двух опор. На чертеже изображена одна из опор дробилки. Станина поз. 1 имеет направляющий выступ, который входит в паз корпуса поз. 4, для предупреждения перекоса подшипника. Если в формовочную смесь попадает инородный предмет, то корпус подшипника с валом (на чертеже не показан) и насаженным на него валком (на чертеже показан тонкой линией), сжимая пружину поз. 8, смещается вправо, что предотвращает порчу валков.
Натяжение пружины регулируют болтом поз. 12.Подшипник имеет сменные бронзовые вкладыши поз. 6 и поз. 7
Материал деталей поз. 1... 5 — СЧ 15 ГОСТ 1412—79, деталей поз. 6, 7 — БрА9Мц2Л ГОСТ 493—79, детали поз. 8 — Сталь 65Г ГОСТ 1050—74, детали поз. 9 —Ст 6 ГОСТ 380—71.
76. КЛАПАН ПРЕДОХРАНИТЕЛЬНЫЙ
| Поз. | Обозначение | Наименование | Кол. |
| Документация | |||
| МЧ00.70.00.00.СБ | Сборочный чертеж | ||
| Детали | |||
| 1 | МЧ00.70.00.01 | Корпус | 1 |
| 2 | МЧ00.70.00.02 | Крышка | 1 |
| 3 | МЧ00.70.00.03 | Стакан | |
| 4 | МЧ00. 70.00.04 | Клапан | 1 |
| 5 | МЧ00.70.00.05 | Кольцо | 1 |
| 6 | МЧ00.70.00.06 | Пружина | 1 |
| Стандартные изделия | |||
| 7 | Болт М14Х 80.58 ГОСТ 7798—70 | 4 | |
| 8 | Винт А.М8Х 25.58 ГОСТ 1491—80 | 4 | |
| 9 | Гайка Ml4.5 ГОСТ 5915—70 | 4 | |
| 10 | Шайба 14.01.019 ГОСТ 11371—78 | 4 | |
| Материалы | |||
| 11 | Картон А 1 ГОСТ 9347—74 |
Описание работы изделия
Данный предохранительный клапан является составной частью устройства поворота и возврата плиты формовочной машины.
Сжатый воздух давит на левый торец клапана поз. 4, прижимая его правым коническим концом к конусной расточке внутри корпуса поз. 1. В таком положении клапан закрыт. Далее воздух давит на торец стакана поз. 3, заставляя его двигаться вправо и сжимать пружину поз. 6. В результате открывается проход для воздуха, который через окна внутри стенок, клапана и нижнее отверстие корпуса поступает в баллон (на чертеже не показан), приводя в движение плиту формовочной машины. При возврате плиты в исходное положение клапан открывается под давлением воздуха, поступающего и баллона по нижнему отверстию корпусами выходит в атмосферу через правое отверстие. Стакан при этом перемещается влево до упора в кольцо поз. 5.
Материал деталей поз. 1, 2 — СЧ 15 ГОСТ 1412—79, детали поз. 3 — БрОЗЦ12С5 ГОСТ 493—79, деталей поз. 4, 5 —Сталь Ст6 ГОСТ 380—71, детали поз. 6 — Сталь 65Г ГОСТ 1050—74.
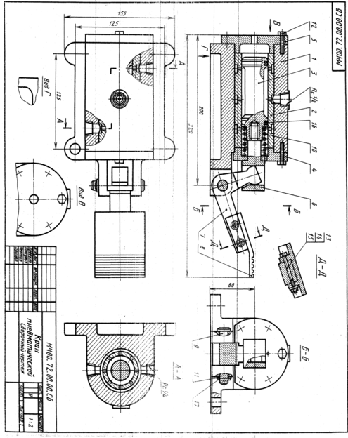
72. КРАН ПНЕВМАТИЧЕСКИЙ
| Поз. | Обозначение | Наименование | Кол. |
| Документация | |||
| МЧ00.72 00.00.СБ | Сборочный чертеж | ||
| Детали | |||
| 1 | МЧ00.72.00.01 | Корпус | 1 |
| 2 | МЧ00.72.00.02 | Плунжер | 1 |
| 3 | МЧ00.72.00.03 | Золотник | 1 |
| 4 | МЧ00.72.00.04 | Крышка | 1 |
| 5 | МЧ00.72.00.05 | Крышка | 1 |
| 6 | МЧ00.72.00.06 | Тяга | 1 |
| 7 | МЧ00.72.00.07 | Рычаг | 1 |
| 8 | МЧ00.72.00.08 | Педаль | 1 |
| 9 | МЧ00.7200.09 | Ось | 1 |
| 10 | МЧ00. 72.00. 10 | Пружина | 1 |
| 11 | МЧ00.72.00.11 | Шайба | 1 |
| Стандартные изделия | |||
| 12 | Болт М8Х 30.58 ГОСТ 7798—70 | 11 | |
| 13 | Болт М8Х 80.58 ГОСТ 7798—70 | 2 | |
| 14 | Гайка М8.5 ГОСТ 5915—70 | 2 | |
| 15 | Шайба 8.01.05 ГОСТ 11371—78 | 2 | |
| 16 | Кольцо 040 045-30 ГОСТ 9833—73 | 2 | |
| 17 | Шплинт 5X28 001 ГОСТ 397—79 | 1 |
Описание работы изделия















