Архитектурно-строительный раздел (1232455), страница 4
Текст из файла (страница 4)
Рисунок 1.16 Узел сопряжение колонны с главной балкой
1.2.3 Связи
Конструкции промышленных зданий должны обладать пространственной жёсткостью. При прогонных покрытиях жёсткость обеспечивают только связями. Связи подразделяют на вертикальные и горизонтальные, первые устраивают между колоннами и в покрытии, вторые только в покрытии. Связи не только обеспечивают жёсткость каркаса здания, но и воспринимают горизонтальные нагрузки (ветровые, тормозные от мостовых кранов). В данном проекте использованы крестообразные связи между колонн.
Рисунок 1.17 Связь жесткости
1.2.4 Перекрытия
Элементы перекрытий разделяются на рядовые и связевые. Работа перекрытий в качестве горизонтальной диафрагмы жёсткости обеспечивается сваркой ригелей и колонн с панелями перекрытия с последующей заделкой швов бетоном.
Приняты плиты перекрытия по ГОСТ 9561-91 серии 1.141-1 – Плиты перекрытий железобетонные многопустотные, армированные стержнями из стали класса Ат-V, для строительства жилых, общественных и промышленных зданий в районах сейсмичностью 7, 8 и 9 баллов (таблица 1.5).
Таблица 1.5 Плиты перекрытия
| № п/п | Наименование | Габаритные размеры, мм | Масса, т | Кол-во, шт. | ||||
| 1 | ПК 67-12-8 | 6680 | 1190 | 220 | 2,430 | 16 | ||
| 2 | ПК 29-15-8 | 2880 | 1490 | 220 | 1,380 | 6 | ||
| 3 | ПК 51-15-8 | 5080 | 1490 | 220 | 2,400 | 8 | ||
| 4 | ПК 58-15-8 | 5760 | 1490 | 220 | 2,730 | 10 | ||
| 5 | ПК 58-12-8 | 5780 | 1190 | 220 | 2,037 | 8 | ||
| 6 | ПК 27-9-8 | 2700 | 900 | 220 | 0,750 | 2 | ||
| 7 | ПК 59-15-8 | 5880 | 1490 | 220 | 2,750 | 5 | ||
| 8 | ПК 59-12-8 | 5880 | 1190 | 220 | 2,065 | 3 | ||
| 9 | ПК 60-15-8 | 5980 | 1490 | 220 | 2,800 | 5 | ||
| 10 | ПК 60-12-8 | 5980 | 1190 | 220 | 2,100 | 3 | ||
| 11 | ПК 29-12-8 | 2880 | 1190 | 220 | 1,044 | 3 | ||
План перекрытий первого этажа, а также узлы сопряжения перекрытия с каркасом показаны на рисунках 1.18 и 1.19, 1.20 соответственно.
Рисунок 1.18 План перекрытия первого этажа
Рисунок 1.19 Узел опирания пустотных плит перекрытия на балку
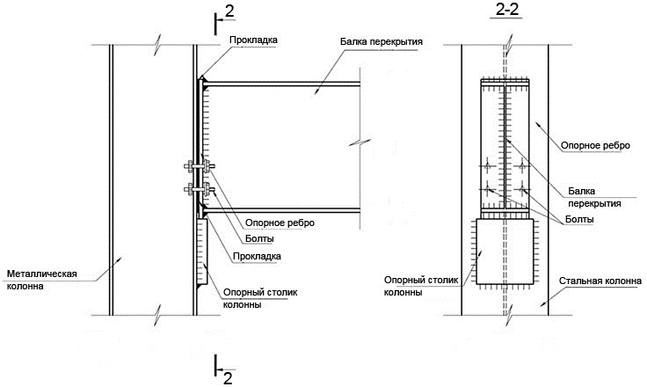
Рисунок 1.20 Узел сопряжения металлической колонны с балкой
1.2.5 Антисейсмические мероприятия в каркасе здания
Сейсмичность площадки строительства составляет 9 баллов. Для достижения необходимой сейсмостойкости зданий и требованиям [6], строящихся в сейсмических районах, необходимо учитывать, что на конструкции действуют не только обычные нагрузки, но и горизонтальные пульсирующие, возникающие во время землетрясения. Эти нагрузки носят циклический характер и могут действовать в различных направлениях.
Обеспечение сейсмостойкости зданий и сооружений достигается осуществлением градостроительных, объемно-планировочных и конструктивных мероприятий.
Объемно-планировочное и конструктивное решения должны удовлетворять условиям симметрии и равномерного распределения масс и жесткостей.
Фундаменты здания или его отсеков необходимо закладывать на одном уровне. В реконструируемом здании каркасного типа фундаменты под колонны делают свайными, связывая их между собой главной балкой.
В качестве ограждающих конструкций каркасного здания рекомендуется применять легкие навесные панели.
Перекрытия и покрытия должны представлять собой жесткий горизонтальный диск, который получают путем анкеровки панелей и заливки швов между ними цементным раствором, устройства монолитных обвязок с соединением панелей перекрытия, а также устройств связей в виде шпонок, выпусков петель и анкеров между панелями и элементами каркаса.
Необходимо предусматривать также мероприятия по упрочнению лестниц, перегородок и других конструктивных элементов.
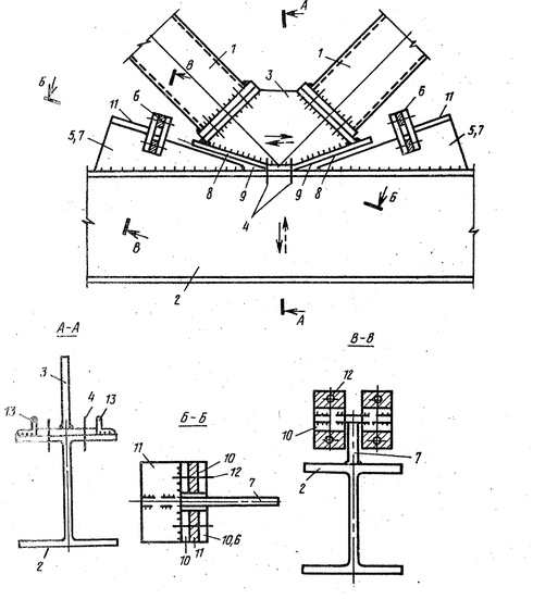
В качестве мер по повышению надежности и эффективности энергопоглащения сейсмического воздействия на здание, путем уменьшения свободного хода энергопоглотителей и эффективного включения в работу тормозных усилий по всей длине свободного хода и упрощение конструкции энергопоглотелей применяются выключающиеся связи (рис.1.21).
Рисунок 1.21 Выключающаяся связь: 1- парные наклонные связи; 2- ригель; 3- соединительный элемент; 4-выключающиеся связь; 5- энергопоглотитель; 6- амортизирующий упор; 7- клин; 8,9- зазор; 10- парные пластины; 11- упругие прокладки; 12- болт; 13- направляющий
Все перечисленные и другие мероприятий по обеспечению сейсмостойкости здания требует увеличения его сметной стоимости на 4…12%.
1.2.6 Лестницы
Производственные и заводские помещения – это зоны повышенной опасности. Соответственно, ко всем строительным конструкциям предъявлены особые требования, направленные на обеспечение максимальной безопасности и надежности всех сооружений.
Учитывая наличие мощных машин и механизмов, энергоемких устройств и аппаратов, грузов большой массы и размеров, требования к производственным лестницам в здании составлены в соответствии с ГОСТ 23120-78, а также соответствуют нормам техники безопасности, охраны труда и безопасности жизнедеятельности человека. Лестницы в проекте выбраны по серии 1.450.3-7.94 «Лестницы, площадки, стремянки и ограждения стальные для производственных зданий промышленных предприятий» с коэффициентом уклона 1:1,75. Основные характеристики элементов лестниц приведены в таблице 1.6.
| Марка | Размеры, мм | Масса, кг | ||||
| Длина | Ширина | Толщина | ||||
| Площадки | ||||||
| ПГР-2.7-1.5 | 2700 | 1500 | 230 | 243 | ||
| ПГР-2.0-1.5 | 2000 | 1500 | 230 | 180 | ||
| ПГР-8.7-3.7 | 8690 | 3720 | 230 | 1932 | ||
| ПГР-2.5-1.43 | 2500 | 1430 | 230 | 214,5 | ||
| ПГР-6.1-3.2 | 6120 | 3179 | 230 | 1175 | ||
| Лестницы | ||||||
| ЛГР27-3.85-1.2 | 3850 | 1200 | 230 | 274 | ||
| ЛГР27-1.6-1.2 | 1600 | 1200 | 230 | 115,2 | ||
| ЛГП90-6-1.2 | 6000 | 1200 | 230 | 432 | ||
| ЛГП90-4-1.2 | 4000 | 1200 | 230 | 288 | ||
Таблица 1.6Спецификация лестниц
Маркировка: Л-лестница; П-площадка; Г-горячекатаный профиль; Р-настил решетчатый; П-пожарная; 27, 90-угол наклона.
Рисунок 1.22 Общий вид конструкции лестницы и проступи
1.2.2 Ограждающие конструкции
1.2.2.1 Наружные стены здания
В проекте приняты трехслойные сэндвич-панели Teplant. Длина панелей соответствует принятой сетке колонн каркаса. Размеры сэндвич-панелей по длине принимаются: 7; 5,5; 6,0м, угловых панелей -10м. Основные характеристики сэндвич-панелей приведены в таблице 1.7.
Таблица 1.7 Стеновые панели
| Марка | Размеры, мм | Масса, т | |||
| Длина | Ширина | Толщина | |||
| ПСБ100.12-7 | 7000 | 1200 | 100 | 0,083 | |
| ПСБ100.12-5.5 | 5500 | 1200 | 100 | 0,065 | |
| ПСБ100.12-6 | 6000 | 1200 | 100 | 0,072 | |
| ПСБУГ100.12-10 | 10000 | 1200 | 100 | 0,250 | |
Рисунок 1.23 Узел крепления стеновых сэндвич-панелей к колонне: 1 – фасадный нащельник; 2 – минеральная вата; 3 – уплотнительная лента; 4 – герметик(силикон); 5 – стеновая сэндвич-панель
















