Архитектурно-строительный раздел (1232455), страница 3
Текст из файла (страница 3)
1.1.4.1 Конструктивная система здания
Конструктивная система здания – каркасное с несущими колоннами, вертикальными и горизонтальными связями, балками (рис. 1.2,1.3,1.4). Основными элементами конструктивной системы здания являются колонны и балки, вертикальные диафрагмы жёсткости перекрытия (плиты, распорки).
О
бщая пространственная работа конструктивной системы обеспечивается взаимной передачей основных нагрузок на рамы каркаса, вертикальные (диафрагмы жесткости) и горизонтальные (перекрытия и покрытия) диски жесткости. По положению в здании колонны подразделяются на крайние и средние. К крайним колонам с наружной стороны примыкают стеновые ограждения. Крайние колонны, в свою очередь, подразделяются на основные, воспринимающие нагрузки от стен, кранов и конструкций покрытия.
Р
исунок 1.2 Конструктивная схема здания
Рисунок 1.3 Схема расположения горизонтальных связей по нижнему поясу ферм
Рисунок 1.4 Конструктивная схема здания в плане
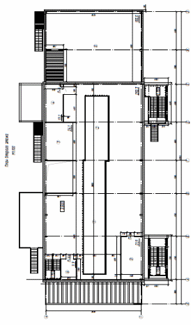
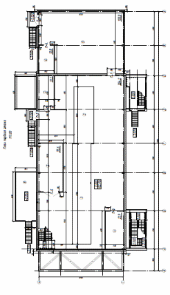
1.1.4.2 Планы этажей
Рисунок 1.5 Эскиз плана 1-го этажа
Рисунок 1.6 Эскиз плана 2-го этажа
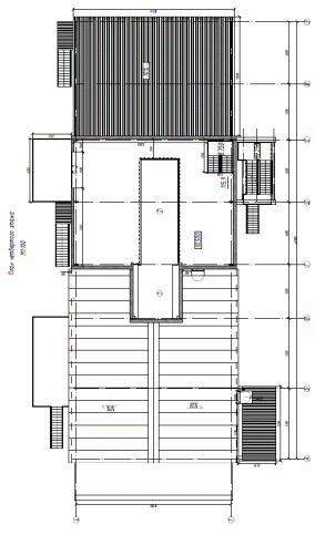
Рисунок 1.7 Эскиз плана 3-го этажа
Рисунок 1.8 Эскиз плана 4-го этажа
1.1.4.3 Разрезы
Разрез здания выполняется на основе решения плана с учётом принятой конструктивной системы. Плоскость разреза должна проходить по наиболее характерным частям здания для полного представления его объёмно-планировочного и конструктивного решения. Как правило, разрез выполняется по лестничной клетке или входу здания. На разрезе должны быть показаны основные конструкции. Разрез здания показаны на рисунке 1.9.
Рисунок 1.9 Эскиз разреза 1-1
1.1.4.4 Фасады
Разработка архитектурного решения фасада здания – завершающая и очень важная часть эскизного проектирования. Архитектура фасада выявляет художественные и конструктивные достоинства и недостатки здания, определяет его выразительность и цельность архитектурного образа [22]. Фасад здания показан на рисунке 1.10.
Рисунок 1.10 Эскиз фасада здания
1.1.5 Генеральный план
Генеральный план – это план показывающий проектное положение комплекса строений, зданий, коммуникаций и иных сооружений. Основным регулирующим документом генплана является Градостроительный кодекс. Техническую часть генплана включает СП 42.13330.2011 «Градостроительство. Планировка и застройка городских и сельских поселений». Данные нормативные документы работают на всей территории Российской Федерации.
Документация генерального плана позволяет сделать все необходимые расчеты, которые возникнут в процессе последующей эксплуатации, что значительно облегчит дальнейшее развитие проекта.
Размещение и проектирование новых, а также расширение и реконструкция существующих предприятий должны осуществляться на основе схем и проектов районной планировки, разработанных в соответствии с "Инструкцией по составлению схем и проектов районной планировки" [7, п. 2.1].
Комплексы предприятий нефтяной промышленности в каждом производственном объединении являются группой предприятий с общими объектами - промышленными узлами, схему генерального плана которых следует разрабатывать в соответствии с "Инструкцией по разработке схем генеральных планов групп предприятий с общими объектами (промышленных узлов)" [7, п. 2.2].
Проекты генеральных планов предприятий, размещение зданий и сооружений должны соответствовать СП 18.13330.2011 "Генеральные планы промышленных предприятий. Нормы проектирования", "Нормам по строительному проектированию предприятий, зданий и сооружений нефтяной и газовой промышленности" [7, п. 2.3].
Размеры санитарно-защитных зон от территории эксплуатируемых месторождений, предприятий и объектов нефтяной промышленности в каждом отдельном случае устанавливаются по согласованию с органами государственного санитарного надзора [7, п. 2.5].
Определение размеров санитарно-защитных зон проектными организациями должно быть выполнено на основе расчетов в соответствии с "Указаниями по расчету рассеивания в атмосфере вредных веществ, содержащихся в выбросах предприятий" [7, п. 2.5.2].
Расчет рассеивания вредных веществ от источников, расположенных вне зданий и не имеющих высоту выброса (скважины, насосы и т.п.), следует производить при условии официальной консультации с главной геофизической обсерваторией имени А.И. Воейкова [7, п. 2.5.3].
При монтаже и обустройстве часто перемещаемых объектов (буровые установки, установки для подземного и капитального ремонтов скважин, для испытания и освоения скважин и т.п.) отдельные блоки производственного оборудования и элементы обустройства следует (при возможности) размещать по отношению друг к другу с учетом господствующего направления ветра в данный период года [7, п. 2.6].
На территории и в производственных зданиях групповых установок, установок комплексной подготовки нефти, резервуарных парков и т.п. не допускается устройство подвальных помещений, каналов, колодцев и других заглублений, не предусмотренных проектом [7, п. 2.8].
При необходимости строительства и оборудования подвальных помещений, каналов и т.д., не предусмотренных проектом, требуется согласование с соответствующими проектными организациями, органами государственного санитарного надзора и технического надзора.
Базисные и расходные склады, предназначенные для хранения кислот и щелочей, следует размещать на открытых проветриваемых участках с подветренной стороны по отношению к населенным пунктам с соблюдением соответствующей нормам санитарно-защитной зоны.
Допускается размещать базисные и расходные склады в подземных и заглубленных помещениях, размеры, планировка и конструктивные особенности которых соответствуют действующим нормам и правилам [7, п. 2.9].
Противопожарные расстояния между зданиями, сооружениями определяются как расстояния между наружными стенами или другими конструкциями зданий и сооружений. При наличии выступающих более чем на 1 м конструкций зданий и сооружений, выполненных из горючих материалов, следует принимать расстояния м
ежду этими конструкциями [6, п. 4.4].
Рисунок 1.11 Эскиз генерального плана
Таблица 1.4 Технико-экономические показатели генплана
| Наименование | Ед. изм. | Показатель | |
| Факт. | Норм. | ||
| Площадь участка | га | 20 | |
| Площадь застройки |
| 65890 | |
| Плотность застройки | % | 33,56 | |
| Площадь дорожного покрытия |
| 25780 | |
| Озеленение |
| 90651 | |
| Открытый грунт |
| 17679 | |
1.1.6 Технико-экономические показатели здания
Оценку экономичности планировки здания производят по основным показателям: площади застройки; полезной, вспомогательной и общей площади. Технико-экономические показатели сведены в таблицу 1.5.
Таблица 1.5 Технико-экономические показатели
| Наименование показателя | Обозначение | Ед.изм | Величина |
| Площадь застройки | Пз | м2 | 682,18 |
| Полезная площадь | Пд | м2 | 1565,6 |
| Площадь общая | Пп | м2 | 1987,3 |
| Строительный объем | Qк | м3 | 6733,2 |
| Надземной части | Qн | м3 | 6733,2 |
| Подземной части | Qп | м3 | - |
1.2 Обоснование выбора конструктивных элементов
1.2.1 Фундаменты
В проекте приняты сваи винтовые глубокого заложения, висячие. По геологическому разрезу, представленный на рис. 1.14 видно, что грунты в месте заложение фундамента слабые, этим обуславливается выбор свай висячих. Из-за недопустимости динамического воздействия на грунт, при устройстве фундамента применяются винтовые сваи. Глубина заложения сваи располагается на отметке -20.000 метров от отметки уровня земли. Спецификация свай СВ-720, диаметр лопастей 920 мм, диаметр ствола сваи 720 мм, лопасти расположены по всей длине ствола сваи с шагом 1,2 м. Усилия от каркаса здания передаются на главную балку, она же распределяет усилия на колонны, опорный лист и уже непосредственно на сваи. Расстояние между сваями обусловлено выбором принятыми расстояниями между осями, под колоннами каркаса запроектировано по одной свае.
Рисунок 1.12 План фундамента
Рисунок 1.13 Узел сопряжения главной балки со сваей
Рисунок 1.14 Общий вид винтовой сваи с геологическим разрезом
1.2.2 Колонны
Колонны в проектируемом здании запроектированы по серии 1.450.3-7.94 в виде сплошностенчатыми колоннами прямоугольного трубчатого сечения 400х150 мм. Марка стали для колонн и ригелей - С255 по ГОСТ 27772-88*, прогоны перекрытий - из швеллеров по ГОСТ 8240-97 - сталь С255. Данные колонны применяются при строительстве производственных зданий до 25 м в районах с расчетной температурой выше минус 65°С, относящихся к I-V снеговым и I-V ветровым районам используют типовые стальные сплошностенчатые колонны типа КХ из гнутосварных профилей. Колонны используют при возведении зданий в районах с расчетной сейсмичностью до 9 баллов. Колонны опираются на главную балку, с помощью траверсы, опирающиеся на сваи.
Рисунок 1.15 Колонна
















