ПЗ дипломная работа (1220661), страница 8
Текст из файла (страница 8)
Расчетные усилия ( l=2,6 м)
| Усилия | РСУ№1 | РСУ№2 | РСУ№3 | РСУ№4 | РСУ№5 | РСУ№6 |
| N, кН | -14,54 | -12,02 | -3,75 | -6,01 | +/-0,71 | +/-0,716 |
Таблица 2.8
Расчетные усилия ( l=3,47 м)
| Усилия | РСУ№1 | РСУ№2 | РСУ№3 | РСУ№4 | РСУ№5 | РСУ№6 |
| N, кН | -9,6 | -3,41 | -2,9 | -10,84 | +/-3,1 | +/-3,12 |
Согласно сортаменту хвойных пиломатериалов и из условия конструирования узла сопряжения стойки и раскосов, принимаем размеры сечения подкосов bхh=150х150 мм с расчетными характеристиками сечения: А=225 см2, W=562,5 см3. Расчетная гибкость элемента, перпендикулярная оси х-х определяется по формуле:
(2.22)
где
- расчётная, условная длина, см;
- радиусы инерции сечения относительно осей соответственно х-х и y-y.
Расчетная гибкость элемента lcтр=3,347 м, перпендикулярная оси х-х составляет:
Тогда коэффициент продольного изгиба
определяется по формуле:
Тогда коэффициент продольного изгиба ( l=3,47 м) составляет:
Напряжение возникающее в принятом сечение определяется по формуле:
Напряжение возникающее в принятом сечение( l=3,47 м) составляет:
Наибольшая гибкость элемента lcтр=2,6м составляет:
Коэффициент продольного изгиба при λ ≤ 70 определяется по формуле:
Коэффициент продольного изгиба составляет:
Напряжение возникающее в принятом сечение lcтр=2,6м составляет:
Следовательно, прочность и устойчивость сечения обеспечена. Принимаем окончательно размеры подкоса bхh=150х150 мм
2.3.6 Расчет затяжки кровли
Максимальный расчетные усилия в элементе составляют: N=+5,9 кН. Согласно сортаменту хвойных пиломатериалов принимаем размеры сечения подкосов bхh=50х150 мм с расчетными характеристиками сечения: А=75 см2, W=187,5 см3.
Напряжение возникающее в принятом сечение определяется по формуле:
(2.24)
Напряжение возникающее в принятом сечение составляет:
Следовательно, прочность и устойчивость сечения обеспечена. Принимаем окончательно размеры подкоса bхh=50х150 мм
2.4 Расчет железобетонной рамы каркаса
Жилое здание имеет железобетонный монолитный каркас, состоящий из колонн сечение 400 х 400 мм; 500 х 400 мм; колонн сечение 400 х 400 мм;
перекрытия толщиной 200 мм. Шаг несущих конструкций в поперечном направлении 4,8 м; 3,4 м; 4,8 м. В продольном направлении 3,0 м; 4,3 м; 3,6 м; 2,9 м. К расчету принимаем самую загруженную раму по оси 7.
Плиты перекрытия, покрытия, колоны и ригели -монолитные железобетонные, класс бетона В20. Сопряжение колонн с фундаментами –шарнирное. сопряжение ригелей и колонн - жесткое. Перекрытия жестко связанны с железобетонным каркасом. Пространственная неизменяемость и устойчивость здания обеспечивается жесткостью поперечных и продольных рам, а так же горизонтальным диском монолитного перекрытия. Монолитные железобетонные стены лестничных клеток создают дополнительное ядро жесткости.
2.4.1 Определение усилий в элементах железобетонной рамы
Расчет поперечной рамы выполняется в программном комплексе SCAD office. Расчет выполняется для рамы с максимальной грузовой площадью на основные и особые сочетания.
Расчет рамы выполняется на постоянные, снеговые, ветровые, сейсмические нагрузки. Виды расчетных нагрузок приведены в таблице 2.8.
Расчетные сочетания нагрузок приведены на рисунке 2.14.
Расчетная схема с нумерацией элементов приведена на рисунке 2.13.
Результаты расчета программного комплекса SCAD office, максимальные усилия в элементов от расчетных нагрузок, приведены в таблице 1, приложение А, таблица А2.
Таблица 2.8
Виды расчетных нагрузок
| Виды расчетных нагрузок | |
| Номер(L) | Наименование |
| 1 | Постоянная нагрузка |
| 2 | Снеговая нагрузка (вариант 1) |
| 3 | Снеговая нагрузка (вариант 2) |
| 4 | Временная нагрузка |
| 5 | Ветровая нагрузка(слева) |
| 6 | Ветровая нагрузка(справа) |
| 7 | Сейсмическая нагрузка(вариант 1) |
| 8 | Сейсмическая нагрузка(вариант 2) |
Рисунок 2.13 - Нумерация элементов в расчетной схеме SCAD
Рисунок 2.13 - Расчетные сочетания усилий
2.4.2 Расчет железобетонной колонны
Усилия в колонне по оси Б, В, полученные в результате программного расчета SCAD, приведены в таблице 2.9.
Таблица 2.9
Усилия в колонне
| Расчетные усилия от РСУ№5 (основное сочетание) | Расчетные усилия от РСУ№8 (сейсмическое сочетание) |
| N=662,31 кН | N=139,5 кН |
| M=10,8 кНм | M=283,24 кНм |
| Q=5,3 кН | Q=138,2 кН |
Колонна многоэтажного рамного каркаса размерами 400х400 мм. Высота этажа 2,05 м.
Расчетная длина колонны многоэтажного здания при числе пролетов не менее двух и соединениях колонн и перекрытия, рассматриваемых как жесткие расчетная длина
для монолитных конструкций принимается согласно п.3.55, составляет:
Бетон тяжелый, естественного твердения, класса В 20:
(коэффициент, принимаемый при длительном действии нагрузки);
МПа;
МПа;
МПа.
Расчет на сейсмическое сочетание.
Прочностные характеристики арматуры класса А 400, Rs=355 МПа,
МПа.
Рабочая высота сечения колоны:
Эксцентриситет
продольной силы составляет:
Эксцентриситет
согласно п.3.49 не менее 1/30 высоты сечения составляет:
Поскольку
>
,в расчет принимается
.
Значение
вычисляется по формуле:
,
где
эксцентриситет продольной силы с учетом прогиба элемента.
Коэффициент
определяется по формуле:
Коэффициент
определяется по формуле:
Определяем
по формуле:
Определяем
по формуле:
где
относительная деформация растянутой арматуры, при напряжениях Rs;
,
где
- модуль упругости арматуры;
относительная деформация сжатого бетона, при напряжениях равных Rb;
,
Так как
>
, значение Аs определяем по формуле:
,
где
Предварительная требуемая площадь армирования составляет:
Принимаем армирование колонны 4 шт. диаметром 22 А400, с фактической площадью А=1520 мм2.
Расчет на основное сочетание.
Рабочая высота сечения колоны:
Эксцентриситет
продольной силы составляет:
Эксцентриситет
согласно п.3.49 не менее 1/30 высоты сечения составляет:
Поскольку
>
,в расчет принимается
.
Значение
вычисляется по формуле:
,
где
эксцентриситет продольной силы с учетом прогиба элемента.
Коэффициент
определяется по формуле:
Коэффициент
определяется по формуле:
Определяем
по формуле:
Так как
<
, значение Аs определяем по формуле:
,
где
Предварительная требуемая площадь армирования составляет:
Проанализировав усилия на основное и особое сочетания, выбираем наибольшее требование по прочности арматуры. Принимаем армирование колонны 4 шт. диаметром 22 А400, с фактической площадью А=1520 мм2.
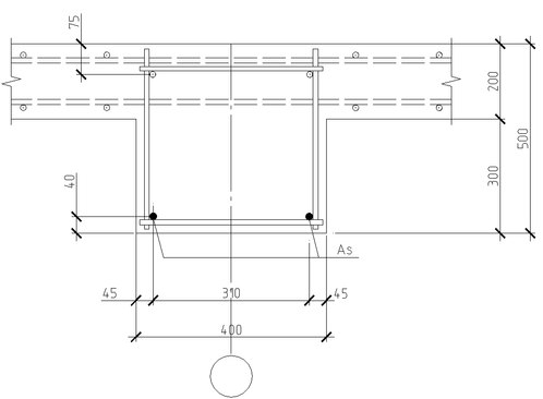
2.4.3 Расчет арматуры ригеля перекрытия в пролете
Максимальный изгибающий момент (РСУ№3) в пролете ригеля составляют
M=38,2 кНм
Рисунок 2.14 - К расчету арматуры ригеля в пролете
Рабочая высота сечения плиты h0:
Вычисляем параметр
по формуле:
;
Определяем
по формуле:
Определяем
по формуле:
Требуемая площадь сечения арматуры
определяется по формуле:
мм2;
По сортаменту арматуры принимаем армирование 2Ø18 А400,
мм2 .
Высота сжатой зоны
определяется по формуле:
Определяем
по формуле:
,
где
относительная деформация растянутой арматуры, при напряжениях Rs;
,
где
- модуль упругости арматуры;
относительная деформация сжатого бетона, при напряжениях равных Rb;
,
Так как
, фактический несущий момент определяется по формуле:
,
.
Так как
,следовательно принимаем 2Ø18 А400,
мм2 .
2.4.4 Расчет арматуры ригеля перекрытия на опоре
Максимальный изгибающий момент (РСУ№7) в пролете ригеля составляют
















