паспорт пректа (1220664)
Текст из файла
ПАСПОРТ ПРОЕКТА
Жилой дом в квартале «Изумрудный»
в с.Новотроицкое Сахалинской области
Максимальная скорость ветра – 5.6 м/с
Степень огнестойкости –III
Расчетная температура наружного воздуха – -220С
Вес снегового покрова – 4,0 кПа
Климатический район и подрайон строительства – II Г
Сейсмичность района – 8 баллов
Технико-экономические показатели
объемно-планировочного решения здания
| Наименование показателей | Единицы измерения | Значение показателей |
| Площадь застройки | м2 | 1401,2 |
| Площадь квартир | м2 | 1356,0 |
| Строительный объем QК | м3 | 10502,0 |
| Надземной части QН | м3 | 5604,8 |
| Подземной части QП | м3 | 1372,8 |
| Количество квартир - 1 комнатных - 2 комнатных - 3 комнатных | – | 24 6 12 6 |
| Этажность | – | 3 |
Разрез здания поперечный
Разрез здания продольный
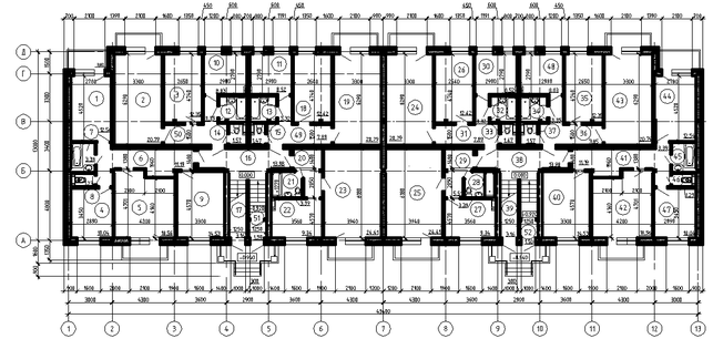
План этажа
Фасад
| ДП 270102.65.01.01.ПЗ-093 | Лист | ||||||
| | |||||||
| Изм. | Кол.уч | Лист | №док | Подп. | Дата |
Характеристики
Тип файла документ
Документы такого типа открываются такими программами, как Microsoft Office Word на компьютерах Windows, Apple Pages на компьютерах Mac, Open Office - бесплатная альтернатива на различных платформах, в том числе Linux. Наиболее простым и современным решением будут Google документы, так как открываются онлайн без скачивания прямо в браузере на любой платформе. Существуют российские качественные аналоги, например от Яндекса.
Будьте внимательны на мобильных устройствах, так как там используются упрощённый функционал даже в официальном приложении от Microsoft, поэтому для просмотра скачивайте PDF-версию. А если нужно редактировать файл, то используйте оригинальный файл.
Файлы такого типа обычно разбиты на страницы, а текст может быть форматированным (жирный, курсив, выбор шрифта, таблицы и т.п.), а также в него можно добавлять изображения. Формат идеально подходит для рефератов, докладов и РПЗ курсовых проектов, которые необходимо распечатать. Кстати перед печатью также сохраняйте файл в PDF, так как принтер может начудить со шрифтами.















