ПЗ дипломная работа (1220661), страница 6
Текст из файла (страница 6)
Рисунок 2.3 - Конструкция кровли
Расчетная постоянная нагрузка на погонный метр определяется по формуле:
qп, вр= qп, вр*b
, (2.1)
где qп, вр* – расчетная постоянная нагрузка, кН/м2;
-коэффициент надежности по ответственности здания;
b- шаг рам каркаса, м.
Рисунок 2.4 - Поперечная рама железобетонного каркаса
Сбор постоянных и временных распределенных нагрузок на поперечную раму с грузовой длины 4,3 м:
-с отм. 0,000 до +6,200 (перекрытие этажа):
qпост=5,86 х 4,3 х 1,0=25,2 кН/м
qвр=1,95 х 4,3 х 1,0=8,39 кН/м
-на отм. +9,400 (чердачное перекрытие):
qпост=6,15 х 4,3 х 1,0=26,4 кН/м
qвр=0,91 х 4,3 х 1,0=3,9 кН/м
-кровля
qпост=0,42 х 4,3 х 1,0=1,8 кН/м
Нагрузка от собственного веса колонн приведенная к уровню перекрытия составляет:
Pк1=0,4 х 0,4 х 2,05 х 25, х 1,1 х 1,0 =9,0 кН
Pк2=0,4 х 0,4 х 3,1 х 25, х 1,1 х 1,0 =13,6 кН
Pк3=0,4 х 0,4 х 3,0 х 25, х 1,1 х 1,0 =13,2 кН
Нагрузка от веса стены 1 этажа, шаг рам 4,3 м, приведенная к уровню перекрытия к отм.+0,000, за вычетом веса оконных проемов:
-кладка из легкобетонных камней 290 мм:
(0,29 х 10,0 х1,1) х (2,45 х 4,3 – 1,2 х 1,2) х 1,0=29,0 кН
-утеплитель «Урса» 100 мм:
(0,1 х 1,10 х 1,2) х (2,45 х 4,3 – 1,2 х 1,2) х 1,0=1,2 кН
Нагрузка от веса стены 1 этажа приведенная к отм.0,000 составляет:
Pст = 30,2 кН
Нормативное значение снеговой нагрузки на горизонтальную проекцию покрытия определяется по формуле:
(2.2)
где
коэффициент, учитывающий снос снега с покрытия здания под действием ветра или иных факторов;
термический коэффициент;
коэффициент перехода от веса снегового покрова земли к снеговой нагрузки на 1 м2 проекции кровли;
вес снегового покрова на 1 м2 горизонтальной поверхности земли.
Рисунок 2.5 - Схема для определения коэффициента
на скатной кровле
Расчетная снеговая нагрузка на кровлю при шаге рам 4,3 м определяется по формуле:
-вариант 1
S1 = 4,0 х 4,3 х 1,0 х1,0 =17,2 кН/м
-вариант 2
S2 = 4,0 х 4,3 х 1,25 х1,0 =21,5 кН/м
S3 = 4,0 х 4,3 х 0,75 х1,0 =12,9 кН/м
Нормативное значение средней составляющей ветровой нагрузки
в зависимости от эквивалентной высоты
над поверхностью земли определяется согласно формуле:
, (2.3)
где
-нормативное значение ветрового давления для VII района по давлению ветра;
коэффициент, учитывающий изменение ветрового давления для высоты
;
аэродинамический коэффициент лобового сопротивления.
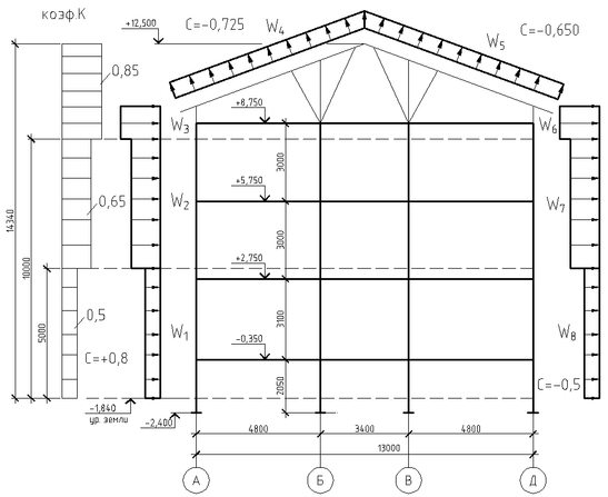
Рисунок 2.6 - Схема для определения ветровой нагрузки
Коэффициент надежности по ветровой нагрузке
. Коэффициент К принимает согласно типу местности В(городская застройка).
Тогда с наветренной стороны
, с подветренной
.
Определим аэродинамический коэффициент сe1:
при
и
,
где
высота здания от уровня земли до верха колоны, м;
пролет рамы, м.
Определим аэродинамический коэффициент сe2:
при
и
Расчетное значение средней составляющей ветровой нагрузки составляет:
W1=1,4 х 0,85 х 0,5 х (+0,8) х 4,3 м х 1,0 =+2,05 кН/м;
W2=1,4 х 0,85 х 0,65 х (+0,8) х 4,3 м х 1,0 =+2,66 кН/м;
W3=1,4 х 0,85 х 0,85 х (+0,8) х 4,3 м х 1,0 =+3,48 кН/м;
W4=1,4 х 0,85 х 0,85 х (-0,725) х 4,3 м х 1,0 =-3,15 кН/м;
W5=1,4 х 0,85 х 0,85 х (-0,650) х 4,3 м х 1,0 =-2,82 кН/м;
W6=1,4 х 0,85 х 0,85 х (-0,5) х 4,3 м х 1,0 =-2,17 кН/м.
W7=1,4 х 0,85 х 0,65 х (-0,5) х 4,3 м х 1,0 =-1,66 кН/м.
W8=1,4 х 0,85 х 0, 5 х (-0,5) х 4,3 м х 1,0 =-0,97 кН/м.
Расчетная силовая сейсмическая нагрузка определяется по формуле:
Sk = K0 ∙ K1∙Sj0ik; (2.4)
где K0 - коэффициент, учитывающий назначение сооружения и его ответственность
K1 - коэффициент, учитывающий допускаемые повреждения зданий и сооружений;
Sj0ik - значение сейсмической нагрузки для i-й формы собственных колебаний здания или сооружения, определяемое в предположении упругого деформирования конструкций по формуле:
Sj0ik =g∙mik ∙ A∙КА ∙ βi ∙Кψ ∙ηjik; (2.5)
где mik -масса здания или момент инерции соответствующей массы здания, отнесенные к точке k по обобщенной координате j , определяемые с учетом расчетных нагрузок на конструкции;
g - ускорение силы тяжести;
А – коэффициент, значение которого следует принимать в зависимости от расчетной сейсмичности 8 баллов;
КА – коэффициент, значения которого следует принимать в зависимости от сочетаний расчетной сейсмической интенсивности, для с. Новотроицкое - 8 баллов;
βi – коэффициент динамичности, соответствующий
i-й форме собственных колебаний зданий или сооружений;
Кψ – коэффициент, учитывающий способность зданий и сооружений к рассеиванию энергии.
Сейсмичность площадки строительства – 8 баллов.
При расчете зданий и сооружений на особое сочетание нагрузок значения расчетных нагрузок следует умножать на коэффициенты сочетаний ψ, принимаемые равными 0,9 для постоянных, 0,8 для временных длительных и 0,5 для кратковременных нагрузок.
Формула для расчета сейсмических масс на особое(сейсмическое) сочетание нагрузок имеет вид:
mi= Pп х а х b nc + Pсн х а х b nc + Pсн х а х b nc, (2.6)
где a – длина сбора нагрузки, м;
b – ширина сбора нагрузки, м;
nc– коэффициенты сочетания, принимаемые в зависимости от вида нагрузки: постоянные - 0,9; временные длительные ( нагрузка от людей, оборудования на перекрытиях жилых зданий) - 0,8; кратковременные(снеговая) - 0,5;
Pп- расчетная постоянная нагрузка, кН;
Pвр- расчетная временная нагрузка, кН;
Pсн- расчетная снеговая нагрузка, кН;
Рисунок 2.7 - Схема для определения сейсмической нагрузки на железобетонную раму
Сбор расчетной нагрузки на сейсмическое сочетание выполняется согласно сбору нагрузок приведенных в таблицах 2.1, 2.2, 2.3.
При определении грузовых площадей сбора руководствоваться рисунками 2.1, 2.2. Расчетный шаг рам - 4,3 м.
Расчетное значение сейсмических масс на поперечную железобетонную раму составляет:
m1= [(5,86 х 2,4 м х 4,3 м) х 0,9+(1,95 х 2,4 м х 4,3 м) х 0,8] х 1,0= 70,5 кН;
m2=[(5,86 х 4,1 м х 4,3 м) х 0,9+(1,95 х 4,1 м х 4,3 м) х 0,8] х 1,0= 120,5 кН;
-при снеговой нагрузки вариант 1:
m3= m6= (6,15 х 2,4 м х 4,3 м) х 0,9+(0,91 х 2,4 м х 4,3 м) х 0,8 +
+ (0,42 х 2,4 м х 4,3 м) х 0,9 + (4,0 х 1,0 х 2,4 м х 4,3 м) х 0,5= 89,2 кН;
m4= m5= (6,15 х 4,1 м х 4,3 м) х 0,9+(0,91 х 4,1 м х 4,3 м) х 0,8 +
+ (0,42 х 4,1 м х 4,3 м) х 0,9 + (4,0 х 1,0 х 4,1 м х 4,3 м) х 0,5= 152,3 кН;
-при снеговой нагрузки вариант 2:
m3= (6,15 х 2,4 м х 4,3 м) х 0,9+(0,91 х 2,4 м х 4,3 м) х 0,8 +
+ (0,42 х 2,4 м х 4,3 м) х 0,9 + (4,0 х 0,75 х 2,4 м х 4,3 м) х 0,5= 84,0 кН;
m4= (6,15 х 4,1 м х 4,3 м) х 0,9+(0,91 х 4,1 м х 4,3 м) х 0,8 +
+ (0,42 х 4,1 м х 4,3 м) х 0,9 + (4,0 х 0,75 х 4,1 м х 4,3 м) х 0,5= 143,5 кН;
m5= (6,15 х 4,1 м х 4,3 м) х 0,9+(0,91 х 4,1 м х 4,3 м) х 0,8 +
+ (0,42 х 4,1 м х 4,3 м) х 0,9 + (4,0 х 1,25 х 4,1 м х 4,3 м) х 0,5= 161,2 кН;
m6= (6,15 х 2,4 м х 4,3 м) х 0,9+(0,91 х 2,4 м х 4,3 м) х 0,8 +
+ (0,42 х 2,4 м х 4,3 м) х 0,9 + (4,0 х 1,25 х 2,4 м х 4,3 м) х 0,5= 94,3 кН;
2.3 Расчет элементов стропильной системы
Кровля – стропильная, двускатная. Несущие конструкции кровли – деревянные стропильные системы (стропила, стойки, прогоны, затяжка). По верх стропильной системы укладывается двойной настил из обрешётки. Ограждающие конструкции кровли - металлочерепица. Утепление чердака предусмотрено утеплителем «URSA», с устройством эксплуатируемой цементно-песчаной стяжки, армированной сеткой.
Рисунок 2.8 - Маркировка элементов стропильной системы
Для расчета принимаем наиболее нагруженную часть кровли, с макси-мальным шагом стропил - 1 м. Раскладку элементов стропильной систем приведена на рисунке 2.9. Расчетная схема и размеры элементов принимается согласно, поперечному разрезу приведённому на рисунок 2.8.
Рисунок 2.9 - Раскладка элементов стропильной системы
2.3.1Сбор нагрузки на раму кровли
Сбор нагрузок на стропильную раму определяется с грузовой длины 1 м, в отличии от рам железобетонного каркаса, где максимальный шаг сбора составляет 4,3 м, следовательно требуется отдельно собрать нагрузку на кровлю от собственного веса конструкций кровли и внешних атмосферных воздействий. Сбор нагрузки на кровлю на 1 м2 приведен в таблице приведен в таблице 2.3.
Погонная постоянная нагрузка на стропила кровли составляет:
qпост =0,42×1,0×1,0=0,42 кН/м.
Расчетное значение снеговой нагрузки на горизонтальную проекцию покрытия cоставляет:
-вариант 1
qсн =4,0×1,0×1,0=4,0 кН/м.
-вариант 2
qсн =4,0×0,75×1,0=3,0 кН/м.
qсн2 =4,0×1,25×1,0=5,0 кН/м.
Расчетная схема на сейсмические воздействия приведена на рисунке 2.10.















