ПЗ дипломная работа (1220661), страница 9
Текст из файла (страница 9)
M=248,43 кНм
Рабочая высота сечения плиты h0:
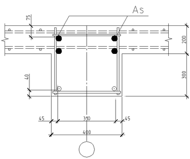
Рисунок 2.15 - К расчету арматуры ригеля на опоре
Вычисляем параметр
по формуле:
;
Определяем
по формуле:
Определяем
по формуле:
Требуемая площадь сечения арматуры
определяется по формуле:
мм2;
По сортаменту арматуры принимаем армирование 4Ø28 А400,
мм2
Высота сжатой зоны
определяется по формуле:
Определяем
по формуле:
,
где
относительная деформация растянутой арматуры, при напряжениях Rs;
,
где
- модуль упругости арматуры;
относительная деформация сжатого бетона, при напряжениях равных Rb;
,
Так как
, фактический несущий момент определяется по формуле:
,
.
Так как
,следовательно принимаем 4Ø28 А400,
мм2 .
2.4.5 Расчет прочности опасного сечения ригеля на действие поперечной силы
Расчетное сечение ригеля на действие поперечной силы приведено на рисунке 2.16.
Максимальная поперечная сила от РСУ№7 составляет:
Рабочая высота сечения плиты h0:
Расчет изгибаемых элементов по бетонной полосе между наклонными сечениями выполняется по формуле:
где
поперечная сила в нормальном сечении, кН;
коэффициент, принимаемый равным 0,3.
Условие выполняется.
2.4.6 Расчет прочности ригеля по сечениям наклонным к продольной оси
Расчет изгибаемых элементов по наклонному сечению выполняется из условия:
где
поперечная сила в наклонном сечении с длиной проекции с на поперечную ось, расположенных по одну сторону от рассматриваемого наклонного сечения; при этом учитывают наиболее опасное загружение в пределах наклонного сечения;
поперечная сила, воспринимаемая бетоном;
поперечная сила, воспринимаемая арматурой в наклонном сечении.
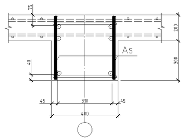
Рисунок 2.16 - К расчету поперечного армирования ригеля
Поперечную силу
определяют по формуле:
где
коэффициент, принимаемый 1,5;
- длина проекции поперечной силы на продольную ось.
Подставляем значения в формулу :
Так как
, следовательно, несущей способности бетона не достаточно для восприятия поперечной силы.
Из условия сварки принимаем поперечное сечение
Ø8 В500
Определим требуемую интенсивность поперечных стержней из арматуры класса В500, диаметр Ø8 мм;
; расчетное сопротивление поперечной арматуры согласно [3],
.
Число каркасов -2 штуке:
Назначаем максимально допустимый шаг поперечных стержней:
Поперечную силу воспринимаемую арматурой
определяют по формуле:
где
-коэффициент принимаемый 0,75;
усилие в поперечной арматуре на единицу длины элемента,
определяется по формуле:
Подставим
в формулу :
Следовательно,
, условие выполняется, прочность наклонного сечения по поперечной силе обеспечена. Армирование ригеля на приопорных участков выполняется арматурой диаметром 8 В500, с шагом 250 мм.
-
Расчет армирования плиты перекрытия
Максимальный изгибающий момент в плите перекрытия составляет:
M=13,13 кНм
В средних пролетах, окаймленных по контуру балками, и на промежуточных опорах:
Расчетное сечение плиты приведено на рисунке 2.17.
Рисунок 2.17 - Расчетное сечение плиты перекрытия
Вычисляем параметр
по формуле:
где
-расчетное сопротивление бетона;
-условная ширина плиты для расчета, м;
M - изгибающий момент, кНхм.
рабочая высота сечения, м.
;
Определяем
по формуле :
Определяем
по формуле:
где
относительная деформация растянутой арматуры, при напряжениях Rs;
,
где
- модуль упругости арматуры;
относительная деформация сжатого бетона, при напряжениях равных Rb;
,
Следовательно
Определяем
по формуле :
Требуемая площадь сечения арматуры
определяется по формуле:
,
где
-расчетное сопротивление арматуры растяжению, МПа.
мм2;
По сортаменту арматуры принимаем армирование 5Ø10 А400,
мм2 (шаг стержней 200 мм).
Высота сжатой зоны
определяется по формуле:
,
Так как
фактический несущий момент определяется по формуле:
,
.
Так как
,следовательно, принимаем 5Ø10 А400,
мм2 (шаг стержней 200 мм).
2.6 Расчет свайного фундамента
Расчетная схема сваи под колонну - висячая свая, работающая за счет трения по боковой поверхности и под нижним концом сваи. Сваи железобетонные забивные, заводского изготовления. Все сваи объединены при помощи монолитного железобетонного ростверка.
Выбор типа фундамента в виде свай, обусловлен сложностью геологических условий: слабой прочностью близких к поверхности грунтов(ИГЭ2 - ил суглинистый) и не возможностью устройства фундамента мелкого заложения в таких условиях.
Физико-механические характеристики грунтов приведены в таблице 2.10.
-
Инженерно-геологические условия площадки
Таблица 2.10
Физико-механические характеристики грунтов
| № слоя | Толщина слоя, м | Плотность т/м3 | Влажность, % | Содержание частиц, %, размером, мм | |||||||
| грунта ρ | частиц грунта ρs | природная ω | на границе | Крупнее 2,0 | 2,0-0,5 | 0,5-0,25 | 0,25-0,1 | Менее 0,1 | |||
| текучести ωL | раскатывания ωР | ||||||||||
| 1 | 2 | 3 | 4 | 5 | 6 | 7 | 8 | 9 | 10 | 11 | 12 |
| ИГЭ1 | 0,5 | - | - | - | - | - | - | - | - | - | - |
| ИГЭ2 | 2,8 | - | - | - | - | - | - | - | - | - | - |
| ИГЭ3 | 1,7 | 2,08 | 2,66 | 20,0 | - | - | 11,25 | 20,14 | 20,78 | 32,14 | 15,69 |
| ИГЭ4 | >5,0 | 2,01 | 2,75 | 26,6 | 43,0 | 22,0 | - | - | - | - | - |
ИГЭ1 (0,5 м). Насыпной грунт.
ИГЭ2 (2,8 м). Ил суглинистый.
ИГЭ3 (1,7 м). Суглинок мягкопластичный. Физико-механические характеристи грунта:
;
;
; Е=8,8 Мпа;
ИГЭ (>5,0 м). Песок средней крупности, плотный. Физико-механические характеристи грунта:
;
;
; Е=41,5 Мпа;
-
Расчет сваи
Из соображений унификации и толщины прорезаемы слоев сваей, длина сваи:
где
-заделка сваи в ростверк;
сумма мощностей, которые пробивает свая.
- заглубление сваи в несущий слой.
Принимается железобетонная квадратного сечения с ненапрягаемой арматурой С9.30:
Длина – 9 м. Сечение сваи 30х30 см. Марка бетона В15.
Объем бетона V=0,81 м3. Продольная арматура 4d12 А240. Масса сваи–2,03 т.
Рисунок 2.18 - Посадка сваи на грунт
Несущая способность сваи по материалу определяются по формуле:
где
-коэффициент условия работы сваи;
- коэффициент продольного изгиба сваи;
- коэффициент условия работы бетона;
-расчетное сопротивление сжатия бетона;
- площадь поперечного сечения сваи, м2;
- площадь поперечного сечения арматуры, м2;
- расчетное сопротивление арматуры.
Несущая способность сваи по материалу составляет:
Несущая способность сваи по грунту определяется по формуле:
где
-периметр сваи, м;
- коэффициент, условий работы сваи в грунте;
– коэффициент, условий работы под нижним концом сваи;
– коэффициент, условий работы по боковой поверхности сваи(свая забивается паровоздушным молотком);
- расчетное сопротивление грунта под нижним концом сваи, кПа, согласно, табл.1;
;
- площадь поперечного сечения под нижним концом сваи;
- расчетное сопротивление по боковой поверхности забивных свай, кПа, согласно [6], табл.2;
При z2=4,15; h2=1,7; IL=0,53; f2=22,0 кПа; суглинок мягкопластичный;
При z3=5,8; h3=1,6; IL=0,53; f3=24,5 кПа; суглинок мягкопластичный;
При z4=7,8; h4=1,0; IL=0; f4=72,5 кПа; песок средней крупности;
















