Samutenko Anna Valer'evna 2016 (1210906), страница 8
Текст из файла (страница 8)
Рис. 3.13. График сдвигов для второй кривой
В таблице 3.5 представлены итоги расчета первой кривой.
Таблица 3.5
Итоги расчета второй кривой
| № варианта | Радиус, м | Длина переходной кривой, м | Сумма модулей сдвигов |
| 1 | R1=633,97 | l1=61,00, l2=66,00 | 159 |
| 2 | R=635,00 | l1=60,00, l2=60,00 | 564 |
| 3 | R=630,00 | l1=70,00, l2=70,00 | 2543 |
Анализ расчета:
Для плавного входа подвижного состава в кривой участок пути принимается вариант № 2, так как в результате расчетов кривая сведена к однорадиусной и длины переходных кривых равны.
4 РАЗРАБОТКА ТЕХНОЛОГИЧЕСКОГО ПРОЦЕССА КАПИТАЛЬНОГО РЕМОНТА ПУТИ НА УЧАСТКЕ 3565 ПК – 3646 ПК
4.1 Анализ требований нормативной документации
Используется следующая документация:
Распоряжение об утверждении Инструкции о порядке предоставления и использования «окон» для ремонтных и строительно-монтажных работ на железных дорогах ОАО «РЖД» №3154р от 25.12.2014 г. [12].
Распоряжение №2062 от 19.09.2011 г. Методика определения оптимальной продолжительности технологического «окна» для производства работ на инфраструктуре в зависимости от места проведения ремонта и грузонапряженности полигона [13].
4.1.1 Требования Инструкции о порядке предоставления и использования «окон» для ремонтных и строительно-монтажных работ на железных дорогах ОАО «РЖД»
С 2014 года в утвержденной инструкции используются следующие термины:
«Окно» - регламентированный период времени, в течение которого прекращается движение поездов по перегону, отдельным путям (части перегона разделенным путевым постом) перегона или станции для производства ремонтных и строительно-монтажных работ [12].
Классификация «окон» по продолжительности представлена на рисунке 4.1.
Рис. 4.1. Классификация «окон» по продолжительности
Совмещенное «окно» - «окно», в течение и в пределах которого выполняются совместные работы на объектах инфраструктуры несколькими различными предприятиями, комплексами машин. При этом работы могут быть технологически не связаны между собой [12].
Установленные нормы выработки комплексов машин представлены на графиках. Согласно примечания ко всем нормам выработки применяются корректирующие коэффициенты.
1. Средние нормы выработки машинных комплексов при замене рельсошпальной решетки.
Применяются корректирующие коэффициенты: 1,25 и 0,9 – работа на однопутном участке, 1,1 – работа на не электрифицированном участке.
Средние нормы выработки с учетом корректирующих коэффициентов для отдельного и совмещенного «окон» в виде графика представлены на рисунке 4.2.
Рис. 4.2. Средние нормы выработки машинных комплексов при замене рельсошпальной решетки
2. Средние нормы выработки машинных комплексов для очистки балласта.
Применяются корректирующие коэффициенты: 1,25 – работа на однопутном участке, 1,1 – работа на не электрифицированном участке.
Очистка балласта производится машинами СЧ-601 и ЩОМ-1200.
Средние нормы выработки с учетом корректирующих коэффициентов для отдельного и совмещенного «окон» в виде графиков представлены на рисунках 4.3-4.4.
Рис. 4.3. Средние нормы выработки для очистки балласта машиной СЧ-601
Рис. 4.4. Средние нормы выработки для очистки балласта машиной ЩОМ-1200
Вывод: показатели нормы выработки машины ЩОМ-1200 значительно выше показателей СЧ-601, поэтому целесообразно использовать для очистки балласта ЩОМ-1200.
3. Средние нормы выработки машинных комплексов при балластировке.
Применяются корректирующие коэффициенты: 1,25 – работа на однопутном участке, 1,18 – работа на не электрифицированном участке.
Балластировка и выправка производится машинами Дуоматик 09-32 или ВПР-02.
Средние нормы выработки с учетом корректирующих коэффициентов для отдельного и совмещенного «окон» в виде графиков представлены на рисунках 4.5-4.6.
Рис. 4.5. Средние нормы выработки при балластировке для машины ВПР-02
Рис. 4.6. Средние нормы выработки при балластировке для машины Дуоматик 09-32
Вывод: предпочтительно выбрать Дуоматик 09-32, исходя из того, что ее показатели средних норм выработки выше показателей ВПР-02.
4. Средние нормы выработки машинных комплексов для замены рельсовых плетей.
Применяется корректирующий коэффициент 1,25 – работа на однопутном участке.
Средние нормы выработки для замены инвентарных рельсов сварными рельсовыми плетями с применением на раскреплении и закреплении рельсов ручного и механического инструмента с учетом корректирующих коэффициентов для отдельного и совмещенного «окон» в виде графика представлены на рисунке 4.7.
Рис. 4.7. Средние нормы выработки для замены инвентарных рельсов сварными рельсовыми плетями
4.1.2 Требования Методики определения минимальной продолжительности технологического «окна»
Подготовительное «окно» - технологическое «окно» для выполнения необходимых работ, которые предшествуют работам, выполняемым в основные технологические (лимитирующие) «окна» [13].
Заключительное «окно» - технологическое «окно» для выполнения необходимых работ, которые выполняются после основных технологических (лимитирующих) «окон» [13].
Время разворота работ - интервал времени от начала технологического окна до начала выполнения ведущей (лимитирующей) операции, который включает в себя оформление закрытия перегона, пробег машин к месту работ, приведение машин в рабочее состояние, технологические интервалы между началами операций, предшествующих ведущей операции, время зарядки ведущей машины [13].
Время свертывания работ - интервал времени от конца выполнения ведущей операции до окончания технологического окна, который включает в себя завершение ведущей операции (время разрядки ведущей машины), технологические интервалы между окончаниями операций, следующих за ведущей, приведение машин в транспортное состояние, проверку состояния пути и устранение отступлений, пробег машин от места работ на станцию [13].
Определение оптимальной продолжительности работ.
В настоящее время на сети железных дорог России принята поточная технология производства ремонтно-путевых работ, при которой наблюдается прямая зависимость между продолжительностью технологического «окна» t0, темпом ведущей операции и фронтом работ в технологическое «окно» [13].
(4.1)
где T0 – продолжительность технологического «окна», час;
tp – время на разворот работ, час (принимается согласно технологическим процессам или другим нормативно-технологическим документам);
ty – интервал времени от начала выполнения ведущей операции до ее завершения, час;
tсв – время на свертывание работ для оформления открытия перегона, час (принимается согласно технологическим процессам или другим нормативно-технологическим документам).
Технологические интервалы между операциями зависят от длины рабочих поездов, участвующих в этих операциях, следовательно, от фронта работ и от времени выполнения лимитирующей работы.
Согласно действующей инструкции [12] рекомендуется необходимый период времени для выполнения планового объема работ с закрытием перегона определять по лимитирующей машине [13].
(4.2)
где Lф – фронт работ в технологическое «окно», км;
Пв – темп выполнения ведущей операции при ремонте пути или технологическая производительность ведущей машины при производстве работ по текущему содержанию пути механизированным машинным комплексом, км/ч [13].
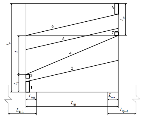
Интервалы времени, составляющие технологическое «окно» представлены на рисунке 4.8.
Рис. 4.8. Интервалы времени, составляющие технологическое «окно»
На рисунке 4.8 показаны следующие значения:
1 – оформление закрытия перегона, пробег машин к месту работ, приведение машин в рабочее состояние;
2,5,6 – выполнение операций, предшествующих ведущей и последующих за ней;
4 – выполнение лимитирующей (ведущей) операции;
3,7 – зарядка и разрядка ведущей машины;
8 – приведение машин в транспортное состояние, проверка состояния пути и устранение отступлений, пробег машин от места работ на станцию;
Lотв – длина отвода, км;
Lфi – фронт работы, км (Lфi-1, Lфi+1 – предыдущий и последующий соответственно).
Под технологической производительностью подразумевается выработка в единицу времени с учетом технологических прогнозируемых потерь времени (на пропуск поездов по соседнему пути, на укладку пенополистерольных плит, замену рулонов геотекстиля, перегрузку засорителей, перетяжку пакетов звеньев и т.д.), которая не зависит от продолжительности технологического «окна» [13].
4.2 Условия производства работ
4.2.1 Характеристика пути
Участок пути не электрифицированный, однопутный с тепловозной тягой, относится к 3 классу пути, протяженностью 8100 метров.
В плане имеет 59,5% кривых и 40,5% прямых. Кривых радиусом 400 – 350 м – нет. Кривые радиусом более 400 м менее 600 м – 6 штук. Кривые радиусом более 600 м – 4 шт. Кривые радиусом более 1200 м – нет.
4.2.2 Состояние пути до ремонта
Рельсовые плети Р65, длинной 25 м.
Шпалы деревянные типа Iа. Эпюра – 1840 шп/км в прямых, в кривых радиусом менее 1200 м – 2000 шп/км.
Балласт щебеночный, толщина под шпалой 25 см.
4.2.3 Состояние пути после ремонта
Бесстыковой путь на железобетонных шпалах, скрепление – ЖБР-65Ш.
Эпюра шпал на прямом участке – 1840 шп/км, в кривых радиусом менее 1200 м – 2000 шп/км.
Толщина балласта 40 см, с засоренностью не более 5%.
Ширина плеча балластной призмы и обочины земляного полотна соответствуют типовой конструкции и составляет 0,45 и 0,5 м.
Крутизна откосов балластной призмы не менее 1:1,5.
4.2.4 Объемы и порядок выполнения работ
Планируемый объем ремонтных работ – 8,1 км.
Характеристика участка работы по капитальному ремонту пути на участке Тумнин – Хуту, приведена в таблице 4.1.
Таблица 4.1
Характеристика участка
| Участок | Протяженность пути, м | км, ПК | кривые радиусом менее 350 м, шт. | кривые радиусом 400 – 600 м. | кривые радиусом более 600 м | кривые радиусом более 1200 м |
| Тумнин – Хуту | 8100 | 356км ПК 5 –364 км ПК6 | - | 6 | 4 | - |
В местах подхода техники на путь, в отдельные «окна» необходимо устроить подъезды с отсыпкой думпкарной вертушки.
Работы по надвижке предварительно сваренных рельсовых плетей выполняются в «окна» продолжительностью 8 часов в объеме 1600 п.м.
Работы по капитальному ремонту пути выполняются машинизированным комплексом ПМС-233 и бригадами монтеров пути ПЧ-19.
Работы подразделяются на подготовительные, основные выполняемые в «окно», отделочные и заключительные.
Подготовительные работы выполняются в день предшествующий основному «окну».
Все работы в «окно» по укладке рельсошпальной решетки, передвижение рабочих поездов, машин и механизмов по фронту работ осуществляются по указанию единого руководителя работ.
На перегон путевые машины и рабочие поезда дежурный по станции отправляет, руководствуясь заявкой руководителя работ, и в строгом соответствии с «Инструкцией по обеспечению безопасности движения поездов при производстве путевых работ» от 29.12.12 г. №2790 [14].
Отделочные работы выполняются в последующие дни после «окна» в перерывах между поездами, а также под прикрытием основного «окна» и включают в себя: устройство стеллажей покилометрового запаса, отделка балластной призмы; подрезка балласта из-под подошвы рельса; очистка кюветов машиной СЗП и уборка лишнего балласта.
Выправка пути в плане и в профиле выполняется машиной ВПР-02. Для непрерывной работы машины ВПР-02 при выполнении выправки пути по автоматизированной программе, при сборке рельсошпальной решетки и в процессе укладки, железобетонные шпалы закрепляются и устанавливаются строго по отметкам эпюры.
После выправки пути, в местах нехватки балласта, щебень дополнительно выгружается из хоппер-дозаторов.
Перераспределение балласта в пути, оправка балластной призмы производится быстроходным планировщиком ПБ.
Для ускорения стабилизации пути предусматривается применение динамического стабилизатора ДСП.














