Пояснительная записка (1052347), страница 10
Текст из файла (страница 10)
Таблица 2.6 - Технико-экономическое сравнение вариантов
| № Вар-та | Схема моста | Строительная стоимость | ДТЭП |
Коэф. индустр | |||||||||
| общая (руб) | Привед (руб) | Материальные ресурсы | Трудоемк-ть | ||||||||||
| Объем сборного жб, м3 | Объем монолит. Жб, м3 | Вес металла, тс | |||||||||||
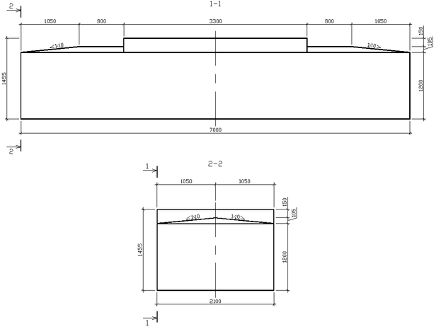
| №1 | 4х27,0 м | 472211 | 3886,5 | 454,8 | 956,9 | 168,8 | 9229,8 | 0,393 | |||||
| №2 | 3х36,6 м | 436979 | 3846,6 | 446,3 | 561,15 | 156,87 | 8404,8 | 0,443 | |||||
| №3 | 3х36,6 м | 496093 | 4351,7 | 334,4 | 694,52 | 203,11 | 7737,3 | 0,325 | |||||
| №4 | 23,0+55,0+23,0 м | 727976 | 6371,2 | 462,9 | 764,95 | 408,17 | 9711 | 0,377 | |||||
| №5 | 18,2+66,0+18,2 м | 772512 | 6868 | 319,5 | 805,5 | 460,38 | 10281 | 0,284 | |||||
3. РАСЧЕТ И КОНСТРУИРОВАНИЕ ОПОР МОСТА
3.1 Результаты расчета
Береговые опоры – столбчатые, двухрядные. Фундамент на 4-х буронабивных столбах 1,5м принят из учета местных геологических условий и распространённости машин, а как следствие унификации работ, необходимых для монтажа. Столбы 1,5м имеют переход (изменение диаметра) на 1,35м. Промежуточные опоры – столбчатые, однорядные. Конструкция столбов промежуточной опоры аналогична.
Столбы 1,5м выполнены из монолитного неморозостойкого бетона, т.к. полностью находятся ниже глубины сезонного промерзания; класс бетона В25, в соответствии с требованиями табл.7.4 [1]. Столбы 1,35м также выполнены из монолитного бетона, класса В25 морозостойкости F300, в соответствии с требованиями табл. 7.5 [1].
Армирование столбов производится стержнями, объединенными в арматурные каркасы [п. 7.150]. Наименьшая величина защитного слоя бетона принимается по табл. 7.29 [1]. Минимальная величина нахлестки каркасов
для бетона B25 и арматуры класса А400 [п. 7.167]. Для подбора необходимого количества арматурных стержней и их диаметра используется программа «Beton». Результаты расчета приведены в ПриложенииВ.
Рис. 3.1 Конструкция арматурного каркаса
Насадка для береговой опоры выполнена в сборно-монолитном исполнении. На монолитную насадку устанавливается сборный ригель, принятый по типовому проекту 3.501-79. Подферменники, высотой 15см, выполнены из монолитного бетона В25 F300. Шкафная стенка и мягкий въезд также приняты по типовому проекту.
Рис. 3.2 – Насадка береговой опоры
Насадка промежуточной опоры – монолитная. Подферменники, высотой 15см, выполнены из монолитного бетона В25 F300.
Рис. 3.3 – Насадка промежуточной опоры
Расчет опоры выполнен в программе «ОПОРА_Х». Результаты расчета приведены в Приложении Б.
Все конструкции приняты из бетона марки по водопроницаемости W6, согласно требованиям п. 7.22 [1]. Размеры элементов опор приняты в соответствии с требованиями пп. 7.174 – 7.181.
4. ТЕХНОЛОГИЯ ПРОИЗВОДСТВА РАБОТ ПО СООРУЖЕНИЮ ОПОР МОСТА
4.1 Технология работ по сооружению промежуточных опор
Все опоры расположены в пойме реки.
Фундамент опор – буронабивные столбы диаметром 1500 мм. Фундамент сооружается в летний период, и работы ведутся с островка. Сооружение фундамента происходит в следующей последовательности:
1 этап. Подготовка к погружению обсадных труб.
Выполнить инструментальную проверку отметок поверхности земли и положения осей буронабивных столбов на площадке. Проверить наличие акта разбивки осей капитального строительства.
Краном KOBELCO (Приложение Г) установить направляющий каркас для сооружения столбов первого ряда.
Подготовку обсадных труб перед покраской выполнить на рабочей площадке: очистить секции обсадных труб металлическими щетками от налипшего грунта, загрязнений, обработать сжатым воздухом. Нанесение покрытия (на два слоя с межслойной сушкой) выполнить кистями, разглаживая потеки. Сушка первого слоя покрытия до нанесения последующего слоя и покрывающего слоя осуществляется в естественных условиях в течение 10 часов.
2 этап. Погружение металлических труб Ø1,5м буровой установкой BAUER BG-28.
Для установки буровой BAUER (Приложение Д) устроить площадку на из ж/б плит размером 3х1,5х0,2. Установить буровую машину на площадке, сооруженной под буровую установку, соосно с центром буримой скважины и произвести выверку горизонтального положения машины с помощью боковых выносных опор
Доставить секции трубы 1500мм, переходник для обсадных труб, грейфер и емкость для грунта автотранспортом. Краном KOBELCO (Приложение Г) установить первую секцию обсадной трубы с ножевой частью в стяжной хомут буровой машины.
Привести в действие гидроцилиндр стяжного хомута для удержания обсадной трубы, гидроцилиндр вертикального движения для погружения обсадной трубы по вертикали.
Начать погружение обсадной трубы путем вдавливания с периодическим вращением. Когда обсадная труба погружена до отказа или отметка верха трубы над поверхностью грунта не превышает 1 метр, прекратить операцию погружения, мачту буровой машины наклонить назад.
Далее грейфер поднять в рабочее положение и начать извлечение грунта из скважины до отметки, находящейся на 1 м выше низа обсадной трубы. Потом повторить операцию заглубления обсадной трубы на возможную глубину, после чего снова извлечь грунт из скважины грейфером, пока забой не достигнет на новом уровне отметки, превышающей на 1м низ обсадной трубы.
После заглубления ножевой секции обсадной трубы на глубину, когда возвышение ее над уровнем земли составит 1 м, грейфер опустить, с верха обсадной трубы снять переходник и произвести наращивание обсадной трубы в вертикальном положении. Соединение секций металлических труб выполнить сваркой по мере погружения их на проектные отметки.
Обсадную трубу снова погрузить до отказа, поднять грейфер в рабочее положение и продолжить разрабатывать скважину, чередуя в том же порядке погружение обсадной трубы и извлечение грунта грейфером.
По окончании разработки скважины забой очистить от бурового шлама с помощью грейфера. Проверить фактические размеры скважины, отметки устья, скважины и забоя, расположение скважины в плане, а также соответствие грунта основания данным инженерно-геологических изысканий.
Верх погруженной обсадной трубы, возвышающийся на величину менее 1,3 м над поверхностью рабочей площадки, закрыть прочным щитом.
3 этап. Установка арматурного каркаса буронабивных столбов
Доставленные на рабочую площадку арматурные каркасы освидетельствовать: обязательно проверить диаметр секций каркаса в местах расположения колец жесткости; наличие фиксаторов, обеспечивающих сохранение проектной толщины защитного слоя буронабивных столбов, тщательно очистить от ржавчины и грязи.
Арматурный каркас буронабивных столбов опор №2 и №3 состоит из секций:
-
Секция каркаса К1, L=8050мм, масса 2202 кг
-
2 Секции каркаса К2, L=8450мм, масса 963 кг
-
Секция каркаса К3, L=9000мм, масса 1132 кг
Арматурный каркас буронабивных столбов опоры №1 и №4состоит из секций:
-
Секция каркаса К1, L=3250мм, масса 667 кг
-
2 Секции каркаса К2, L=7350мм, масса 853 кг
-
Секция каркаса К3, L=9000мм, масса 1132 кг
Установку арматурного каркаса выполнить краном KOBELCO (Приложение Г), секцию каркаса подать в вертикальном положении. Нижнюю секцию опускать до тех пор, пока место стыковки не достигнет устья скважины, и зафиксировать в этом уровне с помощью поперечных стержней, закладываемых в каркас под кольцо жесткости и опираемых на верх обсадной трубы.
Установить среднюю секцию каркаса, выполнить стыковку секций арматурного каркаса согласно утвержденным чертежам.
Удалить поперечные стержни, опустить арматурный каркас до следующего стыка секций. Работы по стыковке следующих секций выполнить аналогично. Каркас опустить на полную глубину скважины.
Установленный арматурный каркас закрепить в проектном положении для предотвращения подъема и смещения каркаса в плане укладываемой бетонной смесью и в процессе извлечения бетонолитной трубы.
4 этап. Установка и снятие бетонолитного оборудования, заполнение полости труб монолитным бетоном методом ВПТ
Работы по сборке и установке бетонолитной трубы, подъему ее в процессе бетонирования, разборке, снятию секций обсадной трубы и подаче бетонной смеси в бадье осуществляют с помощью крана KOBELCO.
При бетонировании буронабивных столбов применяют бетонолитные трубы с быстроразъемными стыками. Внутренний диаметр бетонолитной трубы 250 - 325 мм.
Звенья бетонолитной трубы укрупняют в секции длиной по 8-10 м с помощью разъемных хомутов. Конструкция отдельных секций бетонолитных труб обеспечивает полную герметичность стыков. Стыковку укрупненных секций бетонолитной трубы производят с применением хомутов в вертикальном положении при опускании ее в скважину. При этом ранее опущенный участок бетонолитной трубы фиксируют над устьем скважины с помощью хомута, надеваемого на ее верх с опиранием на опорные балки, уложенные на обсадную трубу. Верхним звеном бетонолитной трубы является приемный бункер. Объем накопительного бункера не менее объема бетонолитной трубы.
Бетонолитную трубу устанавливают по оси скважины таким образом, чтобы ее низ оказался на 200-250 мм выше забоя скважины. Перед бетонированием в устье бетонолитной трубы подвешивают пробку для изоляции бетонной смеси от воды.
Доставка бетонной смеси осуществляется автобетоновозами (миксерами).
Бетонную смесь в скважину укладывать способом вертикального перемещения трубы (ВПТ).
Бетонную смесь подают в приемный бункер из бадьи. Первоначально заполняют бетонной смесью бункер и часть бетонолитной трубы над пробкой. Затем пробку извлекают и производят непрерывную подачу в бункер бетонной смеси из бадьи, приподнимая краном бетонолитную трубу по мере прохождения по ней бетонной смеси.
В ходе бетонирования методом ВПТ нижний торец бетонолитной трубы должен быть постоянно заглублен под уровень бетонной смеси не менее чем на 0.8 м и не более 2 м, бетонирование вести непрерывно.















