Диплом (1231287), страница 3
Текст из файла (страница 3)
В ТУ производителя должны быть указаны основные технические характеристики материала, регламентированные поставщиками. В случае несоответствия какого-либо параметра указанного в ТУ производителя материала, при выполнении условий хранения, предприятие вправе выставить претензию поставщику на данный материал с указанием параметра несоответствия [4].
Пробы лаков, компаундов, эмалей для проверки и испытания отбирать в чистую стеклянную посуду с плотно закрываемой крышкой. Перед взятием проб лак, компаунд или эмаль следует тщательно перемешать. При наличии пленки на поверхности лакокрасочного материала перед размешиванием и взятием пробы пленку аккуратно удалить.
Результаты проверки основных показателей электроизоляционных материалов должны регистрироваться в специальных журналах, в которых должны быть отражены данные по применяемым материалам за подписью исполнителей. Журналы должны храниться в ПСО либо в химической лаборатории предприятия и записи в нем должны систематически контролироваться руководителем предприятия, главным инженером, отделом качества предприятия и приемщиками локомотивов.
Поверхности деталей и узлов (шейки вала, выводы катушек, резьбовые и проходные отверстия и т.д.), не подлежащие пропитке компаундами и покрытию эмалями, должны быть покрыты кремнийорганической пастой КПД ТУ 6-02-5099-92 или другими защитными покрытиями, и после окончательной сушки должны быть очищены технической салфеткой [4].
Не рекомендуется прерывать технологический процесс сушки, открывать печь, производить выгрузку или загрузку изделий. В случае открывания дверей печи и прерывания процесса сушки, установленное минимальное время сушки, должно быть увеличено не менее чем на 30 минут после каждого открытия.
При загрузке сушильной печи подбирать узлы электрических машин, требующие одинакового температурного режима и времени сушки.
Остова с катушками (статоры) и якоря (роторы) устанавливать в камере сушильной печи вертикально с зазором между ними не менее 50 мм.
Якоря двухмашинных агрегатов и вспомогательных электрических машин разрешается устанавливать горизонтально с опорой на хвостовики вала.
Качество сушки определяется величиной сопротивления изоляции, измеренной при выкатке якорей или остовов из камеры сушильной печи не позднее, чем через 15 минут после окончания сушки.
Сопротивление изоляции измеряется мегомметром [4]:
-
для машин с номинальным рабочим напряжением 1500 до 3000 В – мегомметром на 2500 В;
-
для машин с номинальным рабочим напряжением от 500 до 1500 B – мегомметром на 1000 В;
-
для низковольтных машин – мегомметром на 500 В.
В случае, если величина сопротивления изоляции якорной обмотки (катушек ротора) и обмоток катушек остова (обмоток статора) ниже норм, установленных Правилами ремонта, данные узлы электрических машин подлежат дополнительной сушке в течение 5 часов при температуре, не ниже указанной в режимных таблицах для предварительной сушки.
В случае, если после двукратной дополнительной сушки обмотки отремонтированного узла электрической машины не будет достигнуто необходимого сопротивления изоляции, неисправные узлы необходимо отремонтировать для определения и устранения причины низкой изоляции.
Обмотки электромашин после пропитки, сушки и покрытия эмалью должны иметь твёрдую, гладкую и блестящую поверхность без трещин, вздутий и следов перегрева, прочно связанную с основной изоляцией. Подтёки эмали или лака, загрязнения на поверхности изоляции не допускаются. При наличии дефектов покрытия поверхностей обмоток принять меры к их устранению.
После сушки якоря и остова (при его температуре не ниже 80–90°С) при помощи гайковерта производить подтяжку коллекторных (полюсных) болтов (попарно противоположных). При использовании ключей обеспечить для каждого поворота ключа проворот болта не более чем на половину оборота.
Параметры текущих режимов сушки, пропитка и покрытия изоляции обмоток фиксировать в журнале форма ТЭУ-27 «Журнал записи пропитки и сушки изоляции обмоток электрических машин». Запись температуры печи при отсутствии регистрирующих приборов, производится в журнале пропиточного отделения через каждые 2 часа [4].
Применяются два вида пропитывающих составов: лаки и компаунды.
В состав пропитывающих лаков входят два основных элемента: твердая основа (термореактивная смола) и растворитель. Для полного заполнения пор и пустот изоляции твердой основой лака требуется несколько пропиток с промежуточными сушками после каждой пропитки: от пропитки к пропитке степень заполнения пор и пустот изоляции смолой увеличивается. Поэтому пропитка в лаках является процессом длительным и трудоемким.
Компаунды, в отличие от лаков, практически не имеют в своем составе летучих. Поэтому компаундировка обеспечивает большую монолитность изоляции, а сам процесс пропитки при этом может быть однократным. Таким образом, компаундировка предпочтительнее пропитки лаками. Однако применение компаундировки ограничивает термопластичность компаундов, которые при нагревании переходят в пластическое состояние, т.е. текут. Поэтому якорные обмотки, работающие при сравнительно высоких температурах и находящиеся под действием больших центробежных сил, компаундировать нельзя. Для таких обмоток можно применять только пропитку в лаках, термореактивная основа которых при нагревании необратимо затвердевает.
2.3 Технология пропитки и сушки обмоток тяговых электродвигателей
Технологический процесс пропитки и сушки состоит из следующих основных стадий:
-
очистка детали;
-
сушка перед первой пропиткой (предварительная сушка);
-
пропитка детали;
-
сушка после первой пропитки (промежуточная сушка);
-
сушка перед второй пропиткой (промежуточная сушка);
-
пропитка детали;
-
сушка после второй пропитки (окончательная сушка).
Поступающие в пропитку детали электрических машин должны быть тщательно очищены от пыли, грязи и посторонних включений. Пропитка неочищенной и невысушенной изоляции ухудшает ее качество, так как грязь и влага, оставшиеся в порах изоляции, снижают ее диэлектрические свойства.
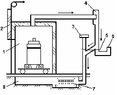
Предварительная и промежуточная сушка пропитываемых обмоток производится обычно в электрических печах с регулируемой пропиточно-вытяжной вентиляцией. Внешний вид электрической печи представлен на рисунке 2.1 [3].
Рисунок 2.1 – Электрическая печь с регулируемой пропиточно-вытяжной вентиляцией: 1 – сушильная камера; 2 – плита; 3 – фильтр; 4 – насос-вентилятор; 5 – заслонка; 6 – выхлопная труба; 7 – электронагревательные элементы; 8 – теплообменник
Печь представляет собой камеру с хорошей теплоизоляцией. Наружный воздух поступает в печь через фильтр и попадает в теплообменник, где прогревается электронагревательными элементами. Подогреваемый воздух поступает в сушильную камеру. Объекты сушки (якоря, остовы двигателей с катушками или отдельные машинные и агрегатные катушки в корзинах) подают сюда на тележке по рельсам через входное отверстие, закрывающееся плитой, подъем и пускание которой осуществляется тросом через систему блоков, не показанных на рисунке. Печь оборудована насосом-вентилятором и системой заслонки, позволяющей создавать в ней пропиточно-вытяжную, замкнутую или смешанную системы циркуляции воздуха. Обычно с целью экономии электрической энергии сушку ведут с замкнутой системой циркуляции воздуха по схеме, показанной на рисунке 2.1. Однако периодически, по мере насыщения объема печи парами воды или растворителя лака, необходимо обновлять воздух. Для этого заслонки в трубах вентиляционной системы устанавливают в положение, показанное на рисунке 2.2 [3].
Рисунок 2.2 – Положение заслонок вентиляционной системы
При этом через фильтр в печь поступает чистый воздух, а отработанный удаляется за пределы цеха через выхлопную трубу. Задача сушки определяется ее назначением. Предварительная сушка в целях интенсификации процесса ведется при температурах, максимально допустимых по условию обугливания изоляции. Сырые обмотки вначале сушат при пониженной температуре во избежание вспучивания изоляции парами воды. Продолжительность сушки зависит от содержания в изоляции влаги, размеров и формы обмоток, состава (структуры) изоляции, скорости циркуляции и кратности обмена воздуха, теплоемкости сердечника (якоря или остова двигателя при сушке катушек в остове) и других факторов. Поэтому в каждом отдельном случае ее подбирают экспериментально и контролируют периодическими замерами сопротивления изоляции и температуры обмотки. По результатам этих замеров строят кривые сушки – зависимости температуры t и сопротивления R изоляции от продолжительности T сушки. Кривые сушки представлены на рисунке 2.3 [3].
Рисунок 2.3 – Кривые сушки
Период сушки состоит из двух этапов [3]:
-
нагрева обмоток, когда температура их постепенно растет до тех пор, пока не достигнет в точке А установившегося значения. На этом этапе сопротивление изоляции обмоток падает и в точке В достигает минимального значения;
-
собственно сушки, при которой сопротивление изоляции постепенно растет, пока не достигнет установившейся величины в точке С. Эта точка определяет момент окончания процесса сушки.
Технология пропитки в лаках оценивается степенью согласованности пропитывающей способности лака (глубиной проникновения его в изоляцию) и его способностью заполнять поры и пустоты твердой основой. При прочих равных условиях лучшей признается технология, обеспечивающая более глубокое проникновение лака в изоляцию при его большей вязкости. Применяют следующие способы пропитки катушек в лаках:
а) окраска кистью или обливание обмоток лаком над противнем. Этот способ пропитки малоэффективен и, как правило, пропиткой считаться не может.
б) пропитка погружением в бак с лаком при атмосферном давлении.
в) пропитка погружением в бак с лаком при атмосферном давлении с последующим повышением давления воздуха (пропитка под давлением). Она производится в автоклавах с герметически закрывающейся крышкой. В автоклав загружают предварительно прогретые обмотки, заливают лаком и затем создают избыточное давление порядка 0,5–0,7 МН/м2 (5–7 кг/см2), что способствует более глубокому проникновению лака в поры и пустоты изоляции, повышая качество и ускоряя процесс пропитки. Основное преимущество пропитки под давлением состоит в том, что она позволяет применять более вязкие лаки, обеспечивая в то же время глубокое проникновение их в изоляцию. Благодаря этому сокращается необходимое число пропиток, так как лак повышенной вязкости обеспечивает более полное заполнение пор и пустот в изоляции твердыми компонентами. Еще больший эффект достигается тренировочным режимом пропитки с чередованием в автоклаве атмосферного и избыточного давлений воздуха.
г) вакуум-нагнетательная пропитка с заливкой катушек лаком под вакуумом и созданием после этого избыточного давления в баке с лаком. Вакуум-нагнетательная пропитка состоит в заливке катушек лаком под вакуумом с созданием после этого в автоклаве избыточного давления. Она является еще более современной, чем пропитка под давлением. Предварительный вакуум обеспечивает почти полное удаление из пор и пустот изоляции всех газовключений. Давление, создаваемое после заливки катушек лаком под вакуумом, обеспечивает принудительное глубокое проникновение лака в изоляцию. Недостаток вакуумной пропитки состоит в том, что она требует сложной установки с автоклавами, вакуум-насосами, конденсаторами и другими устройствами. Часто вакуум-нагнетательную пропитку совмещают с вакуумной сушкой, что приводит к экономии на оборудовании и производительных площадях. В этом случае автоклав дооборудуют паровым, жидкостным или электрическим подогревом.
Промежуточная и окончательная сушка обмоток после пропитки в лаках преследует две цели: удаление из лака растворителей и полимеризацию (твердение) основы лака. В соответствии с этим сушка имеет две стадии. На первой стадии температура обмоток поднимается не выше 70–80 ºС. Эта температура вполне достаточна для удаления летучих, но в то же время не вызывает бурного их испарения, которое может привести к частичному вытеснению лака из пор и капилляров изоляции. Высокую температуру на первой стадии сушки не дают еще и для того, чтобы не допустить образования на поверхности обмотки корки, затрудняющей удаление летучих из глубины изоляции. Сушка производится в тех же печах, что и предварительная сушка обмоток с соблюдением жестких требований вентиляции рабочего объема печи во избежание взрывоопасной концентрации паров растворителя. В первый час сушки вентиляционную систему регулируют так, чтобы весь воздух из камеры печи удалялся наружу. Работа печи с замкнутой циркуляцией при частичном освежении воздуха допускается только при паровых, масляных и герметических электрокалориферах и не ранее чем через час после начала сушки и продувки камеры вентилятором, работающим на выхлоп. Задачей второй стадии сушки является полимеризация смолы, составляющей основу лака. Здесь для получения хорошего качества сушку необходимо производить при температурах, максимально допустимых по условиям теплового разрушения изоляционных материалов: 120–130 ºС – для изоляции класса А, 150–160 ºС – для изоляции класса В и 190–200 ºС – для кремнийорганической изоляции. Повышение температуры способствует и ускорению процесса сушки. Процесс полимеризации лака протекает в присутствии кислорода воздуха, доступ которого должен быть обеспечен.
2.4 Пропитка компаундами
















