10.А И М ГОШ (1171743)
Текст из файла
13
АВТОМАТИЗАЦИЯ И МЕХАНИЗАЦИЯ ПРОЦЕССОВ КОВКИ И ГОРЯЧЕЙ ШТАМПОВКИ
ОСОБЕННОСТИ АВТОМАТИЗАЦИИ
Автоматизация и механизация процессов ковки и горячей штамповки проводится сравнительно медленными темпами и в основном на операциях передачи деталей между оборудованием, уборки поковок и отходов и т. д. Это объясняется некоторыми специфическими особенностями получения поковок. Изготовление поковки является комплексным процессом, для осуществления которого должна быть технологическая связь между заготовительным, штамповочным, очистным и термо обрабатывающим участками. Каждый из этих участков имеет свои технологические особенности.
На заготовительных участках осуществляется резка сортового проката на штучные заготовки сортовыми пресс - ножницами, кривошипными прессами, оснащенными специальными штампами, и др. При автоматизации и комплексной механизации этих агрегатов применяются те же устройства, что и при автоматизации холодной объемной штамповки из непрерывного материала.
Наиболее распространенным и производительным способом разделки проката сечением до 250 ж 250 мм является резка на пресс - ножницах или в специальных штампах. При этом малоуглеродистые и углеродистые конструкционные стали разрезают в холодном, а высокоуглеродистые и легированные стали — в нагретом (до 700 С) состоянии. У длинных заготовок нагреваются только те места, по которым должен быть сделан разрез.
Обычно при автоматизации и механизации заготовительных операций применяются автоматизированные стеллажи или рольганги, подающие устройства, устройства для укладки отрезанных заготовок в тару и др. На рис. 1 дана схема автоматизированного участка рубки высоколегированных сталей (40Х, 4ОХН, Х9С2, 4ХIОС2М и др.) с подогревом до 300—450° С, показывающая однотипность автоматизации процессов рубки заготовок и автоматизированных процессов штамповки из непрерывного материала.
Рис. 1. Схема автоматизированного участка рубки заготовок в специальном штампе
Штанги укладываются на автоматизированный стеллаж 1 со специальным отсекателем 3. Когда конец предшествующей штанги проходит ролики 4 подающего устройства, осуществляется воздействие на специальный конечный выключатель, обеспечивающий включение соответствующего воздухораспределительного клапана. Последний подает воздух в цилиндр 2 и перемещает очередную штангу на линию по дачи. Затем подачей воздуха в цилиндр 9 обеспечивается подвод к штанге клещевого захвата 5, который при обратном движении вводит штангу в зону действия роликов 4.
Для подачи штанги в зону пресса применяется двухклетьевая валковая подача с электрическим приводом 11. Преобразующий механизм состоит из червячного редуктора 10, цепных передач 8 и зубчатых переборов 7. Вращение роликов 4 и 6 - непрерывное. Верхние ролики подпружинены и при достижении штангой переднего упора втулочного штампа 12 проскальзывают относительно штанги. Этим упрощается конструкция и обеспечивается высокая точность подачи (до упора), так как исключается отскок штанги в момент соприкосновения с упором.
Нагрев штанги производится в индукционном нагревателе 13, установленном на пути движения штанги, ориентация ее относительно индуктора - роликами 14.
Участки очистки и термической обработки поковок являются специализированными и расположены обычно в специальных отделениях. Здесь степень механизации и автоматизации довольно высокая.
Формоизменение поковки осуществляется на штамповочном участке, который является основным в технологической цепочке получения поковки. Процесс штамповки должен производиться при заданной температуре и в течение определенного, довольно ограниченного промежутка времени. Это обусловливает тесную технологическую связь на участке между операциями нагрева, собственно штамповки (формоизменения) и обрезки облоя. Сложность этой связи усугубляется еще и тем, что процесс формоизменения может производиться на нескольких видах штамповочного оборудования, например на кривошипном горячештамповочном прессе и горизонтально-ковочной или раскатной машинах, ковочных вальцах и кривошипном горячештамповочном прессе и т. д. Организация труда, обслуживание и автоматизация каждой из перечисленных машин имеет свои особенности.
При ковке и горячей штамповке в качестве исходного материала используется штучная заготовка, как правило, средних и крупных размеров.
Помимо общих трудностей, связанных с автоматизаций процессов штамповки из штучной заготовки, при горячей штамповке возникают еще и дополнительные трудности, обусловленные спецификой этих процессов.
1. Большое тепловыделение заготовками и нагревательными устройствами, требующее разработки специальных мер по защите деталей захватного органа и по сокращению времени соприкосновения захвата с заготовкой.
2. Относительная быстроходность основного технологического оборудования, обусловленная необходимостью снизить продолжительность пребывания нагретых заготовок и поковок непосредственно в инструменте, и связанное с этим возникновение значительных ударных нагрузок.
З. Высокая трудоемкость вспомогательных операций, вызванная необходимостью работы с тяжелыми, горячими заготовками, внешние контуры которых из-за наличия облоя обычно не имеют заранее известных очертаний, а также наличие на одном технологическом агрегате нескольких переходов, требующих различной ориентации.
4. Невозможность за один нагрев обеспечить формоизменение, особенно при свободной ковке, что ведет к нарушению поточности на участке. Каждый новый нагрев, как известно, сопровождается угаром металла и вызывает дополнительную очистку заготовки от окалины перед формообразующими операциями.
Перечисленное в основном объясняет причины несколько замедленных темпов автоматизации процессов горячей штамповки и вместе с тем указывает на огромное ее значение. Здесь уместно заметить, что новые, более прогрессивные технологические процессы легче поддаются автоматизации и комплексной механизации. Например, электрические методы нагрева заготовок под штамповку и процессы штамповки на горячештамповочных прессах и горизонтально-ковочных машинах легче автоматизировать, чем процессы нагрева в пламенных печах и штамповку на молотах. При получении поковок безоблойной штамповкой удается значительно упростить средства автоматизации из-за уменьшения числа операций и отсутствия облоя.
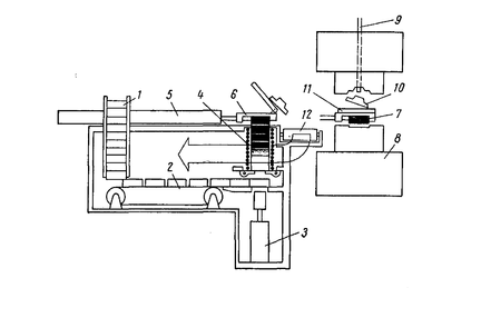
На рис. 2 показана схема организации участка автоматической штамповки, состоящего из индукционного нагревательного устройства 4 с подъемником 3, технологического агрегата 8, ориентирующего устройства типа магазина 1, питающего устройства (транспортера 2), подающего устройства 5, оснащенного клещевым захватом 6, на котором смонтировано сбрасывающее устройство 11, и транспортера 12 для удаления отштампованной детали.
Рис. 2. Схема организации автоматического участка горячей штамповки
Работа средств автоматизации видна из схемы. Отштампованная поковка 10 остается в верхней половине штампа, в котором расположен выталкиватель 9. Когда захват 6 с нагретой заготовкой 7 вводится в рабочую зону машины, поковка 10 выталкивается из штампа на лоток сбрасывающего устройства 11. При возвращении в исходное положение лоток поднимается и поковка сбрасывается на транспортер 12, а в клещи захвата 6 толкатель подъемника З выдает очередную нагретую заготовку.
Рис 3. Схема комплексно-механизированного участка горячей штамповки.
На рис. 3 показана схема механизированной линии, состоящей из индукционного нагревателя 1, кривошипного горячештамповочного пресса З и обрезного пресса 4. Нагретые заготовки к прессу З подаются транспортером 2. Для транспортировки отштампованных изделий к обрезному прессу применяется лоток 5. Лотки 6 используются для удаления поковки и облоя от обрезного пресса.
Рис.4. Комплексно-механизированный участок свободной ковки.
На рис. 4 показан комплексно-механизированный участок
свободной ковки. Здесь для механизации процесса ковки на гидравлическом прессе 2 применен автоматический ковочный манипулятор 4, перемещающийся по рельсовому пути 5, и инструментальный манипулятор 6. Управление прессом 2 и манипулятором 4, удерживающим слиток З в процессе работы, осуществляется оператором с пульта 1.
Структурные схемы автоматизации процессов горячей штамповки, если их рассматривать раздельно относительно того или иного вида оборудования, принципиально ничем не отличаются от структурных схем автоматизации процессов листовой и холодной объемной штамповки из штучной заготовки. Особенности, связанные с автоматизацией горячей штамповки, выявляются лишь при конструировании средств автоматизации и осуществлении связи с машиной. Работа средств автоматизации и технологического оборудования в основном осуществляется по комбинированному или последовательному циклу. Это вызвано быстроходностью горячештамповочного оборудования и большими инерционными массами поковок и средств автоматизации.
АВТОМАТИЗАЦИЯ НАГРЕВА ЗАГОТОВОК
Общие сведения и классификация
Основными операциями, выполняемыми нагревальщиками и их подручными при отсутствии средств автоматизации, являются: захват и подъем заготовки на уровень окна загрузки печи, загрузка заготовок в печь, проталкивание их по поду печи в процессе нагрева, выдача нагретых заготовок из печи и передача их к штамповочному агрегату. Все эти операции, особенно в условиях больших тепловыделений от печи и заготовок, являются очень трудоемкими и требуют большой физического напряжения от обслуживающего персонала. Как правило, при автоматизации и механизации нагревательных устройств, помимо увеличения производительности, удается также значительно повысить качество нагрева в результате обеспечения постоянства темпа выдачи.
На автоматизированные участки необходимо устанавливать современные механизированные печи: с вращающимся и подвижным подом и т. д. Возможности автоматизации значительно расширяются при применении индукционных нагревателей, позволяющих осуществить быстрый нагрев и создать рациональную схему организации процесса штамповки (см. рис. 2).
При применении механизированных печей и индукционных нагревателей при автоматизации процесса нагрева приходится решать лишь вопросы загрузки заготовок в печь, выдачи нагретых заготовок и транспортировки их к прессу.
Средства автоматизации, применяемые для операций загрузки и выгрузки, могут быть разделены на две группы: толкающие и выносящие. Первые используются только для загрузки и выгрузки нагревательных установок; вторые обычно еще выполняют и операции транспортировки нагретых заготовок к подающим устройствам пресса или молота. К толкающим устройствам от носятся различные шиберные и планочные автоматические подачи с пневматическим и электрическим приводами, а также различные крючковые приспособления малой механизации, к выносящим - посадочные машины, различные механизированные клещи и транспортеры. При применении клещей и других средств малой механизации обычно используются универсальные подъемно -транспортные средства, расположенные в цехе: мостовые и поворотные краны, монорельсовые пути и др.
Толкающие подающие устройства
Автоматизация и механизация процессов загрузки и выгрузки нагревательных устройств легче и надежнее осуществляются при использовании толкающих подающих устройств. В качестве привода в этих устройствах применяются пневматические цилиндры с рычажной или непосредственной связью с захватным органом (без преобразующего механизма). Наибольшее распространение толкающие устройства шиберного и планочного типа получили в механизированных печах ( методических и др.), а также в печах скоростного нагрева (индукционных, газовых).
Толкающие устройства крючкового типа чаще применяются при выгрузке заготовок на участках свободной ковки.
Применение толкающих автоматических устройств для операций загрузки и выгрузки обычно связано с использованием ориентирующих устройств, для заготовок диаметром до 50 мм применяются автоматические бункерные ориентирующие устройства:
Характеристики
Тип файла документ
Документы такого типа открываются такими программами, как Microsoft Office Word на компьютерах Windows, Apple Pages на компьютерах Mac, Open Office - бесплатная альтернатива на различных платформах, в том числе Linux. Наиболее простым и современным решением будут Google документы, так как открываются онлайн без скачивания прямо в браузере на любой платформе. Существуют российские качественные аналоги, например от Яндекса.
Будьте внимательны на мобильных устройствах, так как там используются упрощённый функционал даже в официальном приложении от Microsoft, поэтому для просмотра скачивайте PDF-версию. А если нужно редактировать файл, то используйте оригинальный файл.
Файлы такого типа обычно разбиты на страницы, а текст может быть форматированным (жирный, курсив, выбор шрифта, таблицы и т.п.), а также в него можно добавлять изображения. Формат идеально подходит для рефератов, докладов и РПЗ курсовых проектов, которые необходимо распечатать. Кстати перед печатью также сохраняйте файл в PDF, так как принтер может начудить со шрифтами.
















