Диплом ПЗ (1051941), страница 14
Текст из файла (страница 14)
Вариант №1
1) Разработка конструкции промежуточной опоры
Назначение размеров опор принимаем исходя из размеров опорных частей и зазора между пролетными строениями. Определение размеров производится для опоры №3 на которую опираются две металлические фермы lр=264 м Схема для определения размеров промежуточной опоры приведена на рисунке7.
Рисунок В.1 – Схема для определения размеров промежуточной опоры
Минимальный размер подферменной плиты вдоль моста определяется по формуле:
(В.1)
где С– расстояние между осями опорных частей, опирающихся на опору пролётных строений;
а1, а2 – размеры опорных частей (вдоль оси моста) левого и правого пролётных строений;
С1 – расстояние от края опорной части до края подферменной площадки;
С2– расстояние от грани подферменника до края подферменной плиты.
Величину
подсчитывают по формуле:
(В.2)
где lп1, lп2 – соответственно полная длина левого и правого пролётных строений;
lр1, lр2 – расчётный пролёт левого и правого пролётных строений lп1=lп2=265.14, lр=lр2=264 м;
е – расстояние между торцами пролётных строений, определяется по формуле:
(В.3)
где:
- коэффициент температурного расширения (принимаемый
);
Lп,Lр – полная и расчетная длины пролёта;
E – модуль упругости стали;
P и V – интенсивности постоянной и временной нагрузок;
Δt- расчётный температурный перепад (Δt=92°C);
- коэффициент, зависящий от вида соединения (
- для болтосварных ферм).
Минимальную ширину подферменной плиты (поперек оси моста) рассчитываем по формуле:
(В.4)
где
– расстояние между осями опирания пролётного строения;
– ширина опорной части (поперек оси моста);
– то же, что и в формуле 2.4;
– расстояние от грани подферменника до края подферменной плиты.
По указанным выше формулам определим минимальные размеры опоры
;
.
В связи с мощным ледоходом на реке (расчетная толщина льда 1.1 м, площадь льдин более 5 м2) для моста целесообразно применение сборно-монолитных опор способных выдержать ледовые нагрузки.
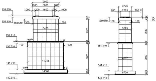
Тело опоры сборно-монолитное, выполнение из сборных блоков, разделенных горизонтальными и вертикальными швами с учетом требований типового проекта серии 3.501.1 – 150, ЛГТМ, 1990 г. Заполнение тела опоры – монолитный бетон. Конструкция промежуточной опоры приведена на рисунке 8.
Рисунок В.2 – Конструкция промежуточной опоры №3
2) Выбор типа фундамента
В связи с мощным ледоходом целесообразно устройство фундаментов на буронабивных столбах с низким монолитным ростверком.
В 1-ом варианте фундамент с низким монолитным ростверком на буронабивных столбах диаметром 1.5 м. Количество столбов – 18 шт. Глубина погружения 21 м с заглубление в песок средней крупности на 2 м. Основание служит песок средней крупности малой степени водонасыщения , плотный.
3) Подбор пролетных строений удовлетворяющих отверстию моста:
Схема моста 33.6+3х(2х132)+88+33.6 м. Полная длина моста составляет Lп=965.23 м. Мост расположен на прямой в плане и профиле. Судоходный габарит соответствует III классу судоходства.
Количество пролетов определяется исходя из условия обеспечения заданного отверстия моста L0=865 м.
Определение фактического отверстия моста:
(В.5)
Анализ результатов
(В.6)
Если
отличается от заданного отверстия более чем на минус 3 или плюс 5 %, то следует рассмотреть варианты схемы моста с протеными строениями другой длины.
(В.7)
1.5%<5%, значит количество и длина пролетов подобраны верно.
Вариант №2
1) Разработка конструкции промежуточной опоры
Назначение размеров опор принимаем исходя из размеров опорных частей и зазора между пролетными строениями. Определение размеров производится для опоры №3 на которую опираются две металлические фермы lр=110 м Схема для определения размеров промежуточной опоры приведена на рисунке 9.
Рисунок В.3 – Схема для определения размеров промежуточной опоры
Величину amin подсчитываем по формуле В.1:
.
Величину С подсчитываем по формуле В.2:
.
Величину е подсчитываем по формуле В.3:
Необходимую ширину подферменной плиты (размер поперек оси моста) подсчитывается по формуле В.4.
.
В связи с мощным ледоходом на реке (расчетная толщина льда 1.1 м, площадь льдин более 5 м2) для моста целесообразно применение сборно-монолитных опор способных выдержать ледовые нагрузки.
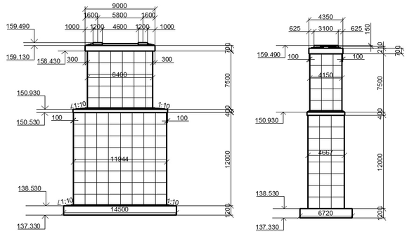
Тело опоры сборно-монолитное, выполнение из сборных блоков, разделенных горизонтальными и вертикальными швами с учетом требований типового проекта серии 3.501.1 – 150, ЛГТМ, 1990 г. Заполнение тела опоры – монолитный бетон. Конструкция промежуточной опоры приведена на рисунке 10.
Рисунок В.4 – Конструкция промежуточной опоры под пролетные строения Lр=110м
2) Подбор пролетных строений удовлетворяющих отверстию моста:
Схема моста 2х110+2х(2х132)+2х110. Полная длина моста составляет Lп=981.63 м. Мост расположен на прямой в плане и профиле. Судоходный габарит соответствует III классу судоходства.
Количество пролетов определяется исходя из условия обеспечения заданного отверстия моста L0=865 м.
Определение фактического отверстия моста:
(В.7)
Анализ результатов
(В.8)
Если
отличается от заданного отверстия более чем на минус 3 или плюс 5 %, то следует рассмотреть варианты схемы моста с протеными строениями другой длины.
(В.9)
0.6%<3%, значит количество и длина пролетов подобраны верно.
Вариант №3
1) Разработка конструкции промежуточной опоры
Назначение размеров опор принимаем исходя из размеров опорных частей и зазора между пролетными строениями. Определение размеров производится для опоры №6 на которую опираются две металлические фермы lр=110 м Схема для определения размеров промежуточной опоры приведена на рисунке 9.
Рисунок В.5 – Схема для определения размеров промежуточной опоры
Величину аmin подсчитываем по формуле В.1:
Величину
подсчитывают по формуле В.2:
Величине е подсчитываем по формуле В.3:
Необходимую ширину подферменной плиты (размер поперек оси моста) подсчитывается по формуле В.4:
В связи с мощным ледоходом на реке (расчетная толщина льда 1.1 м, площадь льдин более 5 м2) для моста целесообразно применение сборно-монолитных опор способных выдержать ледовые нагрузки.
Тело опоры сборно-монолитное, выполнение из сборных блоков, разделенных горизонтальными и вертикальными швами с учетом требований типового проекта серии 3.501.1 – 150, ЛГТМ, 1990 г. Заполнение тела опоры – монолитный бетон. Конструкция промежуточной опоры приведена на рисунке 10.
Рисунок В.6 – Конструкция промежуточной опоры под пролетные строения Lр=110м
2) Подбор пролетных строений удовлетворяющих отверстию моста:
Схема моста 33.6+2х110+2х132+4х110 м. Полная длина моста составляет Lп=1012.78м. Мост расположен на прямой в плане и профиле. Судоходный габарит соответствует III классу судоходства.
Количество пролетов определяется исходя из условия обеспечения заданного отверстия моста L0=865 м.
Определение фактического отверстия моста:
(В.10)
Анализ результатов
(В.12)
Если
отличается от заданного отверстия более чем на минус 3 или плюс 5 %, то следует рассмотреть варианты схемы моста с пролетными строениями другой длины.
(В.11)
0.6%<5%, значит количество и длина пролетов подобраны верно.
Вариант №4
1) Разработка конструкции промежуточной опоры
Назначение размеров опор принимаем исходя из размеров опорных частей и зазора между пролетными строениями. Определение размеров производится для опоры №6 на которую опираются две металлические фермы lр=2х110 м Схема для определения размеров промежуточной опоры приведена на рисунке 9.
Рисунок В.7 – Схема для определения размеров промежуточной опоры
Величину аmin подсчитываем по формуле В.1:
Величину
подсчитывают по формуле В.2:
Величине е подсчитываем по формуле В.3:
Необходимую ширину подферменной плиты (размер поперек оси моста) подсчитывается по формуле В.4:
В связи с мощным ледоходом на реке (расчетная толщина льда 1.1 м, площадь льдин более 5 м2) для моста целесообразно применение сборно-монолитных опор способных выдержать ледовые нагрузки.
Тело опоры сборно-монолитное, выполнение из сборных блоков, разделенных горизонтальными и вертикальными швами с учетом требований типового проекта серии 3.501.1 – 150, ЛГТМ, 1990 г. Заполнение тела опоры – монолитный бетон. Конструкция промежуточной опоры приведена на рисунке 10.
Рисунок В.8 – Конструкция промежуточной опоры под пролетные строения Lр=110м
2) Подбор пролетных строений удовлетворяющих отверстию моста:
Схема моста 33.6+(2х110)+(2х132)+2х(2х110) м. Полная длина моста составляет Lп=1012.78м. Мост расположен на прямой в плане и профиле. Судоходный габарит соответствует III классу судоходства.
Количество пролетов определяется исходя из условия обеспечения заданного отверстия моста L0=865 м.
Определение фактического отверстия моста:
(В.12)















