Диплом ПЗ (1051941), страница 15
Текст из файла (страница 15)
Анализ результатов
(В.13)
Если
отличается от заданного отверстия более чем на минус 3 или плюс 5 %, то следует рассмотреть варианты схемы моста с протеными строениями другой длины.
(В.14)
0.6%<5%, значит количество и длина пролетов подобраны верно.
Вариант №5
1) Разработка конструкции промежуточной опоры
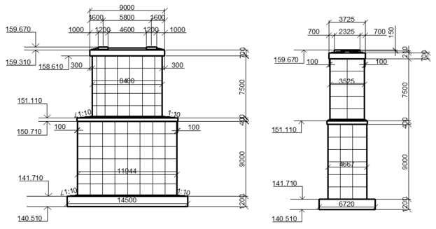
Назначение размеров опор принимаем исходя из размеров опорных частей и зазора между пролетными строениями. Определение размеров производится для опоры №1 на которую опираются две металлические фермы lр=88 м Схема для определения размеров промежуточной опоры приведена на рисунке 9.
Рисунок В.9 – Схема для определения размеров промежуточной опоры
Величину amin подсчитываем по формуле В.1:
.
Величину С подсчитывают по формуле В.2:
.
Величину е подсчитываем по формуле В.3:
.
Необходимую ширину подферменной плиты (размер поперек оси моста) подсчитывается по формуле В.4:
.
В связи с мощным ледоходом на реке (расчетная толщина льда 1.1 м, площадь льдин более 5 м2) для моста целесообразно применение сборно-монолитных опор способных выдержать ледовые нагрузки.
Тело опоры сборно-монолитное, выполнение из сборных блоков, разделенных горизонтальными и вертикальными швами с учетом требований типового проекта серии 3.501.1 – 150, ЛГТМ, 1990 г. Заполнение тела опоры – монолитный бетон. Конструкция промежуточной опоры приведена на рисунке 10.
Рисунок В.10 – Конструкция промежуточной опоры под пролетные строения Lр=88м
2) Подбор пролетных строений удовлетворяющих отверстию моста:
Схема моста 2х88+2х(2х132)+3х88 м. Полная длина моста составляет Lп=990.14м. Мост расположен на прямой в плане и профиле. Судоходный габарит соответствует III классу судоходства.
Количество пролетов определяется исходя из условия обеспечения заданного отверстия моста L0=865 м.
Определение фактического отверстия моста:
(В.15)
Анализ результатов
(В.16)
Если
отличается от заданного отверстия более чем на минус 3 или плюс 5 %, то следует рассмотреть варианты схемы моста с протеными строениями другой длины.
(В.17)
0.9%<5%, значит количество и длина пролетов подобраны верно.
Вариант №6
1) Разработка конструкции промежуточной опоры
Назначение размеров опор принимаем исходя из размеров опорных частей и зазора между пролетными строениями. Определение размеров производится для опоры №2 на которую опираются две металлические фермы lр=88 м Схема для определения размеров промежуточной опоры приведена на рисунке 9.
Рисунок В.11 – Схема для определения размеров промежуточной опоры
Величину amin подсчитываем по формуле В.1:
.
Величину С подсчитывают по формуле В.2:
.
Величину С подсчитывают по формуле В.3:
Необходимую ширину подферменной плиты (размер поперек оси моста) подсчитывается по формуле В.4:
.
В связи с мощным ледоходом на реке (расчетная толщина льда 1.1 м, площадь льдин более 5 м2) для моста целесообразно применение сборно-монолитных опор способных выдержать ледовые нагрузки.
Тело опоры сборно-монолитное, выполнение из сборных блоков, разделенных горизонтальными и вертикальными швами с учетом требований типового проекта серии 3.501.1 – 150, ЛГТМ, 1990 г. Заполнение тела опоры – монолитный бетон. Конструкция промежуточной опоры приведена на рисунке 10.
Рисунок В.12 – Конструкция промежуточной опоры под пролетные строения Lр=88м
2) Подбор пролетных строений удовлетворяющих отверстию моста:
Схема моста 33.6+2х88+(2х132)+5х88+33.6м. Полная длина моста составляет Lп=969.95м. Мост расположен на прямой в плане и профиле. Судоходный габарит соответствует III классу судоходства.
Количество пролетов определяется исходя из условия обеспечения заданного отверстия моста L0=865 м.
Определение фактического отверстия моста:
(В.18)
Анализ результатов
(В.19)
Если
отличается от заданного отверстия более чем на минус 3 или плюс 5 %, то следует рассмотреть варианты схемы моста с протеными строениями другой длины.
(В.20)
0.9%<5%, значит количество и длина пролетов подобраны верно.
Приложение Г
Эскизный расчет фундамента опоры
Определение глубины заложения столбов
Вариант 1
Определение глубины заложения столбов для промежуточной опоры №3
При определении глубины погружения столбов, необходимо учитывать, что при определение несущей способности столба по грунту величина погружения отсчитывается от линии местного размыва, причем она должна быть не менее 4 м.
Принимается 18 столбов диаметром 1,5 м, длиной 21 м.
Для правильно запроектированного столбчатого фундамента должно выполняться условие:
(Г.1)
где
- вертикальная нагрузка в уровне подошвы фундамента;
- количество столбов;
- вес одного столба;
- расчетная несущая способность столба по грунту;
- коэффициент надежности, принимаемый для фундамента с низким ростверком.
Схема для эскизного расчета промежуточной опоры приведена на рисунке 1.
Рисунок Г.1 – Схема для эскизного расчета промежуточной опоры
Вертикальная нагрузка в уровне подошвы фундамента определиться по формуле:
(Г.2)
где
- коэффициент, учитывающий действие изгибающего момента, принимаемый для промежуточной опоры;
- расчетная нагрузка в уровне обреза фундамента.
Расчетная нагрузка в уровне обреза фундамента определится по формуле:
(Г.3)
где
- постоянная нагрузка от веса мостового полотна и пролетных строений;
- временная вертикальная железнодорожная нагрузка С14;
- нагрузка от веса тела опоры.
Нормативная временная вертикальная нагрузка определяется по формуле:
(Г.4)
где
– площадь линии влияния;
– коэффициент надежности по нагрузке по временной нагрузке (п 6.23[2])
– интенсивность временной нагрузки равная 137.3 кН/м, прил.К [2];
μ – динамический коэффициент, принимаемый
но не менее 1,15;
Постоянная нагрузка от веса мостового полотна и пролетных строений определится по формуле:
(Г.5)
где 0,5 - коэффициент, учитывающий распределение нагрузки от веса пролетного строения на две опоры;
- коэффициент надежности по нагрузке к постоянной нагрузке;
- нагрузка от веса пролетного строения
;
- нагрузка от веса мостового полотна.
Нагрузка от веса тела опоры определится по формуле:
(Г.6)
где
- коэффициент надежности по нагрузке к нагрузке от веса тела опоры;
- объем тела опоры;
- удельный вес материала тела опоры;
- ускорение свободного падения.
Расчетная нагрузка в уровне обреза фундамента:
Вертикальная нагрузка в уровне подошвы фундамента:
Нагрузка от веса одного столба определится по формуле:
(Г.7)
где
- диаметр столба;
- высота столба;
- удельный вес материала столба.
Расчетная несущая способность столба по грунту определится по формуле:
(Г.8)
где
- коэффициент условий работы столба в грунте;
- коэффициент условий работы грунта под нижним концом столба, принимаемы по табл. 7.3 [4];
- расчетное сопротивление грунта под нижним концом столба, принимаемое по табл. 7.1 [4];
- площадь опирания столба;
- коэффициент условий работы грунта по боковой поверхности столба, зависящий от способа образования скважины и условий бетонирования, принимаемый по табл. 7.6 [4];
- наружный периметр столба;
- расчетное сопротивление i - го слоя грунта по боковой поверхности, принимаемое по табл. 7.2 [4];
- толщина i - го слоя грунта, соприкасающегося с боковой поверхностью столба.
Условие выполняется (запас 3 %)
Расчет фундамент остальных опор произведен аналогично приведенному примеру, результаты расчетов приведены в таблице № Г.1.
Таблица Г.1 – Итоговые результаты вычислений для Варинта№1
| № опоры | 0 | 1 | 2 | 3 | 4 | 5 | 6 | 7 | 8 | 9 |
| Глубина заложения, м | 17 | 17 | 21 | 21 | 21 | 21 | 21 | 24 | 18 | 17 |
| Длина столба, м | 17 | 17 | 21 | 25.6 | 24.5 | 21 | 21.7 | 24.5 | 19.3 | 17 |
| Количество столбов, шт | 6 | 12 | 18 | 18 | 18 | 18 | 18 | 12 | 12 | 6 |
Вариант 2
Определение глубины заложения столбов для промежуточной опоры №4.
Принимается 18 столбов диаметром 1,5 м, длиной 23 м.
Рисунок Г.2 – Схема для эскизного расчета промежуточной опоры
Нормативная временная вертикальная нагрузка определяется по формуле Г.4:
Постоянная нагрузка от веса мостового полотна и пролетных строений определится по формуле Г.5:
- нагрузка от веса пролетного строения
;
















