ПЗ Пташкограй А.И. (1229904), страница 4
Текст из файла (страница 4)
2.1 Назначение, условия работы и краткая характеристика испытательной станции СЛД-90 Приморское
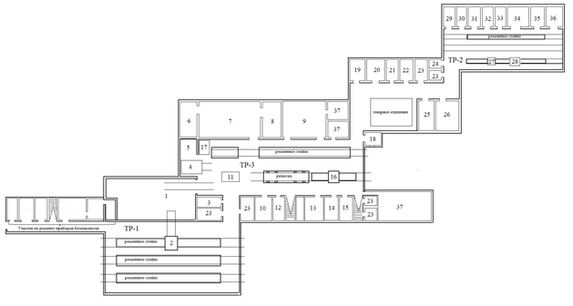
Испытательная станция предназначен для проведения приёмо-сдаточных испытаний тяговых электродвигателей и других вспомогательных электрических машин. Станция входит в состав электромашинного участка (рисунок 2.1).
Рисунок 2.1 – План-схема размещения ремонтных участков и бытовых помещений в СЛД-90 Приморское: 1 – тележечный участок; 2 – участок выкатки КМБ; 3 – участок хранения смазочных материалов; 4 – моечная машина; 5 – отделение оператора моечной машины; 6 – пропиточно-сушильное отделение; 7 – электромашинный участок; 8 – испытательная станция; 9 – колёсно-роликовый участок; 10 – зал планёрных совещаний; 11 – участок разборки, сборки КМБ; 12 – кабинет заместителя начальника депо по ремонту; 13 – участок по ремонту ВИП; 14 – компрессорная; 15 – участок по ремонту аккумуляторных батарей; 16 – станок обточки колёсных пар А.41; 17 – участок проверки ТТ; 18 – сварочное отделение; 19 – кладовая; 20 – электро-аппаратный участок; 21 – кузница; 22 – участок изготовления резина-технических изделий; 23 – бытовые и складские помещения; 24 – участок проверки огнетушителей; 25 – участок по ремонту автотормозного оборудования; 26 – столовая; 27 – станок плазменного упрочнения КП; 28 – станок обточки КП ТК941ФЗ; 29 – компрессорная; 30 – участок упрочнения и восстановления деталей; 31 – плотницкая; 32 – шерстемоечное отделение; 33 – участок по ремонту ЭКГ и ВОВ; 34 – участок по ремонту механического оборудования депо; 35 – инструментальное отделение; 36 – участок по ремонту электронной аппаратуры; 37 – душевая
В СЛД-90 Приморское на базе испытательной станции производятся стендовые испытания тяговых электродвигателей и других электрических машин после ремонта. Комплекс проводимых испытаний и контролируемых параметров ограничен технологической оснащенностью станции. Так в качестве стенда для испытаний как вспомогательных электрических машин, так и ТЭД, применяется стенд испытания вспомогательных электрических машин, сами испытания проводятся на холостом ходу. При этом проверяют сопротивление изоляции обмоток якорей, катушек компенсационной обмотки, главных и добавочных полюсов, отсутствие междувитковых замыканий, обрывов секций обмоток, электрическую прочность, правильность установки нейтрали (при необходимости) и зону безыскровой коммутации (при необходимости), виброаккустическая диагностика элементов качения. Для проверки электрической прочности изоляции на испытательной станции имеется пробивная установка. Испытания электрических машин под нагрузкой не выполняются ввиду неисправности стенда испытания ТЭД. Данная ситуация обусловлена рядом причин, во-первых, ряд оборудования выведен из эксплуатации, ввиду неисправности и разукомплектованности, во-вторых, все имеющееся оборудование эксплуатируется с 60-х годов прошлого века и технически устарело, в-третьих - технически, финансирование на модернизацию оборудования испытательной станции электрических машин не осуществлялось продолжительный период времени и в перспективе не планируется.
Учитывая данные обстоятельства качество проведения испытаний оставляют желать лучшего, при этом динамика роста выхода из строя электрических машин, по мере увеличения срока службы в эксплуатации, только увеличивается с каждым годом. На этом фоне целесообразно проведение полноценных и качественных испытаний электрических машин тягового подвижного состава, что позволило бы, за счёт своевременного выявления слабых участков в устройстве электрических машин и прогнозирования развития неисправностей, влияющих на эксплуатационные характеристики на ранней стадии, проводить более качественный ремонт, направленный на устранение выявленных недостатков в процессе проведенных испытаний. На сегодняшний день проводимые испытания носят абсолютно формальный характер, направленный на подтверждение уже установленной неисправности, за исключением виброаккустической диагностики направленной на выявление дефектов элементов вращения, таких как вибрация якоря, повреждения МЯП и т.п.
2.2 Технологическое оборудование и оснастка испытательной станции
Испытательная станция электрических машин оборудована четырьмя стендами, два из которых предназначены для приёмо-сдаточных испытаний вспомогательных электрических машин, два для испытания тяговых электродвигателей, один из которых для испытания ТЭД электропоездов и тепловозов, второй – электровозов в режиме тяга и рекуперация. Эксплуатируется один стенд испытания вспомогательных машин, на котором также испытываются ТЭД в холостом режиме.
Всё оборудование станции технически устарело и не позволяет в большинстве случаев произвести качественных испытания, помимо этого имеет большие габариты, низкую энергоэффективность и систематически выходит из строя. Как результат требуется постоянный технический контроль со стороны вспомогательных рабочих обслуживающих оборудование станции, а также повышенного контроля за исправным состоянием со стороны электромеханика, в процессе эксплуатации данного оборудования.
В таблице 2.1 приведен список оборудования и оснастки имеющегося на испытательной станции СЛД-90 Приморское.
Таблица 2.1 – Технологическое оборудование и оснастка испытательной станции СЛД-90 Приморское
| Наименование оборудования | Технологическая операция | Состояние |
| 1 | 2 | 3 |
| Электромашинный участок | ||
| Стенд для испытания ТЭД электровозов | Испытания ТЭД под нагрузкой и в режиме рекуперации | Не эксплуатируется (неисправен, списан) |
| Стенд для испытания ТЭД тепловозов. | Испытания ТЭД. | Не эксплуатируется (неисправен, списан) |
| Комплекс оперативной вибродиагностики «ПРОГНОЗ-1» | Проверка ТЭД на холостом ходу и определение состояния МЯП | Эксплуатируется |
| Стенд испытания электрической прочности А97.06 | Испытание на электрическую прочность изоляции электрической части эл. машин | Эксплуатируется (технически устарела, 1966г.) |
| Мегаомметр М6-ЖТ | Измерение сопротивления изоляции | Исправен, поверен |
| Устройство для контроля изоляции электрических машин «КЕДР» | Диагностика состояния изоляции | Не эксплуатируется, неисправен |
| Система контроля и диагностики СКД «Доктор-030M» ОАО «НИИТКД» г. Омск | Контроль и диагностика изоляции электрооборудования, индуктивности электромагнитных систем, а также контроль состояния и определения объёма требуемого ремонта электрических машин, выявления их неисправных узлов | Эксплуатируется (не поверен) |
| Виброанализатор СД-12М (Комплекс Вектор 2000) | Измерение, сбор и анализ параметров вибрации в целях мониторинга и диагностики технического состояния элементов качения эл. машин | Эксплуатируется. |
Окончание таблицы 2.1
| Регулятор напряжения АК103-4М | Регулировка напряжения, подаваемого на зажимы эл. машины, для регулировки числа оборотов | Эксплуатируется (технически устарел, 1968 г.) |
| Высоковольтная камера стенда испытания ТЭД | Установка рабочих параметров в ходе испытания ТЭД на стенде | Не эксплуатируется (устарела, разукомплектована) |
| Распределительный щит А514.02 | Подключение оборудования станции к источнику питания | Эксплуатируется (устарел, 1964 г.) |
| Пульт управления стенда испытания ТЭД | Задача и регулировка и контроль параметров испытания | Не эксплуатируется (списан) |
| Пульт управления стенда испытания вспомогательных машин А514.05 | Задача и регулировка и контроль параметров испытания | Эксплуатируется (частично неисправен, технически устарел, 1964 г.) |
| Стенд испытания вспомогательных электрических машин | Испытание электрических машин | Один стенд эксплуатируется, второй нет (списан, неисправна система управления) |
| Электродвигатели фазного тока Ак114БМ, АК101-4М, 1-79, Ак72-4, генератор СМГ-2 П15ВК | Оборудование регулировки режимов работы стенда испытания ТЭД | Не эксплуатируется (списан, установлено в 60-х годах прошлого века) |
| Инфракрасный термометр «Кельвин» | Контроль температуры | Исправен, в эксплуатации |
Как видно из таблицы 2.1 перечень оборудования испытательной станции не соответствует регламенту технологической оснащённости. Большинство оборудования не эксплуатируется, применение остального оборудования приводит к нарушению технологии ремонта ТЭД ввиду несоответствия эксплуатационных характеристик, так как технически устарело. Стоит также отметить, что для соблюдения технологии ремонта участок не оснащен в полной степени оборудованием в соответствии с ТИ752 и Регламентом метрологической оснащённости ПКБ ЦТ.46.0006, в результате, реализация всех предусмотренных ГОСТ 2582- 2013, ГОСТ 11828-86 и правилами ремонта испытаний электрических машин невозможна.
2.3 Программа ремонта (испытаний) испытательной станции
На сегодняшний день программа испытания электрических машин состоит из приемочных испытаний электрических машин, поступивших в депо после ремонта в условиях завода, а также приёмо-сдаточных испытаний после ремонта в условиях депо. Программу испытаний электрических машин прогнозируем исходя из статистических данных испытаний прошлых двух лет, поступивших в депо после проведения ремонта на заводе и отремонтированных в условиях электромашинного участка депо. Так за период двух лет 2015, 2016 годов произведены испытания 127-ми ТЭД НБ-514Б и 159-ть вспомогательных электрических машин, с учетом проведения приёмочных испытаний. В среднем в год производятся испытания 65-ти ТЭД и 80-ти вспомогательных электрических машин. Стоит отметить, по результатам виброаккустической диагностики, в ходе проведения приёмочных испытаний электрических машин, поступивших в депо после ремонта в условиях завода, было забраковано три ТЭД НБ-514 и двенадцать НВА-55, причиной образования дефектов подшипниковых узлов возможно по двум причинам, во-первых, неудовлетворительная транспортировка, во-вторых, некачественный ремонт.
2.4 Организация проведения испытаний электрических машин в сервисном локомотивном депо Приморское, с учётом имеющегося оборудования
2.4.1 Анализ конструкции тягового электродвигателя НБ-514Б
Электродвигатель пульсирующего тока НБ-514 предназначен для преобразования электрической энергии, получаемой из контактной сети, в механическую, передаваемую с вала двигателя на колесную пару электровоза [1, 17].
Основные технические данные тягового электродвигателя НБ-514Б приведены в таблице 2.2.
Вид климатического исполнения двигателя – У1 в соответствии с ГОСТ 15150.
Таблица 2.2 – Основные технические данные тяговых двигателей НБ-514Б
| Наименование показателя | Значение | |
| 1 | 2 | |
| Номинальный режим работы | Часовой | Продолжительный |
| Номинальная мощность, кВт | 820 | 765 |
| Напряжение на коллекторе, В | 1000 | |
| Номинальный ток якоря, А | - | - |
| Частота вращения якоря, об/мин | 870 | 810 |
| КПД, % | 94,55 | 94,7 |
| Расход вентилирующего воздуха при полном напоре 620 Па, м3/мин, не менее | 70 | |
| Класс изоляции: якорь/остов | F/F | |
| Сопротивление обмоток постоянному току при температуре плюс 20 ̊С, Ом: - якоря - главных полюсов (без шунта) - компенсационной и добавочных полюсов | 0,0112±0,00056 0,0069±0,000345 0,0125±0,000625 | |
| Масса двигателя НБ-514Б (без зубчатой передачи), кг | 4300 | |
| Масса двигателя НБ-514Е (без зубчатой передачи), кг | 4310 | |
Тяговый двигатель (рисунок 2.2) выполнен для опорно-осевого подвешивания и представляет собой шестиполюсную компенсированную электрическую машину пульсирующего тока, работающую в режиме тяги как двигатель с последовательным возбуждением, а в режиме электрического рекуперативного торможения – как генератор с независимым регулируемым возбуждением, и независимой системой вентиляции. Охлаждающий воздух поступает в тяговый двигатель со стороны коллектора через вентиляционный люк и выходит из двигателя со стороны, противоположной коллектору, вверх под кузов электровоза через специальный кожух.















