ПЗ Пташкограй А.И. (1229904), страница 8
Текст из файла (страница 8)
Штат работников испытательной станции составляют два электромеханика пятого разряда, входящие в штат участка неразрушающего контроля и диагностики, работающие по сменному графику два дня через два при 12-ти часовом рабочем дне. В период отпуска одного из электромехаников испытательной станции или прочих производственных необходимостях из штата участка неразрушающего контроля и диагностики переводится свободный электромеханик, с целью бесперебойной работы испытательной станции.
Учитывая технологическую оснащённость и состояние оборудования испытательной станции следует учитывать потребность в вспомогательных рабочих для проведения технического обслуживания и ремонта оборудования. Штат вспомогательных рабочих состоит из ремонтного персонала участка ремонтно-заготовительного участка. Степень износа оборудования обуславливает систематический ремонт, тем самым в среднем необходим один работник из числа вспомогательных рабочих осуществляющий поддержание в исправном состоянии оборудование участка.
Для своевременной актуализации технологических процессов ремонта ТЭД в штате ИТР задействован технолог, систематически корректирующий технологическую документацию, контроль соблюдения технологии испытаний осуществляет мастер из в штат участка неразрушающего контроля и диагностики.
Общий штат работников электромашинного участка сводим в таблицу 2.7.
Таблица 2.7 – Штат работников электромашинного участка
| Штат основных рабочих Rпр, чел. | Штат вспомогательных рабочих, чел. | Штат ИТР, чел. |
| 3 | 1 | 2 |
В таблице 2.8 приведён расчётный фонд заработной платы работников.
Таблица 2.8 – Фонд заработной платы
| Наименование профессии | Количество рабочих, шт. | Часовая тариф. ставка в руб. | Должностной оклад по ТСР в месяц, руб. | Доплаты | Годовой фонд заработной платы “Ф”, руб. | ||
| Премии, %/руб. | Выплаты стим. допл %/руб. | Региональное регулирование. %/руб. | |||||
| 1 | 2 | 3 | 4 | 5 | 6 | 7 | 8 |
| Электромеханик | 3 | 98,23 | 48329,16 | 30/ 14498,75 | 45/ 21748,12 | 30/ 14498,75 | 1188897,36 |
| Вспомогательный персонал | |||||||
| 5 разряда | 1 | 88,9 | 14579,6 | 30/4373,88 | 35/5102,86 | 30/4373,88 | 341162,64 |
| ИТР | |||||||
| Технолог | 1 | 24600 | 30/7380 | 45/11070 | 30/7380 | 605160 | |
| Мастер | 1 | 33206 | 30/9962 | 45/14942,7 | 30/9962 | 816872,4 | |
Месячный должностной оклад по тарифной ставке рассчитан с учётом 164 часовом трудовой деятельности за месяц. Выплаты в соответствии с столбцами 4, 5, 6, 7 таблицы 2.6 рассчитаны из условия суммарных выплат по каждой статье всех работников по каждой профессии.
2.4.5 Карта организации рабочего места электромеханика испытательной станции
Рабочее место – это ограниченный в пространстве участок производственной площади с расположенными на нем технологическим, вспомогательным и подъемно-транспортным оборудованием и устройствами, технологической оснасткой и инвентарем, необходимыми для выполнения производственного задания [21].
Карта организации труда – форма системного проекта организации труда, разработанная для определенного исполнителя на основе предварительного инженерного, экономического, санитарно-гигиенического, психофизического и других исследований и расчетов.
Карты организации рабочих мест разрабатывают с целью рационализации рабочих мест основного производственного персонала. В них систематизируют основные нормативные материалы, позволяющие рационально организовать рабочие места основных категорий работников предприятия. Карты могут использоваться с целью проведения аттестации рабочих мест руководством предприятия.
Карты разрабатывают на основе ГОСТ, ОСТ, санитарных и строительных норм и правил, Единого тарифно-квалификационного справочника работ и профессий рабочих, нормативно-методических документов по организации и охране труда, технике безопасности и других документов.
При разработке карт учитывают опыт практической работы передовых предприятий.
Разработанные разделы карты организации рабочего места электромеханика сводим в таблицу формата А1 (ДП 23.05.03.К11-ПСД-164ЭТ.09).
2.4.6 План участка
Производственная площадь проектируемого участка определяется по укрупненным нормативам площади на единицу оборудования с учетом площадок для складирования деталей, подлежащих ремонту и отремонтированных.
, (2.1)
.
Минимальная ширина проходов между оборудованием составляет 0,5 м., высота участка – 6 м.
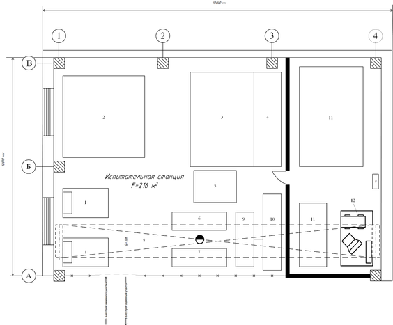
План размещения оборудования испытательной станции представлен на рисунке 2.7.
Рисунок 2.7 – План испытательной станции с учетом расстановки существующего оборудования: 1 – стенд испытания вспомогательных электрических машин; 2 – стенд испытания электрической прочности; 3 – стенд для испытания ТЭД электровозов; 4 – высоковольтная камера стенда испытания ТЭД; 5 – стенд для испытания ТЭД тепловозов и электропоездов; 6 – пульт управления стендами испытания вспомогательных машин; 7 – регулятор напряжения; 8 – кран балка; 9 – пульт управления стендами испытания ТЭД; 10 – распределительный щит; 11 – оборудование регулировки режимов работы стенда испытания ТЭД; 12 – компьютеризированное рабочее место
3 ТЕХНОЛОГИЧЕСКИЙ ПРОЦЕСС ПО ИСПЫТАНИЯМ ЭЛЕКТРИЧЕСКИХ МАШИН
Технология проведения испытаний электрических машин тягового подвижного состава в локомотиворемонтных предприятиях, осуществляющих техническое обслуживание и текущие ремонты электровозов переменного тока, в том числе и электровозов серии ЭС5К регламентируется рядом технологической документации, определяющей периодичность, объем, характер и порядок проведения испытаний в процессе входного и приёмо-сдаточного контроля состояния электрических машин.
Используемые методы и средства контроля технического состояния электрических машин и их узлов должны обеспечивать объективную оценку качества ремонта и исключать возможность установки на электровоз неисправных электрических машин.
С целью применения единой технологии проведения испытаний электрических машин в сервисном локомотивном депо Приморское, учитывающей применение в процессе ремонта современного технологического оборудования разработан пооперационный технологический процесс.
При разработке технологии испытания электрических машин в сервисном локомотивном депо Приморское, использовалась следующая утверждённая ремонтная и технологическая документация регламентирующая перечень контрольных операций обязательных к выполнению:
- ЦТтр-7/133 Руководство по техническому обслуживанию и текущему ремонту электрических машин электровозов;
- РД103.11.320-2004 Руководство по среднему и капитальному ремонту электрических машин электровозов;
- ТИ752 Техническое обслуживание и ремонт тягового электродвигателя НБ-514 Технологическая инструкция;
- ЦТ-ЦТВР-4782 Правила ремонта электрических машин электроподвижного состава;
- ПКБ ЦТ.02.0031 Техническое обслуживание и текущий ремонт электровозов 2ЭС5К, 3ЭС5К, 4ЭС5К, Э5К. Типовые (базовые) технологические процессы;
- ПКБ ЦТ.25.0110 Руководство по техническому обслуживанию и ремонту электрических машин электровозов. Технологическая инструкция;
- ПКБ ЦТ.06.0001 Руководство по техническому обслуживанию и текущему ремонту тяговых электродвигателей локомотивов;
- ПКБ ЦТ.25.0011 Техническое обслуживание и ремонт асинхронных электродвигателей НВА-22, НВА-55 электровоза ЭП1. Технологическая инструкция;
- РК103.11.490-2007 Руководство по среднему и капитальному ремонту тяговых двигателей серии НБ;
- ГОСТ 2582-2013 Машины электрические вращающиеся тяговые. Общие технические условия;
- ГОСТ 183-74 Машины электрические вращающиеся. Общие технические условия;
- ГОСТ 11828-86 Машины электрические вращающиеся. Общие методы испытаний.
Технологические процессы испытания электрических машин учитывают применение принципиально нового диагностического и испытательного оборудования.
3.1 Испытания асинхронных электродвигателей
Испытания асинхронных электродвигателей выполнять на нагрузочной станции для испытания вспомогательных электрических машин А2619.00.00, которая включает в себя:
- нагрузочный стенд с порошковым тормозом А2619.40.00;
- приспособление для торможения вала электродвигателя при испытании на короткое замыкание А2619.35.00;
- пульт управления А2619.01.00;
- клеммовая колонка А1324.210-02;
- прибор ЦЭ7008 (ваттметр-счетчик) — для измерения мощности потребляемой электродвигателем, токов и напряжения между всеми тремя фазами на выходе, измерения угла сдвига фаз между током и напряжением, а также вычисления коэффициента мощности.
На нагрузочной станции электродвигатели испытываются совместно со своими приводимыми механизмами, а именно, вентиляторами и компрессорами.
Испытания выполнять в соответствии с положениями раздела 7 «Руководства по среднему и капитальному ремонту электрических машин электровозов» РД103.11.320-2004 и ГОСТ 2582-2013.
Испытания асинхронного электродвигателя после производства ремонта в электромашинном участке включают в себя:
- визуальный осмотр и проверку качества сборки электродвигателя;
- измерение активного сопротивления обмотки статора;
- измерение сопротивления изоляции обмотки статора относительно станины;
- испытание двигателя на холостом ходу с виброакустической диагностикой;
- определение тока и потерь холостого тока;
- испытание на короткое замыкание при заторможенном роторе;
- проверку частоты вращения под нагрузкой;
- испытание электрической прочности изоляции обмотки статора двигателя при повышенном напряжении питания в режиме холостого хода;
- испытание электрической прочности изоляции обмотки статора двигателя на стенде А2373.02.00;
3.1.1 Осмотреть и проверить качество сборки электродвигателя, правильность соединений обмоток, состояние и крепление выводных кабелей в коробке выводов, маркировку выводных кабелей.
3.1.2 Провернуть ротор вручную и проверить отсутствие стука в подшипниковых узлах, заеданий или касания деталей в лабиринтных уплотнениях при вращении.
3.1.3 Измерить активное сопротивление постоянному току обмотки статора.
Проверить целостность обмотки статора замером величины сопротивления между началами фаз обмотки. Выводные провода электродвигателя подсоединены к началам фаз обмотки статора и измерение следует производить, подключая измерительный прибор к выводным кабелям C l, С2, СЗ.
Электродвигатель НВА-55 имеют соединение фаз обмотки в «звезду» и при измерениях между выводными проводами С1- С2, С1-СЗ и С2-СЗ прибор будет показывать сопротивление двух фаз, включенных последовательно. Измерение сопротивление одной фазы в данной конструкции двигателя невозможно без нарушения и вскрытия изоляции соединительного провода общей точки трех фаз.















