Готовый диплом (1220484), страница 3
Текст из файла (страница 3)
Пространственная жесткость здания обеспечивается:
-в горизонтальном направлении – совместной работой каркаса и жесткого диска покрытия(балок, прогонов, профилированного листа), установкой продольных и поперечных вертикальных связей.
Каркас разработан по связевой схеме из прокатных профилей по ГОСТ 26020-83(для двутавров) и по ГОСТ 302145-2003(для гнутых квадратов).
Прогоны из прокатных профилей по ГОСТ 8240-97 и гнутых профилей по ГОСТ 30245-2003.
1.4.2 Конструктивная система здания
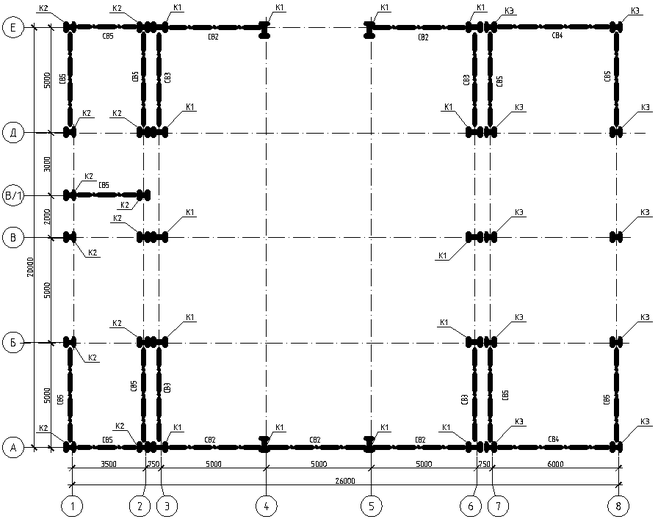
Здание дизельной электростанции станции, размером в плане 20,0 х 26,0 метров, с подвесным транспортом грузоподъемностью пять тонн по ГОСТ 7890-84 «Краны мостовые однобалочные подвесные», запроектировано с несущим металлическим каркасом.
Металлический каркас здания запроектирован по связевой схеме в поперечном и продольном направлении. Сопряжение колонн с фундаментом –шарнирное.
Стропильная конструкция – балка двутавровая по ГОСТ 26030-83. Колонны проектируются из двутаврового профиля по ГОСТ 26030-83. Связи вертикальные, горизонтальные, распорки из гнутых профилей по ГОСТ 30245-2003. Сопряжение прогонов кровли и балок покрытия– шарнирное, а также шарнирное сопряжение горизонтальных связей по покрытию.
Рисунок1.3 - Несущие элементы каркаса
Общая устойчивость каркаса обеспечивается системой горизонтальных и вертикальных связей, а так же жестким диском перекрытия.которые объединяют все элементы в единый пространственный блок.
Металлоконструкции выполняются из стали марки С255.
1.4.3 Разработка эскизов планов, разрезов, фасадов здания
Разработка архитектурного решения фасада здания - завершающая и очень важная часть эскизного проектирования. Архитектура фасада выявляет художественные и конструктивные достоинства и недостатки здания, определяет его выразительность и цельность архитектурного образа. Поэтому при решении фасадов здания учтены основные положения теории архитектурной композиции:
а) тектоника здания;
б) приёмы и средства архитектурной композиции;
в) принцип единства и соподчинённости.
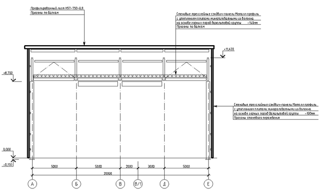
Разрез здания выполняется на основе решения плана с учётом принятой конструктивной системы. Плоскость разреза должна проходить по наиболее характерным частям здания для полного представления его объёмно-планировочного и конструктивного решения. Как правило, разрез выполняется по лестничной клетке или входу здания. На разрезе должны быть показаны основные несущие и ограждающие конструкции.
Рисунок 1.4- Разрез здания поперечный
Рисунок 1.5 - Разрез здания продольный
Рисунок 1.6- Фасад в осях 1-8
В состав основного комплекта рабочих чертежей архитектурных решений включают:
1) план этажа на отм. 0,000;
2) разрезы;
3) фасады.
1.5 Обоснование конструктивных элементов здания
1.5.1 Фундамент
Фундамент – монолитная железобетонная плита с подколонниками и ребрами жесткости(бетон по прочности класса В20, по морозостойкости - F75).
В основании плиты – подушка из скального грунта толщиной 1000 миллиметров с уплотнителем.
Плита выполняется по подготовке из бетона класса В3,5.
Крыльца, пандус –монолитные железобетонные(бетон В20, F75).
Отмостка – бетонная, шириной 1,5 метра толщиной от 50 до 200 миллиметров по уплотненному щебнем грунту, с уклоном от здания не менее 10 процентов.
1.5.2 Наружные стены
Наружное ограждение – трехслойные сэндвич-панели, окрашенные в заводских условиях.
Конструкция наружной стены показана на рисунке 1.7.
Рисунок 1.7- Сечение наружной стены
Материалы и размеры слоев стен, а так же другие характеристики приведены в таблице 1.6.
Таблица 1.6 Характеристики элементов стен
| Наименование материала | Толщина слоя, м | Средний объемный вес, кг/м3 | Коэффициент теплопроводности, Вт/м·°С |
| 1. Стальной лист С18-1000-0.7 по ГОСТ 24045-94 | 0,0007 | 7850 | 58 |
| 2. Минераловатные плиты | Х | 60 | 0,031 |
| 3. Стальной лист С18-1000-0.7 по ГОСТ 24045-94 | 0,0007 | 7850 | 58 |
1.5.3 Теплотехнический расчет наружной стены
Ограждающие конструкции здания по своим теплотехническим качествам должны обеспечивать в помещениях необходимый температурно-влажностный режим и ограничивать теплопотери здания в отопительный период года. Для этого общее сопротивление ограждения теплопередаче R0 должно быть не менее требуемого R0 тр (R0 ≥ R0 тр), определяемого согласно поэлементным и комплексным требованиям.
1. Определение нормы тепловой защиты согласно поэлементным требованиям.
Определяем градусо-сутки отопительного периода по [1]:
, (1.1)
где: tв-расчетная средняя температура внутреннего воздуха, оС;
расчетная температура воздуха внутри здания, ◦С.
zht- продолжительность отопительного периода, сут.
ГСОП= (18,0-(-4,4)∙227 = 5085 ºC∙сут.
Нормативное значение приведенного сопротивления теплопередаче следует принимать не менее нормируемых значений, определяемых по [2, табл. 4] в зависимости от градусо-суток района строительства:
Rreq = αDd+b, (1.2)
гдеDd - градусо-сутки отопительного периода, °С•сут, для конкретного пункта;
a, b- коэффициенты, значения которых следует принимать по данным таблицы для соответствующих групп зданий.
Требуемое сопротивление теплопередачи составляет:
Rreq= 0,0002∙5085+1,0 = 2,017 м2∙ ºС/Вт.
Термическое сопротивление R,
, однородного слоя многослойной ограждающей конструкции определяется по формуле:
(1.4)
где:
толщина слоя, м;
расчетный коэффициент теплопроводности материала слоя,
.
Сопротивление теплопередаче
,
, многослойной ограждающей конструкции с однородными слоями следует определять по формуле:
, (1.5)
где:
коэффициент теплоотдачи внутренней поверхности ограждающих конструкций,
;
термическое сопротивление ограждающей конструкции,
, с последовательно расположенными однородными слоями следует определять как сумму термических сопротивлений отдельных слоев, определяется по формуле:
(1.6)
где:
термическое сопротивление отдельных слоев ограждающей конструкции,
;
термическое сопротивление замкнутой воздушной прослойки.
Требуемая толщина утеплителя (минераловатная плита) определяется по формуле:
(1.7)
Требуемая толщина утеплителя составляет:
Принимаем толщину утеплителя 100 мм –для стен.
Выполним сравнение фактического и требуемого сопротивления теплопередачи:
Следовательно, поэлементные требования выполняются.
2. Определение нормы тепловой защиты согласно комплексным требованиям
Градус-сутки отопительного периода составляют:
ГСОП = 5085,0
.
Описание ограждающих конструкций здания
На исследуемом здании использованы четыре различных по своему составу видов ограждающих конструкций:
- наружные стены из сэндвич-панелей и утеплением из минераловатных плит на основе базальтового волокна.
Приведенное сопротивление теплопередаче составляет:
Rст=1/12+0,0014/78,5+0,10/0,031+1/12=3,38 м2 .0/Вт
Площадь стен данной конструкции составляет:
Аст =754,0 – 40,9 – 49,2 = 664,0 м2
- покрытие 1 типа из сэндвич-панели и утеплителем из минераловатных плит на основе базальтового волокна.
Приведенное сопротивление теплопередаче составляет
Rпокр,1=1/23+0,0014/78,5+0,140/0,031+1/8,7=4,67м2 .0/Вт
Площадь покрытия данной конструкции составляет:
Апокр,1 =300,0 м2
-покрытие 2 типа по монолитному железобетону, цементно-песчаная стяжка и утеплитель.
Приведенное сопротивление теплопередаче составляет:
Rпокр,2=1/23+0,10/2,04+0,04/0,76+0,15/0,031+1/8,7=5,09м2 .0/Вт
Площадь покрытия данной конструкции составляет:
Апокр,2 =190,0 м2
-полы 1 типа: линолеум поливинилхлоридный, ГВЛ, стяжка из цементно-песчаного раствора, звукоизоляция, бетонное перекрытие.
Приведенное сопротивление теплопередачи пола составляет:
Rпола1=1/23+0,005/0,35+0,02/0,76+0,05/0,46+0,140/2,04+1/8,7=0,37 м2 .0/Вт
Площадь пола данной конструкции составляет:
Апола1 =60,0 м2
- полы 2 типа: керамическая плитка, прослойка из цементно-песчаного раствора М150 мм; бетонное основание.
Приведенное сопротивление теплопередачи пола составляет:
Rпола2=1/23+0,013/2,91+0,04/0,76+0,140/2,04+1/8,7=0,28 м2 .0/Вт
Площадь покрытия данной конструкции составляет:
Апола2 =580,0 м2
-окна
Приведенное сопротивление теплопередачи составляет:
Rок=0,59м2 .0/Вт
Площадь окна составляет:
Аок.=40,9 м2
-наружные двери
Приведенное сопротивление теплопередачи составляет:
Rдв=0,83м2 .0/Вт
Площадь окна составляет:
Адв.=49,2 м2
Отапливаемый объем здания:
Vот= 5510,5 м3
Удельная теплозащитная характеристика здания рассчитывается по формуле:
(1.7)
где
- приведенное сопротивление теплопередаче i-го фрагмента теплозащитной оболочки здания,
;
- площадь соответствующего фрагмента теплозащитной оболочки здания,
;
- отапливаемый объем здания,
;
- коэффициент учитывающий отличие внутренней или наружной температуры у конструкции от принятых в расчете ГСОП, определяется по
















