Готовый диплом (1220484), страница 10
Текст из файла (страница 10)
На участке 2, максимальный изгибающий момент определяется формулой:
где коэффициент
- принимается равным 0,06;
а1 – длина свободной стороны пластинки, см.
На участке 2, максимальный изгибающий момент определяется формулой:
Требуемая толщина плиты определяется формулой:
где
- наибольший из трех изгибающих моментов, определенных выше для участков плиты, кНсм;
- расчетное сопротивление материала плиты, кН/см2 .
Требуемая толщина плиты определяется составляет:
Окончательная толщина листа базы колонны К1 принимается равна 45 мм.
2.2 Расчет фундаментов под колонны.
Расчет фундамента сводиться к определению размеров его подошвы, подбору площади сечения рабочей арматуры. Фундамент возводится монолитным из бетона класса В20. Толщина защитного слоя бетона 50 мм.
Бетон фундамента - тяжелый, естественного твердения, класса В 20:
(коэффициент, принимаемый при длительном действии нагрузки);
МПа;
МПа;
МПа.
Прочностные характеристики арматуры класса А 400, Rs=355 МПа;
МПа.
Глубина заложения подошвы фундамента 1,7 м от уровня пола этажа. Инженерно-геологические характеристики представлены следующими слоями:
Слой 1. Глубиной 0,0 – 0,6 м. Насыпной грунт – суглинок мягкопластичный с галькой, углем и сложившимися обломками.
Слой 2. Глубиной 0,6 – 2,3 м. Суглинок мягкопластичный, легкий песчанистый, зернистой структуры, макропористый, ожелезненый, слабозаторфованный, с редким гравием.
Слой 3. Глубиной 2,3 – 4,4 м. Супесь текучая, пылыватая, ячеистой структуры, макропористая, с гравием до 15%.
Слой 4. Песок средней крупности, средней плотности, влажный, ожелезненный.
Грунтовых вод нет.
В связи с тем, что грунты под подошвой фундамента слабые, под подошвой фундаментной плиты на высоту 1,0 метр требуется выполнить замену грунта местным скальным грунтом с уплотнением слоями 20-25 см. Коэффициент уплотнения грунта – 0,95-0,98. Плотность грунта в сухом состоянии не менее 1,6 т/м3.
Грунты – скальные вулканогенно-осадочные грунты сильно- и средне трещиноватые. Нормативное значение – 7,8 МПа.
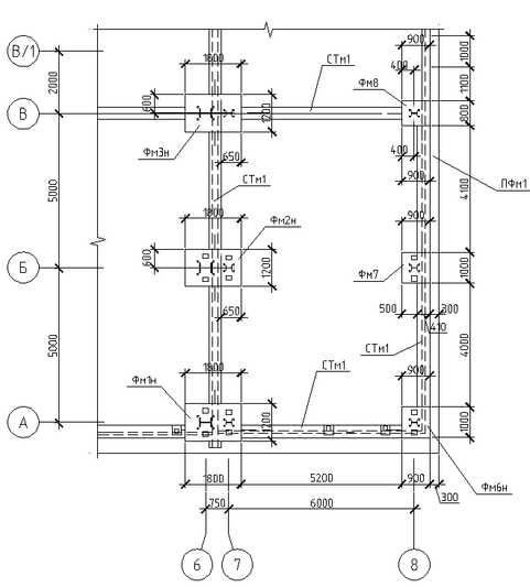
Рисунок 2.11 Схема расположения фундаментов
Расчет основания по несущей способности производят согласно п.5.7.1, СП 22,13330.2011, исходя из условия:
где F-расчетная нагрузка на основание, кН;
Fu-сила предельного сопротивления основания, кН
коэффициент условий работы, для скальный грунтов равен 1;
коэффициент надежности по назначению сооружения, принимаемый равным 1,15 для сооружения II уровня ответственности.
Предел прочности на одноосное сжатие составляет:
При расчете прочности тела фундамента усилия принимаются от расчетных нагрузок с коэффициентом надежности
, причем расчетная сила принимается равной таковой на уровне обреза фундамента, то есть вес фундамента и грунта на его уступах не учитывается, а изгибающий момент – на уровне подошвы фундамента учитывается, так же учитывается момент, создаваемый поперечной силой.
Расчетные усилия на уровне обреза фундамента при коэффициенте надежности по нагрузке
составляют:
N=±16,5 кН
M=±207,7 кНм
Q=±24,4 кН
При определении размеров подошвы принимаются усилия, действующие на уровне подошвы от расчетных нагрузок с коэффициентом надежности
Расчетные усилия на уровне обреза фундамента при коэффициенте надежности по нагрузке
составляют:
N=±16,5 /1,215=13,6 кН
M=±207,7/1,215=170,9 кНм;
Q=±24,4/1,215=20,1 кН
Требуемую площадь фундамента в первом приближении может быть найдена как для центрально загруженного фундамента по формуле:
— вертикальная сила на уровне обреза фундамента при коэффициенте надежности по нагрузке
;
— расчётное сопротивление одноосного сжатия скального грунта;
— осреднённый удельный вес материала фундамента и грунта на его обрезах;
— глубина заложения фундамента.
Принимаем конструктивно размеры фундамента под колонну: размер стакана – 2,7 х 1,2 м. Все фундаменты под колонну объеденены единой монолитной плитой высотой 500 мм. Площадь подошвы фундамента для расчета принимаем в соответствии с грузовой площадью на данный фундамент 5,0х11,25 =56,25 м2.
Момент сопротивления по подошве фундамента определяется по формуле:
Наибольшие
давления у краев подошвы при
определяется по формуле:
Наименьшее
давления у краев подошвы при
определяется по формуле:
Среднее давление
под подошвой при
определяется по формуле:
Давление pn,max и pmне превышают допустимых величин, следовательно размеры подошвы приняты достаточны.
Для расчета армирования необходимо просчитать pmaxи pmin краевые давления от расчетных нагрузок с коэффициентом
, принимая продольную силу в сечении на уровне обреза, а изгибающий момент – на уровне подошвы фундамента:
Наибольшие
давления у краев подошвы при
определяется по формуле:
Наименьшее
давления у краев подошвы при
определяется по формуле:
Рабочую высоту плитной части фундамента приближенно можно определить из условия продавливания для центрально загруженного фундамента по формуле:
Устанавливаем высоты плитной части 500 мм.
3. Разработка технологической карты на монтаж колонн
Правила и порядок разработки оформления технологической карты выполнен согласно МДС 12-29.2006 «Методические рекомендации по разработке и оформлению технологической карты»
3.1 Область применения
Технологическая карта разработана на монтаж металлического каркаса дизельной электростанции в п. Рейдово о. Итуруп.
Здание дизельной электростанции разделено деформационными швами на три блока.
В осях 2-8одноэтажный, размером в плане 15,0 х20,0 метров (между осями). Высота до низа балки 8,0 метра.
В осях 1-2 одноэтажный, кроме осей 1-2, Г-В, размером в плане 3,5х20,0 (между осями). Высотой 3,95 метра (до перекрытия).
В осях 7-8 двухэтажный, размером в плане 6,0х20,0 м. Высота этажа 3,4 метра (до перекрытия), второго этажа 2,85 метра (до перекрытия).
Каркасы разработаны по связевой схеме из прокатных профилей. Колонны шарниро опираются на фундаменты на отметке -0,200. Шаг колонн 5,0 метра. Балки покрытия под углом 20 градусов (в осях 2-8) и 55 градусов (в осях 1-2).
В состав работ, выполняемых при монтаже каркаса входят: (см.табл 3.1)
- строповка и расстроповка конструкций;
- подъем, наводка и установка конструкций на опоры;
- выверка и временное закрепление конструкций:
колонны (38шт. по 0,61т.)
балки (55шт. по 0,403т.)
прогоны (180шт. по 0,131т.)
-монтаж связей горизонтальных и вертикальных(249 шт. по 0,082т.)
-профилированный лист ((661,0 м2)
- постоянное закрепление конструкций.
Объем работ –металлоконструкции общей массой 94,9 т.
Объем работ смотреть в таблице 3.1
Работы ведутся в одну смену в теплый период года.
Таблица 3.1 – Ведомость объемов работ
| Наименование работ | Ед. изм. | Кол-во | Масса, т | Прило-жение | |||||||
| Одногоэлемента | Общая | ||||||||||
| Металлические конструкции каркаса | |||||||||||
| Монтаж колонн ( I 40Ш1, I 20 К1) | шт. | 38 | 0,61 | 23,4 | |||||||
| Монтаж балок (I 70Б2, I 45Б1, I26Б1) | шт. | 55 | 0,403 | 22,2 | |||||||
| Монтаж прогонов (швеллер №20) | шт. | 180 | 0,131 | 23,7 | |||||||
| Монтаж связей горизонтальных и вертикальных | шт. | 249 | 0,082 | 20,5 | |||||||
| ИТОГО: | 94,9 | ||||||||||
| Итого | 1364,6 | ||||||||||
3.2 Организация и технология выполнения работ
Перед производством работ по подъему конструкций в проектное положение следует, проследить за правильной подготовкой фундаментов и, кроме того, произвести подготовку стыков.
Выбор метода производства работ
Принят комплексный метод монтажа каркаса здания в соответствии с графиком работ монтаж. При этом осуществляется предварительная раскладка колонн. Конструкции в зону монтажа доставляются с площадки складирования.
Принимаем гусеничный кран СКГ-30. Технические характеристики крана приведены в таблице3.2.















