ПЗ (1210470), страница 4
Текст из файла (страница 4)
- потери давления в напорной линии от насоса до цилиндра, МПа, принимаем в соответствии с рекомендациями [2]
механический КПД гидроцилиндра.
КПД пары шарнирных подшипников крепления гидроцилиндра с густой смазкой,
=0,94.
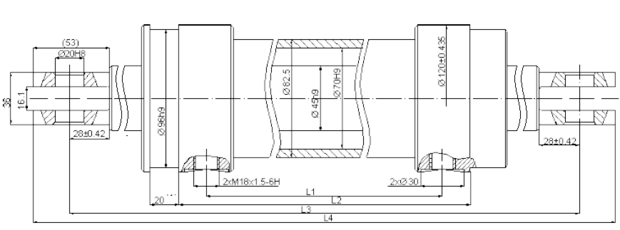
В соответствии с ГОСТ 6540-68 принимаем гидроцилиндр с параметрами:
D = 36 мм
Рисунок 6 Гидроцилиндр 70F1.45.00.00.00
| Обозначение | Черт. | S ход | L1 | L2 | L3 | L4 |
| 70F1.45.00.00.00 | 1 | 100 | 414 | 450 | 950 | 1000 |
Технические характеристики:
| Номинальное давление, МРа. | 16 |
| Номинальная скорость передвижения поршня, м/с. | 0.3 |
| Ход поршня гидроцилиндра, S мм. | 100 |
2.7 Тяговый расчет погрузчика
При подборе внешней характеристики двигателя вначале определяется мощность
в л.с. необходимая для обеспечения заданной максимальной скорости
в км/ч по площадке с заданным коэффициентом дорожного сопротивления.
|
| (34) |
где
вес снаряженного погрузчика, кг (
);
номинальный вес груза
;
суммарный коэффициент сопротивления качению;
максимальная скорость движения погрузчика км/ч
кпд трансмиссии погрузчика, равные 0,9;
|
| (35) |
коэффициент сопротивлению качению, (
);
величина преодолеваемого уклона площадки, (
);
В общем случае частота вращения коленчатого вала
при максимальной скорости движения автомобиля не равна частоте вращения
, соответствующей максимальной мощности двигателя, следовательно,
В тех случаях, когда
максимальную мощность двигателя
в л.с. можно определить по эмпирической формуле:
|
| (36) |
где a,b,c – эмпирический коэффициент для дизельных двигателей
a= 0.53; b=1.56; c=1.09.
частота вращения коленчатого вала (
)
принимаем
Условие
выполняется.
Скорость соответствующая максимальной мощности:
|
| (37) |
Построение внешней скоростной характеристики двигателя:
Для построения необходимо использовать формулу:
|
| (38) |
текущие значение мощности двигателя и частоты вращения коленчатого вала во всем диапазоне соответственно.
Задаваясь таким значением,
, которое соответствует значение отношение:
Подсчитываем величины соответствующей мощности
:
Определение текущих значений крутящих моментов:
|
| (39) |
Данный расчет сводим в таблицу:
Таблица 2
|
|
|
|
|
| 0,1 | 10,41 | 37,278 | 200 |
| 0,2 | 24,59 | 44,028 | 400 |
| 0,3 | 41,7 | 49,77 | 600 |
| 0,4 | 60,343 | 54,022 | 800 |
| 0,5 | 79,887 | 57,215 | 1000 |
| 0,6 | 99,2 | 59,205 | 1200 |
| 0,7 | 117,27 | 59,991 | 1400 |
| 0,8 | 133,105 | 59,581 | 1600 |
| 0,9 | 145,682 | 57,965 | 1800 |
| 1 | 154 | 55,147 | 2000 |
| 1,1 | 157,05 | 51,126 | 2200 |
| 1,2 | 153,827 | 45,904 | 2400 |
| 1,25 | 149,548 | 42,842 | 2500 |
2.8 Определение основных параметров трансмиссии
Преобразование выходных тягово-скоростных параметров двигателя (крутящего момента и частоты вращения) в трансмиссии осуществляется при помощи главной передачи и коробки перемены передач.
Передаточное отношение главной передачи рассчитывается исходя из обеспечения максимальной скорости движения погрузчика на первой передаче (передаточное отношение коробки передач
по фомуле:
|
| (40) |
где
максималная частота вращения коленчатого вала принятая при построении внешней скоростной характеристики;(
)
радиус ведущих колес (в соответствии с аналагом
).
Количество передач и их передаточные числа определяют способность погрузчика к преодолению подъемов в складских помещениях, к быстрому разгону и движению с установленной скоростью при заданном покрытии. Независимо от вида, исполнения и других показателей трансмиссии выбранного аналога погрузчика в курсовой работе производится расчет трехступенчатой механической коробки передач.
Определение передаточных чисел коробки передач начинают с расчета передаточного числа
первой передачи. Для этого используют уравнение силового баланса установившегося движения погрузчика:
|
| (41) |
где - общий коэффициент учета вращения масс;
j- поступательное ускорение погрузчика: j=0.2
;
коэффициент сцепления колес с дорогой (по заданию
)
|
| (42) |
где a- коэффициент учета вращающихся масс a=0,04;
передаточное число коробки передач. Так как данное значение вначале неизвестно, то оно принимается приближенно из диапазона 3,5…5
Передаточное число первой передачи коробки передач рассчитывается из условия обеспечения необходимой тяги в заданных дорожных условиях по преодолеваемому сопротивлению:
|
| (43) |
где
значение максимального крутящего момента
Увеличение передаточного числа первой передачи допустимо только до величины , при которой развиваемая тяговая сила еще не достигнет силы сцепления колес с дорогой, т. е.
|
| (44) |
где:
сцепной вес погрузчика, Н;
Из равенства (42) получим:
|
| (45) |
Сцепной вес в Н переднеприводного погрузчика равен 55...65% от веса погрузчика с грузом:
Так как увеличить вес приходящийся на передние колеса, в пределах , обеспечивающих равенство передаточных чисел, определенных по формулам (41) и (43), невозможно, то принимаем значение передаточного числа первой передачи, полученное по формуле (43), т.е.
;
Используя в процессе разгона максимальную мощность двигателя и получая в результате этого максимально возможные для данного автомобиля ускорения. При ступенчатой коробке передач для наилучшего использования мощности двигатель на всех передачах должен работать в некотором диапазоне частоты вращения коленчатого вала от
до
.
Если пренебречь падением скорости в процессе переключения передач, то каждый раз при выполнении этого действия скорость движения погрузчика, достигнутая перед моментом переключения, например в конце разгона на первой передаче V1, равна скорости, с которой начинается разгон на второй передаче, т.е.
|
| (46) |
следовательно,
или
|
| (47) |
Из равенства (45) следует, что для наилучшего использования мощности двигателя передаточные числа должны подчиняться закону геометрической прогрессии со знаменателем q.
Из предварительного расчета известны передаточные числа первой и высшей передач. Используя значение
полученное по равенству (43), можно определить передаточное число промежуточных передач для коробки передач с любым числом ступеней.
Для коробки передач с n ступенями передач передаточное число любой передачи
можно определить по формуле:
|
| (48) |
где k- номер передачи;
n- число ступеней, исключая заднюю и ускоряющую передачи. n=3















