Пояснительная записка (1051991), страница 4
Текст из файла (страница 4)
В сечении по обрезу фундамента в поперечном направлении.
Расчетная схема приведена на рисунке 2.16.
Загружение временной нагрузкой обоих пролетов в сечении по подошве фундамента.
в сечении по обрезу фундамента
Проверка эксцентриситета положенияравнодействующей по подошве фундамента.
в продольном направлении
в поперечном направлении
Как в продольном, так и в поперечном направлении
и, следовательно, равнодействующая нагрузок не выходит за пределы ядра сечения, все сечения полностью работают на сжатие и уточнять класс опоры по положению равнодействующей не требуется.
Расчет на опрокидывание.
Расчет промежуточных опор №2 и №3 производится аналогично, результаты расчетов приведены в таблице 2.5.
Таблица 2.5. - Результаты расчетов промежуточных опор
| Величины необходи-мые для подсчета класса опоры, и условия схем загружения | Расчетные значения | |||||||
| По среднему давлению | По максимальному давлению | |||||||
| подо шва | обрез | подошва | обрез | подо шва | обрез | |||
| k | 107,95 | 209,6 | 32,56 | 80,95 | 70,19 | 33,87 | 70,62 | 21,19 |
| kн | 1,82 | 1,82 | 1,82 | 1,66 | 1,66 | 1,82 | 1,82 | 1,82 |
| K | 59,31 | 115,16 | 17,89 | 48,76 | 38,56 | 20,40 | 38,8 | 11,64 |
| Число загружаемых пролетов | оба | один | оба | |||||
| Плоскость расчета (вдоль или поперек оси моста) | вдоль | попе рек | вдоль | попе рек | вдоль | |||
Вывод:
Из приведенных выше результатов расчетов грузоподъемности видно, что все выполняются, из этого следует что ремонт или усиление их не требуется
3. СОСТАВЛЕНИЕ ВАРИАНТОВ РЕКОНСТРУКЦИИ МОСТА.
На основании расчёта грузоподъёмности промежуточной и береговой опор, а также на основе анализа технического состояния моста в целом, можно сделать следующие выводы:
Пролётные строения подлежат замене, так как:
-техническое состояние пролётных строений в целом, неудовлетворительное - срок эксплуатации пролётного строения составляет 36 лет, тогда как нормативный срок службы железобетонных и сталежелезобетонных пролётных строений [5].
Техническое состояние опор, как показал расчёт по грузоподъёмности промежуточной и береговой опор, в целом хорошее что либо исправлять в них нецелесообразно, замене в них подлежат лишь подферменники и опорные тумбы из - за замены пролетных строений
- У переходных тумб под береговые пролетные расстроена кладка;
- Бетон вокруг левой опорной тумбы под пролетное строение 0-1 разрушается;
- Сливы на промежуточных опорах местами растрескались;
- Длины устоев не хватает, они удлинены монолитными бетонными стенками, бетон стенок разрушается.
На основании вышеизложенных выводов, устанавливаются минимальные мероприятия по реконструкции моста.
Реконструкция моста на 2545 км ПК4 участка Тында - Ургал Дальневосточной железной дороги, предполагает следующие мероприятия:
- замена старых пролётных строений, на новые пролётные строения;
- замена старогоднего деревянного мостового полотна, на новое мостовое полотно;
- устройство новых подферменных камней со сливами;
- замена старых опорных частей на новые;
- устройство железобетонных поясов в уровне подферменников промежуточных опор;
- устройство смотровых приспособлений на опорах и перильного ограждения верха устоев.
На основании изложенного разрабатывается два варианта реконструкции моста.
3.1 Вариант №1
В первом варианте предусмотрена замена существующего пролетного строения на новое железобетонное пролетное строение, принятое по типовому проекту серии 3.501.1-146 инв. № 556/11-16. Пролетные строения полной длиной Lп=27,6м - железобетонные под один железнодорожный путь с ездой поверху на балласте.
Опорные части приняты сварные секторного типа по типовому проекту серии 3.501.1-129 инв.№1263.
В виду неудовлетворительного состояния существующих подферменных камней и разницы в расстоянии по осям продольных балок существующих и новых пролетных строений, необходимо произвести замену подферменных камней новые ж.б. подферменные блоки.
В виду разницы расчетного пролета существующих и новых пролетных строений (Lр.ст.=26,9 м.), для обеспечения необходимого зазора (между пролетным строением и шкафной стенкой стесать поверхность шкафной стенки устоев по началу моста на 30 мм,по концу моста на 40 мм.
Установку новых подферменных блоков, выравнивание шкафных стенок устоев, установку новых пролетных строений производить в отдельные "окна" по установке одного пролета в проектное положение.
По длине моста устраиваются двухсторонние раздельные тротуары и убежища для рабочих в виде ребристых ж.б. плит, опирающихся на металлические консоли согласно типового проекта инв. № 821- К»
На подферменных площадках устоев и промежуточных опор устраиваются металлическое перильное ограждение. Крепление перильного ограждения производится на сварке к закладным деталям, предусмотренным в железобетонных рубашках опор.
По откосам насыпи по началу и концу моста устраиваются лестничные сходы взамен существующих. Конструкция лестничных принята по типовому проекту инв. № 1000.
Предусмотрено укрепление конусов сборными бетонными плитами 49х49х10 мм. В вершине конусов укладываются блоки упора У-3,в подошве конусов блоки упора У-1. Плиты П-1, У-3, У-1 приняты по типовому проекту серии 3.501.1-156.
Укрепление русла у промежуточных опор производится камнем по периметру опор.
На подходах к мосту производится подьемка пути по началу моста и срезка загрязненного балласта по концу моста.
Также предусмотрен демонтаж и монтаж контактной подвески на период производства работ в "окна" по замене пролетных строений.
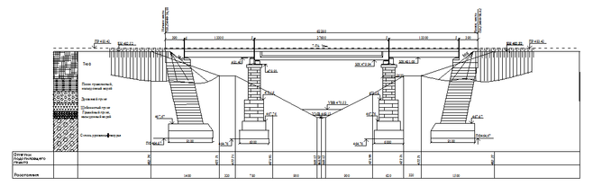
Схема моста приведена на рисунке 3.1.
Рисунок 3.1 - Схема моста 13,3+27,6+13,3 м.
В связи с заменой пролетных строений и учитывая физическое состояние, на опорах выполняются следующие работы:
-
разборка существующих сливов;
-
разборка опорных тумб на опорах № 1,2 под береговые пролетные строения:
-
омоноличивание существующих опорных тумб;
-
монтаж блоков опорных тумб;
-
бетонирование железобетонных подферменников на опорах № 0, 3;
-
бетонирование ж.б. поясов на опорах № 1,2;
-
устройство тротуаров и перильного ограждения на устоях и коробах;
-
устройство смотровых приспособлений на опорах № 0,1,2,3.
Бетон сборных конструкций принят класса В35 по прочности и марки F300 по морозостойкости.
Монолитный бетон железобетонных подферменников, поясов, монолитных участков - класса В25 по прочности и марки F300 по морозостойкости.
Монолитные и сборные конструкции армируются арматурой класса А-300 из стали марки 25Г2С и класса А-240 из стали марки Ст3сп по ГОСТ 5781-82 и ГОСТ 380-88.
Засыпаемые поверхности покрываются обмазочной гидроизоляцией типа БМ-3 в соответствии с «Инструкцией по устройству гидроизоляции конструкций мостов и труб на железных, автомобильных и городских дорогах» ВСН 32-81.
Консоли тротуаров, перильное ограждение окрашиваются масляной краской на натуральной олифе на два раза.
Вариант №1 приведен на листе №3.
3.2 Вариант №2
Береговое пролетное строение заменяется на двухблочное ребристое из железобетона по типовому проекту 3.501.1-146 “Пролетные строения сборные железобетонные длиной от 2,95 до 16,5м для железнодорожных мостов”. Пролетное строение принято типовой длины Lп=13,3м. В месте сопряжения с металлическим пролетным строением устраивается монолитный повышенный поперечный бортик для поддержания балластной призмы.
Материал блоков пролетного строения бетон класса по прочности В-27,5, по морозостойкости марка F300.
Пролетное строение устанавливается на тангенциальные литые опорные части заводской марки Т-1 инв. № 577.
Блоки ребристых пролетных строений соединяют между собой омоноличиванием монтажных стыков по торцевым диафрагмам после установки на опорные части в проектное положение.















