text (955261), страница 7
Текст из файла (страница 7)
| Формат | Зона | Поз. | Обозначение | Наименование | Кол. | Приме- |
| Документация | ||||||
| А2 | МЧ00.20.00.00.СБ | Сборочный чертеж | ||||
| Детали | ||||||
| A3 | 1 | МЧ00.20.00.01 | Корпус | 1 | ||
| A3 | 2 | МЧ00.20.00.02 | Крышка | 1 | ||
| A3 | 3 | МЧ00.20.00.03 | Крышка | 1 | ||
| A3 | 4 | МЧ00.20.00.04 | Ведомое зубчатое ко- лесо z= 13, m = 5 | 1 | ||
| А2 | 5 | МЧ00.20.00.05 | Вал-шестерня z= 13, m = 5 | 1 | ||
| А4 | 6 | МЧ00.20.00.06 | Гайка круглая | 1 | ||
| А4 | 7 | МЧ00.20.00.07 | Втулка | 1 | ||
| А4 | 8 | МЧ00.20.00.08 | Втулка | 1 | ||
| Стандартные изделия | ||||||
| 9 | Шпилька М 10X35.58 ГОСТ 22034—76 | 6 | ||||
| 10 | Гайка М10.5 ГОСТ 5915—70 | 6 | ||||
| 11 | Шайба 10.01.05 ГОСТ 11371—78 | 6 | ||||
| 12 | Штифт 8h8Х36 ГОСТ 3128—70 | 2 | ||||
| 13 | Кольцо СГ 52-39-5 ГОСТ 6413—81 | 3 |
Шестеренный насос предназначен для перекачивания
жидкости. Основными рабочими органами насоса яв-
ляются два входящих в зацепление зубчатых колеса.
Верхний вал-шестерня поз. 5 при помощи муфты
(на чертеже не показана) соединен с валом электродвига-
теля. Крышки поз. 2 и поз. 3 соединяются с корпусом
поз. 1 двенадцатью шпильками поз. 9 и гайками поз. 10.
В месте выхода из корпуса вала-шестерни поз. б имеется
уплотнительное устройство поз. 13, препятствующее про-
сачиванию жидкости через зазор между валом и втулкой
поз. 8. Уплотнение состоит из трех войлочных пропитан-
ных маслом колец. Кольца прижимаются к поверхности
вала при помощи втулки поз. 7 и гайки поз. 6.
Задание
Выполнить чертежи деталей поз. 1 ... 8. Построить
аксонометрическую проекцию детали поз. 1.
Материал деталей поз. 1 ... 3 — СЧ 15 ГОСТ 1412—79,
деталей поз. 4 ... 6 — Сталь 45 ГОСТ 1050—74, деталей
поз. 7, 8 — Сталь 20 ГОСТ 1050—74.
Ответьте на вопросы:
-
Как называется разрез Г—Г?
-
Как называется изображение Б—Б?
-
На каких изображениях видна деталь поз. 37
22
1-е деталирование
21. ЦИЛИНДР ПНЕВМАТИЧЕСКИЙ
| Формат | Зона | Поз. | Обозначение | Наименование | Кол. | Приме- |
| Документация | ||||||
| А2 | МЧ00.21.00.00.СБ | Сборочный чертеж | ||||
| Детали | ||||||
| A3 | 1 | МЧ00.21.00.01 | Корпус | 1 | ||
| A3 | 2 | МЧ00.21.00.02 | Цилиндр | 1 | ||
| А4 | 3 | МЧ00.21.00.03 | Поршень | 1 | ||
| A3 | 4 | МЧ00.21.00.04 | Вилка | 1 | ||
| A3 | 5 | МЧ00.21.00.05 | Вилка | 1 | ||
| А4 | 6 | МЧ00.21.00.06 | Штуцер | 1 | ||
| А4 | 7 | МЧ00.21.00.07 | Пружина | 1 | ||
| А4 | 8 | МЧ00.21.00.08 | Гайка | 1 | ||
| А4 | 9 | МЧ00.21.00.09 | Винт | 1 | ||
| Стандартные изделия | ||||||
| 10 | Гайка М18.5 ГОСТ 5915—70 | 1 | ||||
| 11 | Кольцо 090-095-30 ГОСТ 9833—73 | 2 | ||||
| 12 | Кольцо 035-040-30 ГОСТ 9833—73 | 1 |
Пневматический цилиндр состоит из корпуса поз. 1,
в который ввинчен цилиндр поя. 2. Для предотвращения
самоотвинчивания предусмотрена гайка поз. 8.
Воздух под давлением подается через штуцер поз. 6
и используется для перемещения поршня поз. 3 только
в одном направлении — влево. Вправо поршень возвра-
щает пружина. Использованный воздух выходит в атмо-
сферу через тот же штуцер поз. 6.
Задание
Выполнить чертежи деталей поз. 1 ... 7.
Материал деталей поз. 1 ...5 — Сталь 35X
ГОСТ 4543—71, поз. 6 — Сталь 20 ГОСТ 1050—74,
поз. 7 — Сталь 651 ГОСТ 1050—74.
Ответьте на вопросы:
-
Объясните назначение пружины поз. 7.
-
На каких изображениях виден поршень поз. 3?
-
Для чего применяются кольца поз. 11 и поз. 12?
23
2-е деталирование
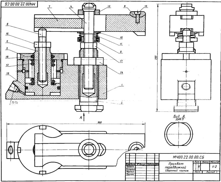
22. ПРИХВАТ ПЕРЕДВИЖНОЙ!
| Формат | Зона | Поз. | Обозначение | Наименование | Кол. | Приме- |
| Документация | ||||||
| А2 | МЧ00.22.00.00.СБ | Сборочный чертеж | ||||
| Детали | ||||||
| A3 | 1 | МЧ00.22.00.01 | Корпус | 1 | ||
| A3 | 2 | МЧ00.22.00.02 | Поршень | 1 | ||
| A3 | 3 | МЧ00.22.00.03 | Крышка | 1 | ||
| A3 | 4 | МЧ00.22.00.04 | Болт | 1 | ||
| А4 | 5 | МЧ00.22.00.05 | Болт | 1 | ||
| А4 | 6 | МЧ00.22.00.06 | Винт | 1 | ||
| А4 | 7 | МЧ00.22.0О.07 | Прихват | 1 | ||
| А4 | 8 | МЧ00.22.00.08 | Шайба | 1 | ||
| А4 | 9 | МЧ00.22.00.09 | Тарелка | 1 | ||
| А4 | 10 | МЧ00.22.00.10 | Шайба | 1 | ||
| А4 | 11 | MЧ00.22.00.11 | Пружина | 1 | ||
| А4 | 12 | МЧ00.22.00.12 | Пружина | 1 | ||
| А4 | 13 | МЧ00.22.00.13 | Шайба | 1 | ||
| А4 | 14 | МЧ00.22.00.14 | Гайка | 1 | ||
| Стандартные изделия | ||||||
| 15 | Винт А.М6Х 14.58 ГОСТ 1491—80 | 1 | ||||
| 16 | Гайка Ml2.5 ГОСТ 5915—70 | 1 | ||||
| 17 | Гайка М16.5 ГОСТ 5915-70 | 1 | ||||
| 18 | Кольцо СГ 24-17-5 ГОСТ 6418—81 | 1 | ||||
| 19 | Кольцо 040-045-30 ГОСТ 9833—73 | 1 |
Передвижной гидравлический прихват предназначен
дли зажима обрабатываемых деталей на станках. Его
устанавливают на столе станка или базовой плите.















