text (955261), страница 5
Текст из файла (страница 5)
Ответьте на вопросы:
-
Имеется ли на чертеже изображение сечения?
-
Назовите детали, которые видны на разрезе В—В.
-
Что нужно сделать, чтобы из корпуса поз. 1 вынуть
деталь поз. 8?
14
1-е деталирование
13. ОБОЙМА
| Формат | Зона | Поз. | Обозначение | Наименование | Кол. | Приме- |
| Документация | ||||||
| А2 | МЧ00.13.00.00.СБ | Обойма | ||||
| Детали | ||||||
| A3 | 1 | МЧ00.13.00.01 | Вилка | 1 | ||
| A3 | 2 | МЧ00.13.00.02 | Подвеска | 1 | ||
| А4 | 3 | МЧ00.13.00.03 | Блок | 1 | ||
| А4 | 4 | МЧ00.13.00.04 | Кольцо | 2 | ||
| А4 | 5 | МЧ00.13.00.05 | Планка | 1 | ||
| А4 | 6 | МЧ00.13.00.06 | Ось | 1 | ||
| А4 | 7 | МЧ00.13.00.07 | Ось | 1 | ||
| А4 | 8 | МЧ00.13.00.08 | Втулка | 1 | ||
| Стандартные изделия | ||||||
| 9 | Винт А.М4Х 16.58 | 2 | ||||
| 10 | Винт МЮХ 16.68 | 4 | ||||
| 11 | Винт MI2X 14.58 | 1 |
Обойма применяется в грузоподъемных механизмах.
Трос (на чертеже не показан) грузоподъемного механизма
охватывает блок поз. 3, в которой запрессована сменная
втулка поз. 8. Блок поз. 8 вращается на оси поз. 6. Вну-
три оси имеются каналы, которые через отверстие, закрытое винтом поз. 11, заполняются густой смазкой. Опорой
оси поз.6 является вилка поз. 1 соединенная осью поз. 7 с подвеской поз. 2 и вращающаяся вокруг этой оси. В резьбовое отверстие подвески поз. 2 ввинчивают грузоподъемный крюк (на чертеже не показан).
Задание
Выполнить чертежи деталей поз. 1...3, 6,7.
Материал деталей поз. 1...3 - СЧ 15 ГОСТ 1412-79, деталей поз. 4 ...7 - Сталь 45 ГОСТ 1050 - 74, детали поз. 8 - БрА9ЖЗЛ ГОСТ 493 -79.
Ответьте на вопросы:
-
Покажите контур детали поз. 2.
-
Сколько деталей изображено на разрезе А—А?
-
Какое назначение детали поз. 5?
15
2-е деталирование
14. ОТВОДКА РУЧНАЯ
| Формат | Зона | Поз. | Обозначение | Наименование | Кол. | Приме- |
| Документации | ||||||
| А2 | МЧ00.14.00.00.СБ | Сборочный чертеж | ||||
| Детали | ||||||
| A3 | 1 | МЧ00.14.00.01 | Вилка | 1 | ||
| A3 | 2 | МЧ00.14.00.02 | Стойка | 1 | ||
| А4 | 3 | МЧ00.14.00.03 | Полукольцо верхнее | 1 | ||
| А4 | 4 | МЧ00.14.00.04 | Полукольцо нижнее | 1 | ||
| А4 | 5 | МЧ00.14.00.05 | Ось | 1 | ||
| А4 | 6 | МЧ00.14.00.06 | Шарик | 1 | ||
| А4 | 7 | МЧ00.14.00.07 | Рычаг | 1 | ||
| А4 | 8 | МЧ00.14.00.08 | Рукоятка | 2 | ||
| А4 | 9 | МЧ00.14.00.09 | Палец | 1 | ||
| А4 | 10 | МЧ00.14.00.10 | Пружина | 1 | ||
| А4 | 11 | МЧ00.14.00.11 | Штифт специальный | 2 | ||
| А4 | 12 | МЧ00.14.00.12 | Болт M12 | 1 | ||
| Стандартные изделия | ||||||
| 13 | Болт М6Х 32.68 ГОСТ 7798—70 | 4 | ||||
| 14 | Болт М8Х 32.58 ГОСТ 7798-70 | 1 | ||||
| 15 | Винт М5Х 14.58 ГОСТ 1478-84 | 1 | ||||
| 16 | Гайка М6.5 ГОСТ 6915— 70 | 4 | ||||
| 17 | Гайка М8.5 ГОСТ 8916—70 | 1 | ||||
| 18 | Шайба 6 65Г 02 9 ГОСТ 6402—70 | 4 |
Ручная отводка служит для включения и выключений
вала. Вилка поз. 1 с полукольцами поз. 3, 4 поворачи-
вается вокруг оси поз. 5, закрепленной на стойке поз. 2.
Стойку четырьмя болтами крепят к станине или стене.
При повороте рычага поз. 7 вилка перемещает кольцо
отводки и подвижную часть муфты вдоль оси вала. Шарик
поз. 6 может фиксировать отводку в трех положениях.
Поворот вилки ограничен двумя штифтами поз. 11.
Задание
Выполнить чертежи деталей поз. 1 ... 5, 7. Построить
аксонометрическую проекцию детали поз. 2.
Материал деталей поз. 1, 2 — СЧ 15 ГОСТ 1412—79,
поз. 3, 4, 7, 8 — Ст 6 ГОСТ 380—71, поз. 5, 6, 9 — Сталь 20
ГОСТ 1050—74.
Ответьте на вопросы:
-
Сколько сечений имеется на чертеже?
-
Назовите детали, которые видны на разрезе А—А.
-
Покажите контур детали поз. 1.
16
1-е деталирование
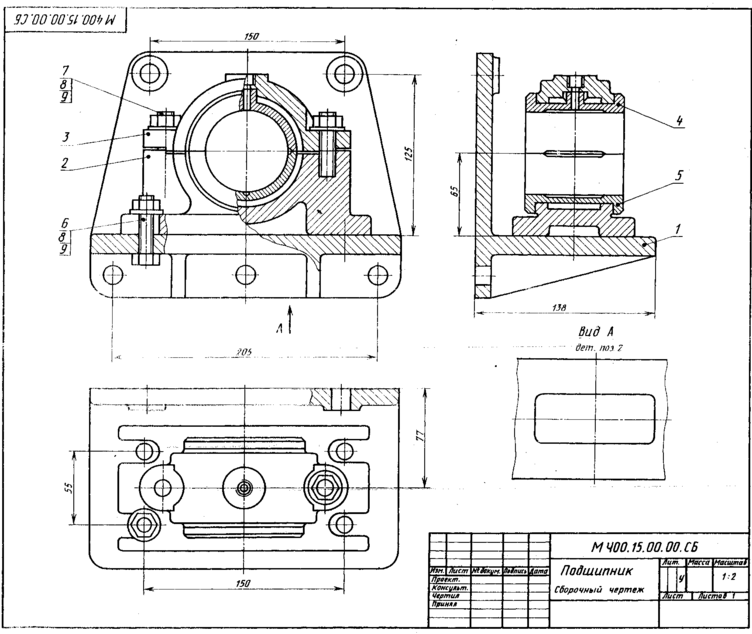
15. ПОДШИПНИК
| Формат | Зона | Поз. | Обозначение | Наименование | Кол. | Приме- |
| Документация | ||||||
| А2 | МЧ00.15.00.00.СБ | Сборочный чертеж | ||||
| Детали | ||||||
| A3 | 1 | МЧ00.15.00.01 | Кронштейн | 1 | ||
| A3 | 2 | МЧ00.15.00.02 | Корпус | 1 | ||
| А4 | 3 | МЧ00.15.00.03 | Крышка | 1 | ||
| А4 | 4 | МЧ00.15.00.04 | Вкладыш верхний | 1 | ||
| А4 | 5 | МЧ00.15.00.05 | Вкладыш нижний | 1 | ||
| Стандартные изделия | ||||||
| 6 | Болт М8Х 28.58 | 4 | ||||
| 7 | Шпилька М8Х 30.58 | 2 | ||||
| 8 | Гайка М8.5 | 6 | ||||
| 9 | Шайба 8.01.05 | 6 |
Подшипник служит опорой для вращающегося вала
и устанавливается на консоли в том случае, когда вал
близко подходит к стене производственного помещения.
Консольная подшипниковая опора состоит из кор-
пуса и подшипника скольжения со сменными бронзовыми
вкладышами поз. 4, 5. Верхний вкладыш поз. 4 фикси-
руется цилиндрическим трубчатым выступом. Смазка
к трущимся поверхностям вала и вкладыша подводится
из масленки (на чертеже не показана), ввинчиваемой
в резьбовое отверстие, расположенное в приливе верх-
него вкладыша поз. 4.
Крышку поз. 3 крепят к корпусу поз. 2 двумя шпиль-
ками поз. 7, а корпус крепят к кронштейну поз. 1 че-
тырьмя болтами поз. 6. Кронштейн прикрепляется к стене
пятью болтами (на чертеже не показаны).
Задание
Выполнить чертежи деталей поз. 1 ... 5.
Материал детали поз. 1 — Ст 5 ГОСТ 380—71, поз. 2,
3 — СЧ 15 ГОСТ 1412—79, поз. 4, 5 — БрА9Мц2Л
ГОСТ 493—79.
Ответьте на вопросы:
-
Видна ли деталь поз. 5 на виде сверху?
-
Сколько местных разрезов имеет данный чертеж?
-
Покажите контур детали поз. 3.
17
2-е деталирование
16. РЕГУЛЯТОР ДАВЛЕНИЯ
| Формат | Зона | Поз. | Обозначение | Наименование | Кол. | Приме- |
| Документация | ||||||
| А2 | МЧ00.16.00.00.СБ | Сборочный чертеж | ||||
| Детали | ||||||
| A3 | 1 | МЧ00.16.00.01 | Корпус | 1 | ||
| A3 | 2 | МЧ00.16.00.02 | Штуцер | 1 | ||
| А4 | 3 | МЧ00.16.00.03 | Стакан | 1 | ||
| А4 | 4 | МЧ00.16.00.04 | Цилиндр | 1 | ||
| А4 | 5 | МЧ00.16.00.05 | Седло | 1 | ||
| А4 | 6 | МЧ00.16.00.06 | Седло | 1 | ||
| А4 | 7 | МЧ00.16.00.07 | Клапан | 1 | ||
| А4 | 8 | МЧ00.16.00.08 | Пружина | 1 | ||
| А4 | 9 | МЧ00.16.00.09 | Шток | 1 | ||
| А4 | 10 | МЧ00.16.00.10 | Втулка | 1 | ||
| А4 | 11 | МЧ00.16.00.11 | Игла | 1 | ||
| Стандартные изделия | ||||||
| 12 | Винт М6Х 10.48 ГОСТ 1477—84 | 1 | ||||
| 13 | Гайка М8.5 ГОСТ 5915—70 | 1 | ||||
| Материалы | ||||||
| 14 | Картон А 1 ГОСТ 9347—74 | 1 |
Регулятор давления устанавливается на трубопрово-
дах для предотвращения аварии в случае избыточного
давления газа или воздуха.
















