text (955261), страница 3
Текст из файла (страница 3)
Материал деталей поз. 1 ... 3, 6 — Отливка 15Л-1
ГОСТ 977—75, деталей поз. 4, 5, 7, 8 Ст 5
ГОСТ 380—71.
Ответьте на вопросы:
-
Какая разница в форме деталей поз. 2 и поз. 3?
-
С помощью каких деталей крепят детали поз. 2
и поз. 3? -
Сколько отверстий с резьбой имеет деталь поз. 1?
9
2-е деталирование
08. ФОРСУНКА
| Формат | Зона | Поз. | Обозначение | Наименование | Кол. | Приме- |
| Документация | ||||||
| А2 | МЧ00.08.00.00.СБ | Сборочный чертеж | ||||
| Детали | ||||||
| A3 | 1 | МЧ00.08.00.01 | Корпус | 1 | ||
| A3 | 2 | МЧ00.08.00.02 | Сопло | 1 | ||
| A3 | 3 | MЧ00.08.00.03 | Тройник | 1 | ||
| А4 | 4 | МЧ00.08.00.04 | Конус | 1 | ||
| А4 | 5 | МЧ00.08.00.06 | Ниппель | 1 | ||
| А4 | 6 | МЧ00.08.00.06 | Ниппель | 1 | ||
| А4 | 7 | МЧ00.08.00.07 | Гайка накидная | 2 | ||
| А4 | 8 | МЧ00.08.00.08 | Маховик | 1 | ||
| А4 | 9 | МЧ00.08.00.09 | Гайка | 1 | ||
| А4 | 10 | МЧ00.08.00.10 | Гайка | 1 | ||
| Стандартные изделия | ||||||
| 11 | Гайка М12.5 | 1 |
Форсунка предназначена для распыления жидкого
топлива при сжигании его в топках паровых котлов.
Подача топлива в форсунку происходит через ниппель
поз. 5. Одновременно через ниппель поз. 6 подается пар
из котла или сжатый воздух из компрессора. По каналу
сопла поз. 2 пар устремляется к выходу, где он подхва-
тывает жидкое топливо и распыляет его. Количество
подаваемого в топку котла топлива можно изменять
вращением маховика поз. 8, регулируя тем самым вели-
чину зазора между коническими поверхностями сопла
поз.2 и корпуса поз. 1.
Задание
Выполнить чертежи деталей поз. 1 ... 8. Построить
аксонометрическую проекцию детали поз. 1
Материал деталей поз. 1 ... 7 — БрО5Ц5С5
ГОСТ 613—79, детали поз. 8 — Ст 3 ГОСТ 380—71.
Ответьте на вопросы:
-
Назовите детали в сечении Б—Б.
-
Видны ли детали поз. 2 и 5 на разрезе А—А и
виде сверху? -
Сколько сечений имеется на данном чертеже?
10
1-е деталирование
09. ТИСКИ
| Формат | Зона | Поз. | Обозначение | Наименование | Кол. | Приме- |
| Документация | ||||||
| А2 | МЧ00.09.00.00.СБ | Сборочный чертеж | ||||
| Детали | ||||||
| A3 | 1 | МЧ00.09.00.01 | Корпус | 1 | ||
| A3 | 2 | МЧ00.09.00.02 | Губка подвижная | 1 | ||
| A3 | 3 | МЧ00.09.00.03 | Винт | 1 | ||
| А4 | 4 | МЧ00.09.00.04 | Пластина | 2 | ||
| А4 | 5 | МЧ00.09.00.05 | Крышка | 1 | ||
| А4 | 6 | МЧ00.09.00.06 | Планка | 1 | ||
| Стандартные изделия | ||||||
| 7 | Болт М10Х 24.58 | 4 | ||||
| 8 | Винт А.М8Х 25.58 | 4 | ||||
| 9 | Гайка М8.5 | 4 | ||||
| 10 | Шпилька М8Х 20.58 | 4 |
Тиски служат для закрепления обрабатываемых дета-
лей на фрезерных и строгальных станках.
Корпус поз. 1 приклепляют к столу станка четырьмя
болтами, которые входят в прорези основания корпуса (на чертеже болты не показаны). Обрабатываемую деталь закладывают между двумя смежными пластинами поз. 1
одна из которых прикреплена винтами поз. 8 к корпусу,
другая — к подвижной губке поз. 2 Ходовой винт поз. 3
имеющий прямоугольную резьбу правого направления
фиксируется oт осевого перемещения буртиками, упира-
ющимися в торцы отверстия корпуса поз. 1 и крышки
поз. 5. При перемещении подвижной губки влево» обра-
батываемая деталь зажимается между пластинками. Чтобы
губка не приподнималась, к ней снизу болтами поз. 7
прикреплены две направляющие планки поз.6.
Задание
Выполнить чертежи деталей поз. 1 ... 6.
Материал деталей поз. 1 ... 3, 5 — Сталь 35
ГОСТ 1050—74, поз. 4 — Ст 6 ГОСТ 380—71, поз. 6 —
Сталь 20 ГОСТ 1050—74.
Ответьте на вопросы:
-
Каким количеством шпилек прикрепляется крышка
поз. 5 к корпусу поз. 1? -
Что обозначают проведенные диагонали на конце
детали поз. 3? -
Покажите на изображениях контуры детали поз. 2.
11
2-е деталирование
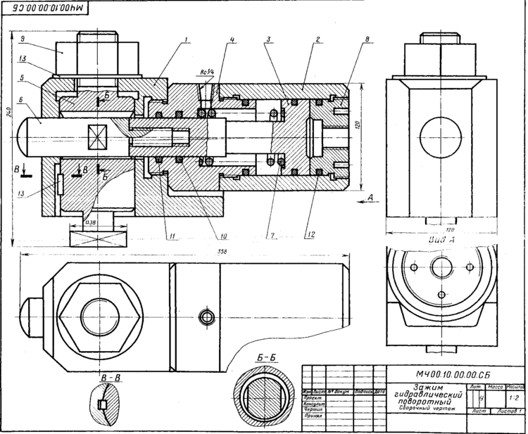
10. ЗАЖИМ ГИДРАВЛИЧЕСКИЙ ПОВОРОТНЫЙ
| Формат | Зона | Поз. | Обозначение | Наименование | Кол. | Приме- |
| Документация | ||||||
| А2 | МЧ00.10.00.00.СБ | Сборочный чертеж | ||||
| Детали | ||||||
| A3 | 1 | МЧ00. 10.00.01 | Корпус | 1 | ||
| A3 | 2 | МЧ00.10.00.02 | Цилиндр | 1 | ||
| A3 | 3 | МЧ00. 10.00.03 | Поршень | 1 | ||
| A3 | 4 | МЧ00. 10.00.04 | Крышка | 1 | ||
| А4 | 5 | МЧ00. 10.00.05 | Палец | 1 | ||
| А4 | 6 | МЧ00. 10.00.06 | Штырь | 1 | ||
| А4 | 7 | МЧ00. 10.00.07 | Пружина | 1 | ||
| А4 | 8 | МЧ00. 10.00.08 | Крышка | 1 | ||
| Стандартные изделия | ||||||
| 9 | Гайка М24.5 ГОСТ 5915—70 | 1 | ||||
| 10 | Кольцо 020-025-30 ГОСТ 9833-73 | 1 | ||||
| 11 | Кольцо СГ 28-17-3,5 ГОСТ 6418—81 | 1 | ||||
| 12 | Кольцо 035-040-30 ГОСТ 9833—73 | 3 | ||||
| 13 | Шайба 24.01.019 ГОСТ 11371—78 | 1 |
Гидравлический поворотный зажим предназначен для
перемещения обрабатываемой на металлорежущих стан-
ках детали до упорной базы.
Зажим устанавливают на столе станка или переходной
плите и закрепляют в пазу с помощью квадратной го-
ловки пальца поз, 5 и гайки поз. 9. Корпус поз. 1 соеди-
нен с гидроцилиндром поз. 2.
Гидроцилиндр может быть одностороннего и двусто-
роннего действия. Под действием давления жидкости,
поступающей поочередно через резьбовые отверстия кры-
шек поз. 4 и поз. 8, поршень перемещается соответственно
вправо или влево. При одностороннем действии верхнее
резьбовое отверстие крышки поз. 4 закрывается пробкой.
В этом случае под действием давления жидкости, посту-
пающей через отверстие крышки поз. 8, поршень через
упорный штырь поз. 6 перемещает обрабатываемую деталь
до упорной базы. Обратно поршень возвращается пру-
жиной поз. 7, при этом жидкость, находящаяся в правой
полости гидроцилиндра, перетекает через резьбовое от-
верстие крышки поз. 8 в гидросистему.















