text (955261), страница 2
Текст из файла (страница 2)
Зажим устанавливают в поперечный паз стола станка
при помощи нижнего выступа плиты поз. 3 и закрепляют
четырьмя болтами поз. 12 Зажим устанавливают а одно
из трех фиксируемых положений (верхний выступ в плите
поз. 3 соответственно входит в одну из трех канавок в кор-
пусе поз. 4) перпендикулярно станочным пазам, что обеспе-
чивает его неподвижность при большом зажимном усилии.
В корпусе поз. 4 расположен зажим поз, 1, соединен-
ный с винтом поз. 2 и поршнем поз. 11 гидроцилиндра.
К резьбовому отверстию крышки поз. 7 присоединяют
гибкий шланг системы. Под давлением масла поршень
перемещается влево, действуя на зажим поз. 1, который
закрепляет обрабатываемую деталь. В исходное положе-
ние зажим возвращает пружина поз. 14. Уплотнительные
кольца поз. 17, 18, 19 обеспечивают герметичность гидро-
цилиндра.
Задание
Выполнить чертежи деталей поз. 1 ... 8, 11. Деталь поз.
1 или поз. 4 изобразить в аксонометрической проекции.
Материал деталей поз. 1, 3 ... 9, 11 —отливка 15Л-1
ГОСТ 977—75, деталей поз. 2, 10, 12, 13 — Сталь 20
ГОСТ 1050—74, детали поз. 14 — Сталь 65Г
ГОСТ 1050—74.
Ответьте на вопросы:
-
Покажите контур детали поз. 4.
-
Сколько отверстий в деталях поз. 1 и поз. 8?
-
Какие детали видно на виде сверху?
6
1-е деталирование
05. КЛАПАН ПРЕДОХРАНИТЕЛЬНЫЙ
| Формат | Зона | Поз. | Обозначение | Наименование | Кол. | Приме- |
| Документация | ||||||
| А2 | МЧ00.05.00.00.СБ | Сборочный чертеж | ||||
| Детали | ||||||
| A3 | 1 | МЧ00.05.00.01 | Корпус | 1 | ||
| A3 | 2 | МЧ00.05.00.02 | Седло | 1 | ||
| А4 | 3 | МЧ00.05.00.03 | Гайка | 1 | ||
| А4 | 4 | МЧ00.05.00.04 | Винт | 1 | ||
| А4 | 5 | МЧ00.05.00.05 | Опора | 1 | ||
| А4 | 6 | МЧ00.05.00.06 | Клапан | 1 | ||
| А4 | 7 | МЧ00.05.00.07 | Пружина | 1 | ||
| Стандартные изделия | ||||||
| 8 | Гайка М24.5 | 1 |
Предохранительный клапан устанавливают в трубопро-
водах, системах управления и регулирования для сбра-
сывания избыточного давления жидкостей или пара.
Клапан регулируют на определенное давление винтом
поз. 4, который фиксируется гайкой поз. 8.
При увеличении давления выше нормы жидкость или
пар давят на клапан поз. 6, который, сжимая пружину
поз. 7, перемещается вправо. При этом жидкость или пар выходят через отверстия клапана и корпуса поз. 1
При падении давления жидкости или пара пружина
перемещает клапан в исходное положение. Для обеспе-
чения хорошей герметичности поверхность клапана при
тирается к седлу поз. 2.
Задание
Выполнить чертежи деталей поз. 1 ... 7.
Материал деталей поз. 2, 3 — Отливка 15Л-1
ГОСТ 977—75, деталей поз. 7 — Сталь 65Г
ГОСТ 1050—74, детали поз. 1 — СЧ 15 ГОСТ 1412— 79,
деталей поз. 4 ... 6 — Ст5 ГОСТ 380 —71.
Ответьте на вопросы:
-
На каких изображениях видна деталь поз. 7?
-
Какое назначение детали поз. 4?
-
Сколько отверстий в детали поз. 5?
7
2-е деталирование
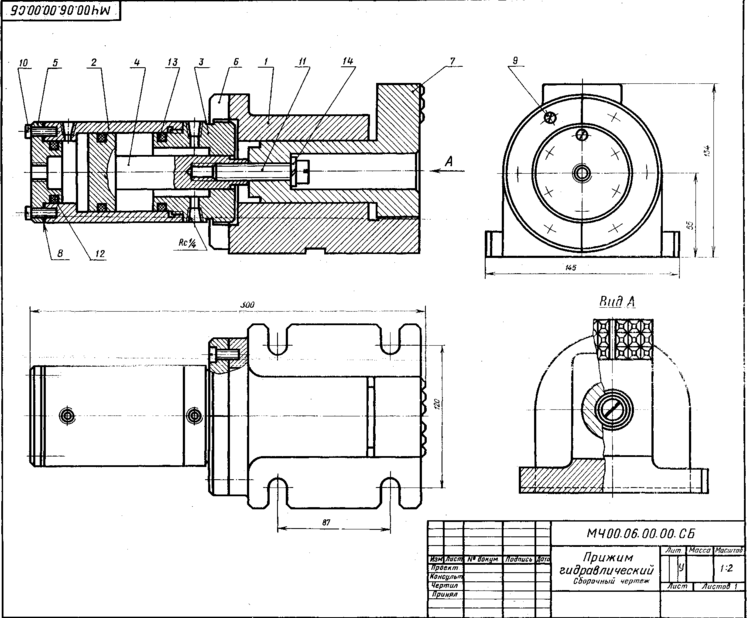
06. ПРИЖИМ ГИДРАВЛИЧЕСКИЙ
| Формат | Зона | Поз. | Обозначение | Наименование | Кол. | Приме- |
| Документация | ||||||
| А2 | МЧ00.06.00.00.СБ | Сборочный чертеж | ||||
| Детали | ||||||
| A3 | 1 | МЧ00.06.00.01 | Корпус | 1 | ||
| A3 | 2 | МЧ00.06.00.02 | Цилиндр | 1 | ||
| A3 | 3 | МЧ00.06.00.03 | Стакан | 1 | ||
| А4 | 4 | МЧ00.06.00.04 | Поршень | 1 | ||
| А4 | 5 | МЧ00.06.00.05 | Крышка | 1 | ||
| А4 | 6 | МЧ00.06.00.06 | Полукольцо | 1 | ||
| A3 | 7 | МЧ00.06.00.07 | Кулачок | 1 | ||
| 8 | МЧ00.06.00.08 | Прокладка | 1 | |||
| Стандартные изделия | ||||||
| 9 | Винт А.М8Х 20.58 ГОСТ 1491—80 | 6 | ||||
| 10 | Винт 2М8Х 25.58 ГОСТ 1491—80 | 6 | ||||
| 11 | Винт 2М16Х 70.58 ГОСТ 1491—80 | 1 | ||||
| 12 | Кольцо 032-037-30 ГОСТ 9833—73 | 1 | ||||
| 13 | Кольцо 055-060-30 ГОСТ 9833—73 | 2 | ||||
| 14 | Шайба 20 65Г 02 9 ГОСТ 6402—70 | 1 |
Гидравлический прижим предназначен для закрепле-
ния обрабатываемых деталей на станках.
Прижим работает от гидроцилиндра, который крепится
к корпусу прихвата поз. 1 двумя полукольцами поз. 6,
входящими в наружные канавки детали поз. 3, полу-
кольца крепятся винтами поз. 9. Прихват фиксируется
двумя шпонками, входящими в нижний паз корпуса
поз. 1 и паз станка, и крепится четырьмя пазовыми бол-
тами.
Гидроцилиндр прижима — двустороннего действия.
Поршень под давлением жидкости, поступающей через
резьбовое отверстие детали поз. 5, перемещается совме-
стно с кулачком поз. 7 вправо, вытесняя через нижнее
отверстие детали поз. 3 жидкость из правой полости гидро-
цилиндра. При этом обеспечивается зажим детали. Под
давлением жидкости, поступающей через верхнее отвер-
стие детали поз. 3, поршень перемещается влево, вытесняя
жидкость из левой полости цилиндра через верхнее от-
верстие детали поз. 2. Кулачок поз. 7 перемещается, и
обрабатываемая деталь освобождается.
Задание
Выполнить чертежи деталей поз. 1 ... 7. Деталь поз. .1
или 7 изобразить в аксонометрической проекции.
Материал деталей поз. 1, 5, 7 — Отливка 20Л-1
ГОСТ 977—75, деталей поз. 2 ... 4 — Сталь 45
ГОСТ 1050—74, детали поз. 8 — картон А 2
ГОСТ 9347—74.
Ответьте на вопросы:
-
Покажите контур детали поз. 1.
-
Видна ли деталь поз. 3 на видах слева и сверху?
-
Как называется разрез, изображенный на виде
сверху?
8
1-е деталирование
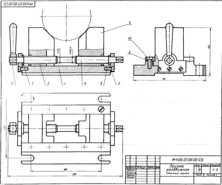
07. ПРИЗМА РАЗДВИЖНАЯ
| Формат | Зона | Поз. | Обозначение | Наименование | Кол. | Приме- |
| Документация | ||||||
| А2 | МЧ00.07.00.00.СБ | Сборочный чертеж | ||||
| Детали | ||||||
| A3 | 1 | МЧ00.07.00.01 | Корпус | 1 | ||
| A3 | 2 | МЧ00.07.00.02 | Призма | 1 | ||
| A3 | 3 | МЧ00.07.00.03 | Призма | 1 | ||
| А4 | 4 | МЧ00.07.00.04 | Винт | 1 | ||
| А4 | 5 | МЧ00.07.00.05 | Кронштейн | 2 | ||
| А4 | 6 | МЧ00.07.00.06 | Рукоятка | 1 | ||
| А4 | 7 | МЧ00.07.00.07 | 2 | |||
| А4 | 8 | МЧ00.07.00.08 | Планка | 2 | ||
| Стандартные изделия | ||||||
| 9 | Винт А.М8Х 25.58 ГОСТ 1491—80 | 6 | ||||
| 10 | Винт А.М12Х 30.58 ГОСТ 1491—80 | 10 |
Раздвижная призма служит в качестве фиксированной
опоры при обработке деталей диаметром 40 ... 200 мм на
сверлильных, расточных, фрезерных и строгальных стан-
ках. Она состоит из корпуса поз. 1, который фиксируется
относительно инструмента шпонками (шпонка на чер-
теже не показана) и крепится станочными болтами. Приз-
матические губки поз. 2 и поз. 3 по направляющим кор-
пуса передвигают вращением винта поз. 4 (с правой и
левой резьбой).
Задание
Выполнить чертежи деталей поз. 1 ... 6.
















