Uchebnoe_posobie_po_vypolneniyu_domashne go_zadania_po_TKM_razdel_obrabotka_rezan iem_profilya (769667), страница 2
Текст из файла (страница 2)
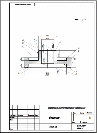
Поверхность Д - растачивание тонкое (Ra 1,6...0.2 мкм; квалитет размера ISO 8...6);
Поверхность Е - точение получистовое (Ra 20...1,6 мкм; квалитет размера ISO 13...11);
Поверхность Ж - растачивание черновое (Ra 12,5...6,3 мкм; квалитет размера ISO 14...10);
Поверхность З - растачивание черновое (Ra 12,5...6,3 мкм; квалитет размера ISO 14...10);
Поверхность И - точение получистовое (Ra 20...1,6 мкм; квалитет размера ISO 13...11);
Поверхность К - растачивание черновое (Ra 10...3,2 мкм; квалитет размера ISO 14...10);
Поверхность Л - точение черновое (Ra 80...6,3 мкм; квалитет размера ISO 14...10);
Поверхность А - растачивание черновое (Ra 12,5...6,3 мкм; квалитет размера ISO 14...10);
8. Условие технической реализации обработки поверхностей
Установ 1
Поверхность Г
-Вид обработки – точение получистовое;
- Оборудование – токарно-винторезный станок, т.к. производство единичное, габариты детали средние.
- Режущий инструмент – токарный проходной отогнутый резец; этим резцом можно снимать фаски. Это уменьшает количество используемых режущих инструментов;
- Способ установки заготовки – трехкулачковый самоцентрирующий патрон, т.к. конструкция детали жесткая;
- Способ установки инструмента – четырехпозиционный поворотный резцедержатель
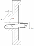
Рис 1.4
Поверхность Д
- Вид обработки – сверление и рассверливание;
- Оборудование - токарно-винторезный станок;
- Режущие инструменты – спиральные сверла;
- Способ установки заготовки – трехкулачковый самоцентрирующий патрон;
- Способ установки инструмента – пиноль задней бабки станка.
Рис 1.5
Поверхности И и Е
- Вид обработки – точение получистовое;
- Оборудование – токарно-винторезный станок;
- Режущий инструмент – токарный проходной упорный резец;
- Способ установки заготовки – трехкулачковый самоцентрирующий патрон;
- Способ установки инструмента – четырехпозиционный поворотный резцедержатель.
Рис 1.6
П
оверхность Ж
- Вид обработки – точение получистовое;
- Оборудование – токарно-винторезный станок;
- Режущий инструмент – токарный прорезной резец;
- Способ установки заготовки – трехкулачковый самоцентрирующий патрон;
- Способ установки инструмента – четырехпозиционный поворотный держатель.
Рис 1.7
Поверхность Ж
- Вид обработки – растачивание черновое;
- Оборудование – токарно-винторезный станок;
- Режущий инструмент – токарный проходной упорный резец;
- Способ установки заготовки – трехкулачковый самоцентрирующий патрон;
- Способ установки инструмента – четырехпозиционный поворотный резцедержатель.
Рис 1.8
П
оверхность Л
- Вид обработки – точение получистовое;
- Оборудование – токарно-винторезный станок;
- Режущий инструмент – токарный проходной отогнутый резец;
- Способ установки заготовки - трехкулачковый самоцентрирующий патрон;
- Способ установки инструмента – четырехпозиционный поворотный резцедержатель.
Рис 1.9
Установ 2
Поверхность В
-
Вид обработки – точение получистовое;
- Оборудование – токарно-винторезный станок;
- Режущий инструмент – токарный проходной отогнутый резец;
- Способ установки заготовки - трехкулачковый самоцентрирующий патрон;
- Способ установки инструмента – четырехпозиционный поворотный резцедержатель.
Рис 1.10
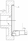
П
оверхность А
- Вид обработки – растачивание черновое;
- Оборудование – токарно-винторезный станок;
- Режущий инструмент – токарный проходной упорный резец;
- Способ установки заготовки – трехкулачковый самоцентрирующий патрон;
- Способ установки инструмента – четырехпозиционный поворотный резцедержатель.
Рис 1.11
П
оверхность Д
- Вид обработки – точение тонкое;
- Оборудование – токарно-винторезный станок;
- Режущий инструмент – токарный расточной резец для обработки сквозных отверстий;
- Способ установки заготовки - трехкулачковый самоцентрирующий патрон;
- Способ установки инструмента – четырехпозиционный поворотный резцедержатель.
Рис 1.12
Поверхность М
-
Вид обработки – точение получистовое;
- Оборудование – токарно-винторезный станок;
- Режущий инструмент – токарный проходной отогнутый резец;
- Способ установки заготовки - трехкулачковый самоцентрирующий патрон;
- Способ установки инструмента – четырехпозиционный поворотный резцедержатель.
Рис 1.13
П
оверхность Б
- Вид обработки – точение чистовое;
- Оборудование – токарно-винторезный станок;
- Режущий инструмент – токарный проходной упорный резец;
- Способ установки заготовки – трехкулачковый самоцентрирующий патрон;
- Способ установки инструмента – четырехпозиционный поворотный резцедержатель.
Рис 1.14
П
оверхность З и К
- Вид обработки – точение получистовое;
- Оборудование – токарно-винторезный станок;
- Режущий инструмент – токарный проходной отогнутый резец;
- Способ установки заготовки - трехкулачковый самоцентрирующий патрон;
- Способ установки инструмента – четырехпозиционный поворотный резцедержатель.
Рис 1.15
Рис 1.16 Чертеж детали, технология изготовления которого предлагает механическую обработку профиля резанием.
27
















