Диплом2 (1224649), страница 6
Текст из файла (страница 6)
Среднемесячная заработная плата вычисляется по формуле:
=93,9 + 18,78 +28,17 = 140,85 руб.
Заработную плату монтажника при изготовлении стенда рассчитаем по формуле:
где Тм - трудоемкость монтажных работ, будет равна 24 часа;
Нс - нормо-часов в месяц равна 167,3 часов.
Следовательно:
=
Полученные результаты сводятся в таблицу 13
Таблица 13. Заработная плата рабочих занятых в сборке стенда.
| Виды работы | Часовая тарифн ая ставка, руб. | Доплата, руб. в час | Итого, руб. | Заработная плата за время изготовления стенда | ||||
| Премия | Районный коэффициент | За выслугу лет | ||||||
| Сварочные | 38,17 | 17,25 | 17,25 | 25,88 | 98,55 |
| ||
| Токарные | 18,78 | 18,78 | 28,17 | 103,9 |
| |||
| Монтажные | 18,78 | 18,78 | 28,17 | 103,9 |
| |||
| Итого | 7042,13 | |||||||
Определение страховых взносов.
Определение отчислений на социальные нужды составляет 30% от заработной платы рабочих.
Зесн=30% •Ззп
Зесн = 0,3•7042,13 = 2112,64 руб.
Определение накладных расходов.
К накладным расходам относят электроэнергию, затрачиваемую при сварочных и токарных операциях.
Сварочные работы для изготовления стенда по продолжительности занимают 10 часов. Один кВт/ч для предприятия равен 3,2 руб. Мощность сварочного агрегата принимаем 50 кВт.
= 10•3,2•50 = 1600 руб.
Для токарной работы используется токарный станок, потребляемая мощность которого равна 8 кВт. Токарные работы для изготовления стенда по продолжительности занимают 30 часов.
Следовательно, по формуле:
= 30•3,2•8= 768 руб.
Накладные расходы рассчитываются по формуле:
НР=
+
+
НР=1600+768+21345,13+63+128,7+768=24672,83 руб.
Итого капитальные вложения для стенда нового образца можем определить по формуле:
К = 14030 + 7042,13+ 2288,09 + 24672,83 = 48033,05 руб.
5.2 Эксплуатационные расходы.
Сумма эксплуатационных расходов для стенда нового образца за год рассчитаем по формуле:
ЭР=А+3ЗП
где А - амортизация
Ззп, - заработная плата рабочего.
Амортизационные отчисления рассчитываются линейным методом. Срок полезного использования равен 5 лет. В данном случае годовая норма амортизации будет 20% (100% /5лет). Годовая сумма амортизационных отчислений составит 9606,6руб.(48033,05руб•20%)
Месячная сумма амортизационных отчислений составит 855,55руб(48033,05/12мес).
Заработная плата рабочего.
Стенд обслуживает один слесарь пятого разряда. Так как стенд занят в работе только 30% от всего рабочего времени в месяц, следовательно, тарифную ставку устанавливаем 30% от нормы.
Рассчитаем заработную плату на год, по формуле:
Ззп=12• (Ст+Дпр+Дтку+ Дрк + Дс)
где Ст - тарифная ставка;
Дпр - доплата с учетом премии;
Дтку - доплата за тяжелые климатические условия;
Дрк - доплата с учетом районного коэффициента;
Дс - доплата с учетом стажа работы.
Тарифная ставка, определится по формуле:
Ст = 5839•1,5•0,3 = 2627,55 руб.
Доплата с учетом премии вычисляется по формуле:
Дпр = 20%•2627,55 = 525,51 руб.
Доплата за тяжёлые климатические условия определяется по формуле:
Ддку = 20%•2627,55 = 525,51 руб.
Доплата с учетом районного коэффициента рассчитывается по формуле:
Дрк = 20%• (2627,55 + 525,51) = 630,61 руб.
Среднемесячная заработная плата вычисляется по формуле:
Ззп = 2627,55 + 525,51 + 525,51 + 630,61 = 4309,18руб
Сумма эксплуатационных расходов за год рассчитаем по формуле:
ЭР = 9606,6руб + 4309,18 = 13915,78 руб.
Отчисления в фонды с заработной платы сотрудников занятых в сборке стенда:
1.Отчисления на обязательное пенсионное страхование (22%)
7042,13-22%=1549,27руб
2. Отчисления на обязательное социальное страхование (2,9%)
7042,13-2,9%=204,22руб
3. Отчисления на обязательное медицинское страхование (5,1%)
7042,13-5,1%=359,15руб
Отчисления в фонды с заработной платы сотрудника работающего со стендом:
1.Отчисления на обязательное пенсионное страхование (22%)
4309,18-22%=948,02руб
2. Отчисления на обязательное социальное страхование (2,9%)
4309,18-2,9%=124,97руб
3. Отчисления на обязательное медицинское страхование (5,1%)
4309,18-5,1%=219,77руб
Общий анализ затрат выведен в таблицу 14
Таблица 14. анализ затрат.
| Затраты увеличивающие стоимость испытательного стенда | Затраты при проведении работ на данном стенде | ||
| Затраты на комплектующие и материалы | 14303руб | Затраты на заработную плату рабочего работающего со стендом | 4309,18руб |
| Затраты на заработную плату рабочих занятых монтажом стенда | 7042,13руб | Затраты на отчисления во внебюджетные фонды с заработной платы рабочего работающего со стендом | 1292,76руб |
| Затраты на отчисления во внебюджетные фонды с заработной платы рабочих занятых монтажом стенда | 2112,64руб | ||
Вывод: Разработанный стенд является испытательной машиной. Соответственно его применение не дает явного экономического эффекта, однако введение его в работу позволит выйти на новый уровень диагностики и ремонта путевого инструмента, с его помощью возможно определить такие параметры как:
- герметичность гидросистемы;
- максимальное усилие;
- максимальный рабочий ход штоков гидроцилиндров под нагрузкой;
- отсутствие деформации гильз цилиндров.
6. Технологическая часть.
Изготовление детали «Вилка»
6.1 Описание конструкции детали.
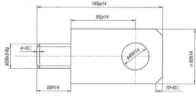
Деталь «Вилка» представляет собой корпус шириной 50 мм, с центральным пазом прямоугольного сечения 20 мм, расположенного параллельно общей центральной оси, со сквозным отверстием 40 мм перпендикулярным центральной оси вращения, на конце противоположном пазу имеется цилиндрический стержень длиной 50 мм с нарезанной на нем резьбой М36х2. Деталь представлена на рисунке 27.
6.2 Выбор заготовки.
Габариты готовой детали составляют: высота - 80 мм, припуск – h14; длина 185 мм, припуск - js14. Материал сталь 35 ГОСТ 1050-88. В соответствии с требованиями конструкции и характером изготовления, в качестве заготовки для единичного производства выбирается пруток диаметром 85 мм, длиной 190мм. Эскиз заготовки представлен на рисунке 28.
Рисунок 28. Эскиз заготовки.
Физико-механические свойства стали 35 приведены в таблице 16. Таблица 16. Физико-механические свойства стали 35
| Предел прочности σв, Мпа | Предел текучести σт, Мпа | Твердость, НВ |
| 530 | 20 | 207 |
6.3 Определение технологического маршрута механической обработки
3
Конструкция готовой детали со сквозной нумерацией поверхностей приведена на рисунке 29.| Таблица 17. Последовательность операций, установов и переходов | |||||
| № оп. | Наименование операции | №№ переходов | Наименования переходов и номера обрабатываемых поверхностей | Тип и марка оборудо- | Тип приспособлений |
| 1 | Токарная | 1.1 1.2 1.3 1.4 1.5 | Установ А Торцевание поверхности 1 Точение поверхности 2 Нарезание резьбы на поверхности 2 Установ Б Торцевание поверхности 3 Точение фаски 4 | Токарно-винторезный | Трёхкулачковый самоцентрирующий-ся патрон, центр вращения |
| 2 | Фрезерная | 2.1 2.2 2.3 | Установ А Фрезеровать поверхность 5 Установ Б Фрезеровать поверхность 6 Установ В Фрезеровать паз 7 | Фрезерный станок ВМ127 | Тисы слесарные |
| 3 | Сверлильная | 3.1 | Установ А Сверление отверстия 8 | Сверлильный станок 2Т140 | Тисы слесарные |
Так как деталь изготавливается из проката, внешний диаметр которого задан, общий припуск на обработку каждой ступени вала равен фактической толщине удаляемого материала. Разделение общего припуска на стадии обработки и определение числа проходов черновой токарной обработки производятся из следующих условий:
где
- суммарный припуск на обработку, мм;
- припуск на черновую обработку, мм;
- число проходов черновой токарной обработки
- оптимальная толщина стружки при черновой токарной обработке, для многолезвийной обработки качественной стали твердосплавным резцом принимается по рекомендациям [3]
=1.5-2мм IТ14 - поле допуска после чернового точения.
Результаты расчета припусков по переходам сводятся в таблицы 3-4.















