вилка (1224647)
Текст из файла
6. Технологическая часть.
Изготовление детали «Вилка»
6.1 Описание конструкции детали.
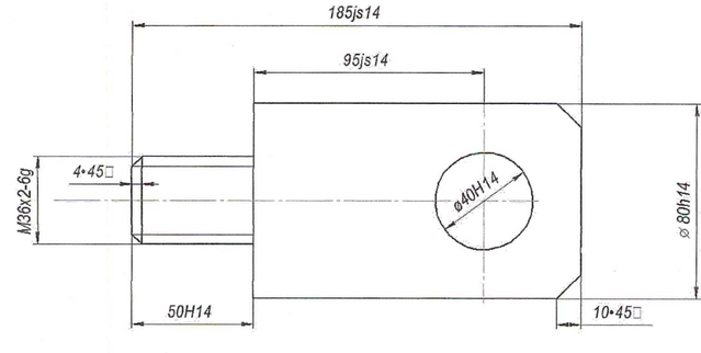
Деталь «Вилка» представляет собой корпус шириной 50 мм, с центральным пазом прямоугольного сечения 20 мм, расположенного параллельно общей центральной оси, со сквозным отверстием 40 мм перпендикулярным центральной оси вращения, на конце противоположном пазу имеется цилиндрический стержень длиной 50 мм с нарезанной на нем резьбой М36х2. Деталь представлена на рисунке 27.
6.2 Выбор заготовки.
Габариты готовой детали составляют: высота - 80 мм, припуск – h14; длина 185 мм, припуск - js14. Материал сталь 35 ГОСТ 1050-88. В соответствии с требованиями конструкции и характером изготовления, в качестве заготовки для единичного производства выбирается пруток диаметром 85 мм, длиной 190мм. Эскиз заготовки представлен на рисунке 28.
Рисунок 28. Эскиз заготовки.
Физико-механические свойства стали 35 приведены в таблице 16. Таблица 16. Физико-механические свойства стали 35
| Предел прочности σв, Мпа | Предел текучести σт, Мпа | Твердость, НВ |
| 530 | 20 | 207 |
6.3 Определение технологического маршрута механической обработки
3
Конструкция готовой детали со сквозной нумерацией поверхностей приведена на рисунке 29.
| Таблица 17. Последовательность операций, установов и переходов | |||||
| № оп. | Наименование операции | №№ переходов | Наименования переходов и номера обрабатываемых поверхностей | Тип и марка оборудо- | Тип приспособлений |
| 1 | Токарная | 1.1 1.2 1.3 1.4 1.5 | Установ А Торцевание поверхности 1 Точение поверхности 2 Нарезание резьбы на поверхности 2 Установ Б Торцевание поверхности 3 Точение фаски 4 | Токарно-винторезный | Трёхкулачковый самоцентрирующий-ся патрон, центр вращения |
| 2 | Фрезерная | 2.1 2.2 2.3 | Установ А Фрезеровать поверхность 5 Установ Б Фрезеровать поверхность 6 Установ В Фрезеровать паз 7 | Фрезерный станок ВМ127 | Тисы слесарные |
| 3 | Сверлильная | 3.1 | Установ А Сверление отверстия 8 | Сверлильный станок 2Т140 | Тисы слесарные |
Так как деталь изготавливается из проката, внешний диаметр которого задан, общий припуск на обработку каждой ступени вала равен фактической толщине удаляемого материала. Разделение общего припуска на стадии обработки и определение числа проходов черновой токарной обработки производятся из следующих условий:
где
- суммарный припуск на обработку, мм;
- припуск на черновую обработку, мм;
- число проходов черновой токарной обработки
- оптимальная толщина стружки при черновой токарной обработке, для многолезвийной обработки качественной стали твердосплавным резцом принимается по рекомендациям [3]
=1.5-2мм IТ14 - поле допуска после чернового точения.
Результаты расчета припусков по переходам сводятся в таблицы 3-4.
Таблица 18. Припуски на токарную обработку
| № перехода |
|
| nпр, мм | t, мм |
| 1.1 | 2 | 2 | 1 | 2 |
| 1.2 | 22 | 2 | 11 | 2 |
| 1.5 | 3 | 3 | 1 | 3 |
Таблица 19. Припуски на фрезерную обработку
| № перехода | Припуск, мм | |
| Врезное фрезерование | Проходное фрезерование | |
| 3 | 20 | 15 |
6.4 Подбор оборудования
Исходя из характера производства, выбирается следующее оборудование:
■ операции 1 и 4 - универсальный токарно-винторезный станок 1К62
■ операция 2 - вертикально-фрезерный станок ВМ127
■ операция 3 - вертикально-сверлильный станов 2Т140
Таблица 20. Характеристики станка1К62
| Наибольший диаметр обрабатываемой детали, мм | 400 |
| Расстояние между центрами, мм | 100 |
| Число ступеней частоты вращения шпинделя | 24* |
| Частота вращения шпинделя, об./мин | 12,5-2000 |
| Число ступеней подач суппорта | 42** |
| Подача суппорта, мм/об.: продольная | 0,07-4,16 |
| поперечная | 0,035-2,08 |
| Мощность главного электродвигателя, кВт | 10 |
| КПД станка | 0,77 |
| Наибольшая сила подачи, реализуемая механизмом продольной подачи, Н | 3600 |
*частота вращения шпинделя, об./мин - 12,5; 16; 20; 25; 31,5; 40; 50; 63; 80; 100; 125; 160; 200; 250; 315; 400; 500; 530; 630; 800; 1000; 1250; 1600 2000. **Подача продольная, мм/об.: 0,070; 0,074; 0,084; 0,097; 0,11; 0,12; 0,13 0,14; 0,15; 0,17; 0,195; 0,21; 0,23; 0,26; 0,28; 0,30; 0,34; 0,39; 0,43; 0,47; 0,52 0,57; 0,61; 0,7; 0,78; 0,87; 0,95; 1,04; 1,14; 1,21; 1,4; 1,56; 1,74; 1,9; 2,08; 2,28; 2,42; 2,8; 3,12; 3,48; 3,8; 4,16. Подачи поперечные, мм/об., составляют 0,5Sпрод.
Таблица 21. Характеристики станка ВМ127
| Рабочая поверхность стола, мм | 1600x400 |
| Число ступеней частоты вращения шпинделя | 12* |
| Частота вращения шпинделя, об./мин | 50-2240 |
| Число ступеней подач | 12** |
| Подача стола, мм/мин: продольная | 4-1010 |
| поперечная | 6-300 |
| вертикальная | 2^00 |
| Допустимое усилие механизма подачи, кгс: продольное | 700 |
| поперечное | 500 |
| вертикальное | 500 |
| Мощность главного электродвигателя, кВт | 11 |
| Мощность электродвигателя подачи стола, кВт | 2,1 |
| КПД станка | 0,75 |
*частота вращения шпинделя, об./мин - 50; 71; 100; 140; 200; 280; 400; 560; 800; 1120; 1600; 2240. ** Подача продольная, мм/мин: 25; 35,5; 50; 71; 100; 140; 200; 280; 400; 560; 800; 1120. ** Подача поперечная, мм/мин: 18; 25; 35,5; 50; 71; 100; 140; 200; 280; 400; 560; 800. ** Подача вертикальная, мм/мин: 9; 12,5; 18; 25; 35,5; 50; 70; 100; 140; 200; 280; 400.
Таблица 21. Характеристики станка 2T140
| Технические характеристики | 2Т140 |
| Максимальный диаметр сверления, мм | 40 |
| Частота вращения шпинделя, об/мин | 75.. 1800 |
| Подача шпинделя об/мин | 0,1-0,3 |
| Мощность электродвигателя главного привода, кВт | 2,2 |
| Размер конуса шпинделя | Морзе4 |
| Поверхность стола мм | 500x500 |
| Габаритные размеры, мм | 950 |
| 560 | |
| 2200 | |
| Масса станка, кг | 575 |
6.5 Подбор инструмента
Для проточной токарной обработки выбирается: как для черновой, так и для чистовой обработки - проходной упорный резец (для черновой обработки рекомендуется проходной отогнутый, но так как толщина струяски не превышает 2 мм, его можно заменить на упорный). Материал режущей кромки для черновой обработки - однокарбидный (вольфрамовый) твердый сплав ВК8 с хорошей термостойкостью.
Для фрезерования поверхности вилки выбирается торцевая фреза из быстрорежущей стали Р18, диаметром 100 мм.
Для фрезерования паза выбирается концевая фреза из быстрорежущей стали Р18, диаметром 20 мм.
Измерительный инструмент: штангенциркуль с пределом измерения 200 мм и точностью измерения 0,05 мм.
6.6 Расчет параметров обработки
Черновое точение поверхности 2
Подача при черновом точении выбирается равной 0,6 мм/об /5/. Уточняется в соответствии с паспортными характеристиками выбранного станка 1К62 - 0.61 мм/об.
Расчетная скорость резания при точении Vр, м/мин, вычисляется по
эмпирической формуле
Характеристики
Тип файла документ
Документы такого типа открываются такими программами, как Microsoft Office Word на компьютерах Windows, Apple Pages на компьютерах Mac, Open Office - бесплатная альтернатива на различных платформах, в том числе Linux. Наиболее простым и современным решением будут Google документы, так как открываются онлайн без скачивания прямо в браузере на любой платформе. Существуют российские качественные аналоги, например от Яндекса.
Будьте внимательны на мобильных устройствах, так как там используются упрощённый функционал даже в официальном приложении от Microsoft, поэтому для просмотра скачивайте PDF-версию. А если нужно редактировать файл, то используйте оригинальный файл.
Файлы такого типа обычно разбиты на страницы, а текст может быть форматированным (жирный, курсив, выбор шрифта, таблицы и т.п.), а также в него можно добавлять изображения. Формат идеально подходит для рефератов, докладов и РПЗ курсовых проектов, которые необходимо распечатать. Кстати перед печатью также сохраняйте файл в PDF, так как принтер может начудить со шрифтами.
мм














