ДИПЛОМ ГОТОВЫЙ - копия (1222174), страница 12
Текст из файла (страница 12)
Компания активно реализует рекламную деятельность по нескольким направлениям, выделяя на них достаточно емкий бюджет, при этом основной упор сделан на наружную рекламу, а также на рекламу на телевидении и радио. В будущем перспективном периоде, предприятие планирует расширить маркетинговый бюджет, увеличить затраты на различные мероприятия, в том числе новые, так как понимает эффективность этой деятельности, ощущая увеличение реализации услуг и продукции после увеличения активности своей маркетинговой деятельности.
-
Направления совершенствования маркетинговой деятельности ФГУП ГУСС «Дальспецстрой» при Спецстрое России
-
Предложения по совершенствованию маркетинговой деятельности
Поскольку ФГУП «ГУСС «Дальспецстрой» при Спецстрое России является государственным предприятием, производственная деятельность которого в основном планируется на основании генеральных подрядов на строительство, то осуществление маркетинговой деятельности в отношении строительства, осуществляемого по государственным заказам, не является приоритетным направлением отдела пресс службы. Особое внимание уделяется собственному строительству, на которое и направлены все силы маркетинговых средств. В связи с этим, предложения, представленные в данной работе, будут направлены на совершенствование маркетинговых мероприятий в сфере жилищного строительства.
Одним из объектов собственного строительства является жилой район «Патрокл», который находится в г.Владивостоке. Для данного объекта создан сайт, управление которым осуществляется из г. Хабаровска, путем связи с филиалом, находящимся в г.Владивостоке. Изучив внимательно сайт, можно сказать о том, что он имеет ряд недостатков. Таких как:
-
Отсутствие информации о планировках квартир, в строящемся жилом комплексе;
-
Отсутствие информации о ходе выполненных работ;
-
Отсутствие информации о проектных декларациях;
-
Отсутствие информации о документах на осуществление деятельности;
-
Наличие не полной информации о застройщике;
-
Перечислено слишком малое количество объектов строительства в г. Владивостоке;
-
Отсутствие информации о руководящем составе.
Таким образом, предлагая мероприятия по совершенствованию маркетинговой деятельности предприятия, можно заострить внимание на устранении вышеперечисленных недостатков.
Как уже было упомянуто выше, управление сайтом осуществляется из г. Хабаровска. В главном управлении ФГУП «ГУСС «Дальспецстрой» при Спецстрое России сформирован отдел технического обеспечения, в составе которого присутствует системный администратор, в должностные обязанности которого входит работа с сайтом предприятия, его обновление и реконструкция. Следовательно, ликвидируются затраты на оплату за обслуживание сайта сторонним организациям. Затраты останутся неизменными, только на заработную плату сотрудника отдела технического обеспечения.
Предлагая деятельность по доработке сайта, стоит приложить графический материал с описанием всех предлагаемых мероприятий, который наглядно показывает процесс его совершенствования (рисунок 3.1-3.9). Поскольку у предприятия есть главный сайт, который достаточно наполнен информацией и грамотно устроен, то можно провести аналогию с ним.
-
На вкладке «О жилом районе» в разделе «Фото и видео материалы» следует создать еще 2 альбома с фотографиями планировок жилых помещений и коммерческой недвижимости, а также отчет о ходе строительных работ (рисунки 3.1, 3.2). Это необходимо для того, чтобы посетитель сайта смог сориентироваться в расположении комнат и, не выходя из дома, представить, как может выглядеть его будущая квартира, а также на каком этапе строительства она находится (рисунки 3.1, 3.2).
Рисунок 3.1 Вкладка «О жилом районе»
Рисунок 3.2 Раздел «Фото и видео материалы»
-
На вкладке «О жилом районе»» следует создать ссылку новый раздел с названием «Проектные декларации». Ссылка должна направлять покупателей на страницу с перечнем проектных деклараций на строительство недвижимости. Проектная декларация – это документ, содержащий информацию о застройщике и объекте долевого строительства, о виде лицензируемой деятельности, сроках исполнения работ и др., подлежащий обязательному опубликованию застройщиком в СМИ (рисунок 3.3).
Рисунок 3.3. Пример добавления ссылки на раздел «Проектные декларации»
-
На вкладке «О застройщике»» следует создать ссылку новый раздел с названием «Документы на осуществление деятельности». Ссылка должна направлять покупателей на страницу с перечнем документов на осуществление той или иной деятельности. Покупатель должен быть уверен в надежности организации, в которую, возможно, хотел бы обратиться за покупкой недвижимости, в том, что у него есть лицензия на проведение тех или иных работ. От этого зависит его удовлетворенность в покупке (рисунок 3.4).
Рисунок 3.4 Пример добавления ссылки на раздел «Документы на осуществление деятельности»
-
Во вкладке «О застройщике» в разделе «О Дальспецстрое» следует добавить более полную информацию о застройщике (рисунок 3.5).
Рисунок 3.5 Вкладка «О застройщике»
Раздел «О Дальспецстрое» уже содержит некоторую информацию о предприятии, но ее очень мало и человек, не знающий о предприятии, не сможет создать о нем полный образ, соответствующий действительности, поэтому целесообразно будет к имеющейся информации добавить новую и актуальную (рисунок 3.6).
Рисунок 3.6 Раздел «О Дальспецстрое»
-
Во вкладке «О застройщике» в разделе «Объекты» необходимо указать информацию обо всех объектах, которые были построены предприятием, для того чтобы посетитель сайта смог оценить масштабы его строительной деятельности. Ведь «Дальспецстрой» является крупнейшим застройщиков на Дальнем Востоке, которому доверяют, и которая стабильно развивается (рисунки 3.7, 3.8).
Рисунок 3.7 Вкладка «О застройщике»
Рисунок 3.8 Раздел «Объекты»
-
На панели вкладок целесообразно было бы добавить вкладку с названием «О руководстве», которая отправляет посетителей сайта в абсолютно новый раздел, где указана информация о руководстве предприятия. Знакомство потребителя с руководством, сближает его с предприятием, он начинает думать о том, что его впустили в святая святых, что располагает его положительным образом к организации (рисунок 3.9).
Рисунок 3.9 Пример добавления вкладки «О руководстве» на панели вкладок
Все эти мероприятия помогут сформировать у покупателей благоприятное отношение к предприятию. Он почувствует, что имеет дело с серьезной организацией, надежной, качественной и целью которой является забота о потребителе и удовлетворение его потребностей.
Следующим мероприятием, которое можно предложить для совершенствования маркетинговой деятельности, является создание шоу-рума. Шоу-рум в переводе с английского языка означат «демонстрационная комната», что в полной мере описывает саму идею данного мероприятия. Его целью является наглядное представление того, как может выглядеть квартира, приобретенная в строительной компании, в данном случае «Дальспецстрой». Данный проект значительно расширяет возможности компании в сфере продаж. Она не только демонстрирует планировки квартир и нежилых помещений в целом, а выходит на новый уровень – предоставляют реальную возможность оказаться в реальной меблированной квартире с современным дизайн проектом. Такой эксперимент позволяет вдвойне заинтересовать клиента и подогреть его желание приобрести квартиру.
У «Дальспецстроя» для осуществления данной идеи имеются большие возможности. Поскольку предприятие занимается жилищной застройкой, в одной из квартир собственного строительства можно разместить тот самый шоу-рум, о котором идет речь, это позволит сократить расходы на аренду коммерческой недвижимости. В структуре предприятия имеется «проектный отдел», который занимается различного рода проектированием и осуществлением ремонта под ключ. В отделе работают высококвалифицированные специалисты с огромным багажом знаний. Отделку квартиры можно поручить именно этому отделу, что позволит сократить расходы на работу сторонней организации. Разработка дизайн проекта осуществляется дизайнером, стоимость своих услуг он определяет самостоятельно, в зависимости от сложности работы. Составлением смет, занимается сметный отдел.
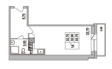
Для примера можно рассчитать смету по ремонту квартиры студии (рисунок 3.10).
Рисунок 3.10 План квартиры
Квартира – 32.9
:
-
Комната + кухня 22,7
; -
Прихожая 6,7
; -
Ванная 3,5
.
В смету включено:
-
стены - выравнивание стен штукатуркой, чистовая шпаклёвка в 2 слоя и наклейка обоев. В ванной комнате - идеальное выравнивание (штукатурка по маякам) и укладка плитки.
-
потолок - выравнивание потолка, чистовая шпаклёвка в 2 слоя и покраска. В ванной комнате - монтаж реечного потолка и точечных светильников.
-
полы - выравнивание полов самовыравнивающим раствором, настил ламината в комнате, настил линолеума в прихожей и укладка кафеля в ванной.
-
сантехника - полная прокладка труб водопровода, установка унитаза, раковины и душевой кабины.
-
электрика - перенос и увеличение розеток и выключателей 5 шт.
Расчет сметы для комнаты, совмещенной с кухней – 22,7
. Площадь стен: 45
; площадь потолка, пола: 22,7
(таблицы 3.1 – 3.5).
















