6 Пояснительная записка (1205050), страница 12
Текст из файла (страница 12)
Ситуационный план местности до строительства
Ситуационный план местности после строительства
Поперечные профили земляного полотна
Конструкция верхнего строения пути
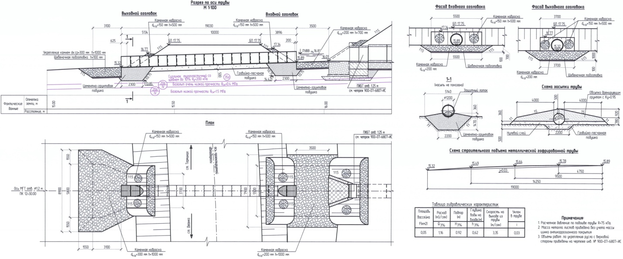
Прямоугольная железобетонная труба отв. 1,25 м
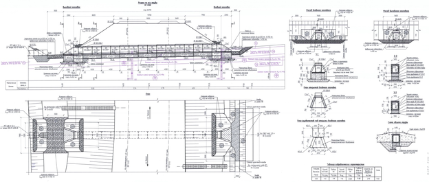
Металлическая гофрированная труба отверстием 1, 2 м
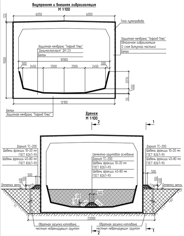
Путепровод тоннельного типа
Поперечные профили Автомобильной дороги
Приложение Б
Рассчитываемые и проектируемые мероприятия и ресурсы
Таблица Б.1 - Ведомость ширины полосы отвода
| ПК | Тип поперечного профиля | Нраб | Во | Вн | Вв | П.О. | |
| Выемка | Насыпь | Л | |||||
| 00+00 | Насыпь |
| 1,50 | 7,61 | 9,91 | 7,61 |
|
| 1+00 | Насыпь |
| 1,42 | 8,79 | 11,36 | 8,79 | 12,04 |
| 2+00 | Насыпь |
| 1,51 | 11,70 | 16,80 | 11,70 | 21,52 |
| 3+00 | Насыпь |
| 0,16 | 6,20 | 7,26 | 6,20 | 1,08 |
| 4+00 | Выемка | 1,30 |
| 11,25 | 13,85 | 21,56 | 40,81 |
| 5+00 | Выемка | 1,90 |
| 12,00 | 14,60 | 25,52 | 58,78 |
| 6+00 | Выемка | 3,28 |
| 13,60 | 16,20 | 32,64 | 99,88 |
| 7+00 | Выемка | 3,18 |
| 16,95 | 19,55 | 36,89 | 114,29 |
| 8+00 | Выемка | 1,78 |
| 18,33 | 20,93 | 31,11 | 69,99 |
| 9+00 | Насыпь |
| 0,64 | 6,20 | 8,04 | 6,20 | 4,56 |
| 10+00 | Насыпь |
| 2,86 | 6,20 | 17,72 | 6,20 | 29,72 |
| 11+00 | Насыпь |
| 4,70 | 13,94 | 27,86 | 13,94 | 96,98 |
| 12+00 | Насыпь |
| 6,26 | 15,82 | 33,82 | 15,82 | 148,42 |
| 13+00 | Насыпь |
| 5,66 | 20,79 | 37,51 | 20,79 | 156,83 |
| 14+00 | Насыпь |
| 3,34 | 15,15 | 24,53 | 15,15 | 48,21 |
| 15+00 | Насыпь |
| 3,42 | 21,65 | 30,58 | 21,65 | 77,30 |
| 16+00 | Насыпь |
| 6,47 | 33,00 | 50,35 | 33,00 | 240,88 |
| 17+00 | Насыпь |
| 10,52 | 43,80 | 74,30 | 43,80 | 602,90 |
| 18+00 | Насыпь |
| 12,86 | 43,30 | 77,92 | 43,30 | 744,29 |
| 19+00 | Насыпь |
| 8,75 | 43,80 | 68,65 | 43,80 | 571,81 |
| 20+00 | Насыпь |
| 4,47 | 43,80 | 54,06 | 43,80 | 166,85 |
| 21+00 | Насыпь |
| 2,20 | 43,80 | 59,49 | 43,80 | 140,69 |
| 22+00 | Насыпь |
| 4,25 | 46,40 | 56,58 | 46,40 | 109,74 |
| 23+00 | Насыпь |
| 2,77 | 48,10 | 55,14 | 48,10 | 120,79 |
| 24+00 | Насыпь |
| 4,77 | 49,50 | 61,51 | 49,50 | 222,58 |
| 25+00 | Насыпь |
| 4,48 | 49,60 | 62,01 | 49,60 | 230,47 |
| 26+00 | Насыпь |
| 2,86 | 80,99 | 101,53 | 80,99 | 240,01 |
| 27+00 | Насыпь |
| 2,82 | 66,83 | 87,73 | 66,83 | 185,47 |
| 28+00 | Насыпь |
| 6,42 | 30,07 | 55,15 | 30,07 | 267,16 |
| 29+00 | Насыпь |
| 10,62 | 34,52 | 55,62 | 34,52 | 351,63 |
| 29+50 | Полунасыпь-полувыемка | 1,01 | 2,19 | 12,43 | 12,43 | 27,15 | 54,45 |
| 30+00 | Выемка | 0,44 |
| 15,62 | 15,62 | 18,63 | срезка |
| 30+39,69 | Выемка | 0,44 |
| 11,14 | 11,14 | 13,19 | срезка |
| 30+50 | Насыпь |
| 0,83 | 14,77 | 19,85 | 14,77 | срезка |
| 30+80,8 | Выемка | 0,73 |
| 11,81 | 11,81 | 14,50 | срезка |
| 30+94 | Выемка | 1,03 |
| 12,92 | 12,92 | 15,77 | срезка |
Продолжение таблицы Б.1
| 31+00 | Выемка | 1,28 |
| 13,04 | 13,04 | 19,85 | срезка |
| 31+50 | Выемка | 1,58 |
| 13,62 | 13,62 | 18,15 | срезка |
| 32+00 | Выемка | 1,69 |
| 12,99 | 12,99 | 19,45 | срезка |
| 32+50 | Выемка | 1,26 |
| 13 | 13 | 19,54 | срезка |
| 33+00 | Выемка | 1,07 |
| 13,00 | 13,00 | 22,31 | срезка |
| 33+50 | Выемка | 0,66 |
| 13,00 | 13,00 | 23,80 | срезка |
| 34+00 | Выемка | 0,5 |
| 12,76 | 12,76 | 18,62 | срезка |
Рисунок Б.1. Схема полосы отвода














