Депо для ремонта платформ с разработкой проекта модернизации колесно-роликового участка ВЧДР станции Уссурийск (1191473), страница 12
Текст из файла (страница 12)
Таблица 2.13 –Принятое штатное расписание
| Наименование профессии | Принятый явочный контингент | Списочный контингент |
| Бригадир | 7 | 8 |
| Слесарь | 18 | 20 |
| Токарь | 7 | 8 |
| Фрезеровщик | 4 | 5 |
| Сварщик | 6 | 7 |
| Стропальщик | 1 | 2 |
| Крановщик | 2 | 2 |
| Мастер | 1 | 1 |
| Итого списочный контингент | 53 | |
2.5 Разработка схемы расположения оборудования после модернизации колесно-роликового производственного участка. Организация работ на участке.
Расстановку оборудования производим исходя из площади и планировки модернизированного участка, а также с соблюдением последовательности выполнения операций технологического процесса ремонта колесных пар с наименьшими затратами на транспортировку /10/.
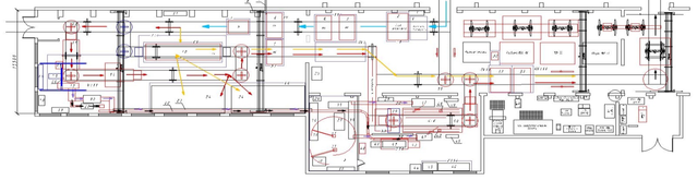
Колесные пары транспортируются между позициями по наклонному рельсу с пневматическими толкателями, транспортёром, а также кран балками. Участок оборудован подъемно-поворотными устройствами, стендами для демонтажа и монтажа колёсных пар, в том числе и кассетного типа, крановой установкой для перемещения кассетных подшипников с накопителя и обратно. На участке размещаются колесо-токарные станки типа «Рафамет». Подача колёсных пар на обточку с транспортёра на станок осуществляется кран балкой. Планировка модернизированного участка представлена на листе формата А1 чертеж ДП 23.05.03.6.ПСД(С)В6.08 (с перечнем оборудования, расположенного на участке).
На основе разработанной технологии и планировки участка, составляем описание последовательности выполнения работ по ремонту колёсных пар.
При поступлении колёсной пары в колёсный участок происходит её визуальный осмотр и обмер. Затем колёсная пара попадает в машину сухой отчистки, после чего подается на позицию дефектоскопии средней части оси. Далее колёсной паре проводят вибродиагностику буксовых узлов и определяют вид ремонта. Колёсные пары, требующие текущего ремонта, при помощи подъёмно-поворотных устройств подаются на стенд текущего ремонта. На стенде их подготавливают к обточке. После обточки им проводят обыкновенное освидетельствование согласно/6/. После проведения текущего ремонта колёсная пара повторно проходит вибродиагностику и окрашивается.
Колесные пары, требующие среднего ремонта, включая колесные пары оборудованные подшипниками кассетного типа, подаются на позицию демонтажа. После демонтажа буксовые узлы с роликовыми подшипниками попадают в ремонт, а узлы с подшипниками кассетного типа при помощи крановой установки попадают на позицию накопления. Далее колесная пара подается в моечную машину, после чего на обточку. После обточки колесная пара поступает на позицию дефектоскопии, где производят проверку диска, обода колеса, внутренних и лабиринтных колец, шейки оси. Затем колесная пара подается в монтажное отделение. В монтажном отделении производят монтаж буксового узла, в том числе с подшипниками кассетного типа согласно /6/. Это стало возможным благодаря внедрению нового пресса РП-400. Карта технологического процесса среднего ремонта колёсной пары с подшипниками кассетного типа под адаптер представлена в графической части дипломного проекта на листе формата А1 чертеж ДП 23.05.03. 6ПСД(С)В6.07.
В
дальнейшем колесная пара проходит вибродиагностический контроль и окрашивание. Планировка модернизированного колесно-роликового участка представлена на рисунке 2.9
Рисунок 2.9 – Планировка модернизированного колесно-роликового участка.
В процессе модернизации колесно-роликовый участок ВЧДР Уссурийск получает возможность ремонтировать колесные пары, оборудованные подшипниками кассетного типа. Это стало необходимым в связи с появлением нового подвижного состава повышенной грузоподъемностью.
3 РАЗРАБОТКА ПРИСПОСОБЛЕНИЯ ДЛЯ ВОССТАНОВЛЕНИЯ ИЗНОШЕННЫХ ОПОРНЫХ И НАПРАВЛЯЮЩИХ ПОВЕРХНОСТЕЙ КОРПУСОВ БУКС
3.1 Обоснование выбора темы
Опорные поверхности корпуса буксы, постоянно находящиеся в контакте с боковиной тележки, изнашиваются. Изнашиваются также поверхности боковой рамы тележки, контактирующие с корпусом буксы. Такие износы не могут обеспечить самоустановку колесных пар при движении в рельсовой колее, особенно в кривых участках пути. В результате возникает защемление корпуса буксы, которое вызывает появление дополнительных сил на буксовый узел и гребни колес, увеличивая их износ, а также износ головок рельсов, ослабление и в дальнейшем разрушение торцового крепления подшипников, скол бортов внутренних колец задних подшипников, образование задиров на роликах. В дальнейшем это приводит к повышенному нагреву буксового узла и последующей отцепке вагона.
Обработка результатов измерения, произведенная во время преддипломной практики, показала, что большое число корпусов букс колесных пар, поступающих на полное освидетельствование, имеют износ опорной поверхности, требующий восстановления наплавкой. Аналогичная ситуация наблюдается и с направляющими поверхностями в челюстях.
3.2 Описание технологии наплавки корпусов буксы
В разное время на ремонтных предприятиях делались попытки восстанавливать изношенные корпуса букс при помощи ручного домкрата. Анализ способов восстановления, применяемых на различных ремонтных предприятиях, показывает, что общими для них является стремление уменьшить уровень остаточных напряжений. К ним относятся: создание в детали предварительной деформации обратного знака, наплавка с малыми погонными энергиями, раскладка швов в определенном порядке, а также последующая пластическая деформация наплавленного металла.
Наплавка опорных поверхностей не вызывает особых сложностей, эту операцию можно проводить не применяя специальных мер по предотвращению деформации механически обработанного внутреннего диаметра в корпусе буксы. При наплавке направляющих поверхностей из-за их малой жесткости в направлении челюстей по горизонтальной оси и больших усадочных сил от наплавленных валиков, действующих вдоль окружности буксы, происходит деформация корпуса. При этом диаметр уменьшается в направлении челюстей (вдоль оси тележки) и увеличивается в направлении опорной поверхности по вертикальной оси. Диаметр по переднему и заднему подшипникам выходит за ремонтный допуск, а овальность превышает предельное значение.
Технологический процесс сводится к следующему. Сначала наплавляют до альбомного размера с плюсовым припуском на механическую обработку опорные поверхности одной буксы в свободном состоянии, с проковкой каждого слоя молотком. Пока происходит перераспределение и выравнивание температуры в наплавленной буксе, наплавляют точно также второй корпус. После наплавки опорной поверхности второго корпуса первый с наплавленной опорной поверхностью упруго деформируют перед наплавкой в направлении направляющих челюстей.
При наплавке швы накладываются в определенной последовательности, способствующей уменьшению разогрева основного металла и сохраняющей благоприятную схему нагружения корпуса буксы. После наплавки направляющих челюстей и проковки швов букса охлаждается в нагруженном состоянии в течение 30 мин. при температуре окружающего воздуха с целью релаксации остаточных напряжений. В это время наплавляют опорные поверхности следующего корпуса, что обеспечивает непрерывность процесса наплавки. После наплавки производят контроль диаметра 250 мм. и подвергают корпус механической обработке.
Из всего выше перечисленного следует, что для осуществления данной технологии необходима разработка приспособления для предварительной деформации корпуса буксы.
3.3 Принцип работы приспособления, назначение и устройство
В качестве приспособления разрабатываем систему, состоящую из нескольких домкратов, на которые надеваются корпуса букс, насоса с электрическим приводом и комплекса устройств для обеспечения управления и функционирования системы.
Гидравлические приводы широко используют при автоматизации производственных процессов. Они применяются главным образом для осуществления поступательных перемещений с преодолением больших усилий.
Гидравлический привод состоит из насоса и гидроцилиндров, между которыми устанавливаются регулирующие и распределительные устройства. Регулирующие устройства дают возможность изменять усилие на штоке цилиндра. Распределительные устройства обеспечивают включение и выключение гидроцилиндров.
К преимуществам привода относятся:
- меньшие масса и габариты по сравнению механическим и электрическим приводом;
- удобство управления, независимо от мощности привода;
- применение стандартизированных и унифицированных узлов;
- возможность бесступенчатого регулирования скорости перемещения;
- незначительное изменение скорости перемещения от нагрузки, из-за не сжимаемости рабочей жидкости;
- возможность перемещения рабочих органов машин до жёстких упоров без дополнительных предохранительных устройств, так как привод при перегрузках останавливается;
- ослабление вредного влияния сил инерции, благодаря плавности перемещения поршня;
- незначительный износ деталей узлов привода, которые постоянно находятся в масле, что обеспечивает надёжную работу механизмов.
3.4 Разработка гидравлического привода домкратов
Для проектируемого устройства принимаем насосную систему с замкнутой циркуляцией. В системе с замкнутой циркуляцией перемещается один и тот же объем жидкости от ведущего звена к ведомому и обратно.
При выборе схемы в соответствии с Правилами Госгортехнадзора учитываем, что гидропривод должен обеспечивать:
- ограничение максимального давления в гидросистеме;
- возможность применения серийной гидроаппаратуры и гидромашин;
- допустимые значения давления во всасывающих и сливных магистралях.
В соответствии с выше перечисленным принимаем следующую схему работы гидропривода, приведенного на рисунке 3.1: насос 1, приводимый во вращение при помощи двигателя 5, из бака 2, находящегося под атмосферным давлением, по всасывающему трубопроводу 8 закачивает рабочую жидкость и подает ее по нагнетательному трубопроводу 7 к распределителю 11 с ручным управлением 9. В нагнетательной сети имеются нагнетательные клапана 13, а для защиты системы от чрезмерных давлений предохранительный клапан 4. Распределитель 11 имеет два положения, при первом положении полость под поршнем гидроцилиндра сообщается с нагнетательной магистралью 7, при этом шток поднимается и создает необходимое усилие для распора корпуса буксы. При втором положении распределителя 11 нагнетательная магистраль 7 перекрывается, а полость под поршнем гидроцилиндра 10 сообщается с линией слива 12, давление под поршнем снижается до атмосферного и шток опускается под действием тяжести корпуса буксы. Рабочая жидкость по линии слива 12, через фильтр 6 поступает в бак 2. Для контроля давления с нагнетательной магистрали имеется манометр 3.
Рисунок 3.1 - Гидропривод домкратов
3.5 Расчет гидравлического привода
Расчет привода сводится к подбору типовых элементов системы. В качестве исходных данных для расчета принимаем необходимое усилие на штоке домкрата для деформации корпуса буксы, в соответствии с /9/ это усилие составляет 11 тс.
Подбор гидравлического домкрата
Подбор домкрата производим исходя из возможности установки его внутри корпуса буксы и грузоподъемности. В качестве устройства деформирующего корпус буксы принимаем низкий гидравлический домкрат с гравитационным возвратом поршня модели ДН10М15, полностью удовлетворяющий выше перечисленным требованиям, техническая характеристика которого представлена в таблице 3.1.














