Проект цеха получения отливок по выплавляемым моделям мощностью 350 тонн в год (1094806), страница 8
Текст из файла (страница 8)
Мираж-3D - постпроцессор системы СКМ ЛП "ПолигонСофт". С помощью модуля "Мираж-3D" можно просматривать все расчетные поля в любой момент времени в любом месте отливки.
Мираж-Л - постпроцессор системы СКМ ЛП "ПолигонСофт". Модуль служит для представления результатов расчета в виде графиков.
Критерий - модуль для проведения критериального анализа. Основываясь на расчетных данных, с помощью критериев можно рассчитать много дополнительных свойств и параметров: структура, твердость, пригар, размывы формы и т.п. Помимо имеющихся готовых критериев, можно задать любые свои критерии анализа, требуемые для конкретного производства.
2.2.3. ProCAST
 ProCAST представляет собой профессиональную систему компьютерного 3D-моделирования литейных процессов методом конечных элементов. Оригинальным разработчиком этого программного продукта является UES Inc. (США), ряд модулей разработан швейцарской фирмой Calcom SA. В 2003 году обе фирмы вошли в состав группы компаний ESI Group (Engineering Systems International), а программный комплекс ProCAST стал частью семействаPAM-систем для инженерного анализа.
 Система работает под ОС UNIX, MS Windows и позволяет моделировать практически все варианты литейных технологий, включая свободное литье в формы, литье под низким и высоким давлением, литье по выплавляемым моделям и т.д. Геометрия отливок может быть самой сложной.
Создание сетки
Чтение CAD-моделей, проверка и, при необходимости, «лечение» импортированной геометрии осуществляются с помощью тетрагонального генератора сетки MeshCAST. В его состав также включен генератор оболочек, предназначенный для моделирования литья по выплавляемым моделям. Помимо собственных файлов системы генератор способен распознавать следующие форматы:
-  
геометрия: IGES, STEP, PARASOLID и STL;
 -  
поверхностные сетки: Patran и I-DEAS;
 -  
объемные сетки: Patran и I-DEAS.
 
3. Конструкторская часть
3. КОНСТРУКТОРСКАЯ ЧАСТЬ
В данной части проведена модернизация прокалочной печи Н85-В с изменением наклона дверцы и заменой подъемного механизма дверцы.
3.1. Введение.
В технологической цепочке производства лопаток ГТД методом литья по выплавляемым моделям предусмотрена прокалочная печь Н85-В. Печь предназначена для прокалки модельных блоков лопаток ГТД перед заливкой в вакуумных печах УППФ-3МК. Блоки проходят контроль после прокалки в проходных газовых печах ПГ-30 и далее поступают в печи Н85-В. Печи Н85-В установлены в плавильном отделении напротив плавильных печей и, по сути, предназначены для нагрева модельных блоков перед заливкой в печах УППФ-3МК.
3.2. Описание конструкции.
Электропечь состоит из кожуха, футеровки, нагревательных элементов, механизма подъема дверцы. Кожух электропечи бескаркасный. На передней наклонной стенке кожуха закреплены чугунные плиты. Они играют роль направляющих для дверцы, а также служат для плотного прилегания дверцы к загрузочному проему.
Огнеупорная часть футеровки выполнена из легковесного шамота ШЛБ-1,0 и шамота ШБ, теплоизоляционная - из засыпки диатомитовой, диатомитового кирпича. Под изготовлен из отдельных литых жароупорных плит.
Нагревательные элементы выполнены из проволоки высокого омического сопротивления, в виде спиралей, уложенных на полочки на боковых стенках и поду и подвешенных на трубках на своде.
Материал трубок – высокоглиноземистый шамот ВГЛ-1,3.
Подъем дверцы осуществляется от электропривода.
Электропечь двухзонная. Это дает возможность получить равномерную температуру по длине электропечи.
Регулировка температуры в каждой зоне автоматическая. На электропечи предусмотрены блокировки, отключающие нагреватели электропечи при подъеме дверцы и ограничивающие ход дверцы.
Технические характеристики печи приведены в таблице:
Техническая характеристика камерной прокалочной печи Н85–В
|   Наименование  |    Нормы  |  
|   1. Мощность установленная, кВт  |    91,1  |  
|   2. Мощность нагревателей, кВт  |    90  |  
|   3. Напряжение питающей среды, в  |    380  |  
|   4. Напряжение на нагревателях, в  |    220  |  
|   5. Число фаз  |    3  |  
|   6. Частота, Гц  |    50  |  
|   7. Максимальная рабочая температура, С  |    1000  |  
|   8. Число зон  |    2  |  
|   9. Время разогрева электропечи до рабочей температуры, ч  |    4  |  
|   10. Мощность холостого хода, кВт  |    22  |  
|   11. Масса садки, кг  |    1350  |  
|   12. Рабочая среда  |    воздух  |  
|   13. Размеры рабочего пространства, мм  |  |
|   ширина  |    850  |  
|   Длина  |    1700  |  
|   Высота  |    500  |  
|   14. Общая масса электропечи, т  |    6,7  |  
3.3. Направление модернизации камерной прокалочной печи Н85-В.
Модернизация заключается:
1. Изменение наклона дверцы печи Н85–В с целью обеспечения надежной герметизации оконного проема.
2.Замена электрического привода подъема дверцы на пневматический.
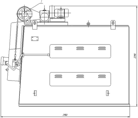
Общий вид модернизируемой печи Н85–В представлен на рис. 3.1.
Рис. 3.1.
3.4 . Улучшение конструкции загрузочного окна и теплоизоляции дверцы печи.
Для улучшения теплоизоляции дверцы печи плоскость, по которой она поднимается, сделана наклонной, что обеспечивает плотное прилегание ее к оконному проему (рис. 3.2). Также для сокращения тепловых потерь увеличена площадь перекрытия оконного проема дверцей.
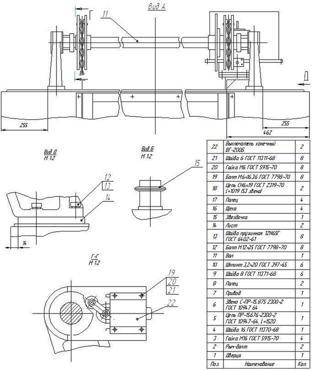
Рис 3.2. Механизм подъема дверцы печи.
Рис 3.3. Механизм подъема дверцы печи.
Рис 3.4. Замена механизма подъема дверцы печи.
3.5. Выводы
Осуществлена модернизация прокалочной камерной печи Н85-В, заключающаяся в следующем:
- Для лучшей герметизации рабочего пространства печи дверца загрузочного окна сделана наклонной.
- Заменен электрический привод подъема дверцы печи на пневматический.
4. Строительная часть
-  
СТРОИТЕЛЬНАЯ ЧАСТЬ.
 
-  
Расположение корпуса на территории завода
 
Цех проектировался для условий завода «Салют». Инженерно-технические коммуникации нового цеха на базе действующего. Учитывая господствующие направления дующих в течении года ветров, литейный цех на предприятии следует размещать с подветренной стороны.
-  
Основные показатели проектируемого цеха
 
Проектируемый цех литья по выплавляемым моделям расположен в одноэтажном корпусе и состоит из 3-х продольных пролетов: центрального пролета шириной 24 метра и двух боковых пролетов шириной 18 метров.
В первом боковом продольном пролёте находятся: участок обрезки и обдувки, участок шлифовки и полировки, склад хим. реактивов и расходных материалов, участки травления и нейтрализации, БТК, участок контроля методом КЛК, инструментальная лаборатория и лаборатория рентгено-контроля.
В центральном продольном пролёте расположено плавильно-прокалочно-заливочное отделение, шихтовой двор, участок прокалки керамических форм и склад готовой продукции.
Исходя из максимальной высоты оборудования и специфики находящихся в данном пролете отделений, высоту бокового пролета ( от уровня пола до нижнего пояса несущей фермы ) принимаем равной 8,4 метра.
Высота центрального пролета также принимается равной 8,4 метра. Вдоль через весь пролёт проходит путь для подачи на склад материалов, здесь находятся площадки для складирования и хранения шихты: собственного возврата, мерных шихтовых заготовок и т.д. Для разгрузки – загрузки шихты, загрузки и навески бадьи на весовые тележки, перемещения грузов по отделению, оно оборудовано мостовым краном, грузоподъемностью 5 тонн.
Плавильное отделение отделено от прилегающих к нему отделений температурно-осадочными швами. Также температурно-осадочный шов проходит поперек продольных пролетов на расстоянии 48 метров от торца здания.
В данном цехе литья по выплавляемым моделям производятся отливки из сплава: ЧС70-ВИ. Шихтовое отделение разделёно условно на две части. В первой находятся площадки для данного сплава, а во второй части находятся бадьи для складирования литейных отходов.
В плавильном отделении расположены шесть установок УППФ-3МК.
Центральный пролет обслуживает мостовой кран грузоподъемностью 5 тонн, применяющийся для транспортировки бадей с шихтой, разгрузки автотранспорта и т.д.
Во втором продольном пролёте, высота которого 8,4 метра, располагаются: группа механика, участок регенерации электрокорунда, гидролизная, насосная станция, участки приготовления и удаления модельной массы, модельный участок, участок нанесения огнеупорного покрытия, участок изготовления тиглей, стержневой участок, участок размола глинозема и участок лазерной обработки.
Ширина проездов 4 метра, что соответствует нормам литейных цехов, а также предусмотрен пожарный проезд шириной 6 метров между плавильно –прокалочно-заливочным отделением и участком обрезки и обдувки через весь цех в продольном направлении.
Поперечные температурно-осадочные швы осуществляются на парных колонах. При этом ось температурно-осадочного шва совмещается с поперечной разбивочной осью, геометрические оси торцевых колон смещаются на 400 мм.
Административные, помещения хозяйственно-бытового назначения располагаются в отдельно стоящем здании. Проход из цеха в административное здание осуществляется по переходу.
Административное здание имеет один этаж, построено по методу быстровозводимых конструкций. Фундамент здания ленточный с глубиной заложения не менее 2 метров. Каркас здания выполнен из металлических балок, стены выкладываются из строительного кирпича на бетонном растворе.
Оконные проемы во всем здании имеют размер 2,0 х 2,0 метра.
Рамы выполняются из алюминия или ПВХ, что обеспечит долговечность окон, хорошую звуко- и теплоизоляцию.















