Деулин Е.А. - Методические указания к лабораторным работам по физике вакуума (1074255)
Текст из файла
Методические
2003
Методические указания к курсовому проекту по курсу «Вакуумная техника»
Содержание:
-
Цель и задачи проекта
-
Содержание листов и пояснительной записки
-
Рекомендуемая литература
-
Бланк типового задания на проект
-
Примеры графического материала и расчетов
1.Цель и задачи проекта
Закрепление навыков расчета и приобретение навыков конструирования вакуумных систем, предназначенных для откачки вакуумного технологического и экспериментального оборудования. При формировании заданий на проект предпочтения следует отдавать реальной тематике в рамках научно-технического направления по которому работает студент, с использованием его собственных разработок и исследований.
В остальных случаях проект может иметь учебно-дидактическую направленность и способствует усвоению теоретического материала.
2.Содержание листов и пояснительной записки
Содержание листов и пояснительной записки курсового проекта по вакуумной технике определено в разделе 7 учебного плана по курсу «Вакуумная техника». Ниже приводится выдержка из учебного плана:
Курсовое проектирование, курсовая работа.
| № п/п | Номер р/дисц. | Сем. | Тема самостоятельной работы | Объем, ч. |
| 7.1. | 7 | Курсовой проект. Объем курсового проекта не менее 5 листов формата А1 и 80 листов расчетно-пояснительной записки. Допускается выполнение проектов по индивидуальным заданиям, отражающим участиев студента в проводимых на кафедре НИР, НИОКР и других исследованиях в области вакуумной техники. | 102 |
Студент должен выполнить следующие объемы работ:
| 20% объема работ | | Эквивалентные схемы откачки, принципиальная вакуумная схема, диаграмма откачки. Таблица параметров трубопроводов и режимов их откачки. Технологическая диаграмма работы установки. |
| 40% объема работ | | Общий вид установки. Компоновка камеры и вакуумной системы на раме. |
| 60% объема работ | | Вакуумная камера установки. Главный разрез, разрезы и сечения. |
| 80% объема работ | | Сборочные и рабочие чертежи элементов вакуумной системы (трубопроводов с фланцами, клапанов, натекателей, ловушек, заслонок). |
| 100% объема работ | | Сборочные и рабочие чертежи элементов вакуумной камеры (вводов движения, манипуляторов, транспортеров, смотровых окон, токовводов и др. устройств с их привязкой к вакуумной камере, при исследовательской направленности проекта - графики, теоретически и экспериментально полученные зависимости, фотографии). Расчетно-пояснительная записка, включает:1. Техническое задание на установку, содержащее следующие требуемые параметры: – тип обрабатываемого изделия (или требуемый рабочий вакуум), предельный вакуум; размеры изделия, определяющие его газовыделение (или поток газовыделения), откачиваемый объем; требования к составу остаточной атмосферы; – тип производства, определяющий требуемую производительность установки, способ компоновки вакуумной системы. 2. Выбор типажа основных средств откачки, обеспечивающих требуемый вакуум. 3. Обоснование компоновки вакуумной системы, разработка вакуумной схемы установки. 4. Описание составленной технологической диаграммы установок. 5. Расчетное обоснование типоразмеров насосов и размеров трубопроводов. 6. Расчет времени откачки системы в порядке включения насосов, из которых скомпонована система. 7. Описание уточненной технологической диаграммы вакуумной установки. 8. Описание работы и расчет оригинальных элементов конструкции коммутирующей системы и рабочей камеры. Обязательным условием является самостоятельная разработка какого-либо узла вакуумной камеры или откачной системы. |
Таким образом, мы видим, что курсовой проект по вакуумной технике представляет модель конструкторского решения по выбору требуемой для данного процесса вакуумной системы и консрукторской проработки отдельных типовых элементов конструкции вакуумной системы.
3.Рекомендуемая литература
-
Е.А. Деулин Расчет вакуумныхсистем технологического оборудования/Методические указания для выполнения домашнего задания и курсовых проектов по курсу «Вакуумная техника» (электронный вариант) - МГТУ, каф. МТ-11, 2002.- 44 с.
(Используется для выполнения разделов: Эквивалентные схемы откачки, принципиальная вакуумная схема, диаграмма откачки. Таблица параметров трубопроводов и режимов их откачки. Технологическая диаграмма работы установки.) -
Механика и физика точных вакуумных механизмов / Под редакцией проф. Е.А. Деулина, т.1.- Владимир, Владим. Гос. Университет, 2001.- 176 с.
(Используется для выполнения разделов: Выбор типажа основных средств откачки, обеспечивающих требуемый вакуум выбор принципиальной вакуумной схемы. Выбор типа производства, определяющего требуемую производительность установки, выбор компоновки вакуумной системы, обоснование компоновки вакуумной системы, описание составленной технологической диаграммы установки ). -
Механика и физика точных вакуумных механизмов / Под редакцией проф. Е.А. Деулина, т.2.- М. «Интелвак-Вакууммаш» , 2002.- 152 с.
(Используется для выполнения разделов :Описание работы и расчет оригинальных элементов конструкции коммутирующей системы и рабочей камеры.) -
Машиностроение. Энциклопедия (в 40 томах). т. 111-8, (Под ред. проф. Ю.В. Панфилова) часть 8.1.5.- М., «Машиностроение», 2000.-с.273-292
(Используется для выполнения разделов: Описание работы и расчет оригинальных элементов конструкции коммутирующей системы и рабочей камеры.) -
Целевые механизмы вакуумного технологического оборудования / Атлас типовых конструкций/ Е.П. Аршук, А.И. Беликов, Е.А.Деулин и др. – МГТУ, 1998 . – 68 с.
(Используется для выполнения разделов: Описание работы и расчет оригинальных элементов конструкции коммутирующей системы и рабочей камеры.) -
Вакуумная техника: Справочник / Е.С. Фролов, В.Е. Минайчев, А.Т. Александрова и др. – М.: Машиностроение, 1992. – 480 с.
(Используется для выполнения разделов: Выбор эквивалентных схем откачки, принципиальной вакуумной схемы, диаграммы откачки. определения параметров трубопроводов Не рекомендуется использовать сборочные чертежи из справочника, ввиду большого количества неточностей) -
Пипко А.И. Плисковский В.Я. Пенчко Е.А. Конструирование и расчет вакуумных систем. – М.: «Энергия», 1979. – 504 с.
(Используется для выполнения разделов: Выбор эквивалентных схем откачки, принципиальной вакуумной схемы, диаграммы откачки. определения параметров трубопроводов.
Рекомендуется использовать как базу для выбора сборочных чертежей типовых узлов: клапанов, затворов, токовводов, вводов движения, смотровых окон) -
Руководство к выполнению расчетной части курсовых и дипломных проектов / Учебное пособие для студентов вечернего факультета. – М.:МВТУ, 1985. – 60 с. (Используется для выполнения разделов: Расчет долговечности и расчет точности сильфонных вводов движения )
Московский Государственный Технический Университет
им. Н. Э. Баумана
Факультет Кафедра
« Машиностроительные «Электронное
технологии» машиностроение»
Задание на курсовой проект
«Основы вакуумной техники»
Студент Ткачёва Е.В.
Группа МТ 11-71
Руководитель Деулин Е.А.
Защита проекта 17 .12.03.
-
ТЕМА ПРОЕКТА
«Вакуумная система установки для исследования клапанов»
2. ТЕХНИЧЕСКОЕ ЗАДАНИЕ
Разработать вакуумную систему установки для исследования клапанов
Исходные данные:
Диапазон рабочих давлений 105 – 10-6 Па.
Рабочая контактная пара Al2O3 – SiO2, Cu – Al2O3 (лейкосапфир)
Осевая нагрузка на уплотнение 0 – 1500 Н.
Температура прогрева 1800С
Рабочие газы воздух, H2O, CО2, He.
-
ОБЪЕМ ПРОЕКТА.
Графические работы в объеме 5 листов формата А1 выполняются на ПК с помощью программы АВТОКАД, либо, по согласованию с руководителем, вручную. По согласованию с руководителем допускается вывод на печать графических материалов в формате, отличном от А1.
Расчетно-пояснительная записка на 30-40 листах формата А4 печатается в редакторе WORD.
4. СОДЕРЖАНИЕ ГРАФИЧЕСКОЙ ЧАСТИ ПРОЕКТА
Лист 1. Вакуумно-кинематическая схема установки, варианты рабочих схем при испытании клапанов.
Лист 2. Циклограмма работы вакуумной системы (последовательность вкл/выкл насосов, клапанов, затворов), эквивалентные схемы откачки, график изменения давления во времени.
Лист 3. Чертеж общего вида установки.
Лист 4. Чертеж вакуумного клапана с плоским уплотнением, чертеж клапана с сапфировым/твердосплавным уплотнением. Рабочие чертежи элементов клапана.
Лист 5. Результаты математического моделирования и экспериментальных исследований.
5. СОДЕРЖАНИЕ РАСЧЕТНО-ПОЯСНИТЕЛЬНОЙ ЗАПИСКИ
-
Задание на проект
-
Реферат
-
Оглавление
-
Введение
-
Расчет времени откачки с учетом сорбции и десорбции газа
-
Расчет проводимости уплотнения
-
Выводы
-
Список литературы
-
Спецификации
6. СОДЕРЖАНИЕ информационно-компьютерного блока
Анализ клапанов
Руководитель проекта Деулин Е.А.
Научный консультант Косинский М.В.
Дата выдачи задания на проект «30 » _сентября_2003г.
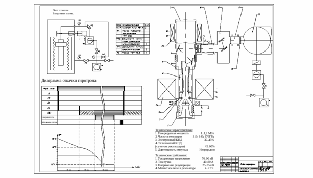
5.Примеры графического материала и расчетов
Лист 1. Содержит:
-
Вакуумную схему проектируемой установки (в приведенном примере даны два варианта установки)
-
Условные обозначения элементов вакуумной системы
-
Эквивалентные вакуумные схемы
-
Циклограмму работы установки
-
График изменения давления в рабочей камере установки
Примеры заполнения первого листа проекта показаны на рис.1
Рис.1 Примеры заполнения первого листа проекта по курсу «Вакуумная техника»
Лист 2 содержит:
-
Общий вид проектируемой вакуумной установки
-
Габаритные и присоединительные размеры сборочных единиц
-
Выносные линии с номерами позиций деталей (в пояснительной записке должны быть соответствующие спецификации)
-
Рекомендуется показывать крепление спроектированных узлов на раме
Пример оформления второго листа показан на рис.2
Характеристики
Тип файла документ
Документы такого типа открываются такими программами, как Microsoft Office Word на компьютерах Windows, Apple Pages на компьютерах Mac, Open Office - бесплатная альтернатива на различных платформах, в том числе Linux. Наиболее простым и современным решением будут Google документы, так как открываются онлайн без скачивания прямо в браузере на любой платформе. Существуют российские качественные аналоги, например от Яндекса.
Будьте внимательны на мобильных устройствах, так как там используются упрощённый функционал даже в официальном приложении от Microsoft, поэтому для просмотра скачивайте PDF-версию. А если нужно редактировать файл, то используйте оригинальный файл.
Файлы такого типа обычно разбиты на страницы, а текст может быть форматированным (жирный, курсив, выбор шрифта, таблицы и т.п.), а также в него можно добавлять изображения. Формат идеально подходит для рефератов, докладов и РПЗ курсовых проектов, которые необходимо распечатать. Кстати перед печатью также сохраняйте файл в PDF, так как принтер может начудить со шрифтами.
















