ЖЕНЯ ДИПЛОМ ПЗ(2) (1052007)
Текст из файла
Введение.
В данной выпускной квалификационной работе на основании задания на тему « Проект реконструкции ремонта моста через р.Бурея на 8035 км нечетного пути Забайкальской железной дороги» рассмотреть следующий перечень вопросов:
- характеристика и оценка технического состояния существующего моста;
- классификация элементов моста по грузоподъемности;
- составление вариантов капитального ремонта моста;
- детальная разработка вариантов капитального ремонта моста;
- организация строительства и технология производства работ по капитальному ремонту моста;
- вопросы охраны труда и техники безопасности при капитальном ремонте моста.
-
Характеристика существующего сооружения.
Мостовой переход расположен через реку Бурея на 8035 км нечетного пути участка Бурея – Архара Забайкальской железной дороги.
Железнодорожный мост через реку Бурея расположен в Свободненском регионе Забайкальской железной дороги. Металлический мост с расчетной схемой 34,00+4х127,4+34,00 был построен 1915 году. Его длина составляет 593,16 метров. Мост расположен на прямом участке.
1.1 Геологическая характеристика района.
Река Бурея образуется слиянием двух рек: Правая Бурея и Левая Бурея. Правая Бурея берет свое начало на южных склонах хребта Эзоп, Левая — на западных склонах хребта Дуссе-Алинь. Длина реки составляет 623 км (от истоков Правой Буреи — 739 км), общая площадь бассейна — 70 700 км².
В верхнем течении Бурея считается горной рекой, её среднее и нижнее течение расположено на Зейско-Буреинской равнине. Максимальный расход воды во время паводков 18100 м³/с.
На реке расположена Бурейская ГЭС и ведется строительство Нижнебурейской ГЭС.
Геология мостового перехода представлена:
- Верхний слой, мощностью в среднем по срезу, 4 метра – галечниковый грунт - в составе грунта преобладают крупные компоненты более 10мм,
-средний слой под русловыми опорами глина твердая, мощность слоя в среднем 3 метра,
-подстилающий слой грунта представлен скальным основанием.
1.2 Климатические характеристики района
Мост расположен в Свободненском районе, а он, как и вся территория Амурской области, находится в умеренном климатическом поясе. Тип климата - муссонный. Зимой здесь господствуют континентальные воздушные массы умеренных широт, поэтому зима холодная, солнечная и малоснежная. Средняя температура января (–280С). Самая низкая температура (–480С). Лето облачное и прохладное (средняя температура июля +200С; самая высокая температура +400С). Большое количество осадков, выпадающих в виде ливней. Среднегодовое количество 600–800мм. Это связано с притоком морского воздуха с Тихого океана и активной циклонической деятельностью.
Наступление весны в районе особенно ощущается с последней декады марта. В это время ещё бывает холодно, местами идёт снег, дует порывистый северо-западный ветер. Летом территория района находится под влиянием области высокого давления. Муссонные ветры проникают и приносят влажный и холодный морской воздух. Лето жаркое. Максимальная температура достигает 400С. Средняя температура воздуха в июле +200С. Очень жарко в первой половине июля, в это время много дождей. Абсолютный максимум для Свободненского района– 40мм. Такие дожди часто приводят к повышению уровня воды в реках и к угрозе наводнений.
Началом осени считаем день первого заморозка на поверхности почвы. В Свободненском районе это середина сентября. Осень, в основном сухая и тёплая, но короткая. Первая половина сентября достаточно часто бывает переувлажнённой. В ноябре уже образуется тонкий прозрачный лёд до 30см. Началом зимы считается выпадение устойчивого снегового покрова и замерзание озёр. Зима длится 110–130 дней. Средняя температура (–280С), а январские морозы поджимают под –500С. Устойчивый снеговой покров приходится на конец октября - начало ноября. Продолжительность снежного покрова до 140 дней. В конце октября на реках появляется лед и только к апрелю–маю начинает таять. Малые и средние реки промерзают. Толщина льда превышает 1 метр. [1]
1.3. Гидрологические характеристики
Железнодорожный мост проходит через реку Бурея. Река Бурея - река в Дальне-Восточном регионе России. Протекает по территории Хабаровского края и Амурской области, через несколько параллельно идущих с севера к югу хребтов Турана, является левым притоком реки Амур.[2]
В бассейне реки около 1,5 тысячи озёр общей площадью свыше 51 км². Среднегодовой расход воды в районе села Каменка составляет 890 м³/с. Среднемесячные расходы воды (данные наблюдений с 1936 по 1985 год) представлены на Рис 1.1. Гидравлические характеристики в период эксплуатации Бурейской ГЭС представлены в Табл. 1.1.
Рис.1.1 - Среднемесячный расход воды в р. Бурея
Табл.1.1– Гидравлические характеристики участка
| Вероятность | Расход | Отметка УВВ | Скорость под мостом |
| % | м3/с | м | м/с |
| 0.3 | 11900 | 115.38 | 1.931 |
| 1 | 11700 | 115.21 | 1.947 |
| 10 | 11100 | 115.00 | 1.94 |
1.5 Продольный профиль трассы.
Продольный профиль трассы взят из материалов проекта реконструкции моста, выполненного институтом “РОСЖЕЛДОРПРОЕКТ” филиалом “СИБГИПРОТРАНПУТЬ” в октябре 2013 года. Система высот - Балтийская.
Мост расположен на прямом участке пути на 8035 км ПК 80341+44,64. Полная длина моста составляет Lм= 593,16 м.
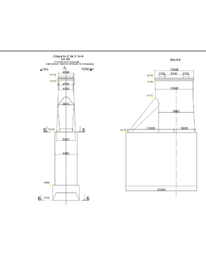
1. 6 Техническое состояние сооружений.
1.6.1 Характеристика пролетных строений.
Используются два вида ферм Lp=127,40м и Lp=34,00м – сквозные металлические пролетные строения под нагрузку 1907 года.
Рисунок 1.2 - Пролетное строение Lp= 124,7 м расчетных норм 1907 г
Характеристика пролетного строения Lp=127,40м расчетных норм 1907г., код конструкции F127+1.07:
- Статическая система: балочная разрезная,
- Несущая конструкция: фермы сквозные,
- Тип решетки: треугольная со шпренгелями,
- Уровень езды: поверху,
- Расчетные нормы: нормы 1907 года,
- Расчетная длина: 127,40 м,
- Полная длина: 128,80 м,
- Высота пролетного строения в пролете: 21,00 м,
- Расстояние между осями: главных ферм 6,80м, продольных балок 2,00м,
-Число панелей: 14 шт.
- Тип соединений: заклепки,
- Материал ПС: литое железо,
- Вес металла: 760 т,
- Высота продольных балок 1,21м, поперечных балок 1,61м
- Длина панелей 9,10 м.
Рисунок 1.3.- Пролетное строение Lp= 34,0 м расчетных норм 1907 г.
Характеристика пролетного строения Lp=34,00м расчетных норм 1907г., код конструкции F034-2.07:
- Статическая система: балочная разрезная,
- Несущая конструкция: фермы сквозные,
- Тип решетки: треугольная с дополнительными стойками и подвесками,
- Уровень езды: понизу,
- Расчетные нормы: нормы 1907 года,
- Расчетная длина: 34,00 м,
- Полная длина: 34,80 м,
- Высота пролетного строения: в пролете 4,44 м, на опоре 2,15 м,
- Расстояние между осями: главных ферм 2,40 м,
-Число панелей: 10 шт.
- Тип соединений: заклепки,
- Материал ПС: литое железо,
- Вес металла: 70 т,
- Длина панелей 3,40 м.
Год выпуска пролетных строений 1907, расчетная нагрузка 1907 года.
Перечень неисправностей и дефектов пролетных строений:
- Наличие сквозной коррозии металла на уголках нижнего пояса,
- Значительная язвенная коррозия фасонок и поясов ферм,
- Расстройство заклепочных соединений (слабые, дефектные и отсутствующие заклепки) в верхнем поясе фермы,
- Трещины в балках пролетного строения в полке верхнего поясного уголка клепаной балки,
- Расстройство балок проезжей части.
1.6.2. Характеристика и техническое состояние опор.
Опоры моста массивные, выполненные бутовой кладкой. Русловые опоры устроены с ледорежущей гранью. Глубина заложения фундамента опор в среднем 14,50 м. от обреза фундамента.
Требуется устройство новых подферменных площадок и сливов, отсутствуют смотровые приспособления на опорах. Разрушено укрепление откосов, насыпи и левобережной и правобережной дамб. Дополнительно необходимо устройство новой гидроизоляции, переходных мостиков и судоходной сигнализации.
Перечень обнаруженных неисправностей
- Расстройство кладки подферменных плит,
- Выщелачивание по швам,
- Расстройство кладки, выветривание швов с вывалом групп камней
- Вертикальные трещины, глубиной до 35 см в подводной части русловых опор моста,
- Выщелачивание цементного камня,
- Разрушение мощения конусов подходных насыпей.
На Рис. 1.4-1.6 представлен вид опор до ремонта .
Рисунок 1.4.- Вид промежуточной опоры №1,№5
Рисунок 1.5.- Вид русловой опоры №2,№3,№4
Рисунок 1.6.- Береговая опора №0, №6
1.7. Характеристика мостового полотна
Путь на подходах и устоях звеньевой на деревянных шпалах и щебеночном балласте. Мостовое полотно - деревянные мостовые брусья 20х24 см, тип рельсов Р-65, контррельсов Р-50. Охранные уголки 160х100х12. Боковые тротуары разделены в пониженном уровне на металлических консолях с деревянным настилом.
Перечень неисправностей и дефектов мостового полотна:
- Неполное число костылей в прикреплении рельсов на отдельных брусьях
- Отдельные дефектные мостовые брусья, до 10% от общего числа.
- Отдельные слабые лапчатые болты до 10% от общего числа.
- Отсутствие перильного ограждения или его элементов на пролетных строениях и устоях.
Укрепление конусов насыпи плитами частично разрушено, конуса насыпи заросли кустарником.
1.8. Оценка технического состояния элементов существующего моста.
Техническое состояние элементов определяет бальная оценка, которая определяется по формуле (1.1), используя программное обеспечение АСY ИССО.
, (1.1)
где
- это базовая оценка состояния сооружения, характеризующаяся дефектом наибольшей категории, который был обнаружен на искусственном сооружении;
,
, - количество дефектов соответственно первой и второй категорий;
,
- коэффициенты, необходимые для учета опасности дефектов соответственно первой и второй категорий,
=0,02,
=0,1.
1.8.1. Неисправности пролётных строений.
Дефекты пролетных строений и им соответствующие категории сведены в Табл.1.2.
Таблица 1.2. - Перечень дефектов пролётного строения и их категории
| Наименование дефекта | Категория дефекта | Индекс дефекта |
| 1. Коррозия элементов (равномерная). Глубина поражения 5мм. | III | 1700 |
| 2. Коррозия элементов (очаговая). Глубина поражения1-3 мм. | II | 1705 |
| 3. Слабые (дефектные) или отсутствующие заклепки (более 10%) в узлах и прикреплениях | II | 1760 |
| 4. Трещина в стенке балки (вертикальная, наклонная) | III | 1855 |
| 5. Расстройство узла опирания поперечной балки на главную балку/ферму. Значительное расстройство фиксирующих соединений с неплотностями и трещинами элементов. | III | 2160 |
Характеристики
Тип файла документ
Документы такого типа открываются такими программами, как Microsoft Office Word на компьютерах Windows, Apple Pages на компьютерах Mac, Open Office - бесплатная альтернатива на различных платформах, в том числе Linux. Наиболее простым и современным решением будут Google документы, так как открываются онлайн без скачивания прямо в браузере на любой платформе. Существуют российские качественные аналоги, например от Яндекса.
Будьте внимательны на мобильных устройствах, так как там используются упрощённый функционал даже в официальном приложении от Microsoft, поэтому для просмотра скачивайте PDF-версию. А если нужно редактировать файл, то используйте оригинальный файл.
Файлы такого типа обычно разбиты на страницы, а текст может быть форматированным (жирный, курсив, выбор шрифта, таблицы и т.п.), а также в него можно добавлять изображения. Формат идеально подходит для рефератов, докладов и РПЗ курсовых проектов, которые необходимо распечатать. Кстати перед печатью также сохраняйте файл в PDF, так как принтер может начудить со шрифтами.















