Курсовая работа: Модернизация крепежного приспособления на операцию фрезерно-сверлильная с ЧПУ
Описание
Введение
Машиностроение - важнейшая отрасль промышленности. Его продукция - машины различного назначения.
В современном машиностроении особое место занимает технологическая оснастка и ее основная часть - станочные приспособления. Внедрение и широкое использование прогрессивной технологической оснастки является рациональной формой повышения производительности труда и эффективности производства.
Приспособлениями в машиностроении называют вспомогательные устройства, используемые для выполнения операций механической обработки, сборки и контроля.
Сложность построения технологических процессов в машиностроении обусловливает большое разнообразие конструкций приспособлений и высокий уровень предъявляемых к ним требований. Неправильные технологические и конструктивные решения при изготовлении приспособлений приводят к удлинению сроков подготовки производства и снижению его эффективности.
Использование приспособлений способствует повышению производительности и точности обработки, сборки и контроля; облегчению условий труда рабочих; строгой регламентации длительности выполняемых операций; расширению технологических возможностей оборудования; повышению безопасности работы и исключению аварий.
Станочные приспособления, используемые для установки и закрепления обрабатываемых заготовок, подразделяются на сверлильные, фрезерные, расточные, токарные и др.
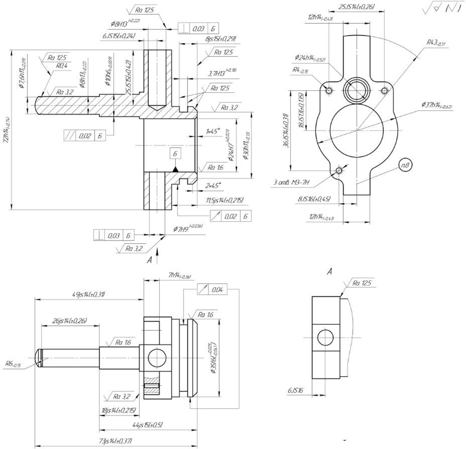
В данной курсовой работе приведены необходимые расчеты для проектирования приспособления для обработки контура и резьбовых отверстий в детали «Корпус» на многоцелевом станке с ЧПУ.Задание
Спроектировать приспособление для обработки детали «Корпус» на фрезерно-сверлильной операции 040 на многоцелевом станке с ЧПУ.
1. Исходные данные
1.1 Деталь «Корпус» предназначена для точной установки корпуса для гидрораспределителя, представляет собой тело вращения.
Изготовлена из конструкционной нелегированной стали 35Л ГОСТ 977-88 массой 0,33 кг, габаритными размерами 73х72 мм, временное сопротивление sв=491МПа.
Исходные технологические данные приведены на рисунке 1.1

НГТУ
all_at_700
















