IZ1-3-Н (562371), страница 6
Текст из файла (страница 6)
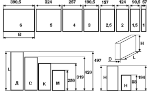
В практике конструирования РЭС широкое распространение получила унификация конструкций и в первую очередь несущих конструкций, принимаемых за базу (основу) для создания различных изделий, аналогичных или близких по функциональному назначению. Этот метод называется методом базовых несущих конструкций (БНК), где под БНК понимают несущие конструкции, габаритные, установочные и присоединительные размеры которых стандартизированы и обеспечивают размерную взаимозаменяемость аппаратуры. Типы и геометрические размеры блоков самолетной аппаратуры определены ОСТ 4 ГО.410.003 и представлены на рис.3.8, а контрольно-измерительных приборов на рис. 3.9.
Рис.3.8
Рис.3.9
Дискретность типоразмеров БНК и наличие среди них корпусов, имеющих приблизительно равные объемы (например, корпуса типов 2,5М, 2К, 1,5С; 4М, 2,5С, 2Д и др.), при неодинаковых геометрических размерах требуют сравнительного анализа нескольких возможных компоновочных решений блока и выбора лучшего по принятому критерию предпочтения. Геометрические размеры внутреннего объема блока определяются вариантом компоновки блока, типом внутриблочных и межблочных электрических соединителей, типом электрорадиоэлементов, устанавливаемых на лицевой панели.
Типоразмер блока из ряда БНК для разрабатываемого класса аппаратуры (рис. 3.8 и 3.9) может быть выбран по значениям
,
и
. За минимальные габаритные размеры блока для используемой БНК можно принять В=
+(7...10) мм, Н=
+(7..10) мм, L=
+(7...10) мм.
4. ОЦЕНКА ПОКАЗАТЕЛЕЙ КАЧЕСТВА КОНСТРУКЦИЙ РЭС
4.1. Оценочные расчеты тепловых режимов конструкций РЭС
Тепловой режим разработанной конструкции должен соответствовать требованию нормального теплового режима: температура в любой точке конструкции
не должна превышать допустимой рабочей температуры наименее теплостойкого элемента
. Следовательно, поверочный расчет теплового режима необходимо доводить до определения температур
. Однако на практике условия нормального теплового режима конструкции приобретают иное толкование, связанное с особенностями тепловой модели конструкции.
Закономерности процессов теплообмена конструкций РЭС с окружающей средой в значительной мере определяются их структурой. Поэтому многообразие существующих конструкций можно представить классами, для каждого из которых характерна своя тепловая модель и набор показателей, необходимых для оценки теплового режима. Одним из признаков классификации может служить структура нагретой зоны конструкции.
4.1.1.Тепловое моделирование и расчет теплового режима конструкции РЭС с источниками тепла, распределенными в объеме
К данному классу относятся конструкции блоков книжного, веерного и разъемного типов. Общим для названных конструкций является то, что нагретая зона представляет собой объем, занимаемый собранными в блок ФЯ. Самая "горячая" точка конструкции - центр нагретой зоны.
Схематическое изображение конструкции приведено на рис.4.1, а. Блок функциональных ячеек (нагретая зона) 2 размещен в корпусе 1 и закрепляется на корпусе с помощью установочных элементов 3 (бобышек, втулок, кронштейнов, угольников и др.).
При построении тепловой модели принимаются следующие допущения:
- нагретая зона является однородным анизотропным телом;
- источники тепла в нагретой зоне распределены равномерно;
- поверхности нагретой зоны и корпуса - изотермические со среднеповерхностными температурами
,
и
соответственно.
Тепло от центра нагретой зоны с температурой
теплопроводностью (эквивалентная тепловая проводимость (
)) выводится на поверхность нагретой зоны.
Рис.4.1
С поверхности нагретой зоны посредством конвективной (
) и лучевой (
) теплопередачи через воздушные прослойки, теплопроводностью контакта нагретая зона - установочные элементы (
) и самих установочных элементов (
) тепло передается на внутреннюю поверхность корпуса. За счет теплопроводности стенок (
) тепло выводится на наружную поверхность корпуса, откуда конвекцией (
) и излучением (
) переносится в окружающее пространство. Тепловая схема, отражающая процесс теплообмена в конструкции, приведена на рис.4.1, б. Критериальной оценкой теплового режима конструкций является температура в центре нагретой зоны
. Как следует из тепловой схемы:
tзо = tз + P/ з ,
где P - тепловой поток, рассеиваемый конструкцией;
внутренней поверхности корпуса ;
=
- тепловая проводимость теплопередачи от нагретой зоны к внутренней стенке корпуса излучением,
- коэффициент теплопередачи излучением;
- тепловая проводимость контакта между нагретой зоной и установочными элементами;
=(
)
- тепловая проводимость установочных элементов, n - число элементов, - коэффициент теплопроводности материала, l - длина установочных элементов по направлению теплового потока,
- площадь средней изотермической поверхности, перпендикулярной направлению теплового потока;
=(
/
)(
+
)/2 - тепловая проводимость стенок кожуха,
- коэффициент теплопроводности материала корпуса,
- толщина стенки,
,
- площади внутренней и наружной поверхностей корпуса;
=
- тепловая проводимость от наружной поверхности корпуса к среде для конвективной теплопередачи,
- коэффициент теплопередачи;
=
- тепловая проводимость от наружной стенки корпуса к среде для теплопередачи излучением,
- коэффициент теплопередачи излучением.
Расчет показателей теплового режима блоков может быть выполнен методом последовательных приближений или тепловой характеристики. В ориентировочных расчетах для определения тепловой проводимости
от центра нагретой зоны к ее поверхности можно воспользоваться усредненными значениями эквивалентных коэффициентов теплопроводности нагретой зоны:
=
=0.35 Вт/(моС),
=0.09 Вт/( моС ). Оси координат OX и OZ лежат в плоскости плат функциональных ячеек, ось OY - перпендикулярна плоскостям плат.
Для условий теплообмена в ограниченном пространстве коэффициент теплопередач излучением
может быть принят равным 7 Вт/(м
оС).
При малой толщине стенки (
=1.5...2мм) тепловым сопротивлением стенок корпуса, выполненного из металлических сплавов с высоким коэффициентом теплопроводности, обычно пренебрегают. Однако если используется корпус из пластмассы, то тепловую проводимость стенок
необходимо учитывать.
Для определения конвективного
и лучевого
коэффициентов теплопередач в условиях неограниченного пространства (теплообмен между наружной стенкой кожуха и окружающей средой) можно воспользоваться номограммами рис.4.3 и 4.4.
Рис.4.3
Рис.4.4
48
















