Zapiska (552043)
Текст из файла
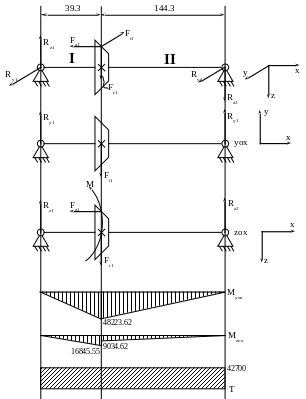
Быстроходный вал
Тихоходный вал
Вал II.
Расчет:
Изгиб:
1). Плоскость yox:
Проверка:
I
участок:
I
I участок:
2). Плоскость zox:
Проверка:
I
участок:
I
I участок:
Проверочный расчет вала
Расчет на статическую прочность
2). Определяем моменты сопротивления сечения вала изгибу W и кручению Wk:
3). Определяем эквивалентное напряжение в условиях изгиба и кручения:
4). Выбор материала:
Сталь 45
- предел выносливости материала при изгибе;
- предел выносливости материала при кручении;
5). Определяем запас прочности по пределу текучести:
Расчет на сопротивление усталости
1). Определяем коэффициент запаса усталостной прочности по нормальным и касательным напряжениям:
,
- переменные (амплитудные) составляющие цикла изменения нормальных и касательных напряжений:
- коэффициент динамичности нагрузки,
, где
- коэффициент, учитывающий динамическую нагрузку в зацеплении;
,
- постоянные (средние) составляющие цикла изменения нормальных и касательных напряжений:
, где Fa – осевое усилие в зацеплении, А – площадь сечения вала;
- для нереверсивных валов касательные напряжения принимаются изменяющимися по пульсирующему циклу.
,
- коэффициенты, характеризующие чувствительность материала к асимметрии цикла напряжений;
и
- приведенные коэффициенты концентрации напряжений, учитывающие влияние различных факторов на сопротивление усталости при изгибе и кручении:
где
и
- эффективные коэффициенты концентрации напряжений;
- (шлифованная поверхность) коэффициенты влияния шероховатости поверхности;
- (для вала без упрочнения) коэффициент, учитывающий влияние поверхностного упрочнения;
2). Определяем коэффициенты запаса усталостной прочности:
Проверочный расчет шариковых радиально-упорных подшипников, установленных по схеме «Х»
Дано:
Требуемая долговечность подшипников:
Суммарные реакции в опорах:
Вал установлен на шариковых радиально-упорных подшипниках средней серии 36209 (
. Схема установки «Враспор».
Динамическая грузоподъемность:
;
Статическая грузоподъемность:
;
1). Определим коэффициент влияния осевого нагружения:
, где
- число рядов тел качения;
Коэффициенты осевого нагружения и осевой нагрузки:
,
;
2). Определим осевые составляющие от радиальных нагрузок:
3). Определим осевые нагрузки подшипников:
4). Определим отношения:
;
, где V=1 – коэффициент вращения;
5). Уточним коэффициенты влияния осевого нагружения:
7). Определим эквивалентную радиальную динамическую нагрузку:
8). Определим базовую долговечность более нагруженного подшипника опоры 1:
Т.к. базовая долговечность больше требуемой (323359>15000), то подшипники пригодны.
Вал III.
Расчет:
Изгиб:
1). Плоскость yox:
Проверка:
I участок:
II участок:
2). Плоскость zox:
Проверка:
I участок:
III участок:
II участок:
Проверочный расчет вала
Расчет на статическую прочность
2). Определяем моменты сопротивления сечения вала изгибу W и кручению Wk:
3). Определяем эквивалентное напряжение в условиях изгиба и кручения:
4). Выбор материала:
Сталь 45
- предел выносливости материала при изгибе;
- предел выносливости материала при кручении;
5). Определяем запас прочности по пределу текучести:
Расчет на сопротивление усталости
1). Определяем коэффициент запаса усталостной прочности по нормальным и касательным напряжениям:
,
- переменные (амплитудные) составляющие цикла изменения нормальных и касательных напряжений:
- коэффициент динамичности нагрузки,
, где
- коэффициент, учитывающий динамическую нагрузку в зацеплении;
,
- постоянные (средние) составляющие цикла изменения нормальных и касательных напряжений:
, где Fa – осевое усилие в зацеплении, А – площадь сечения вала;
- для нереверсивных валов касательные напряжения принимаются изменяющимися по пульсирующему циклу.
,
- коэффициенты, характеризующие чувствительность материала к асимметрии цикла напряжений;
и
- приведенные коэффициенты концентрации напряжений, учитывающие влияние различных факторов на сопротивление усталости при изгибе и кручении:
где
и
- эффективные коэффициенты концентрации напряжений;
- (шлифованная поверхность) коэффициенты влияния шероховатости поверхности;
- (для вала без упрочнения) коэффициент, учитывающий влияние поверхностного упрочнения;
2). Определяем коэффициенты запаса усталостной прочности:
Проверочный расчет роликоподшипников конических однорядных, установленных по схеме «О»
Дано:
Требуемая долговечность подшипников:
Суммарные реакции в опорах:
Вал установлен на шариковых радиально-упорных подшипниках средней серии 7308 (
. Схема установки «Врастяжку».
Динамическая грузоподъемность:
;
Статическая грузоподъемность:
;
Коэффициенты осевого нагружения и осевой нагрузки
,
.
1). Определим осевые составляющие от радиальных нагрузок:
2). Определим осевые нагрузки подшипников:
3). Определим отношения:
;
, где V=1 – коэффициент вращения;
6). Определим эквивалентную радиальную динамическую нагрузку:
7). Определим базовую долговечность более нагруженного подшипника опоры 2:
Т.к. базовая долговечность больше требуемой (159144>10000), то подшипники пригодны.
| Документ скачан с сайта http://www.sscdimon.nm.ru/obuch Официальным раздаточным материалом не является. Если у Вас есть свой материал, намыльте его сюда: sscdimon@mail.ru |
Характеристики
Тип файла документ
Документы такого типа открываются такими программами, как Microsoft Office Word на компьютерах Windows, Apple Pages на компьютерах Mac, Open Office - бесплатная альтернатива на различных платформах, в том числе Linux. Наиболее простым и современным решением будут Google документы, так как открываются онлайн без скачивания прямо в браузере на любой платформе. Существуют российские качественные аналоги, например от Яндекса.
Будьте внимательны на мобильных устройствах, так как там используются упрощённый функционал даже в официальном приложении от Microsoft, поэтому для просмотра скачивайте PDF-версию. А если нужно редактировать файл, то используйте оригинальный файл.
Файлы такого типа обычно разбиты на страницы, а текст может быть форматированным (жирный, курсив, выбор шрифта, таблицы и т.п.), а также в него можно добавлять изображения. Формат идеально подходит для рефератов, докладов и РПЗ курсовых проектов, которые необходимо распечатать. Кстати перед печатью также сохраняйте файл в PDF, так как принтер может начудить со шрифтами.
















