Пояснительная записка (1229546), страница 5
Текст из файла (страница 5)
Проверить осевой разбег якоря, зазоры между петушками и корпусом щеткодержателя, расстояние от нижней кромки щеткодержателя до рабочей поверхности коллектора, перекос щеткодержателя по отношению к коллектору. Установить траверсу в рабочее положение и закрепить ее. Проверить работу тягового двигателя и якорных подшипников в режиме холостого хода, установку щеток в нейтральное положение. Провести приемо-сдаточные испытания собранного тягового двигателя согласно ГОСТ 2582-81. Шлифовка согласно рис. 1.7.
Рисунок 1.7 – Неправильная(а) и правильная (б) шлифовка щеток
2 РАЗРАБОТКА РАЦИОНАЛЬНОЙ ОРГАНИЗАЦИИ РАБОТ В ЦЕХЕ (УЧАСТКЕ) ПО РЕМОНТУ ТЯГОВЫХ ЭЛЕКТРОДВИГАТЕЛЕЙ ДВИГАТЕЛЕЙ НБ-514
2.1 Разработка плана предлагаемого цеха электромашинного участка
Электромашинный участок сервисного локомотивного депо Приморское производит ремонт тяговых электродвигателей в объёме ТР-3 на площади 1135 м2. Участок состоит из отделений: электромашинное, пропиточно-сушильное, лакоприготовительное и испытательная станция. Тяговые электродвигатели поступают с позиции разборки КМБ.
Предусмотрены на участке средства для механизации всех подъёмно-транспортных работ (электротельфер грузоподъёмностью 2т., электропогрузчик, два электрокара ЭК-2 грузоподъёмностью 2т. и другое специализированное оборудование).
Предусмотрена механизация разборно-сборочных работ с применением механизированного ручного инструмента, кантователей, индукционных нагревателей и других специальных приспособлений, очистка и дефектировка деталей, очистка и окраска электродвигателей.
В электромашинном отделении организуется поточный ремонт тяговых электродвигателей. В отделении устанавливаются конвейер шагающего типа для разборки и сборки ТЭД, кантователи А660 для разборки и сборки ТЭД, гидравлический пресс для выпрессовки и запрессовки подшипниковых щитов, контейнер для подшипниковых щитов, продувочная камера с тележкой, кантователь остовов тяговых двигателей, сварочный трансформатор, кантователь якорей, установка для контактной пайки коллекторов, станок для автоматической продорожки и шлифовки коллекторов, установка для испытания якорей тяговых двигателей, станок для балансировки якорей ТЭД МС9718, установка для окраски и сушки ТЭД, станок настольно-сверлильный 2М112, печь для нагрева катушек, сушильные печи для сушки электродвигателей, испытательная станция ТЭД А1062.
Пропиточно – сушильное отделение предназначено для покрытия изоляционной эмалью и пропитки катушек главных и дополнительных полюсов и якорей ТЭД. Отделение состоит из участков сушки, охлаждения, покрытия и окраски изоляционными лаками, вакуум – нагнетательной пропитки и пропитки окунанием. В отделении имеются сушильные печи для сушки ТЭД, окрасочная камера для покрытия якорей и остовов эмалью, установка для пропитки катушек ТЭД, бак для окраски катушек окунанием, камера для охлаждения якорей, установка для пропитки якорей ТЭД.
Лакоприготовительное отделение предназначено для приготовления, хранения, приёма, выдачи и регенерации изоляционного лака. В отделении установлены насос поршневой ручной, смеситель для приготовления лака, бак для разбавителя и растворителя, пресс – фильтр, резервуар для хранения лака.
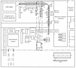
Ниже рассмотрим схему предлагаемого электромашинного участка показанного на рисунке 2.1.
Рисунок 2.1 – Схема электромашинного участка
Перечень позиций, показанных на рисунке 2.1 приведен в таблице 2.1.
Таблица 2.1 – Перечень позиций электромашинного участка
| Позиция | Наименование |
| | Моечная машина |
| | Обдувочно-покрасочная камера |
| | Позиция магнитной дефектоскопии |
| | Стенд для испытания электрической прочности изоляции якорей |
| | Стеллаж для подшипниковых щитов |
| | Пресс для выпрессовки подшипников из подшипниковых щитов |
| | Высокочастотный нагревательный комплекс |
| | Позиция разборки ТЭД, оборудованная прессом для выпрессовки большого подшипникового щита |
Продолжение таблицы 2.1
| | Монорельс с тельфером г/п 1т. |
| | Позиция осмотра и дефектовки якоря |
| | Позиция магнитной дефектоскопии вала якоря |
| | Кантователь осевого вращения остова ТЭД с манипулятором для снятия полюсов |
| | Позиция, оборудованная установкой для проверки качества межвитковой изоляции полюсных катушек |
| | Позиция демонтажа внутренних колец подшипников |
| | Высокочастотный нагревательный комплекс (для нагрева внутренних колец подшипников) |
| | Накопитель якорей |
| | Станок для бандажировки и продорожки якорей РТ5004 |
| | Балансировочный станок МС9718 |
| | Позиция ремонта щёткодержателей |
| | Пресс для запрессовки подшипников в подшипниковые щиты |
| | Стеллаж готовой продукции (остова) |
| | Кантователь для сборки ТЭД на два остова |
| | Высокочастотный нагревательный комплекс (для нагрева горловины остова) |
| | Стеллаж готовой продукции (якоря) |
| | Позиция сборки якорей и подшипниковых щитов |
| | Стенд для испытания электрической прочности изоляции магнитной системы |
| | Установка для проверки качества межвитковой изоляции якорей |
2.2 Расчет фондов рабочего времени
Расчет фондов рабочего времени производится в соответствии с трудовым законодательством Российской Федерации [4].
Календарный фонд времени находим по формуле
(2.1)
где:
– календарный фонд времени, ч;
– число календарных дней в году;
tк– число календарных часов в сутки.
Подставим численные значения в формулу (2.1), получим
Действительный (номинальный) фонд рабочего времени исполнителя, находим по формуле
(2.2)
где:
– фонд рабочего времени исполнителя, ч;
– число выходных и праздничных дней в году,
= 118;
– число предпраздничных дней в году,
=7;
tk– продолжительность смены в рабочий день,tk=8;
– продолжительность смены в предвыходные и предпраздничные дни,
= 7;
s – число рабочих смен в сутки, s=1.
Подставим численные значения в формулу 2.2, получим
Действительный фонд рабочего времени оборудования [4]
(2.3)
Подставим численные значения в формулу 2.3, получим
Фонд времени пребывания оборудования в плановых ремонтах и на техническом обслуживании
(2.4)
где η – коэффициент, учитывающий затраты времени на производство планового ремонта оборудования, η=5 %;
– фонд рабочего времени оборудования, ч.
Подставим численные значения в формулу 2.4, получим
В таблице 2.2 представлен фонд рабочего времени.
Таблица 2.2 – Фонд рабочего времени
| Условное обозначение | Наименование показателей | Размерность | Источник численного значения | Численное значение показателя |
| s | Число рабочих смен в сутки | смена | Принято | 1 |
| | Продолжительность смены в рабочие дни | ч | Принято | 8 |
| | Продолжительность в предвыходные и предпраздничные дни | ч | Принято | 7 |
| | Число календарных дней в году | дни | 365 | |
| | Число выходных и праздничных дней в году | дни | 118 | |
| | Число предвыходных и предпраздничных дней в году | дни | 7 | |
| | Календарный фонд рабочего времени | ч | Формула (3.1) | 8760 |
| | Фонд рабочего времени исполнителя | ч | Формула (3.2) | 1969 |
| | Фонд рабочего времени оборудования | ч | Формула (3.3) | 1969 |
| | Фонд времени пребывания оборудования в плановых ремонтах | ч | Формула (3.4) | 98,45 |
2.3 Определение производственной программы цеха
Расчет производственной программы производят исходя из количества ремонтируемых узлов на электровозе [4].
Годовая программа определяется по каждому из ремонтируемых цехом агрегатов.
(2.5)
где
– программа ремонта для линейных предприятий;
– заданный процент ремонта локомотивов для линейных предприятий, α = 5%;
– заданная программа ремонта локомотивов,
Результаты расчетов сводятся в таблицу 2.9.
Таблица 2.3 – Производственная программа цеха
| Условное обозначение | Наименование показателя | Размерность | Источник численного значения | Численное значение показателя |
| Рлг | Годовая заводская программа ремонта электровозов | Электровоз | Материал из депо | 64 |
| α | Процент ремонта электровозов для линейных предприятий | % | Материал из депо | 5 |
| k | Число тяговых двигателей на одном электровозе 2ЭС5К | Агрегат | Описание локомотива | 3,2 |
| Рлз | Годовая программа ремонта агрегата для линейных предприятий | Агрегат | Формула (3.5) | 403 |
| Р | Полная годовая программа ремонта агрегатов для проектируемого цеха | Агрегат | (Рлг+ Рлз)k |
2.4 Организация производственного процесса, определение трудозатрат
Производственный процесс представляет собой совокупность взаимных технологических процессов: основных, вспомогательных и обслуживающих, в результате которых исходные материалы и полуфабрикаты превращаются в готовое изделие. Основным производством является технологический процесс, в результате которого изменяют форму, размеры, состояние поверхностей, механические, физические или иные свойства заготовок и деталей [4].
Определение и расчет трудозатрат производится по технологическим нормировочным картам, анализу конструкции ремонтируемого агрегата и возможных его неисправностей.
Трудозатраты на выполнение работ представлены в таблице 2.4.
Таблица 2.4 – Трудозатраты на выполнение работ
| № цикла | № п/п | Содержание работы по видам операций | Оперативное время, мин | Тарифный разряд |
| 1 | 2 | 3 | 4 | 5 |
| 1 | Подготовка тягового электродвигателя к разборке и ремонту | Замерить сопротивление изоляции тягового электродвигателя | 10 | Слесарь |
| 2 | Произвести мойку наружной поверхности тягового электродвигателя | 15 | Слесарь | |
| 3 | Снять шапку моторно-осевого подшипника | 25 | Слесарь | |
| 4 | Снять шестерню с конуса вала якоpя тягового электpодвигателя | 25 | Слесарь |
Продолжение таблицы 2.4
| 1 | 2 | 3 | 4 | 5 |
| 5 | Снять вентиляционный патpубок, кpышки коллектоpных люков, козыpьки и сетки выхлопных окон с остова тягового электpодвигателя | 12 | Слесарь | |
| 6 | Разборка и очистка тягового электpодвигателя | Установить ТЭД на позицию pазбоpки | 5 | Слесарь |
| 7 | Снять кpышку подшипникового щита со стоpоны коллектоpа | 15 | Слесарь | |
| 8 | Снять лабиpинтное кольцо | 10 | Слесарь | |
| 9 | Выпрессовать подшипниковый щит со стороны пpотивоположнойколлектоpуотвеpнуть | 26 | Слесарь | |
| 10 | пpодуть остов тягового электpодвигателя сухим сжатым | 10 | Слесарь | |
| 11 | пpомыть подшипниковые щиты и кpышки | 15 | Слесарь | |
| 12 | Осмотp, pемонт механической части остова | установить остов ТЭД на подставку | 10 | Слесарь |
| 13 | осмотpеть остов на наличие тpещин | 5 | Слесарь | |
| 14 | Произвести замер моторно-осевых горловин | 15 | Слесарь | |
| 15 | Опpеделить натяг посадки шапки на вкладыш | 10 | Слесарь | |
| 16 | пpовеpить качество пpиваpки кpонштейнов щеткодеpжателей к остову | 5 | Слесарь | |
| 17 | Осмотр и ремонт электрической части остова | Измерить сопротивление изоляции обмоток полюсов в остове | 10 | Слесарь |
Продолжение таблицы 2.4
| 1 | 2 | 3 | 4 | 5 |
| 18 | Измерить омическое сопротивление обмоток катушек полюсов | 10 | Слесарь | |
| 19 | Осмотреть магнитную систему для выявления дефектов полюсных катушек | 5 | Слесарь | |
| 20 | Проверить затяжку полюсных болтов обстукиванием | 5 | Слесарь | |
| 21 | Измерить расстояние от оси вращения якоря до поверхности сердечника по оси | 10 | Слесарь | |
| 22 | Проверить состояние соединительных и выводных проводов | 5 | Слесарь | |
| 23 | Восстановить поврежденную изоляцию выводных и соединительных проводов | 35 | Слесарь | |
| 24 | Пропитка катушек полюсов в остове и проверка остова после пропитки | Произвести пропитку полюсных катушек в остове без их снятия | 60 | Слесарь |
| 25 | Испытать остов на электрическую прочность изоляции относительно корпуса | 15 | Слесарь | |
| 26 | Проверить крепление межкатушечных соединений | 5 | Слесарь | |
| 27 | Осмотр и ремонт подшипниковых щитов и крышек. | выпрессовать роликовые подшипники | 15 | Слесарь |
| 28 | промыть подшипниковые щиты, лабиринты | 15 | Слесарь | |
| 29 | осмотреть подшипниковые щиты и лабиринты на наличие трещин и остукиванием | 5 | Слесарь | |
| 30 | замерить диаметр посадочных поверхностей щитов | 5 | Слесарь |
Окончание таблицы 2.4
| 1 | 2 | 3 | 4 | 5 |
| 31 | Сборка ТЭД | Установить роликовый подшипник в щит | 15 | Слесарь |
| 32 | Произвести постановку щитов в остов | 45 | Слесарь | |
| 33 | Произвести сборку остова с якорем | 60 | Слесарь | |
| 34 | Одеть на выводные кабели защитные рукава | 15 | Слесарь | |
| 35 | Установить шапки МОП на остов, укрепить болтами | 35 | Слесарь | |
| 36 | Произвести посадку шестерни на конус вала якоря ТЭД | 35 | Слесарь |
2.5 Построение сетевой модели производственного процесса
Сетевой моделью называется информационная математическая модель, которая, являясь, с математической точки зрения, направленным графом, дает наглядное представление об организации производственного процесса во времени и позволяет рассчитать все необходимые ресурсы на его выполнение.
















