Пояснительная записка (1229546), страница 3
Текст из файла (страница 3)
- отогревание кранов продувки ГР-18 случаев 216 часов.
Основные причины неисправностей:
Автотормозное оборудование:
- неисправность крана машиниста усл. № 395 по причине браковки манжеты 222.06 уравнительного поршня (43 случая в 2014 года против 73 в 2013 году). Мероприятия: замена манжет на каждом ремонте.
- постоянное перемерзание кранов продувки главных резервуаров в зимнее время из-за избыточного количества влаги, отсутствия должной продувки (15 случая в 2014 года против 53 в 2013 году). Все случаи отнесены на ТЧЭ.
- излом по сварному шву уголка напорной трубы питательной магистрали, от компрессора к гибкой гофрированной трубе в следствии вибрации компрессора и низкого качества изготовления трубы (35 случаев в 2014 года против 41 в 2013 году). За ТМХ-18 сл., за ТЧР-10 сл.
Электрические аппараты:
- систематический выход из строя главного выключателя ВБО-25-УХЛ по причине конструктивных недоработок на заводе изготовителе: изломы защелок, пружин защелок, пробой вакуумной камеры, неисправность включающего механизма, неисправности реле давления, неисправности пневмоцилиндра на включение ВБО (41 случая в 2014 года против 43 в 2013 году).
- неисправность быстродействующих выключателей БВ-008 по причине неисправности манжет пневмопривода (недостаточное количество смазки и неудовлетворительное качество изготовления манжет); некачественное крепление передней текстолитовой планки (разрушение эпоксидной заливки, приводящее к ослаблению болтового крепления воздействию раскрученных болтов на магнитопровод) (25 случаев в 2014 года против 16 в 2013 году).
Электронная аппаратура:
- броски тока по ВИП (19 случаев в 2014 года против 23 в 2013 году) .
- неисправность кассеты БМК-036 ВИП (6 случаев в 2014 года против 9 в 2013 году).
- потеря свойств флеш карты (18 случая в 2014 года против 19 в 2013 году).
- броски тока по МСУД (35 случая в 2014 года против 40 в 2013 году).
- не исправность ВИП (17 случая в 2014 года против 29 в 2013 году).
- отсутствуют показания с датчика давления ГВ по МСУД (5 случаев в 2014 года против 6 в 2013 году).
- отсутствует нагрузка на ТЭД по МСУД (16 случая в 2014 года против 21 в 2013 году)
Сдвиг бандажей колесных пар по причине применения прямодействующего тормоза длительное время, самопроизвольного наполнения тормозных цилиндров (25 случаев в 2014 года против 48 в 2013 году).
Неисправность фрикционных аппаратов по причине износа тягового хомута фрикциона (50 случаев в 2014 года против 58 в 2013 году).
Неисправность кожухов зубчатой передачи по причине трещин по сварным швам (40 случаев в 2014 года против 39 в 2013 году).
1.2. Организация работ в цехе ( участке )
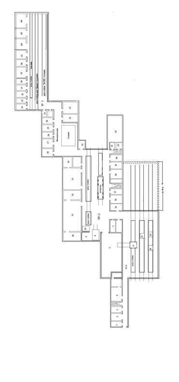
Для более подробного рассмотрения организации работы депо представляю план – схему территории которая показана на рисунке 1.2
Рисунок 1.2 - План-схема ремонтного депо
1. цех по ремонту скоростемеров; 2. цех ремонта приводов скоростемеров; 3. цех ремонта AЛC.H; 4.САУТ; 5.цех ремонта тележек; 6. участок выкатки КМБ; 7. смазочная: 8. моечная машина; 9. сушка трансформаторного масла; 10. пропиточное отделение ; 11. эл.машинный цех; 12. ипытательная станция; 13. колесный цех; 14. колесный цех; 15. Участок ТР-1; 16. цех планерных совещаний TP-1; 17. кабинет ТЧРЗ; 18. ВИП; 19. компрессорная; 20. аккумуляторная; 21. туалет; 22. сварочное отделение; 23. станок по обточке колесных пар А-41; 24. душевые; 25. трансформаторное отделение; 26. кладовая; 27. эл.аппаратный цех; 28. кузница; 29. цех изготовления резино технических изделий; 30. химчистка; 31. участок проверки огнетушителей;32. автоматный цех;33. столовая;34. компрессорная; 35. туалет; 36. цех наплавки деталей; 37. столярный цех; 38. шерстемоечная; 39. участок ремонта ЭКГ н ВОВ; 40. эксперементальный участок;41. мех оборудование; 42. станок по обточке колесных пар А-41; 43. станок плазменного упрочнения гребней колесных пар; 44. жестянщик; 45. инструментальньй цех;46. участок электроники;
1.2.1. Ремонт ТР-2 электровозов в локомотивном депо Приморское организован на четырех позициях
-
Поступающий в ремонт электровоз предварительно очищают от пыли. Работы по очистке производят на позиции оснащенной установкой для удаления пыли
-
Основные операции по ремонту выполняются в цехе ТР-2.
В главном пролете корпуса размещены:
-Линия ремонта электровозов, состоящая из ремонтной позиций (смотровая канава №1) расположенная на одном сквозном пути цеха.
В пристроенных помещениях размещены:
-Участок разборки-сборки колесно-моторных блоков;
-Участок ремонта навесного оборудования;
-Участок по ремонту резервуаров;
-Участок ревизии силовых трансформаторов;
-Пропиточно-сушильным отделение;
-Станции испытания электрических машин;
-Участок по ремонту вспомогательных электрических машин;
-Отделение по ремонту редукторов и гидравлических амортизаторов;
-Отделение по ремонту токоприемников;
-Участок по ремонту компрессоров;
- Колесный цех и роликовое отделение.
Ремонт электрооборудования, аккумуляторных батарей, автотормозного оборудования, восстановление деталей рессорного подвешивания выполняется во вспомогательных цехах размещенных в цехе ТР-3.
Испытание под контактным проводом. Позиция размещена на тракционных путях за цехом ТР-2.
1.2.2. Технологический процесс работы.
После очистки на подготовительной позиции, электровоз маневровым тепловозом с восточной стороны цеха устанавливают на ремонтную позицию - смотровую канаву №1, на которой выполняются следующие работы:
-
прогревают тяговые двигатели электровоза (в холодное время года);
-
разъединяют секции;
-
расставляют секции для подъема кузова;
-
производят выкатку тележек, снимают электрооборудование;
-
выполняют ремонт подкузовного и автосцепного оборудования;
-
осматривают и ремонтируют несъемное оборудование, шинный монтаж, кондуиты;
-
начинают установку переходного оборудования;
-
производят подкатку тележек;
После подкатки тележек электровозу выполняют следующие работы:
-
производят сцепку электрических и пневматических межсекционных соединений;
-
заканчивают установку переходного оборудования;
-
заканчивают ремонт несъемного оборудования;
-
ремонтируют кузов;
-
Для механизации работ напозиция разборки тележек установлено следующее оборудование:
-
Домкраты для поддержки тяговых электродвигателей;
-
Самоходные тележки с гайковертами для откручивания поводковых болтов;
-
Мостовым краном, что позволяет обслуживать всю площадь, на которой стоит электровоз. Демонтированные детали навесного оборудования транспортируются на ремонт в контейнерах.
После выполнения работ по ремонту подкузовного и автосцепного оборудования производят подкатку тележек электровоза.
На позиции заканчиваются работы по ремонту несъемного оборудования, монтажу переходного оборудования.
Передвижение электровоза по позициям, выкатка, подкатка тележек и передвижение тележек по накопительным позициям производится от низковольтной системы ввода и вывода. Питание системы ввода и вывода осуществляется от сварочной сети постоянного тока.
Ремонт навесного оборудования.
Снятое навесное оборудование передается на позиции ремонта расположенные параллельно линии ремонта тележек.
На позициях производится:
-
проверка и дефектоскопия деталей навесного оборудования. Детали, требующие восстановления передаются на ремонт в заготовительные цеха.
-
Проверка и подбор по характеристикам буксовых поводков, листовых рессор, спиральных пружин. Позиции оснащены автоматизированными стендами для проверки и подбора по характеристикам буксовых поводков, листовых рессор), спиральных пружин. Стенды связаны локальной вычислительной сетью со станцией испытания электровоза.
Разборка колесно – моторных блоков
При необходимости колесно – моторные блоки с позиции разборки тележек мостовым краном передаются на механизированную позицию разборки колесно-моторных блоков.
После разборки колесно-моторных блоков тяговые двигатели поступают для ремонта в электромашинный цех, который представлен на рисунке 1.3
Рисунок 1.3 - Схема электромашинного участка
Перечень позиций, показанных на рисунке 1.3. приведен в таблице 1.7
Таблица 1.7 – Перечень позиций электромашинного цеха
| Позиция | Наименование |
| 1 | Стенд для испытания электрической прочности изоляции якорей |
| 2 | Монорельс с тельфером г/п 1т. |
| 3 | Кантователь осевого вращения остова ТЭД с манипулятором для снятия полюсов |
| 4 | Кантователь для сборки ТЭД на два остова |
| 5 | Стеллаж готовой продукции (остова) |
По факту выполняется:
Ремонт тягового электродвигателя.
После очистки ТЭД поступает на участок ремонта электромашин.
-Разборка ТЭД.
-При необходимости или браковки замена якоря ТЭД.
-При необходимости или браковки замена подшипниковых щитов и шапок моторно-осевых подшипников.
-Сборка ТЭД.
1.2.3Характеристика и технические данные тягового двигателя НБ - 514
Рисунок 1.4 –Общий вид тягового двигателя НБ-514
1–вал якоря; 2–вкладыши моторно – осевых подшипников; 3–букса моторно-осевых подшипников; 4 – крышка верхнего смотрового люка; 5 – крышка коробки выводов;
6 – трубка для добавления смазки в якорный подшипник
1.2.3.1 Электродвигатель НБ-514 предназначен для преобразования
электрической энергии, получаемой из контактной сети, в механическую, передаваемую с вала двигателя на колесную пару электровоза.
Тяговый двигатель выполнен для опорно – осевого подвешивания и представляет собой шестиполюсную электрическую машину пульсирующего тока с последовательным возбуждением и независимой системой вентиляции.
Охлаждающий воздух поступает в тяговый двигатель со стороны коллектора через вентиляционный люк и выходит из двигателя со стороны, противоположной коллектору, вверх под кузов электровоза через специальный кожух.
1.2.3.2 Основные технические данные тягового двигателя:
| Мощность, кВт | 835/780 |
| Напряжение на коллекторе, В | 980/980 |
| Ток якоря, А | 905/843 |
| Частота вращения якоря, об/мин | 905/925 |
| Количество вентилирующего воздуха, м3/мин, не менее | 95 |
| КПД, % | 94,1/94,3 |
| Класс изоляции по нагревостойкости катушек главных, добавочных полюсов, компенсационной обмотки и обмотки якоря | F |
| Сопротивление при температуре + 20С, Ом: |
|
| цепи всех катушек главных полюсов (без шунта) | 0,00706 |
| цепи всех катушек добавочных полюсов и компенсационной обмотки | 0,0132 |
| обмотки якоря | 0,0112 |
| Масса двигателя (без зубчатой передачи), кг | 4280 |
Примечание. В числителе приведены значения, соответствующие часовому режиму, в знаменателе – продолжительному.
1.2.3.3 Тяговый двигатель НБ-514 выполнен на базе двигателя НБ-418к6.
Двигатель НБ-514 мощнее своего предшественника, что позволяет развивать электровозу ВЛ85 мощность 10000 кВт в часовом режиме. Он более устойчив к возникновению круговых огней по коллектору, имеет защиту от деформации катушек добавочных полюсов электродинамическими силами токов короткого замыкания и ряд других усовершенствований.
Двигатель НБ-514 взаимозаменяем с НБ-418к6 по установочным размерам и электромеханическим характеристикам. В нем применены унифицированные с предыдущим тяговым двигателем надежно работающие подшипниковые узлы, траверсы, отливки остова, коллектор, листы якоря, вал с втулками, все резьбовые соединения, редуктор зубчатой передачи.
Существенным изменениям подверглась полюсная система остова двигателя, изменен кронштейн подвески двигателя, увеличено сечение проводников обмотки якоря.
Существенно изменена в двигателе НБ-514 лобовая часть якоря со стороны, противоположной коллектору. В ней головки выполнены открытыми, что существенно улучшило условия охлаждения, увеличило срок службы изоляции.
Для обеспечения влагостойкости изоляции и повышения срока службы якоря и главных полюсов обмотка якоря и катушки главных полюсов пропитаны в эпоксидном компаунде ЭМТ-1.
Обмотки якоря двигателя НБ-514 соединены с петушками коллектора дуговой сваркой в среде инертного газа.
1.3 Общие требования к выполнению ремонта тягового электродвигателя
На текущем ремонте ТР-3 выкатывают тележки из-под электровоза, разбирают их и демонтируют с тележки тяговые электродвигатели. Для этого выкаченную тележку устанавливают на разборочную площадку, имеющую специальные подъемники, позволяющие приподнять остов электродвигателя на 17 °С, что дает возможность вывести из приливов станин верхние обоймы пружинных подвесок. С тележки снимают воздухопроводы и трубы для песка, буксовые струнки, распускают рычажную передачу и отсоединяют кабели. Отсоединяют фрикционные гасители колебаний от корпусов букс и буксовые поводки от кронштейнов рамы тележки. Затем тросом зачаливают раму тележки, приподнимают и снимают с колесно – моторных блоков (тяговый электродвигатель в сборе с колесной парой).
В ряде случаев из-за неисправности какого-либо тягового электродвигателя, возникшей в период между текущими ремонтами ТР-3, необходимо сменить один электродвигатель. Для этого в депо имеются скатоопускные канавы. Такая канава позволяет опускать с помощью подъемника колесно-моторный блок из-под локомотива вниз, откуда при необходимости переместить его по поперечному тоннелю и поднять на соседний путь или междупутье.
Тяговые электродвигатели следует очищать в моечной машине, если обеспечена защита двигателя от попадания влаги внутрь. Если это условие нельзя выполнить, то электродвигатель очищают скребками и протирают ветошью, смоченной в керосине.
После мойки с тягового электродвигателя снимают заглушки, продувают сжатым воздухом и замеряют сопротивление изоляции. В случае пониженного сопротивления изоляции по сравнению с предыдущим замером электродвигатель направляется на сушку. Если сопротивление изоляции осталось нормальным, то тяговый электродвигатель подается на проверку и разборку.
На разборку тяговые электродвигатели поступают в комплекте с буксами моторно – осевых подшипников. Перед разборкой сверяют номера букс и подшипниковых щитов с номером двигателя. В случае если номера где-либо нет, его необходимо выбить.
1.3.1 Последовательность выполнения работ при ремонте тягового электродвигателя НБ-514 в объеме ТР-3.
При ТР-3 выполнить: освидетельствование электрической части остова с проверкой межкатушечных соединений и выводных кабелей, крепления полюсных сердечников, правильности установки главных и добавочных полюсов, прочности посадки катушек на сердечниках, покрытие электроизоляционной эмалью полюсных катушек; освидетельствование и ремонт механической части остова и его деталей, механической части якоря; обточку, продорожку и шлифовку коллектора; ревизию и ремонт якорных подшипниковых узлов, щеткодержателей и их кронштейнов, траверс, крышек люков и крепежных деталей; приемо-сдаточные испытания и окраску двигателей. Ремонт двигателей проводить в соответствии с настоящей инструкцией, действующими чертежами, нормами допусков и износов.
















