Диплом (1222379), страница 4
Текст из файла (страница 4)
Рисунок 2.15 – схема армирования по оси х (нижняя грань)
Рисунок 2.16 – схема армирования по оси у (верхняя грань)
Рисунок 2.17 – схема армирования по оси у (нижняя грань)
2.5 Результаты армирования
По результату расчета принимаем армирование плиты по верхней и нижней грани вдоль оси «Х» на 1п.м. 5 стержней, диаметром 10 А400 с шагом S=200мм по всей площади плиты. По верхней и нижней грани вдоль оси «У» на 1п.м. принимаем 5 стержней, диаметром 10 А400 с шагом S=200мм по всей площади плиты. Дополнительно, у краевых зон, в местах вент-стволов, армируем отдельными стержнями диаметром 12мм, с шагом S=100мм, на длину 300мм, в двух плоскостях и в двух уровнях плиты.
Для обеспечения проектного положения между нижними и верхними сетками устанавливаем фиксаторы из арматуры диаметром 6 класса А240 в шахматном порядке, с шагом 400мм.
3.ОРГАНИЗАЦИОННО-ТЕХНОЛОГИЧЕСКИЙ
Р А З Д Е Л
3.1 Календарный план производства работ
3.1.1 Определение трудозатрат и длительности выполнения работ
Трудозатраты определены на основании локальных сметных расчетов по строящемуся объекту.
Затраты труда, состав бригад, сменность работ заносятся в таблицу 3.1 и обрабатываются с целью определения длительностей выполнения работ каждого производственного процесса.
Длительность выполнения строительно-монтажных работ определена с учетом перевыполнения работниками норм выработки до 30%.
По окончании обработки таблицы Б 1 составляется календарный график производства работ по объекту в целом.
Составление календарного плана ведется с использованием программы Microsoft Project.
При проектировании календарного плана предусмотрено выполнение работ по устройству несущего каркаса секций тремя разными бригадами плотников-бетонщиков. Остальные работы выполняются одной бригадой, переходящей с захватки на захватку.
Калькуляция трудовых затрат приведена в таблице Б 1 приложение Б
3.1.2 Выбор основных методов производства работ, машин и механизмов
Принимаемые методы производства работ предусматривают комплексную механизацию и использование высокопроизводительных строительных машин, обеспечивают высокое качество работ и безопасность труда, поточность и бесперебойность строительного процесса.
Механизированные земляные работы ведутся с помощью экскаватора Komatsu S4D, емкостью ковша 0,65 м3. Технические характеристики экскаватора Komatsu S4D приведены в приложении Ц.
Транспортировка грунта осуществляется автосамосвалами на шасси Isuzu Giga с емкостью кузова 18 м3.
Монтажные, погрузо-разгрузочные работы, работы по подаче материалов на участки фронта работ ведутся подобранным ранее краном Komatsu LW250-5 . Технические характеристики крана Komatsu LW250-5 приведены в табличной форме в приложении Ц
Бетонирование фундамента и каркаса дома ведется с помощью бетононасоса Schwing BPL 500 HDR со стрелой KVM 24-4H на шасси Kato KR25H. Автобетоносмесители емкостью бункера 6 м3 предоставляет организация-поставщик бетонной смеси. Устройство цементно-песчаной стяжки полов ведется с применением растворонасоса BMS Worker N1. При подаче значительных объемов применяется бетононасос. Бетоновод от растворонасоса прокладывается внутри объема здания по технологическим отверстиям, подача смеси бетононасосом осуществляется в оконные и дверные проемы.
Для очистки поверхностей от мусора и технологических отверстий от проемообразователей используется пневматический компрессор.
Промывка автобетононасоса осуществляется с помощью шамбо на шасси Hino Ranger. При производстве работ по благоустройству территории используются бульдозер Mitsubishi BD2R, асфальтоукладчик Vogele, вибротрамбовки и колесный погрузчик.
Снабжение строительной площадки ресурсами малого веса и объема, а также транспортировка грузов по территории объекта осуществляется крано-манипуляторной установкой Unic V-342. Доставка основных строительных материалов и конструкций осуществляется тягачами Mitsubishi Fuso с различными прицепами.
3.2 Разработка объектного строительного генерального плана
В соответствии с заданием на проектирование разрабатывается объектный строительный генеральный план на период возведения коробки жилого дома.
3.2.1 Основные положения по проектированию стройгенплана
Строительным генеральным планом (СГП) называют генеральный план площадки, на котором показана расстановка основных монтажных и грузоподъемных механизмов, временных зданий и сооружений, установок, возводимых и используемых в период строительства.
СГП - основной документ, регламентирующий организацию строительной площадки и объемы временного строительства. Строительный объектный генеральный план разрабатывается в составе проекта производства работ на основании [29].
Исходными данными для разработки СГП служат:
- общеплощадочный СГП;
- календарный план производства работ;
- решения по методам производства работ (используемые машины и механизмы, в том числе монтажные краны, подъемники и т. п.);
- рабочие чертежи и расчеты потребности в ресурсах.
Объектный СГП представлен на листе 7 и сопровождается расчетно-пояснительной запиской.
3.2.2 Размещение монтажных кранов
Производится рабочая привязка с обозначением пути движения, габаритов, зон работы крана и др.
3.2.2.1 Выбор монтажного крана
Определяются требуемые технические параметры крана (минимальная длина стрелы, требуемая грузоподъемность крана, высота подъема и вылет крюка).
Для определения требуемых параметров крана определяются производственные процессы, по которым производится выбор грузоподъемного механизма. Такими процессами являются монтаж сборной части этажной лестничной площадки, подъем раствора для устройства кровельной стяжки и подача упаковок кровельных рулонных материалов на горизонт.
1) Требуемая длина стрелы устанавливается в зависимости от условий монтажа критического элемента – наиболее далеко и высоко расположенном от стоянки крана. Таким элементом является банка с раствором при устройстве стяжки кровли. Принято к расчету исходя из запасного варианта подачи растворной смеси при поломке растворонасоса.
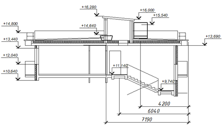
Участок конструкции, на который необходимо произвести подачу ресурса представлен на рисунке 3.1.
Рисунок 3.1 - Участок конструкции к расчету параметров крана
За требуемую отметку подачи принимается отметка верха кровельного покрытия.
Н6 =Нтр-Нг/зп (3.1)
Н6=(14,8-0,6+2,5+0,4+0,5)-2,5-2=13,1м
где Hтр- расстояние от уровня стоянки крана до отметки подачи ресурса; Hг/зп- длина грузозахватного приспособления от крюка крана до нижней точки груза; H5- расстояние от уровня стоянки крана до шарнира пяты стрелы; H6- расстояние от шарнира пяты стрелы до нижней точки груза.
При выборе крана с подъемной стрелой необходимо, чтобы от габарита стрелы до выступающих частей здания соблюдалось расстояние не менее 0,5 м, а до перекрытия (покрытия) здания и других площадок, на которых могут находиться люди, не менее 2 м.
(3.2)
где L3- расстояние от центра тяжести груза до оси стрелы; L0- расстояние от центра тяжести груза до наружного габарита здания; К- зазор между существующим элементом конструкции и осью стрелы при грузоподъемных работах, равен 0,5 м.
L0= 7,19 м. определено графически по чертежу.
Величина наклона стрелы к горизонту
где α- угол наклона стрелы к горизонту.
Минимальная длина стрелы
l=
(3.4)
l =
Минимальный вылет
L=
L
где L2 - расстояние от оси вращения крана до оси шарнира пяты стрелы.
Учет поворота крана на угол φ для подачи раствора на грань захватки.
Величина смещения крюка от оси пролета
где В – длина участка конструкции, обслуживаемой с одной стоянки крана, в направлении движения крана.
Требуемый вылет крюка
(3.5)
Требуемая длина стрелы
(3.6)
Требуемая грузоподъемность Gтр..= 0,05+1,8·0,25= 0,5 т.
2) Требуемые вылет и грузоподъемность устанавливается в зависимости от условий монтажа тяжелого элемента. Одним из таких элементом является сборная лестничная площадка.
где Gл/п – вес лестичной площадки.
(3.7)
Требуемая высота подъема крюка крана при установке площадки от уровня стоянки крана:
(3.8)
где Hтр- расстояние от уровня стоянки крана до отметки подачи ресурса; Hг/зп- длина грузозахватного приспособления от крюка крана до нижней точки груза; Hопор- расстояние от уровня стоянки крана до опорных точек конструкции (либо до участка здания по высоте, через который необходимо перенести груз); Hл/п- высота лестничной площадки в монтажном положении.
(3.9)
где Hтр- расстояние от уровня стоянки крана до отметки подачи ресурса; Hг/зп- длина грузозахватного приспособления от крюка крана до нижней точки груза; H5- расстояние от уровня стоянки крана до шарнира пяты стрелы; H6- расстояние от шарнира пяты стрелы до нижней точки груза.
Н5=0, т.к. площадка переносится через участок стены и опускается во внутренний объем лестничной клетки.
(3.10)
где L3- расстояние от центра тяжести груза до оси стрелы; L0- расстояние от центра тяжести груза до наружного габарита здания; К- зазор между существующим элементом конструкции и осью стрелы при грузоподъемных работах, равен 0,5 м.
(3.11)
где α- угол наклона стрелы к горизонту.
Минимальная длина стрелы:
l=
(3.12)
Минимальный вылет:
L=
(3.13)
L
Учет угла поворота не требуется, т.к. с одной стоянки монтируются площадки только по одному подъезду. Минимальные параметры являются требуемыми.
3) Требуемые вылет и грузоподъемность устанавливается в зависимости от условий подачи тяжелого элемента. Этим элементом является паллет рулонных кровельных материалов.
где Gпал – вес паллета рулонных кровельных материалов. Остальной расчет аналогичен п.п.2.
(3.14)
(3.15)
(3.16)
(3.17)
Минимальная длина стрелы:
l=
(3.18)
Минимальный вылет:
L=
(3.19)
L
Таким образом, требуемые грузоподъемность, высота подъема, вылет стрелы и длина стрелы для каждого расчетного случая:
1,66 т.,
15,34 м., Lтр2= 20,13 м., Lтр.ст2= 28,94 м.;
1,26 т.,
18,2 м., Lтр3= 22,03 м., Lтр.ст3= 31,13 м.
По требуемым параметрам подбираются три крана эквивалентной грузоподъемности с целью сокращения продолжительности производства работ.
Примнимается кран Komatsu LW250-5 со стрелой 32 м.
Подача рулонных кровельных материалов осуществляется одним краном.
Грузовысотные характеристики крана приведены на листе №8, 11.
Как видно из грузовысотных характеристик, параметры крана удовлетворяют требованиям по подаче грузов максимальной массы и на максимальный вылет.
3.2.2.2 Привязка стоянок крана
Установку стрелового крана у здания производят исходя из необходимости соблюдения безопасного расстояния между зданием и краном.
Расстояние от оси крана до оси строящегося здания определяется по формуле
S =
, (3.20)
где а – расстояние от оси здания до его наружной грани (выступающей части), м.; n – габарит приближения, м.; Rп – наибольший радиус поворотной части крана (согласно технической документации г/п механизма)
- задний габарит.
S =
Проверка привязки крана по минимальному вылету.
Lmin для крана Komatsu LW250-5 со стрелой, выдвинутой на 32 м. составляет 5,9 м.
Принимается привязка крана на расстоянии 5,9 м. до продольной оси здания.
3.2.2.3 Определение зон влияния крана
На строительном генеральном плане указываются зоны потенциально опасных производственных факторов:
- участки, над которыми происходит перемещение грузов подъемными кранами, эта зона обозначается защитными ограждениями;
- участки, над которыми происходит монтаж конструкций и оборудования, эта зона ограждается сигнальными ограждениями.
Высота надземной части здания составляет 14,8+1,42=16,22 м. (верх парапетного узла, без учета павильона выхода на кровлю), соответственно, высота возможного падения груза определяется интерполяцией по [46, табл.3]. Принимается расстояние отлета груза при перемещении краном – 5,9 м, при падении со здания – 4,5 м.
Согласно [46 п.5.3], границы зон обслуживания стреловых кранов и кранов-манипуляторов определяются максимальным вылетом (Rpаб).
Принимается радиус работы на склад равным максимальному вылету – 29 м. Грузоподъемность на максимальном рабочем вылете составляет 0,55 т.
Зона перемещения груза определяется по формуле
=
+0,5
+
, (3.21)
где
- длина наибольшего перемещаемого груза (арматурная плеть);
- ширина наибольшего перемещаемого груза;
- рабочий радиус крана.
= 29+0,5·11,4= 34,7 м.
Для стреловых кранов, оборудованных устройством для удержания стрелы (ограничитель момента), граница опасной зоны работы крана определяется по формуле
=
+
+0,5
+lбез (3.22)
где lбез – дополнительное расстояние для безопасной работы – возможное рассеивание груза в случае падения из-за раскачивания его на крюке под динамическим воздействием движения крана и силы давления ветра. Определяется по [25, табл. 2.3]
= 34,7+ 5,9 = 40,6 м.
3.2.2.4 Выявление условий работы и введение ограничений в работу кранов
В соответствии с [29], при строительстве объектов с применением грузоподъемных кранов, в случаях, когда в опасные зоны попадают соседние здания и сооружения, в которых находятся люди, транспортные и пешеходные дороги (тротуары), в проекте производства работ должны быть предусмотрены мероприятия по обеспечению безопасности людей.
В связи с наличием возможностью выхода опасной зоны за пределы площадки строительства, возникает необходимость ограничить движения крана.
В этом случае должен быть ограничен угол поворота стрелы крана, уменьшен вылет стрелы.
Стреловые краны для предотвращения их столкновения с препятствиями в стесненных условиях работы оснащаются системой координатной защиты.
Разрабатываются мероприятия по уменьшению опасных зон.
1. Перемещение грузов кранами над территорией строительной площадки производить на высоте 3 метров. Расстояние отлета при этом равно 1,3 м. [46, рис. 15].
Со стоянок по оси В:
= 29+0,5·11,4+1,3= 36 м. (длина хлыста арматуры).
Со стоянок по оси А:
= 29+0,5·2,5+1,3= 31,55 м. (лист опалубочной фанеры, лестничный марш).
2. Рабочий радиус работы кранов на стоянках в направлении от здания уменьшен. На каждой стоянке определен графически с учетом расположения границ стройплощадки и пешеходных зон возле бытовых помещений, зафиксирован угол действия ограничения.
3. Рабочий радиус работы кранов на 1 стоянке в направлении крытого склада уменьшен. Вводится ограничение на рабочий вылет.
4. Участки периметра стройплощадки, граничащие с другими зданиями и попадающие в границы опасных зон, необходимо защитить. На оконные и дверные проемы эксплуатируемых зданий установить защитные ограждения. Со стороны примыкающих зданий установить защитные ограждения из элементов трубчатых лесов на высоту не менее 3 м выше монтажного горизонта. Перемещение груза производить не менее чем на 0,5 м. ниже верха защитного ограждения.
5. При работе вблизи существующих зданий за 7 м от примыкающего здания опустить груз на высоту 0,5 м от встречающихся на пути препятствий при последующем перемещении, успокоить от раскачивания. Дальнейшее перемещение производить на минимальной скорости, груз удерживать от поворота оттяжками.
3.3.3 Проектирование открытой складской площадки
3.3.3.1 Общие положения
Производится размещение приобъектных складов конструкций, деталей, материалов, необходимых для строительства, и других элементов строительного хозяйства.
Вся строительная площадка делится на 3 зоны:
- первая зона – все сборные элементы, поднимаемые краном;
- вторая зона – вне зоны действия монтажного крана, но возможно ближе к ней, располагаются навесы для хранения столярных изделий, сантехнического оборудования и прочих материалов и изделий;
- третья зона – мастерские, закрытые склады.
Открытые склады размещены на строительной площадке в зоне действия монтажного крана с указанием точного места, отведенного под их складирование.
Площадки складирования должны быть с уклоном (2–5°) для водоотвода. На недренирующих грунтах, помимо планировки, делают подсыпку из щебня или песка толщиной 5–10 см, при необходимости производят поверхностное уплотнение.
Предусматривается устройство проходов, проездов. Проходы между штабелями устраиваются шириной не менее 0,7–1,0 м и располагаются через 20–30 м. в поперечном направлении и не реже чем через два штабеля в продольном.
Площадь склада рассчитана в зависимости от вида, способа хранения материалов и его количества.
Максимальная суточная потребность в материальных ресурсах каждого вида определяется по формуле
, (3.23)
(3.2)
(3.4)
(3.5)
(3.6)
(3.7)
(3.8)
где Hтр- расстояние от уровня стоянки крана до отметки подачи ресурса; Hг/зп- длина грузозахватного приспособления от крюка крана до нижней точки груза; Hопор- расстояние от уровня стоянки крана до опорных точек конструкции (либо до участка здания по высоте, через который необходимо перенести груз); Hл/п- высота лестничной площадки в монтажном положении.
(3.9)
(3.10)
(3.11)
(3.14)
(3.15)
(3.16)
1,66 т.,
15,34 м., Lтр2= 20,13 м., Lтр.ст2= 28,94 м.;
1,26 т.,
18,2 м., Lтр3= 22,03 м., Lтр.ст3= 31,13 м.
, (3.20)
- задний габарит.
=
+0,5
+
, (3.21)
- длина наибольшего перемещаемого груза (арматурная плеть);
=
+0,5
= 29+0,5·11,4+1,3= 36 м. (длина хлыста арматуры).














