Пояснительная записка_1 - копия (1219945), страница 3
Текст из файла (страница 3)
На нижнем поясе двутавра имеются восемь отверстий диаметром 18 мм для крепления кронштейнов. Между кронштейнами натягивается трос для подвески кабеля.
Известен также конструкторский проект перегружателя рельсов для снятия освобожденных в процессе сборки собираемого звена и разборки ремонтируемого звена рельсов и укладки их на рельсовую тележку сплотки рельсовых тележек либо на склад.
Этот проект перегружателя рельсов (рисунок 1.9 и 1.10) представляет собой устройство портальной конструкции, объемлющее тележку-спутник на пути своего перемещения и рельсовую тележку на своем пути перемещения. Перегружатель рельсов включает в себя два портала, стационарно монтируемые к путям перемещения тележек-спутников и рельсовых тележек. Каждый портал включает в себя две боковины и ездовую раму, состоящую из двух балок. Каждая боковина портала при монтаже опирается на две балки, к которым и крепится. Балки в свою очередь прикрепляются к рельсам пути перемещения тележек-спутников и пути перемещения рельсовых тележек.
Ездовая рама каждого портала оборудована ходовой тележкой, представляющей собой четырехколесный экипаж с двумя приводными и двумя опорными двухребордчатыми колесами для перемещения последних по двум параллельным балкам ездовой рамы (рисунок 1.11).
К тележке посредством трособлочной системы с приводом от силового гидроцилиндра присоединена траверса с гасителем колебаний в виде двух пар рычагов, каждая пара которых шарнирно соединена между собой. Один рычаг каждой пары шарнирно соединен с тележкой, а второй - с траверсой. Шарнирное соединение рычагов выполнено со значительной поверхностью их соприкосновения, что совместно со значительной жесткостью рычагов обеспечивает гашение колебаний траверсы относительно тележки при трогании ее с места, остановке или при иных воздействиях поперечных сил на траверсу. Кроме того, рычаги гасителя поперечных колебаний фиксируют положение траверсы относительно тележки
Траверса оборудована рельсовым захватом в виде двух захватных рычагов, приводимых силовым цилиндром (рисунок 1.12). Захватный крюк каждого захватного рычага поворачивается на 90°, занимая положение, перпендикулярное продольной оси рельса при его захвате и параллельное оси рельса при его освобождении, что позволяет захватывать рельс за его головку и освобождать ее при наличии рядом расположенного другого рельса и, таким образом, беспрепятственно укладывать рельсы рядами на рельсовую тележку.
Тяговый канат трособлочной системы одним своим концом присоединен к траверсе, переброшен через установленный на ходовой тележке блок, затем через блок, смонтированный на штоке жестко смонтированного на тележке силового гидроцилиндра, а вторым своим концом закреплен на тележке. Такое выполнение трособлочной системы позволяет при определенном ходе штока гидроцилиндра получить в два раза больший ход траверсы. Натяжка каната осуществляется массой траверсы с массой рельса.
Механизм перемещения ходовой тележки представляет собой соосно соединенные с валами двух его ходовых колес выходные валы редуктора, быстроходный вал которого соосно сочленен с валом гидромотора.
Для привода гидродвигателей - гидромотора и силовых гидроцилиндров - на тележке смонтирована насосная установка, электродвигатель которой является единственным энергетическим источником для привода всех механизмов перегружателя рельсов.
При дистанционном управлении с рабочего места машиниста перегружателя рельсов рельсы по одному снимаются с тележки спутника и укладываются рядами в два яруса на рельсовую тележку, управление работой порталов при этом производится совместно и раздельно, что позволяет широко использовать все возможности при возникновении разнообразных ситуаций при выполнении этой работы. Гаситель
колебаний гасит колебания каждой траверсы при поперечном перемещении рельса и не препятствует раздельной работе порталов при подъеме-опускании их траверс.
1.3. Постановка цели проекта
Как показывает обзор, конструкции перегружателей рельсов известны и использовались, как в существующих конструкциях звеносборочных и звеноразборочных линий (ЗЛХ-500, ЗЛХ-800 и ЗРР-75), так и в вновь проектируемых (ЗСЛ-150).
Однако все рассмотренные выше конструкции устройств предназначены или для подачи и установки рельсов на различного рода рельсовые рольганги для их (рельсов) последующей передачи в сборочные участки, или предназначены просто для перегрузки без каких либо условий точности опускания.
Разрабатываемое в данном дипломном проекте устройство установки рельсов для линии ПЗЛ должно не только обладать функцией установки рельсов при сборке звеньев, но и, что самое главное, функцией плавной установки с низкой посадочной скоростью.
Такая операция (установка рельсов на собираемое звено) появилась с вводом в эксплуатацию линий ЦТЛ и ПЗЛ, где рельсы устанавливались кранами пролетного типа. Однако приблизительный анализ экономической эффективности замены кранов перегружателями показывает преимущество последних по сравнению с кранами.
Кроме того, появились новые типы скреплений (ЖБР и ЖБРШ) которые в отличие от скрепления типа КБ требуют более точной установки рельсов. И последний момент. Устройство сможет обеспечить синхронизацию подъема-опускания рельсов, в отличие от кранов, где синхронизация обеспечивалась только лишь умением машинистов кранов.
2. ОПИСАНИ КОНСТРУКЦИИ ПЕРЕГРУЖАТЕЛЯ РЕЛЬСОВ
Как известно любой звеносборочный, звеноразборочный или звеноремонтный комплекс состоит из звеносборочной, звеноразборочной или звеноремонтной линии и кранового оборудования. Крановой оборудование представлено кранами пролетного типа – козловыми или мостовыми – в зависимости от расположения линии.
Основными показателями, определяющими условия выбора и использования кранов на базах‚ являются: масса и габаритные размеры грузов; требования к их размещению и складированию; обеспечение минимального простоя подвижного состава под грузовыми операциями в условиях неравномерного поступления материалов и ограниченных размерах грузового фронта; тип звеносборочных и звеноразборочных поточных линий; тип производственной базы ПМС и объемы работ.
Количество кранов‚ необходимых для выполнения годового объема работ‚ определяется в соответствии с действующими нормами времени и в зависимости от планируемой грузопереработки.
В последнее время в современных проектах линий наметились тенденции замены кранов на узкоспециализированных операциях на специализированные подъемно-транспортные устройства. Одной из таких операций является операция снятия и установки рельсов. Применение специализированных устройств дает возможность улучшить качество производимых работ с минимальными показателями энерго- и металлоемкости и освободить краны для производства работ на других технологических позициях, что, в общем, обеспечивает повышение эффективности всего производственного процесса.
2.1. Назначение и принцип работы рольганга подачи рельсов
Рольганг подачи рельсов (рисунок 2.1) предназначен для подачи рельсов с оперативного склада в зону действия рельсоустановщика.
Рисунок 2.1. рольганг подачи рельсов
Рольганг подачи рельсов состоит из роликовых аппарелей в количестве 15 штук, 15 роликовых аппарелей , которые являются зеркальным отражением аппарелей , а также двух гидравлических аппарелей, на которых имеется каретка с рычагами , зажим захватов каретки осуществляется гидроцилиндром , а перемещение гидроцилиндром.
Работа рольганга осуществляется следующим образом.
Рельсы со склада рельсов подаются на рольганг подачи рельсов двумя козловыми кранами, затем со скоростью 0,2 м/с рельсы перемещаются по аппарелям рольганга в зону действия рельсоустановщика. Точная установка рельсов относительно сцепа платформ осуществляется гидроприводом гидроаппарелей . С помощью конечного выключетеля происходит остановка рельса в зоне действия каретки , затем шток гидроцилиндра выдвигается и происходит зажим рельса рычагами , далее выдвигается шток гидроцилиндра и перемещает каретку на требуемое расстояние. Контроль крайних положений штоков гидроцилиндров осуществляется также с помощью конечных выключателей. После установки рельса на необходимое расстояние происходит разжим захватов гидроцилиндра и далее возврат каретки гидроцилиндром в исходное положение.
2.2. Назначение и принцип работы рельсоустановщика
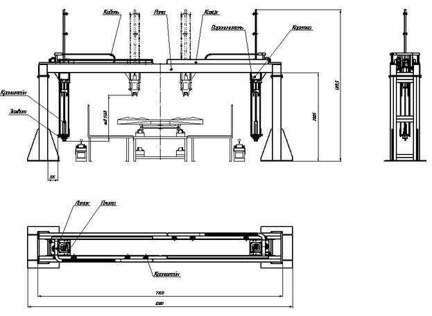
Рельсоустановщик (рисунок 2.2) предназначен для установки рельсов с рольганга подачи рельсов на собираемое звено.
Рельсоустановщик (см. рисунок 2.2) состоит из двух балок , которые опираются на четыре стойки , которые также связаны по верхнему поясу рамками . Каретки перемещаются по балкам с помощью привода перемещения.
Работа рельсоустановщика начинается с момента образования сцепа.
На исходной позиции первая платформа со шпалами находится под бункером. Рельсы в этот момент находятся на исходной позиции готовые к подъему. Как только предыдущее звено освободит данную позицию, монтеры пути отправляют платформу со шпалами на скорости перемещения V=0,31 м/с. Конечным выключателем платформ останавливается за 0,5 м до
позиции совмещения платформы с рельсом. При этом скорость перемещения понижается частотным преобразователем до V=0,06 м/с. Понижение скорости необходимо для того, чтобы избежать сдвижки шпал на платформе.
В момент остановки первой платформы включается механизм подъема рельсов и следом за ним механизм перемещения.
В проекте для вновь разрабатываемой звеносборочной и звеноремонтной линий необходимо спроектировать устройство для перегрузки рельсов – перегружатель рельсов.
Перегружатель рельсов должен быть предназначен для снятия освобожденных в процессе сборки собираемого звена и разборки ремонтируемого звена рельсов и укладки их на рельсовую тележку сплотки рельсовых тележек либо на склад.
Перегружатель рельсов (рисунок 2.2) представляет собой устройство портальной конструкции, объемлющее тележку-спутник на пути своего перемещения и рельсовую тележку на своем пути перемещения. Перегружатель рельсов включает в себя два портала, стационарно монтируемые к путям перемещения тележек-спутников и рельсовых тележек. Каждый портал включает в себя две боковины и ездовую раму, состоящую из двух балок. Каждая боковина портала при монтаже опирается на две балки, к которым и крепится. Балки в свою очередь прикрепляются к рельсам пути перемещения тележек-спутников и пути перемещения рельсовых тележек.
Рисунок 2.2. Перегружатель рельсов.
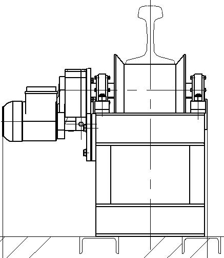
Траверса оборудована рельсовым захватом в виде двух захватных рычагов, приводимых силовым цилиндром (рисунок 2.3). Захватный крюк каждого захватного рычага поворачивается на 90, занимая положение, перпендикулярное продольной оси рельса при его захвате и параллельное оси рельса при его освобождении, что позволяет захватывать рельс за его головку и освобождать ее при наличии рядом расположенного другого рельса и, таким образом, беспрепятственно укладывать рельсы рядами на рельсовую тележку.
Рисунок 2.3. Рельсовый захват.
Механизм перемещения ходовой тележки представляет собой соосно соединенные с валами двух его ходовых колес выходные валы редуктора.
При дистанционном управлении с рабочего места машиниста перегружателя рельсов рельсы по одному снимаются с тележки спутника и укладываются рядами в два яруса на рельсовую тележку, управление работой порталов при этом производится совместно и раздельно, что позволяет широко использовать все возможности при возникновении разнообразных ситуаций при выполнении этой работы. Гаситель колебаний гасит колебания каждой траверсы при поперечном перемещении рельса и не препятствует раздельной работе порталов при подъеме-опускании их траверс.
3. РАСЧЕТЫ ТЕХНИЧЕСКИХ ПАРАМЕТРОВ УСТРОЙСТВА
3.1. Производительность линии
Заданная производительность звеносборочной линии не менее 100 погонных метров в час. Определим время цикла на обработку одной шпалы, исходя из заданной производительности.
Цикловое время сборки звена определяется из выражения















