проект на тему заправочно-нейтрализационная станция в г.Углегорске Амурской области (1219578), страница 6
Текст из файла (страница 6)
Принимаем толщину утеплителя 140 мм –для кровли.
Следовательно, поэлементное требование по теплопередачи ограждающей конструкции кровли выполняется.
1.5.11 Лестницы
Лестницы выполняются по металлическим косоурам с монолитными ступенями и площадками.
1.6 Требования к земельному участку
Территорию для развития поселений необходимо выбирать с учетом возможности ее рационального функционального использования на основе сравнения вариантов архитектурно-планировочных решений, технико-экономических, санитарно-гигиенических показателей, топливно-энергетических, водных, территориальных ресурсов, состояния окружающей среды, с учетом прогноза изменения на перспективу природных и других условий. При этом необходимо учитывать предельно допустимые нагрузки на окружающую природную среду на основе определения ее потенциальных возможностей, режима рационального использования территориальных и природных ресурсов с целью обеспечения наиболее благоприятных условий жизни населению, недопущения разрушения естественных экологических систем и необратимых изменений в окружающей природной среде.
С учетом преимущественного функционального использования территория города подразделяется на селитебную, производственную и ландшафтно-рекреационную. Селитебная территория предназначена: для размещения жилищного фонда, общественных зданий и сооружений, промышленных объектов, не требующих устройства санитарно-защитных зон.
Участок, отведенный под строительство расположен в пределах производственного фонда Амурской области.
Выбор место строительства обусловлен следующими факторами, один из главных – трассы запусков проходят над водой и малонаселенными районами дальнего востока; близость дорожной инфраструктуры(БАМ, трасса Чита-Хабаровск); относительно рядом морские порты, большой запас электроэнергии, производимой в регионе; наличие значительной инфраструктуры, оставшиеся после расформирования войсковых частей.
1.7 Генплан участка застройки
Проектируемое здание заправочно-нейтрализационной станции расположено в городе Углегорск Амурской области.
При разработке генплана, с учетом требований, была определена площадь застройки здания и земельного участка, согласно с его назначением и объемно-планировочным решением.
Основные технико-экономические показатели по генплану приведены в таблице 1.10.
Таблица 1.10
Основные технико-экономические показатели по генплану
| Наименование | Ед. изм. | Кол-во |
| Площадь участка в границах благоустройства | м2 | 32864,0 |
| Площадь территории земельного участка | м2 | 23004,9 |
| Площадь застройки здания | м2 | 10106,1 |
| Площадь покрытий | м2 | 4500,3 |
| Площадь озеленения | м2 | 8398,5 |
2 Расчётно-конструктивный раздел
2.1 Конструктивная схема здания
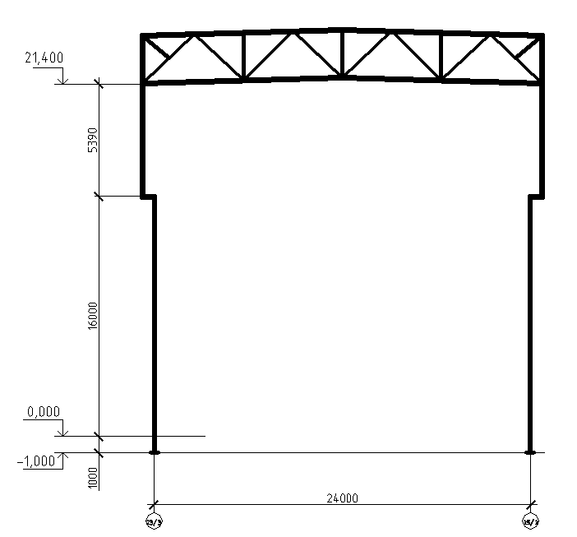
Здание в осях 25/2-23/3 и Я/12-Я - однопролетное производственное, пролетом 24,0 м, длиной 72,0 м, шаг колонн 12м. Несущим каркасом здания являются поперечные рамы, состоящие из колонн и ферм. Шаг поперечных рам составляет 12,0 м. В здании на отм. +17,500 устанавливаются два мостовых крана грузоподъемностью 32/5 т.
Несущей основой каркаса, обеспечивающей жесткость корпуса в поперечном направлении, являются поперечные рамы с колонами, защемленными в фундаментах и с жестким сопряжением стропильных ферм с колоннами. Продольная устойчивость корпуса обеспечивается вертикальными связями по колоннам. По нижним поясам стропильных ферм расположены горизонтальные продольные и поперечные связи.
Колонны каркаса подкрановые – двухветвевые, сварного двутаврового решетчатого. Колоны каркаса надкрановые – сплошностенчатого двутаврового сварного сечения. Торцы отправочных марок колонн – фрезеровать. Монтажные стыки колонн выполняются на высокопрочных болтах.
Стропильные фермы, пролетом 24,0 м, запроектированы: пояса из сварных тавров, раскосы и стойки из парных уголков.
Монтажные стыки поясов выполняются на высокопрочных болтах.
Элементы горизонтальных связей по кровле, вертикальных связей по колоннам выполнены из фасонного проката, гнутосварных профелей квадратного и прямоугольного сечения.
Наружные ограждающие конструкции стен - трехслойные панели заводской готовности типа «Сэндвич» с наружным защитным полимерным покрытием, утепленные негорючими минераловатными плитами из минеральной тонковолокнистой ваты на основе базальтового волокна на синтетическом связующем, объемным весом Y=120 кг/м3, теплопроводностью не более 0,041 Вт/м°С.
Рисунок 3.1 Расчетная схема рамы
Основные исходные данные для проектирования:
Место строительства………………………….………………...г.Углегорск
Расчетная снеговая нагрузка(II район)……………..….……………1,2 кПа
Нормативная ветровая нагрузка(II район)…….……..…….………0,3 кПа
Сейсмичность площадки……………………..……………..............7 баллов
Класс ответственности здания………………….…………….…….I(γn=1,2)
Металлоконструкции покрытия, колонны, связи по колоннам выполняются из стали С345-3, прогоны, связи по покрытию из стали С245.
Действительная и расчетная схема поперечной рамы приведены на рисунка 2.3,2.4.
Рисунок 2.2 Действительная схема поперечной рамы
2.2 Сбор нагрузки на раму для расчета на основное сочетание
Сбор постоянных и технологических нагрузок на раму, приведен в таблице 2.1. Расчетная схема рамы для сбора постоянных и технологических нагрузок приведена на рисунке 2.1.
Таблица 2.1
Нагрузки на 1 м2 покрытия
| Наименование нагрузок. | Нормативная нагрузка, кН/м2 | Коэффициент надёжности по нагрузки. | Расчётная нагрузка, кН/м2 |
| Постоянная: | |||
| 1.Слой щебня
| 1,92 | 1,3 | 2,5 |
| 2. Гидро- и пароизоляция | 0.1 | 1,3 | 0,13 |
| 3.Утеплитель
| 0,3 | 1,3 | 0,4 |
| 4. Разуклонка из цементно-песчанного раствора
| 1,72 | 1,3 | 2,24 |
| 5. Монолитная железобетонная плита | 2,0 | 1,3 | 2,6 |
| 6. Профлист | 0,125 | 1,05 | 0,15 |
| 7.Собственный вес металлоконструкци фермы, горизонтальных связей, прогонов | 1,5 | 1,05 | 1,8 |
| 8.Собственный вес металлоконструкций площадки для светильников | 4,1 | 1,05 | 4,3 |
| ИТОГО: | 11,77 | 14,10 | |
| Технологическая: | |||
| 1.Технологическая нагрузка от воздуховодов, подвесного потолка, светильников | 2,55 | 1,3 | 3,32 |
| 2.Технологическая нагрузка от оборудования установленного на кровле | 2,0 | 1,3 | 2,6 |
| ИТОГО: | 4,55 | - | 5,92 |
| ИТОГО: (постоянная и технологическая) | 16,32 | - | 20,02 |
| Временная:
| 0,84 0,30 | 1,4 1,4 | 1,2 0,42 |
| ИТОГО: (постоянная, технологическая, снеговая) | 17,16 | - | 21,22 |
Сбор постоянной нагрузки на стропильную ферму. Расчетная узловая постоянная и технологическая нагрузка определяется по формуле :
qп*= qпbаγn, (2.1)
где qп - расчетная постоянная нагрузка, кН/м2;
а - размер панели фермы, м;
b - шаг ферм, м;
γn - коэффициент надежности по ответственности здания.
Расчетная узловая постоянная и технологическая нагрузка составляет:
P1=20,0212,03,01,2=864,86 кН
P2=20,0212,01,51,2=432,43 кН
Рисунок 2.3 Схема приложения постоянной нагрузки
Сбор снеговой нагрузки. Нормативное значение снеговой нагрузки на горизонтальную проекцию покрытия определяется по формуле:
где
коэффициент, учитывающий снос снега с покрытия здания под действием ветра или иных факторов;
термический коэффициент;
коэффициент перехода от веса снегового покрова земли к снеговой нагрузки на 1 м2 проекции кровли;
вес снегового покрова на 1 м2 горизонтальной поверхности земли.
Коэффициент сноса снега принимается для пологих (с уклоном до 12%) покрытий, проектируемых в районах со средней скоростью ветра за три наиболее холодных месяца
определяется по формуле:
где
- коэффициент учитывающий изменение ветрового давления для высоты здания
для типа местности Б;















