проект на тему заправочно-нейтрализационная станция в г.Углегорске Амурской области (1219578), страница 2
Текст из файла (страница 2)
5.2 Охрана окружающей среды при хранении и использовании ГСМ..146
5.2.1 Требования по охране окружающей природной среды…………..147
6. Гражданская оборона………………………….……………………………..149
Заключение………………………………………………………………….155
Список используемых источников………………………………………..156
Приложение А………………………………………………………………161
Введение
Строительство объекта космодрома «Восточный» создан в соответствии с Указом президента Российской Федерации от 6 ноября 2007 г. Его создание соответствует национальным приоритетам и стратегическим целям.
Учитывая приоритетность задач закрепления и расширения глобальных конкурентных преимуществ Российской Федерации в традиционных сферах деятельности и обеспечения независимой космической политики Российской Федерации, создание нового космодрома особенно актуально.
Основой космической деятельности являются национальные космические средства. Государственные потребности должны обеспечиваться путем создания и развития именно российских космических средств, а не удовлетворятся приобретением услуг на мировом рынке. Таким образом, целесообразность создания на территории России нового космодрома определяется следующими принципами:
-гарантированное проведение независимой космической деятельности и приоритетных космических задач национальной безопасности со своей территории;
- возможность запуска космических аппаратов по всему спектру задач, востребованных на мировом рынке;
-реализация амбициозных космических проектов изучения и освоения ближнего и дальнего космоса;
-кадровый потенциал для высокотехнологических областей промышленности;
-инвестиционная привлекательность, развитие и укрепление Дальневосточного региона.
Создание нового отечественного космодрома, является проектом федерального масштаба, тесно связано с планами социально экономического развития Амурской области и всего Дальневосточного региона. Заложенный в Стратегии социально-экономического развития Дальнего Востока и Байкальского региона на период до 2025 года базовый сценарий развития региона включает создание на базе космодрома «Восточный» комплекса высоких космических технологий, приборостроения и электроники, позволяющего обеспечить формирование и развитие Дальневосточного национального космического центра, который в свою очередь ориентирован на интеграцию космической деятельности с промышленностью, наукой и образованием России, обеспечит интенсивное развитие и укрепление социально-экономического положения востока страны.
Дипломный проект включает в себя следующие разделы:
1. архитектурно-строительный
2. расчётно-конструктивный
3. организационно-технологический
4. экономика строительства
5. безопасность жизнедеятельности
Пояснительная записка содержит 160 листов текста, 27 таблиц и 53 рисунка.
По результатам расчетов и принятым в пояснительной записке решениям разработана графическая часть проекта, которая представлена двенадцатью форматами А1.
Первый раздел «Архитектурно-строительный» состоит из подраздела эскизного проектирования, описания объемно-планировочного решения, конструктивного остова здания, основные несущие и ограждающие конструкций.К разделу относятся чертежа, три чертежа марки АР и один марки ГП – генеральный план.
В расчётно-конструктивный раздел проекта входит расчет и проектирование металлического каркаса здания. К разделу относятся шесть чертежей марки КМ.
В организационно-технологический раздел входит разработка технологической карты на монтаж металлических колонн. К разделу относятся 2 чертежа марки ТК.
«Безопасность жизнедеятельности» рассмотрены вопросы организации безопасного производства работ при хранении и использовании горюче-смазочных материалов.
В разделе «Гражданская оборона» разработаны мероприятия по защите на-
селения от оружия массового поражения.
Ведомость комплекта чертежей
| Лист | Наименование | Примечание |
| ГП–1 | Генплан | А1 |
| АР – 2 | Фасады Я-Я/12, Я/12-Я, 26/2-21/1. | А1 |
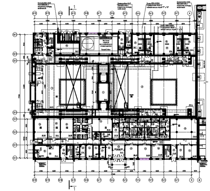
| АР – 3 | План на отметке 0,000. | А1 |
| АР – 4 | Разрезы 1-1. | А1 |
| КМ – 5 | План расположения колонн на отметке 0,000. Разрез 1-1. | А1 |
| КМ – 6 | Схема прогонов покрытия ,конструкций покрытия по верхним поясам. Узлы 1,2 Спецификация. | А1 |
| КМ – 7 | Схема расположения конструкций покрытия по нижним поясам. Разрезы 1-1, 2-2. Узлы 1,2. | А1 |
| КМ – 8 | Ферма стропильная ФС1. | А1 |
| КМ – 9 | Колонна К1. Узлы 2,4,5. | А1 |
| КМ – 10 | Колонна К1. Узел 3. | А1 |
| ТХ – 11 | Схема производства работ. Материально-технические ресурсы. Разрез 1-1. | А1 |
| ТХ – 12 | Указания по производству работ и техники безопасности. Операционный контроль. Узлы ТЭП. | А1 |
ПАСПОРТ ПРОЕКТА
Заправочно-нейтрализационная станция
в городе Углегорске Амурской области
Класс капитальности здания – I,
степень огнестойкости – II,
степень долговечности – I,
класс функциональной пожарной опасности – Ф5.1.
Расчетная температура наружного воздуха – (минус)39 °С.
Вес снегового покрова – 120 кг/м2.
Климатический район и подрайон строительства – IВ.
Фасад 26/2-21/1
Фасад Я/12-Я
План на отм. 0,000
Разрез 1-1
1 Архитектурно-строительный раздел
1.1 Технико-экономическая характеристика района строительства
Поселок Углегорск Амурской области основан в 1961 году. Статус рабочего поселка закрытого типа был присвоен от 19.10.1965 г. С 1969 по 1994 годы Углегорск имел название «Свободный-18». В 2001 году поселок Углегорск переименовали в ЗАТО Углегорск. В результате административной реформы был образован городской округ Углегорск.
Поселок Углегорск расположен на реке Большая Петра, притоке Зеи, в 180 километрах севернее Благовещенска, в 110 километрах от границы с Китаем. В 45 километрах южнее поселка расположен город Свободный, в 35 километрах северо-западнее – город Шимановск. Железнодорожная станция Ледяная на Транссибе расположена в 5 километрах от поселка. Федеральная автомобильная дорога «Амур» проходит поблизости от поселка.
Космодром «Восточный», так же как и будущий город Циолковский, строятся в непосредственной близости от Углегорска, который стал базовой площадкой для строительства космодрома и размещения первых строителей. Расстояние между КПП ЗАТО и станцией отправления мотовозов на космодром-всего 400 метров, а расстояние до первых технических площадок – не более 15 километров. Перспективная площадь космодрома «Восточный» около 1035 квадратных километров. Протяженность с юго-запада на северо восток: 18 километров, а с юго-востока на северо-запад. На данный момент выделено под строительные площадки 100 км2. Схема строительства площадок, расположения Углегорска, расположения железнодорожных и автомобильных путей на площадки космодрома напоминают Байконур, но только в более современном исполнении.
Выбор место строительства обусловлен следующими факторами, один из главных – трассы запусков проходят над водой и малонаселенными районами дальнего востока; близость дорожной инфраструктуры(БАМ, трасса Чита-Хабаровск); относительно рядом морские порты, большой запас электроэнергии, производимой в регионе; наличие значительной инфраструктуры, оставшиеся после расформирования войсковых частей.
Амурская область является одним из самых оптимальных мест для вывода спутников на солнечно-синхронную орбиту. Находясь на этой орбите, спутник ведет наблюдения, имея постоянный уровень и угол освещения поверхности Земли солнцем, что очень удобно для геодезии и картографии, а так же многих других народнохозяйственных и военных целей.
В будущем городе Циолковский, который по сути, поглотит Углегорск, планируется проживание 18000 человек, которые будут жить в 40 домах, водить детей 4 садика и 2 школы. Здесь сразу строится в комплексе с жилыим домами спортивные комплексы, торговые центры, кафе, рестораны и автостоянки.
1.2 Природно-климатические условия района строительства
Климатические характеристики района строительства, используемые для технических расчетов, приведены в таблице 1.1.
Таблица 1.1
Климатические условия района строительства
| Наименование характеристики | Характеристика | Источник |
| Место строительства | г.Углегорск | По заданию |
| Климатический район и подрайон | I В | [1, прил. А, рис. А.1] |
| Зона влажности района | нормальная | [2, прил.В] |
| Расчетная зимняя температура наружного воздуха: средняя температура наиболее холодной пятидневки обеспеченностью 0,92 | -39 0С | [1, табл. 3.1] |
| Средняя температура периода со средней суточной температурой воздуха ниже или равной 8°С | -12,4 | [1, табл. 3.1] |
| Продолжительность периода со среднесуточной температурой воздуха меньше 8°С, сут. | 229 | [1, табл. 3.1] |
| Средняя температура периода со средней суточной температурой воздуха ниже или равной 10°С | -11,3 | [1, табл. 3.1] |
| Продолжительность периода со среднесуточными температурами воздуха ниже 10ºС | 242 | [1, табл. 3.1] |
Продолжение таблицы 1.1
| Наименование характеристики | Характеристика | Источник | |
| Повторяемость ветра, %; средняя скорость ветра, м/с в январе по направлению румбов | С | 11/4,8 | [10, прил. 4] |
| СВ | 4/5,3 | ||
| В | 1/5,6 | ||
| ЮВ | 2/4,4 | ||
| Ю | 4/2,6 | ||
| ЮЗ | 2/2,2 | ||
| З | 2/2,8 | ||
| СЗ | 43/3,7 | ||
| Снеговой район, вес снегового покрова, кПа (кг/м2) | 1,2 (120) | [9, п. 10.2, табл.10.1, прил. Ж, карта 1] | |
| Нормативное ветровое давление, кПа (кг/м2) | 0,30( 30) | [9, п. 11.1.4, табл. 11.1, прилЖ, карта 3] | |
| Сейсмичность района по шкале MSK-64, баллы | 7 | [14, прил. Б] | |
| Средняя температура наружного воздуха по месяцам; упругость водяных паров наружного воздуха, гПа, по месяцам | январь | -27,7/0,6 | [1, табл.5.1, табл. 7.1] |
| февраль | -21,6/0,9 | ||
| март | -12,1/2,1 | ||
| апрель | 1,0/4,5 | ||
| май | 9,6/7,9 | ||
| июнь | 16,6/14,5 | ||
| июль | 20,2/19,7 | ||
| август | 17,7/17,6 | ||
| сентябрь | 10,610,8 | ||
| октябрь | 0,0/4,9 | ||
| ноябрь | -14,9/2,0 | ||
| декабрь | -25,4/0,8 | ||
Многолетние данные о ветровом режиме местности изображают графически в виде розы ветров, которая строится по средним скоростям и повторяемости ветра по румбам, на рисунке 1.1.
Рисунок 1.1 - Роза ветров для п.Углегорск
1 - средняя скорость ветра, м/с; 2 - Повторяемость ветра по румбам, %
1.3 Требования, предъявляемые к зданию















