проект на тему заправочно-нейтрализационная станция в г.Углегорске Амурской области (1219578), страница 4
Текст из файла (страница 4)
1.4. Объемно-планировочные решения здания
1.4.1 Общая характеристика здания
Здание заправочно-нейтрализационной станции состоит из трех блоков. Блоки здания разделены антисейсмическими швами. Расстояние в осях между блоками -3,1 метра.
Блок административно-бытовой, в осях 23/1-21-1 и Я/12-Я, двухэтажный, без подвала, размером в плане 18,0 х 72,9 метров. Высота этажа 4,5 метров.
Блок в осях 25/3-26/2 и Я/12-Я – трехэтажный(производственные вспомогательные помещения) с подвалом, размером в плане 9 х 72,9 метров. Высотой этажа 4,5 метров.
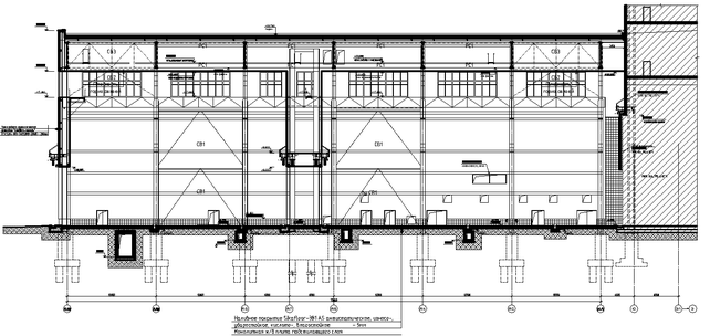
Блок основного производственного процесса(зал подготовки и заправки) в осях 25/2-23/3 и Я/12-Я - одноэтажный металлический цех, размером в плане 24,0 х 72,9 метров (между осями), с навесными трехслойными стеновыми панелями. Отметка низа потолка плюс 21,400 метров. В помещении цеха установлено два мостовых крана, грузоподъемностью 32/5 тонны согласно [18], взаимное сближение двух кранов исключено, сближению препятствует обдувочный шлюз в осях Я/6-Я/7 расположенный внутри заправочно-нейтрализационной станции. Помещение обдувочного шлюза опирается на свои опоры и раскрепляется конструкциями покрытия здания заправочно-нейтрализационнойстанции в уровне нижних поясов стропильных ферм.
Несущий основной металлический каркас заправочно-нейтрализационной станции в поперечном и продольном направлении решен по рамной расчетной схеме с жестким сопряжением стропильных ферм с колоннами, а также защемлением в фундаменте.
В межферменном пространстве располагаются воздуховоды и четыре «нитки» площадок для установки и обслуживания светильников. Воздуховоды подвешиваются через промежуточные балки к прогонам кровли.
Под стропильными фермами в зале заправки располагается подвесной потолок со стальным каркасом, который крепится к нижнему поясу ферм.
1.4.2 Конструктивная система здания
Несущий основной каркас цеха, обеспечивающий жесткость корпуса в поперечном и продольном направлении, являются поперечные рамы с колоннами, защемленные в фундаменте и с жестким сопряжением стропильных ферм с колоннами. Продольная устойчивость корпуса обеспечивается вертикальными связями по колоннам. Подкрановые балки приняты неразрезными. Совместно с неразрезными тормозными площадками, горизонтальными связями по нижним поясам балок и вертикальными фермами образован жесткий «неразрезной» подкрановый блок.
По нижним поясам стропильных ферм расположены горизонтальные продольные и поперечные связи. Принятые в выпускной работе расчетные схемы обеспечивают повышенную жесткость корпуса при работе его на горизонтальные воздействия(ветровые, сейсмические и крановые), обеспечивают надежность и долговечность конструкций металлического каркаса.
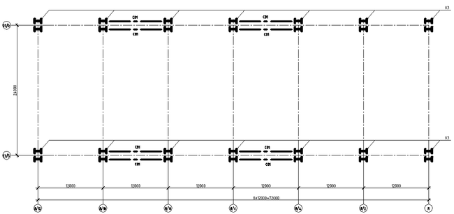
Рисунок 1.3 – План несущих элементов каркаса
Колонны каркаса – сварные решетчатого и сплошного сечения. Торцы отправочных марок фрезеруются. Монтажные стыки колонн выполняются на высокопрочных болтах(фрикционные соединения).
Стропильные фермы запроектированы: пояса из сварных тавров, раскосы и стойки из парных уголков. Монтажные стыки поясов выполняются на высокопрочных болтах.
Подкрановые балки – неразрезные. Монтажные стыки подкрановых балок на высокопрочных болтах.
Элементы горизонтальных связей по колоннам выполнены из фасонного проката, гнутосварных профилей квадратного и прямоугольного сечения.
Рисунок 1.4 - Разрез несущих элементов каркаса
Общая устойчивость каркаса обеспечивается системой горизонтальных и вертикальных связей, а так же жестким диском перекрытия, которые объединяют все элементы в единый пространственный блок.
1.4.3 Разработка эскизов планов, разрезов, фасадов здания
Разработка архитектурного решения фасада здания - завершающая и очень важная часть эскизного проектирования. Архитектура фасада выявляет художественные и конструктивные достоинства и недостатки здания, определяет его выразительность и цельность архитектурного образа. Поэтому при решении фасадов здания учтены основные положения теории архитектурной композиции:
а) тектоника здания;
б) приёмы и средства архитектурной композиции;
в) принцип единства и соподчинённости.
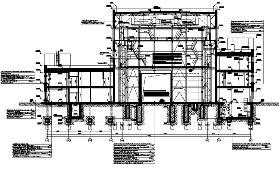
Рисунок 1.5 – Разрез продольный
Разрез здания выполняется на основе решения плана с учётом принятой конструктивной системы. Плоскость разреза должна проходить по наиболее характерным частям здания для полного представления его объёмно-планировочного и конструктивного решения. Как правило, разрез выполняется по лестничной клетке или входу здания. На разрезе должны быть показаны основные несущие и ограждающие конструкции.
В состав основного комплекта рабочих чертежей архитектурных решений включают:
1) план этажа на отм. 0,000;
2) разрезы;
3) фасады.
Рисунок 1.6 - Разрез здания поперечный
Рисунок 1.6 - Фасад в осях 26/1-21/1
1.5 Обоснование конструктивных элементов здания
1.5.1 Фундамент
Фундамент – кустовой, свайный, отдельностоящий под каждую колонну.
Ростверк - монолитная железобетонная плита с подколонником, размером 2,5 х 2, 5 метров.
Бетон по прочности класса В20, по морозостойкости - F75.
Под ростверк выполняется подготовка из бетона класса В3,5.
Отмостка – бетонная, шириной 1,5 метра толщиной от 50 до 200 миллиметров по уплотненному щебнем грунту, с уклоном от здания не менее 10 процентов.
1.5.2 Наружные стены
Наружное ограждение – трехслойные сэндвич-панели, окрашенные в заводских условиях.
Конструкция наружной стены показана на рисунке 1.7.
Рисунок 1.7 - Сечение наружной стены
Материалы и размеры слоев стен, а так же другие характеристики приведены в таблице 1.6.
Таблица 1.6
Характеристики элементов стен
| Наименование материала | Толщина слоя, м | Средний объемный вес, кг/м3 | Коэффициент теплопроводности, Вт/м·°С |
| 1. Стальной лист С18-1000-0.7 по ГОСТ 24045-94 | 0,0007 | 7850 | 58 |
| 2. Минераловатные плиты | Х | 60 | 0,031 |
| 3. Стальной лист С18-1000-0.7 по ГОСТ 24045-94 | 0,0007 | 7850 | 58 |
1.5.3 Теплотехнический расчет наружной стены
Ограждающие конструкции здания по своим теплотехническим качествам должны обеспечивать в помещениях необходимый температурно-влажностный режим и ограничивать теплопотери здания в отопительный период года. Для этого общее сопротивление ограждения теплопередаче R0 должно быть не менее требуемого R0 тр (R0 ≥ R0 тр), определяемого согласно поэлементным и комплексным требованиям.
1. Определение нормы тепловой защиты согласно поэлементным требованиям.
Определяем градусо-сутки отопительного периода по [1]:
, (1.1)
где: tв-расчетная средняя температура внутреннего воздуха, оС;
расчетная температура воздуха внутри здания, ◦С.
zht- продолжительность отопительного периода, сут.
ГСОП = (18,0-(-12,4)∙229 = 6961,6 ºC∙сут.
Нормативное значение приведенного сопротивления теплопередаче следует принимать не менее нормируемых значений, определяемых по [2, табл. 4] в зависимости от градусо-суток района строительства:
Rreq = αDd+b, (1.2)
где Dd - градусо-сутки отопительного периода, °С•сут, для конкретного пункта;
a, b- коэффициенты, значения которых следует принимать по данным таблицы для соответствующих групп зданий.
Требуемое сопротивление теплопередачи составляет:
Rreq= 0,0002∙6961,6+1,0 = 2,39 м2∙ ºС/Вт.
Термическое сопротивление R,
, однородного слоя многослойной ограждающей конструкции определяется по формуле:
(1.4)
где:
толщина слоя, м;
расчетный коэффициент теплопроводности материала слоя,
.
Сопротивление теплопередаче
,
, многослойной ограждающей конструкции с однородными слоями следует определять по формуле:
, (1.5)
где:
коэффициент теплоотдачи внутренней поверхности ограждающих конструкций,
;
термическое сопротивление ограждающей конструкции,
, с последовательно расположенными однородными слоями следует определять как сумму термических сопротивлений отдельных слоев, определяется по формуле:
(1.6)
где:
термическое сопротивление отдельных слоев ограждающей конструкции,
;
термическое сопротивление замкнутой воздушной прослойки.
Требуемая толщина утеплителя (минераловатная плита) определяется по формуле:
(1.7)















