ВКР23.03.02 Диплом (1210453), страница 2
Текст из файла (страница 2)
Рисунок 2
1—ковш для скальных пород с зубьями;
2 — ковш без зубьев с прямолинейной режущей кромкой:
3 — то же, с V-образной режущей кромкой;
4 — скелетный ковш;
5 — грузовые вилы:
6 — бульдозерный отвал:
7 — плужный снегоочиститель;
8 — захват для столбов и свай;
9 — ковш с принудительной разгрузкой;
10 — двух челюстной ковш:
11 — захват для длинномеров;
12 — ковш для распределения бетона;
13 — захват для пакетов;
14 — кран;
15 — экскаватор:
16 — рыхлитель;
17 — роторный снегоочиститель;
18 — кусторез;
19 — корчеватель-собиратель;
20 — асфальтовзламыватель.
Рисунок 3- Ковшовый захват с нижним центром поворота
1 — ковш; 2 — кронштейн; 3 — палец; 4 — гидроцилиндр; 5 — каретка погрузчика; 6 — палец; 7 — кронштейн; 8 — болт; 9 — опорный кронштейн
Ковшовый захват к автопогрузчику состоит из ковша формы трехгранной призмы, размеры которого ограничены тяговым усилием на ведущих колесах погрузчика порожнем. Ковш не имеет специальной рамы и шарнирно крепится на выносных кронштейнах на нижней балке грузовой каретки погрузчика. Поворот ковша, осуществляемый в основном для удержания груза при транспортировании и опрокидывании при разгрузке, производится с помощью гидроцилиндра двустороннего действия, шарнирно связанного с ковшом и кареткой. Зачерпывание независимо от кратности выполнения операции осуществляется за счет глубокого горизонтального внедрения режущей кромки в отвал штабеля ходом погрузчика с последующим зачерпыванием определенной массы груза. Степень заполнения ковша зависит от условий работы погрузчика и свойств груза. Независимо от известных способов зачерпывания, осуществляемых различными приемами работы, процесс работы отрицательно влияет на отдельные узлы, вызывая быстрый износ и выход из строя погрузчика. Это существенный недостаток данных ковшовых захватов.
Раздел II Конструкторская часть.
По исходным и дополнительным данным необходимо произвести расчет вилочного автопогрузчика грузоподъёмностью 2000 кг, высотой подъёма груза 3,0 м и максимальной скоростью передвижения 15км/ч. Необходимо произвести расчёты механизмов грузоподъёмника (механизм подъема груза и механизм наклона грузоподъемника), тяговый расчёт и расчёт погрузчика на устойчивость.
2.1. Выбор аналога машины
Таблица 1- Исходные данные
| Вес поднимаемого груза (кг) | Высота подъема (м) | Угол наклона грузоподъемника вперед (назад) | Максимальная скорость передвижения погрузчика (км/ч) | Коэффициент сопротивления качению | Коэффициент сцепления колес с дорогой | Максимальный угол подъема погрузчика |
| 2000 | 3,0 | 3/9 | 15 | 0,013 | 0,88 | 6 |
Аналог рассчитываемого погрузчика выбирается по параметрам из бланка технического задания таблица 1. Выбранный погрузчик должен удовлетворять следующим требованиям:
1) вторичный привод гидравлический;
2) первичная силовая установка двигатель внутреннего сгорания (ДВС);
3) механическая трансмиссия.
Рабочие параметры:
1) грузоподъемность аналога не должна отличаться от данных задания более чем на 300 кг;
2) грузоподъемник телескопический двухрамный;
3) привод колес на одну ось;
4) число опор 4.
Исходя из этого условия, выбираем вилочный автопогрузчик производитель Komatsu FD20T-17, который отвечает всем требованиям [2].
Таблица 2- Параметры аналога
| Модель | Komatsu FD20T-17 |
| Грузоподъемность | 2000 кг |
| Центр тяжести груза | 500 мм |
| Скорость: | |
| Скорость передвижения с грузом, км/ч | 18,5 |
| Скорость передвижения без груза, км/ч | 19 |
| Скорость подъема с грузом, мм/с | 590 |
| Скорость подъема без груза, мм/с | 630 |
| Скорость опускания с грузом, мм/с | 450 |
| Скорость опускания без груза, мм/с | 500 |
| Вес погрузчика без груза, кг | 3305 |
| Шасси и колеса: | |
| Размер передних шин | 7.00-12-12PR |
| Размер задних шин | 6.00-9-10PR |
| Колесная база, мм | 1650 |
| Колея (передняя/задняя), мм | 965/960 |
| Дорожный просвет, минимальный/по раме | 120/130 |
| Двигатель внутреннего сгорания: | |
| Модель | Komatsu 4D94LE |
| Ном. мощность в КВт | 34,2/2200 |
| Ном. крут, момент / число обор, в мин. | 186/1600 |
| Количество цилиндров | 4 |
| Рабочий объем см3 | 3052 |
| Коробка передач: | |
| Тип | Механическая |
| Ступени, вперед-назад | 3-3 |
| Стандартные размеры: | |
| Общая высота при поднятых вилах (с опорной стенкой) , мм | 4050 |
| Максимальная высота вил, мм | 3000 |
| Высота опорной стенки, мм | 1050 |
| Свободный ход, мм | 150 |
| Размер вил (ВхШхД), мм | 36x122x920 |
| Минимальный клиренс с грунтом | 115 |
| Расстояние нагрузки, мм | 460 |
| Общая ширина, мм | 1150 |
| Внешний радиус поворота, мм | 2190 |
| Угол наклона (вперед-назад) | 6°-12° |
| Рабочее давление для навесного оборудования, МПа | 18,1 |
Рисунок 4 - Схема погрузчика
-
Определение масштабного коэффициента
где: 1650 - колесная база (по аналогу), мм;
53 - размер колесной базы измеренный линейкой с масштабной схемы, мм.
2.3 Расчет грузоподъемника вилочного погрузчика
2.3.1 Расчет механизма подъема груза
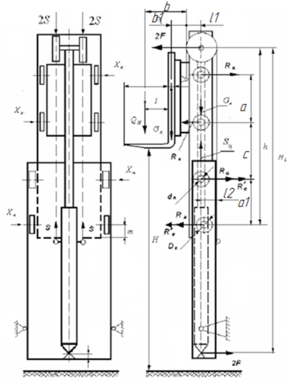
Рисунок 5 - Схема действия сил в механизме подъёма автопогрузчика.
Целью расчета является определение основных параметров гидроцилиндра и подбор требуемого поперечного сечения, грузовых вил. Усилие, действующее на гидроцилиндр, зависит от кинематической схемы грузоподъемника и взаимного расположения его основных узлов.
Таблица 3
Данные для предварительного расчета цилиндров механизма подъема
| Расчетные данные | Грузоподъёмность автопогрузчика | |
| 1,0-2,0 т | ||
| Длинна вил, см | 925 | |
| Расстояния, см | ||
| От передней спинки вил до центра тяжести груза, l | 50 | |
| От центра тяжести груза до центра грузовых цепей, b | 60 | |
| От середины спинки вил до плоскости грузовых цепей, b1 | 8 | |
| От оси цилиндра до плоскости грузовых цепей, l1 | 8,5 | |
| От оси цилиндра до задней плоскости грузовых цепей, l2 | 6,5 | |
| Между верхними и нижними основными катками у каретки по вертикали, а | 40 | |
| Диаметр основных катков, Dk | 10 | |
| Масса каретки с вилами, mk , кг | 150 | |
| Масса выдвижной рамы с плунжером цилиндра и траверсой, отнесенная к 1м высоты грузоподъемника, поднимаемого вместе с грузом, m,кг/м | 60 | |
Данные занесенные в таблицу взяты со схемы аналога, недостающие данные взяты из Методических указаний (Таблица 3.1).
В дальнейшем расчете принимаем обозначение силы в Н, и линейные размеры в м.
Необходимое условие подъема по плунжеру определяется по формуле:
где:
- сопротивление подъему груза и подъемной каретки с вилами;
- сопротивление подъему выдвижной рамы с плунжером, траверсой и грузовыми цепями;
- сопротивление качению основных катков по направляющим;
















