Пояснительная записка (1209920), страница 4
Текст из файла (страница 4)
Метод оценки защищенности помещений от утечки речевой конфиденциальной информации по акустическому каналу заключается в определении коэффициентов звукоизоляции ограждающих конструкций в октавных полосах частот со среднегеометрическими частотами 250, 500, 1000, 2000, 4000 Гц и последующим сопоставлением полученных коэффициентов с их нормативными значениями.
Оценка звукоизоляции может быть проведена следующими методами:
-
инструментально-расчетным;
-
расчетным.
Инструментально-расчетный метод – оценка с использованием контрольно-измерительной аппаратуры возможных технических каналов утечки защищаемой информации.
Расчетный метод – метод расчета по характеристикам ограждающих конструкций с учетом веса ограждающей конструкции и частоты звука в помещении
2.4.1 Расчетный метод
Основное требование к звукоизоляции помещений заключается в том, чтобы за его пределами отношение акустический сигнал/шум не превышало некоторого допустимого значения, исключающего выделение речевого сигнала на фоне естественных шумов средством разведки. Поэтому к помещениям, в которых проводятся закрытые мероприятия, предъявляются определенные требования по звукоизоляции.
Звукоизоляция оценивается величиной ослабления акустического сигнала, которое для сплошных однослойных или однородных ограждений (строительных конструкций) на средних частотах приближенно рассчитывается по формуле:
Ког ≈ 20 ∙ lg (qп ∙ f) - 47,5, дБ, (2.1)
где, qп – масса 1 м2 ограждения, кг;
f – частота звука, Гц.
Учитывая, что средняя громкость звука говорящего в служебном помещении составляет примерно от 50 до 60 дБ, а нормированное значение равно 70 дБ, то в зависимости от места перехвата его звукоизоляция должна быть не менее норм, приведенных в таблице 2.3.
Таблица 2.3 – Требования к звукоизоляции защищаемых помещений
| Место возможного перехвата речевой конфиденциальной информации из помещения | Нормативное значение октавного коэффициента звукоизоляции (виброизоляции), дБ | |||
| Для помещений, не оборудованных системами звукоусиления | Для помещений, оборудованных системами звукоусиления | |||
| Смежные помещения | 43,4 | 57,4 | ||
| Уличное пространство | Улица без транспорта | 36 | 50 | |
| Улица с транспортом | 26 | 40 | ||
Одним из наиболее слабых звукоизолирующих элементов ограждающих конструкций защищаемых помещений являются двери и окна.
Двери имеют существенно меньшие по сравнению со стенами и межэтажными перекрытиями поверхностные плотности и трудно уплотняемые зазоры и щели. Стандартные двери и окна не удовлетворяют требованиям по защите информации, их коэффициенты звуко- и виброизоляции приведены в таблицах 2.4 и 2.5
Таблица 2.4 – Звукоизоляция обычных дверей
| Конструкция двери | Условия применения | Звукоизоляция (дБ) на частотах, Гц | |||||
| 125 | 250 | 500 | 1000 | 2000 | 4000 | ||
| Щитовая дверь, облицованная фанерой с двух сторон | без прокладки | 21 | 23 | 24 | 24 | 24 | 23 |
| с прокладкой из | 27 | 27 | 32 | 35 | 34 | 35 | |
| Типовая дверь П-327 | без прокладки | 13 | 23 | 31 | 33 | 34 | 36 |
| с прокладкой из | 29 | 30 | 31 | 33 | 34 | 41 | |
Таблица 2.5 – Звукоизоляция окон
| Схема остекления | Звукоизоляция (дБ) на частотах, Гц | ||||
| 250 | 500 | 1000 | 2000 | 4000 | |
| Одинарное остекление: | |||||
| толщина 3 мм | 17 | 22 | 28 | 31 | 32 |
| толщина 4 мм | 23 | 26 | 31 | 32 | 32 |
| толщина 6 мм | 22 | 26 | 30 | 27 | 25 |
| Двойное остекление с воздушным промежутком: | |||||
| 3-57-3 мм | 20 | 32 | 41 | 49 | 46 |
| 3-90-3 мм | 29 | 38 | 44 | 50 | 48 |
| 3-57-4 мм | 31 | 38 | 46 | 49 | 35 |
| 3-90-4 мм | 33 | 41 | 47 | 48 | 36 |
| Тройное остекление с воздушным промежутком: | |||||
| 4-16-4-200 толщиной 3 мм | 36 | 41 | 50 | 53 | 55 |
| 4-16-4-650 толщиной 3 мм | 39 | 44 | 50 | 53 | 55 |
| 4-16-7-200 толщиной 4 мм | 39 | 42 | 49 | 52 | 59 |
Для того чтобы определить звукоизоляцию расчетным методом, необходимо провести осмотр и анализ архитектурно–планировочных решений ЗП.
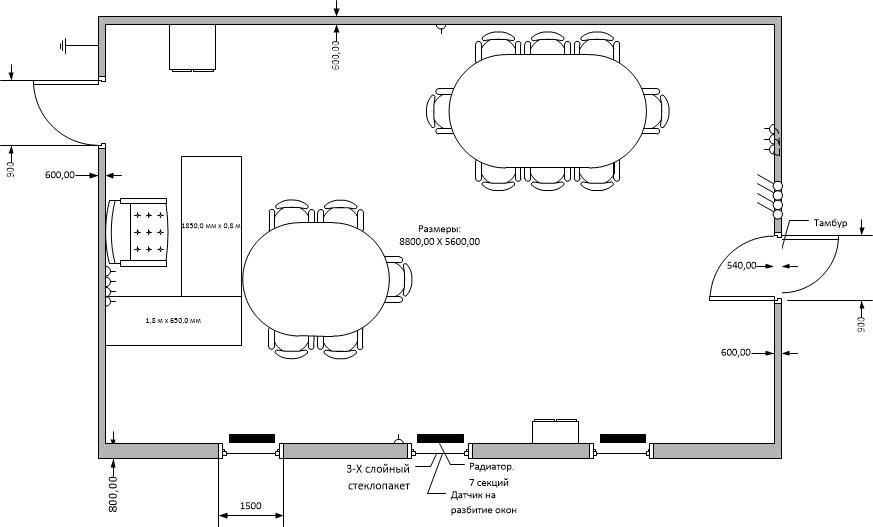
Помещение (рисунок 2.7), состоит из следующих ограждающих конструкций:
-
внутренняя оштукатуренная кирпичная стена (2 кирпича);
-
внешняя оштукатуренная кирпичная стена (2,5 кирпича);
-
цельная деревянная дверь с прокладкой из пористой резины (размеры двери –2,2 х 0,9 м), массив дуба;
-
дверной тамбур глубиной 540 мм и двумя дверьми с прокладкой из пористой резины (размеры двери –2,2 х 0,9 м), массив дуба;
-
окна с тройным остеклением (толщина стекла 4 мм) с воздушным промежутком в 57 мм (размеры окна – 1,5 х 1,9 м);
-
межэтажные - перекрытия железобетонная панель толщиной 160 мм.
Рисунок 2.7 – Защищаемое помещение
Стандартные параметры массы стен, остекления окон, дверей приведены в
таблице 2.6.
Таблица 2.6 – стандартные параметры массы ограждающих конструкций
| Ограждающая конструкция | Масса 1м2, кг |
| Стена кирпичная толщиной в: | |
| 2 кирпича | ≈1600 |
| 2,5 кирпича | ≈1800 |
| Остекление 4мм | ≈10 |
| Дверное полотно (Дуб) | ≈15 |
| Межэтажное перекрытие (железобетонная плита) | ≈300 |
2.4.1.2 Оценка звукоизоляции ограждающих конструкций расчетным
методом на средних октавных частотах
С учетом данных приведенных в таблице 2.6, рассчитаем звукоизоляцию по формуле(2.1):
Ког ≈ 20 ∙ lg (qп ∙ f) - 47,5, дБ,
где, qп – масса 1 м2 ограждения, кг;
f – частота звука, дБ.
Таблица 2.7 – Коэффициент звукоизоляции ограждающих конструкций
| Коэффициент звукоизоляции ограждающих конструкций, Ког | Частота, Гц | ||||
| Стена кирпичная толщиной в: | 250 | 500 | 1000 | 2000 | 4000 |
| 2 кирпича | 64,54 | 70,56 | 76,58 | 82,60 | 88,62 |
| 2,5 кирпича | 65,56 | 71,58 | 77,61 | 83,63 | 89,65 |
| Остекление 4мм | 20,46 | 26,48 | 32,50 | 38,52 | 44,54 |
| Дверное полотно (Дуб) | 23,98 | 30,00 | 36,02 | 42,04 | 48,06 |
| Межэтажное перекрытие | 50,01 | 56,02 | 62,04 | 68,06 | 74,08 |
Исходя из коэффициента звукоизоляции ограждающих конструкций защищаемого помещения и нормативных значений октавного коэффициента звукоизоляции, приведенных ранее в таблице 2.4, делаем вывод, что стены, пол и потолок не нуждаются в дополнительной звукоизоляции так как соответствуют нормам звукоизоляции. Но для остальных ОК (дверей и окон) требуется применить меры по активной защите акустической информации, в связи с несоответствии нормам звукоизоляции.
Окончательные и более точные данные по звуко- и виброзащищенности можно получить путем аппаратного измерения прибором типа «Шепот».
2.4.2 Инструментально-расчетный метод
Инструментальный контроль защищенности речевой информации от утечки по акустическому (виброакустическому) каналу проводится в следующем порядке:
-
предварительное обследование защищаемого помещения и выбор по его результатам контрольных точек, в которых будет проводиться оценка защищенности;
-
размещение аппаратуры, проведение измерений и обработка результатов;
-
оформление результатов измерений (контроля).
В ходе предварительного обследования проводится оценка архитектурно-планировочных решений мест речевой деятельности (рабочих помещений, кабинетов, залов и др.), конструктивных особенностей объекта контроля, инженерно-технических систем и их коммуникаций, а также других особенностей, на основании которых уточняются возможные технические каналы утечки речевой информации.















