Пояснительная записка (1209920), страница 5
Текст из файла (страница 5)
Оценивается (или уточняется) степень конфиденциальности речевой информации (категория обрабатываемой информации), и определяется необходимое значение нормированного показателя защищенности информации, на соответствие которому необходимо проводить контроль.
Уточняются условия речевой деятельности в защищаемом помещении. Проводится слуховой (качественный) контроль звукоизоляции объекта контроля путем прослушивания акустических сигналов, формируемых в защищаемом помещении (экспертный метод). В этом случае оценивается вероятность разборчивости речи. В качестве таких сигналов рекомендуется использовать естественную речь, записанную, например, на магнитофон.
На основании результатов обследования определяется количество и расположение контрольных точек для проведения измерений. Полученные в результате обследования данные отражаются в протоколе измерений.
Для проведения инструментального метода используются такие средства как
«Шепот», «Тритон», «Спрут» и т.д.
В нашем конкретном случае для проведения измерений использовался комплекс «Шепот» в составе:
-
рабочая укладка на базе шумомера «Larson & Davis 824А», 1 шт;
-
icp-акселерометр «АР98-100-01» , 1 шт;
-
преполяризованный ICP конденсаторный микрофон «TMS130E20», 2 шт;
-
источник калиброванного звукового давления «CAL-200» и адаптер для калибровки микрофонов 1/2"-1/4", 1 шт;
-
управляющая ПЭВМ ноутбук, 1 шт;
-
программа управления системой «Шепот» и расчета параметров защищённости выделенных помещений по виброакустическому каналу «Шепот-Интерфейс», 1 шт;
-
«шорох-2МИ» (генератор-усилитель), 1 шт;
-
«шорох-2МИк» (громкоговоритель), 1 шт;
-
полужесткая транспортная укладка, 1 шт;
-
штатив для громкоговорителя и микрофонов, 3 шт.
Система «Шепот» обеспечивает автоматические измерения уровня звукового давления тестового сигнала вблизи и на удалении от его источника в 5-октавных полосах с центральными частотами 250, 500, 1000, 2000 и 4000 Гц. Система «Шепот» представлена на рисунке 2.8.
Рисунок 2.8 – Система «Шепот»
В тоже время встроенная программа шепот интерфейс позволяет производить автоматизированные расчеты для выделенных помещений, в нашем случае помещение является защищаемым поэтому расчет коэффициентов звуко– и виброизоляции производился вручную в соответствии с «Временной методикой оценки защищенности помещений от утечки речевой конфиденциальной информации по акустическому и виброакустическому каналам».
2.4.2.1 Экспериментально-расчетная оценка коэффициентов звуко- и
виброизоляции
– методика оценки основана на определении коэффициентов звуко- и виброизоляции ограждающих конструкций в октавных полосах и сравнении их с нормативными значениями;
– при дальнейшем изложении используются следующие условные обозначения:
Qi(Gi) – коэффициент звуко- и виброизоляции ограждения конструкций (ОК), ДБ;
i – номер октавной полосы частот, дБ;
ЗП – защищаемое помещение;
КТ – контрольная точка – место, наиболее опасное с точки зрения перехвата речевой информации за пределами ОК;
АИ – акустический излучатель;
Lшi (Vшi) – уровень акустического (виброакустического) шума в i-й октавной полосе, дБ;
Lc1i (Vc1i) – уровень излучаемых тест-сигналов.
– в качестве тестового сигнала используются тональные гармонические сигналы, соответствующие серединам (среднегеометрическим значениям) октавных полос. Можно также использовать шумовой сигнал с нормальным распределением плотности вероятностей мгновенных значений в октавной полосе;
– в качестве измерительного устройства используется измеритель шума и вибраций со встроенными октавными фильтрами. На вход шумомера подключается измерительный микрофон либо вибродатчик;
– при проведении измерений акустический излучатель размещается на высоте от 1 до 1,5 м от пола и на расстоянии 1,5 м от ОК; при этом ось апертуры направляется по нормали к поверхности ОК;
– при измерении уровня излучаемого тестового сигнала Lc1i в ЗИ измерительный микрофон располагается по осевой линии апертуры АИ на расстоянии 1 м от АИ;
– при измерении уровня акустического сигнала и акустического шума в КТ измерительный микрофон размещается на расстоянии 0,5 м от поверхности ОК;
– при измерении уровня вибрационного сигнала и вибрационного шума измерительный вибродатчик располагается в КТ на поверхности ОК;
– измерения необходимо проводить при минимальных уровнях акустических и виброакустических шумов в ЗП и КТ.
2.4.2.2 Порядок проведения измерений и расчетов
Порядок проведения измерений и расчетов системой «Шепот»:
– собрать измерительную установку согласно рисунку 2.9;
Рисунок 2.9 – Структурная схема измерительной установки
1 – устройство формирования тестового акустического сигнала (гармонического или « белого» шума) УФТС; 2 – акустический излучатель; 3 – датчик (преобразователь акустического сигнала в электрический) – измерительные микрофон/виброакустический преобразователь; 4 – измерительное устройство – шумомер со встроенными фильтрами (октавными, третьоктавными и т.п.) либо спектроанализатор.
– при выключенном АИ с помощью измерительного микрофона (вибродатчика) и шумомера в выбранной КТ измеряется уровень акустического (вибрационного) шума Lшi (Vшi);
– при включенном АИ в КТ измеряется суммарный уровень акустического (вибрационного) сигнала и шума L(c+ш)i (V(c+шi). При этом уровень излучаемого тестового сигнала задается таким, чтобы он надежно фиксировался шумомером на уровне шума (т.е. сигнал должен превысить шум);
– не перестраивая УФТС, измерить излучаемые уровни тестового акустического (вибрационного) сигналов перед ОК Lc1i (Vc1i) в каждой октавной полосе;
– расчетным путем определяется уровень акустического (вибрационного) сигнала Lc2i (Vc2i) в КТ по формулам:
Lc2i = L(c+ш) i – ∆,
Vc2i = V(c+ш) i – ∆,
где ∆ – поправка в дБ, определяемая по номограмме рисунок 2.10 на основе разности L(c+ш) i – Lшi (V(c+ш)i – Vшi);
Рисунок 2.10 – Номограмма
– расчетным путем определяются коэффициенты звуко- и виброизоляции для каждой октавной полосы:
Qi (Gi) = Lc1i (Vc1i) – Lc2i (Vc2i);
– полученные значения октавных коэффициентов звуко- и виброизоляции сравниваются с их нормативными значениями, таблица 2.8.
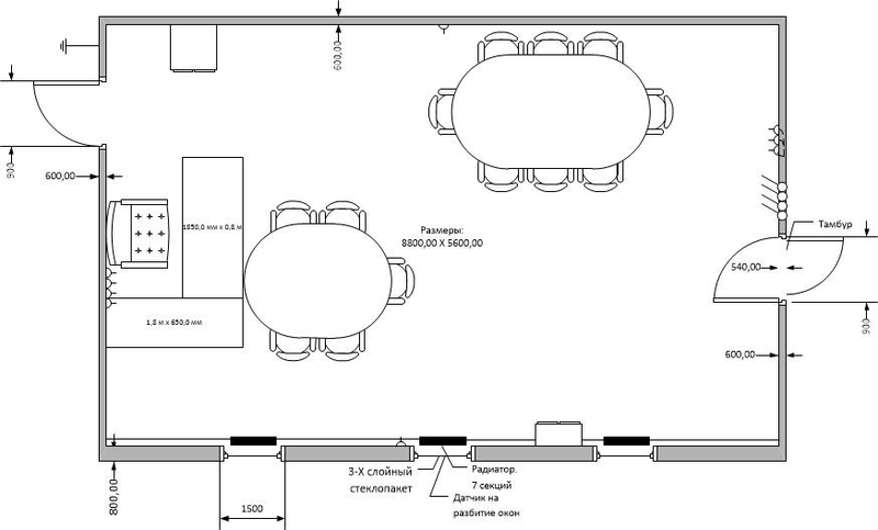
Расположение контрольных точек на ограждающих конструкциях представлены ниже на рисунках 2.11, 2.12, 2.13.
Рисунок 2.11 – Размещение КТ на поверхности окна.
Рисунок 2.12 – Размещение КТ на межэтажных перекрытиях
КТ №8.2
КТ №1
КТ №8.1
КТ №3
КТ №4
КТ №2
Рисунок 2.13 – Размещение КТ на схеме ЗП
– результаты измерения и расчета представлены в таблице 2.9. и 2.100.
Таблица 2.9 – Результаты определения октавных коэффициентов звукоизоляции
| Номер октавной полосы, i | Эквивалентное значение уровня тестового акустического сигнала в октавной полосе Lсi , дБ | Уровень измерительного суммарного акустического сигнала и акустического шума в контрольной точке L(c+ш)i , дБ | Измерительный уровень акустического шума в контрольной точке Lшi , дБ | Октавные уровни звукоизоляции в контрольной точке Qi , дБ | Вывод о выполнении требований по защите информации |
| Контрольная точка № 1 | |||||
| 1 | 91.5 | 36.2 | 30.8 | 57,3 | Да |
| 2 | 96.9 | 31.4 | 26.1 | 67.5 | Да |
| 3 | 100.5 | 30.0 | 25.2 | 72.5 | Да |
| 4 | 100.4 | 36.8 | 30.7 | 65.6 | Да |
| 5 | 98.9 | 34.1 | 29.3 | 66.8 | Да |
| Контрольная точка № 2 | |||||
| 1 | 92.4 | 34.0 | 29.6 | 60.4 | Да |
| 2 | 96.7 | 31.3 | 27.3 | 67.4 | Да |
| 3 | 100.0 | 34.9 | 29.3 | 67.1 | Да |
| 4 | 101.9 | 30.1 | 25.3 | 73.8 | Да |
| 5 | 93.4 | 37.7 | 32.4 | 57.7 | Да |
| Контрольная точка № 3 | |||||
| 1 | 94.9 | 67.0 | 41.4 | 27.9 | Да |
| 2 | 98.5 | 68.7 | 42.0 | 29.8 | Нет |
| 3 | 100.6 | 66.0 | 44.2 | 34.6 | Нет |
| 4 | 102.7 | 68.3 | 39.2 | 34.4 | Нет |
| 5 | 95.2 | 65.9 | 39.9 | 29.3 | Нет |
| Контрольная точка № 4 (вентиляция) | |||||
| 1 | 92.9 | 66.5 | 62.1 | 28.4 | Нет |
| 2 | 97.9 | 61.7 | 58.0 | 39.2 | Нет |
| 3 | 99.4 | 58.1 | 55.6 | 45.3 | Да |
| 4 | 99.9 | 57.6 | 55.3 | 46.3 | Да |
| 5 | 93.9 | 53.1 | 45.9 | 41.8 | Нет |
| Контрольная точка № 5.1 | |||||
| 1 | 91.2 | 69.0 | 53.1 | 22.2 | Нет |
| 2 | 96.2 | 64.1 | 54.3 | 33.1 | Да |
| 3 | 98.9 | 58.9 | 52.9 | 42.0 | Да |
| 4 | 100.4 | 57.6 | 52.0 | 44.8 | Да |
| 5 | 93.6 | 55.9 | 46.5 | 38.7 | Да |
| Контрольная точка № 5.2 | |||||
| 1 | 92.9 | 67.0 | 53.4 | 25.9 | Нет |















