Пояснительная записка (1209920), страница 9
Текст из файла (страница 9)
Цена за один размыкатель – 3540 рублей.
Блок электропитания и управления «Соната-ИП4.1»
Блоки электропитания и управления "Соната-ИП4.1" и "Соната-ИП4.2" предназначены для электропитания и управления подключаемыми к выходу «Нагрузка» элементами системы активной акустической и вибрационной защиты акустической речевой информации «Соната-АВ» модель 4Б (Системы) в ходе ее эксплуатации; Имеет сертифика ФСТЭК России № 3625 от 20.09.16 г., действует до 20.09.19 г.
Основные технические характеристики представлены в таблице 2.15. Внешний вид представлен на рисунке 2.25.
Таблица 2.15 – Технические характеристики блока питания «Соната - ИП4.1»
| Параметр | Значение |
| Соната-ИП4.1 | |
| Количество "физических" выходов для подключения нагрузок | 1 |
| Количество "логически" управляемых устройств, шт., не менее | 239 |
| Выходное напряжение, В | 12,5 ± 0,5 |
| Интерфейс/проткол управления подключаемыми к выходу «Нагрузка» устройствами | ReBus-3 (3-проводный) |
| Нагрузочная способность*), мА, не менее | 1500 |
| Мощность, потребляемая от сети, Вт, не более | 40 |
| Электропитание | сеть ~220В/50Гц |
| Виды индикации (отображаемая информация) | световая, звуковая |
| Интерфейс для подключения к управляющей ПЭВМ | USB 2.0 |
Рисунок 2.25 – «Соната - ИП4.1»
Цена: 16520 рублей
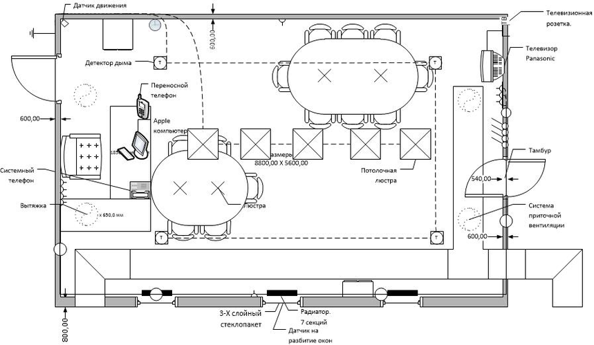
2.8 Схема защищённого помещения
Ниже на рисунках 2.26 и 2.27 представлено расположение СрЗИ на схемах защищаемого помещения.
«ПЭД-8А»
«ПЭД-8А»
«ПЭД-8А»
Рисунок 2.26 – Расположение СрЗИ на схеме защищаемого помещения (вид сбоку)
Варианты расположения были определены с учетом рекомендации из руководства эксплуатации системы «Шорох-5Л», которые были описаны в главе 2.7.2, возможные варианты размещения вибровозбудителей (ВВ) были представлены на рисунке 2.18.
«Шторм»
«Соната-ВК4.1»
«Соната-ВК4.2»
«ЛГШ 513»
«Соната-ВК4.3»
«ПЭД-8А/Мини»
«ПЭД-8А/Н»
«Кедр –2М»
«ПЭД-8А/Мини»
«ПЭД-8А/Мини»
«Ладья-8 DA»
«ЛГШ 221»
Рисунок 2.27 – Расположение СрЗИ на схеме защищаемого помещения
2.9 Расчёт стоимости оборудования.
Подсчёт всего оборудования, которое понадобится для обеспечения защиты представлен в таблице 2.16.
Таблица 2.16 – Расчёт стоимости оборудования
| Наименование | Цена за единицу, руб. | Количество, шт. | Сумма, руб. |
| Система «Шорох-5Л» 1.БПУ-1 2.ПЭД-8А 3.ПЭД8А/Мини 4. ПЭД8А/Н 5.Монтажная площадка тип 1. 6.Крепежный дюбель тип 2. 7.Крепление на трубы |
17700 3500 4500 4500 400 400 400 |
1 26 3 1 24 4 2 |
17700 91000 13500 4500 9600 2000 800 |
| «Соната-ИП4.1» | 16520 | 1 | 16520 |
| «Соната-ВК4.1» | 3540 | 1 | 3540 |
| «Соната-ВК4.2» | 3540 | 1 | 3540 |
| «Соната-ВК4.3» | 3540 | 1 | 3540 |
| «КЕДР-2М» | 75900 | 1 | 75900 |
| «ЛГШ-221» | 28000 | 1 | 28000 |
| «Шторм» | 54400 | 1 | 54400 |
| «ЛГШ-513» | 30000 | 1 | 30000 |
| «Ладья-8 DA» | 84000 | 1 | 84000 |
| Итого: | 438540 руб. | ||
В качестве альтернативы предложенных средств защиты возможно использование одного устройства «Druid D-06». Но в тоже время его использование составляет неудобства во время переговоров.
«Druid D-06» – устройство обеспечения конфиденциальных переговоров с количеством участников до 6 человек. Защищает от любых подслушивающих устройств: микрофонов, диктофонов или стетоскопов. Принцип работы основан на постановке синхронной звуковой помехи. Питание от встроенного аккумулятора или сети 220 В. В комплекте 6 гарнитур Plantronics Audio 355.
Обеспечивает наивысшую степень защиты от средств прослушивания и записи. «DRUID D-06» создает мощное противодействие любым подслушивающим устройствам. Даже человек стоящий рядом не понимает о чем идет разговор, если он не одел гарнитуру. Гарнитуры позволяют пользователям слышать друг друга с максимальной четкостью, несмотря на мощную помеху, издаваемую центральным блоком. Прибор питается от сети 220 В или встроенного аккумулятора с ресурсом от 3 до 6 часов. В комплекте идет кейс для переноски. Устройство обеспечения конфиденциальных переговоров «Druid D-06» представлено на рисунке 2.26.
Рисунок 2.26 – «Druid D-06»
Характеристики:
-
профессиональная система защиты переговоров, позволяющая вести беседу до 6 человек одновременно(при синхронизации 2-х устройств до 12-ти человек);
-
защищает от всех известных методов прослушивания, включая все типы радиомик рофонов, стетоскопов, звуковых регистраторов, пассивных резонаторов, проводных микрофонов и т. д;
-
druid абсолютно безвредный для здоровья человека, прибор не излучает ни каких микроволновых и ультразвуковых излучений;
-
по сравнению с генераторами белого шума DRUID обеспечивает защиту более высокого уровня. Акустический белый шум полностью не подавляет цифровые диктофоны;
-
портативность — система поставляется в пластиковом кейсе и может быть легко подготовлена к использованию;
-
система может работать от встроенных аккумуляторов. Время работы до 4-х часов;
-
гарнитуры DRUID имеют встроенные RF детектор для исключения возможности монтажа радиопередающих устройств непосредственно в наушники системы;
-
компактность и легкость в использовании позволяет пользоваться устройством в любой ситуации, что особенно важно при проведении важных переговоров в неизвестной окружающей обстановке.
Стоимость одного комплекта составляет 147000 рублей.
3 Обоснование экономической эффективности проектирования и внедрения профиля защиты защищаемого помещения «52 ЦПИ – филиала АО “31 ГПИСС”»
3.1 Планирование и организация процесса проектирования и внедрения профиля защиты защищаемого помещения «52 ЦПИ – филиала АО “31 ГПИСС”»
Целью внедрения профиля защиты, разработанного в рамках настоящей выпускной квалификационной работы, является снижение общего риска реализации деструктивных воздействий внутренних и внешних злоумышленников.
Исходными данными для расчёта экономической эффективности от внедрения профиля защиты стали сведения, собранные за время работы.
Источниками получения исходной информации стали нормативные документы в области защиты информации, должностные инструкции инженеров структурного подразделения. Исходные данные для расчёта экономической эффективности внедрения профиля защиты информации представлены в таблицах 3.1.
Таблица 3.1 - Нормативные показатели
| Наименование показателя | Условное обозначение | Единица измерения | Значение показателя |
| Число рабочих дней в месяц | ЧРД | день | 22 |
| Районный коэффициент | kР | ед. | 1,3 |
| Дальневосточный коэффициент | kДВ | ед. | 1,3 |
| Отчисления в ПФ,ФМС,ФСС | kПФ | ед. | 1,3 |
Разработка и внедрение профиля защиты защищаемое помещение «52 ЦПИ – филиала АО “31 ГПИСС”» осуществляется в несколько этапов, содержание и организацию выполнения которых регламентирует ГОСТ 15101-80 «Порядок проведения научно-исследовательских работ»:
-
разработка ТЗ;
-
выбор направления исследования;
-
теоретические и экспериментальные исследования;
-
обобщение результатов работы;
-
приемка результатов исследования.
Установим удельные веса этапов разработки и внедрения профиля защиты защищаемого помещения «52 ЦПИ – филиала АО “31 ГПИСС”», в общей трудоемкости экспертным методом и произведем расчет одного из этапов работы. Результат экспертной оценки приведен в таблице 3.2.
Таблица 3.2 - Соотношение этапов работы по трудоемкости
| Наименование этапа | Удельный вес этапа, % |
| 1.Разработка ТЗ | 5 |
| 2.Выбор направления исследования | 5 |
| 3.Теоретические и экспериментальные исследования | 70 |
| 4.Обобщение результатов работы 5.Приемка результатов исследования Итого: | 15 5 100 |
Общая трудоемкость разработки и внедрения профиля защиты защищаемого помещения «52 ЦПИ – филиала АО “31 ГПИСС”», определяется по формуле
(3.1)
,где
- общая трудоемкость разработки, чел.-ч;














